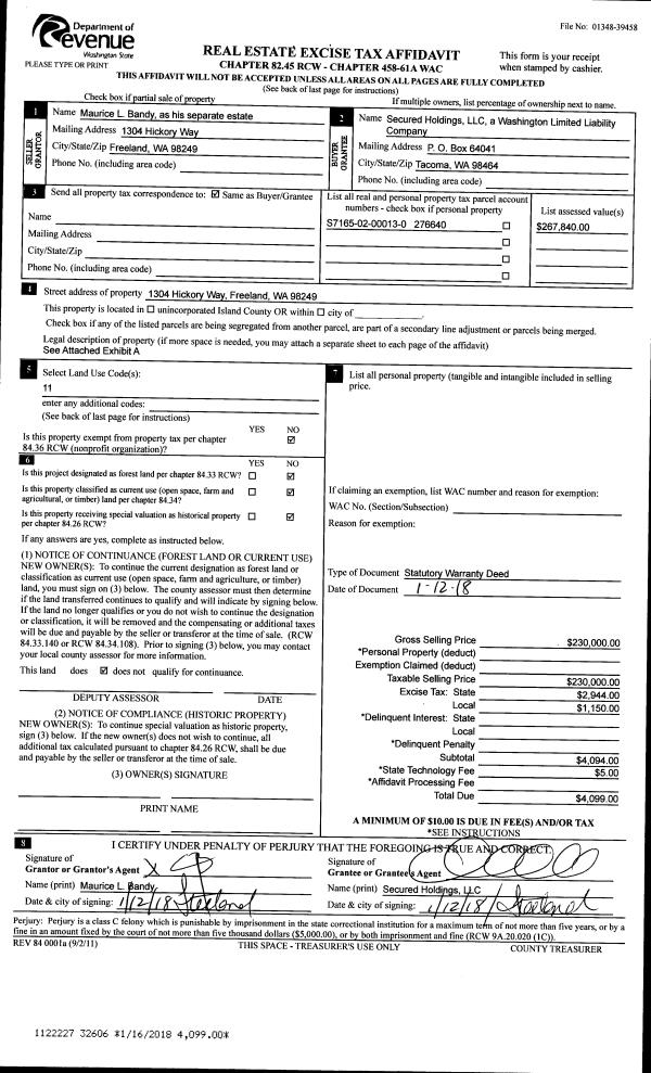
Property
Account |
| Property ID: | 412949 | Abbreviated Legal Description: | TWIN VIEW EST N/2 W/2 LOT 11 TGW SUB EZ |
| Geographic ID: | S8325-00-00011-3 | Agent Code: | |
| Type: | Real | | |
| Tax Area: | 319 - APPRAISER-Cpvl Schl Dist, outside Cpvl, vacant & 50 acres or less | Land Use Code | 99 |
| Open Space: | N | DFL | N |
| Historic Property: | N | Remodel Property: | N |
| Multi-Family Redevelopment: | N | | |
| Township: | | Section: | |
| Range: | |
Location |
| Address: | | Mapsco: | |
| Neighborhood: | Cycle 3 | Map ID: | 428 |
| Neighborhood CD: | 3 |
Owner |
| Name: | MINIKEN JR, DONALD WILLIAM | Owner ID: | 283317 |
| Mailing Address: | 7110 PACIFIC HWY E MILTON, WA 98354 | % Ownership: | 100.0000000000% |
| | | Exemptions: | |
Taxes and Assessment Details
Values
| (+) Improvement Homesite Value: | + | $0 | |
| (+) Improvement Non-Homesite Value: | + | $0 | |
| (+) Land Homesite Value: | + | $0 | |
| (+) Land Non-Homesite Value: | + | $110,000 | |
| (+) Curr Use (HS): | + | $0 | $0 |
| (+) Curr Use (NHS): | + | $0 | $0 |
| | | -------------------------- | |
| (=) Market Value: | = | $110,000 | |
| (–) Productivity Loss: | – | $0 | |
| | | -------------------------- | |
| (=) Subtotal: | = | $110,000 | |
| (+) Senior Appraised Value: | + | $0 | |
| (+) Non-Senior Appraised Value: | + | $110,000 | |
| | | -------------------------- | |
| (=) Total Appraised Value: | = | $110,000 | |
| (–) Senior Exemption Loss: | – | $0 | |
| (–) Exemption Loss: | – | $0 | |
| | | -------------------------- | |
| (=) Taxable Value: | = | $110,000 | |
Taxing Jurisdiction
| Owner: | MINIKEN JR, DONALD WILLIAM | | |
| % Ownership: | 100.0000000000% | | |
| Total Value: | $110,000 | | |
| Tax Area: | 319 - APPRAISER-Cpvl Schl Dist, outside Cpvl, vacant & 50 acres or less |
| CF | Conservation Futures | 0.0316035091 | $110,000 | $110,000 | $3.48 | | |
| CEM2 | Cemetery #2 | 0.0095056933 | $110,000 | $110,000 | $1.05 | | |
| HOBOND | Hospital BOND | 0.1910887512 | $110,000 | $110,000 | $21.02 | | |
| HOGEN | Hospital GEN | 0.3902502903 | $110,000 | $110,000 | $42.93 | | |
| CE | County Current Expense | 0.3708482477 | $110,000 | $110,000 | $40.79 | | |
| CR | County Roads | 0.4584763726 | $110,000 | $110,000 | $50.43 | | |
| ISLANDEMS | Hospital GEN (EMS) | 0.5000000000 | $110,000 | $110,000 | $55.00 | | |
| LIB | Library Sno-Isle GEN | 0.3153421757 | $110,000 | $110,000 | $34.69 | | |
| LIBCAP | Library Sno-Isle BOND (Cap Fac Imp Area) | 0.0543427938 | $110,000 | $110,000 | $5.98 | | |
| POCOUP | Port of Coupeville GEN | 0.1093371703 | $110,000 | $110,000 | $12.03 | | |
| POCOUPIDD | Port of Coupeville IDD | 0.3409740022 | $110,000 | $110,000 | $37.51 | | |
| COUPSDTECH | School 204 CP (TECH) | 0.7545480007 | $110,000 | $110,000 | $83.00 | | |
| SCH204MO | School 204 Enrichment | 0.6716186034 | $110,000 | $110,000 | $73.88 | | |
| ST | State School | 1.3035497053 | $110,000 | $110,000 | $143.39 | | |
| ST2 | State School Part 2 | 0.8169543533 | $110,000 | $110,000 | $89.86 | | |
| | Total Tax Rate: | 6.3184396689 | | | | | |
| | | | | Taxes w/Current Exemptions: | $695.04 | | |
| | | | | Taxes w/o Exemptions: | $695.04 | | |
Improvement / Building
Sketch
| No sketches available for this property. |
Property Image
Land
| 1 | 16 | AC (00.51-01.00) | 0.0000 | 0.00 | 0.00 | 0.00 | 1.00 | $110,000 | $0 |
Roll Value History
| 2026 | N/A | N/A | N/A | N/A | N/A |
| 2025 | $0 | $110,000 | $0 | $110,000 | $110,000 |
| 2024 | $0 | $110,000 | $0 | $110,000 | $110,000 |
| 2023 | $0 | $110,000 | $0 | $110,000 | $110,000 |
| 2022 | $0 | $110,000 | $0 | $110,000 | $110,000 |
| 2021 | $0 | $100,000 | $0 | $100,000 | $100,000 |
| 2020 | $0 | $60,000 | $0 | $60,000 | $60,000 |
| 2019 | $0 | $65,000 | $0 | $65,000 | $65,000 |
| 2018 | $0 | $65,000 | $0 | $65,000 | $65,000 |
| 2017 | $0 | $65,000 | $0 | $65,000 | $65,000 |
| 2016 | $0 | $85,000 | $0 | $85,000 | $85,000 |
| 2015 | $0 | $85,000 | $0 | $85,000 | $85,000 |
| 2014 | $0 | $45,000 | $0 | $45,000 | $45,000 |
| 2013 | $0 | $55,000 | $0 | $55,000 | $55,000 |
| 2012 | $0 | $60,000 | $0 | $60,000 | $60,000 |
| 2011 | $0 | $60,000 | $0 | $60,000 | $60,000 |
| 2010 | $0 | $60,000 | $0 | $60,000 | $60,000 |
| 2009 | $0 | $80,000 | $0 | $80,000 | $80,000 |
| 2008 | $0 | $55,000 | $0 | $55,000 | $55,000 |
| 2007 | $0 | $55,000 | $0 | $55,000 | $55,000 |
Deed and Sales History
| 1 | 12/12/2017 | QCD | Quit Claim Deed | WIGGINTON, JOSEPHINE | MINIKEN JR, DONALD WILLIAM | | | $0.00 | 32320 | 4435984 |
| 2 | 09/14/2005 | 5 | DNU - Marriage License/Name Change | DAVIDSON, JOSEPHINE | WIGGINTON, JOSEPHINE | | | $0.00 | 70632 | 0 |
| 3 | 02/01/1987 | DECREE | Divorce Decree/Legal Separation | DAVIDSON, ROBERT | DAVIDSON, JOSEPHINE | | | $0.00 | 62007 | 0 |
| 4 | 01/01/1900 | OTHER | Other - Misc. Documents | Unknown | DAVIDSON, ROBERT | | | $0.00 | 0 | 0 |
Payout Agreement
| No payout information available.. |