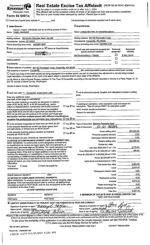
Property
Account |
| Property ID: | 413136 | Abbreviated Legal Description: | TWIN VW LOT 29 |
| Geographic ID: | S8325-00-00029-0 | Agent Code: | |
| Type: | Real | | |
| Tax Area: | 312 - APPRAISER-Cpvl Schl Dist, outside Cpvl, improved, greater than 1 acre | Land Use Code | 11 |
| Open Space: | N | DFL | N |
| Historic Property: | N | Remodel Property: | N |
| Multi-Family Redevelopment: | N | | |
| Township: | | Section: | |
| Range: | |
Location |
| Address: | 713 PILCHUCK DR GREENBANK, WA 98253 | Mapsco: | |
| Neighborhood: | Cycle 3 | Map ID: | 428 |
| Neighborhood CD: | 3 |
Owner |
| Name: | CARACAN, ZACK | Owner ID: | 316182 |
| Mailing Address: | 713 PILCHUCK DR GREENBANK, WA 98253 | % Ownership: | 100.0000000000% |
| | | Exemptions: | |
Taxes and Assessment Details
Values
| (+) Improvement Homesite Value: | + | $0 | |
| (+) Improvement Non-Homesite Value: | + | $82,321 | |
| (+) Land Homesite Value: | + | $0 | |
| (+) Land Non-Homesite Value: | + | $310,000 | |
| (+) Curr Use (HS): | + | $0 | $0 |
| (+) Curr Use (NHS): | + | $0 | $0 |
| | | -------------------------- | |
| (=) Market Value: | = | $392,321 | |
| (–) Productivity Loss: | – | $0 | |
| | | -------------------------- | |
| (=) Subtotal: | = | $392,321 | |
| (+) Senior Appraised Value: | + | $0 | |
| (+) Non-Senior Appraised Value: | + | $392,321 | |
| | | -------------------------- | |
| (=) Total Appraised Value: | = | $392,321 | |
| (–) Senior Exemption Loss: | – | $0 | |
| (–) Exemption Loss: | – | $0 | |
| | | -------------------------- | |
| (=) Taxable Value: | = | $392,321 | |
Taxing Jurisdiction
| Owner: | CARACAN, ZACK | | |
| % Ownership: | 100.0000000000% | | |
| Total Value: | $392,321 | | |
| Tax Area: | 312 - APPRAISER-Cpvl Schl Dist, outside Cpvl, improved, greater than 1 acre |
| CF | Conservation Futures | 0.0316035091 | $392,321 | $392,321 | $12.40 | | |
| CEM2 | Cemetery #2 | 0.0095056933 | $392,321 | $392,321 | $3.73 | | |
| FIRE5 | Fire & Rescue Dist #5 C Whidbey GEN | 1.2008080668 | $392,321 | $392,321 | $471.10 | | |
| FIRE5BOND | Fire & Rescue Dist #5 C Whidbey BOND | 0.1400090713 | $392,321 | $392,321 | $54.93 | | |
| HOBOND | Hospital BOND | 0.1910887512 | $392,321 | $392,321 | $74.97 | | |
| HOGEN | Hospital GEN | 0.3902502903 | $392,321 | $392,321 | $153.10 | | |
| CE | County Current Expense | 0.3708482477 | $392,321 | $392,321 | $145.49 | | |
| CR | County Roads | 0.4584763726 | $392,321 | $392,321 | $179.87 | | |
| ISLANDEMS | Hospital GEN (EMS) | 0.5000000000 | $392,321 | $392,321 | $196.16 | | |
| LIB | Library Sno-Isle GEN | 0.3153421757 | $392,321 | $392,321 | $123.72 | | |
| LIBCAP | Library Sno-Isle BOND (Cap Fac Imp Area) | 0.0543427938 | $392,321 | $392,321 | $21.32 | | |
| POCOUP | Port of Coupeville GEN | 0.1093371703 | $392,321 | $392,321 | $42.90 | | |
| POCOUPIDD | Port of Coupeville IDD | 0.3409740022 | $392,321 | $392,321 | $133.77 | | |
| COUPSDTECH | School 204 CP (TECH) | 0.7545480007 | $392,321 | $392,321 | $296.03 | | |
| SCH204MO | School 204 Enrichment | 0.6716186034 | $392,321 | $392,321 | $263.49 | | |
| ST | State School | 1.3035497053 | $392,321 | $392,321 | $511.41 | | |
| ST2 | State School Part 2 | 0.8169543533 | $392,321 | $392,321 | $320.51 | | |
| | Total Tax Rate: | 7.6592568070 | | | | | |
| | | | | Taxes w/Current Exemptions: | $3,004.90 | | |
| | | | | Taxes w/o Exemptions: | $3,004.90 | | |
Improvement / Building
| Improvement #1: | MANUFACTURED HOME | State Code: | Y | 1376.0 sqft | Value: | $82,321 |
| Bathrooms: | 1 | Bedrooms: | 2 | | Ceiling: | PLASTER PAINTED | Cooling: | EVAP NO DUCT | | Exterior Wall/Cover: | VINYL | Floor Covering: | CARPET 100% | | Floor Structure: | SLAB ON GRADE | Foundation: | SLAB | | Heating: | FHA ELECTRIC | Interior Finish: | PLASTER | | Plumbing Fixture Cnt: | 1 | Roof Slope: | FLAT | | Roof Structure/Cover: | CJ ALUMINIUM HEAVY |   |   |
|
| | Type | Description | Class CD | Sub Class CD | Year Built | Area |
| | BAS | BASE/MAIN FLOOR | 4 | 0 | 1955 | 1376.0 |
| | OWP | OPEN WOOD PORCH W/STEPS | 4 | 0 | 1955 | 80.0 |
| | UTY | STORAGE/UTILITY | 4 | 0 | 1955 | 120.0 |
| | UTY | STORAGE/UTILITY | 4 | 0 | 1955 | 320.0 |
Sketch
| No sketches available for this property. |
Property Image
Land
| 1 | 18 | AC (02.01-03.00) | 2.3800 | 103672.80 | 0.00 | 0.00 | 1.00 | $310,000 | $0 |
Roll Value History
| 2026 | N/A | N/A | N/A | N/A | N/A |
| 2025 | $82,321 | $310,000 | $0 | $392,321 | $392,321 |
| 2024 | $40,937 | $270,000 | $0 | $310,937 | $310,937 |
| 2023 | $42,302 | $250,000 | $0 | $292,302 | $292,302 |
| 2022 | $40,780 | $240,000 | $0 | $280,780 | $280,780 |
| 2021 | $37,609 | $170,000 | $0 | $207,609 | $207,609 |
| 2020 | $39,626 | $130,000 | $0 | $169,626 | $169,626 |
| 2019 | $13,407 | $200,000 | $0 | $213,407 | $213,407 |
| 2018 | $13,407 | $155,000 | $0 | $168,407 | $168,407 |
| 2017 | $13,407 | $115,000 | $0 | $128,407 | $128,407 |
| 2016 | $13,407 | $120,000 | $0 | $133,407 | $133,407 |
| 2015 | $13,407 | $130,000 | $0 | $143,407 | $143,407 |
| 2014 | $13,407 | $100,000 | $0 | $113,407 | $113,407 |
| 2013 | $30,932 | $100,000 | $0 | $130,932 | $130,932 |
| 2012 | $30,932 | $123,250 | $0 | $154,182 | $154,182 |
| 2011 | $30,932 | $145,000 | $0 | $175,932 | $175,932 |
| 2010 | $33,964 | $145,000 | $0 | $178,964 | $178,964 |
| 2009 | $34,773 | $155,000 | $0 | $189,773 | $189,773 |
| 2008 | $34,958 | $110,700 | $0 | $145,658 | $145,658 |
| 2007 | $19,105 | $110,000 | $0 | $129,105 | $129,105 |
Deed and Sales History
| 1 | 04/19/2025 | REC | Real Estate Contract | KNIGHT, TERRY | CARACAN, ZACK | | | $395,000.00 | 63212 | 4584814 |
| 2 | 05/18/2005 | WD | Warranty Deed | MATHIS, TRUSTEE, JAMES MICHAEL | KNIGHT, TERRY | | | $115,950.00 | 52454 | 4135915 |
| 3 | 07/11/2001 | QCD | Quit Claim Deed | MATHIS, JAMES M | MATHIS, TRUSTEE, JAMES MICHAEL | | | $0.00 | 12684 | 20037380 |
| 4 | 12/01/1995 | OTHER | Other - Misc. Documents | MATHIS, JAMES M | MATHIS, JAMES M | | | $0.00 | 54386 | 0 |
| 5 | 04/01/1994 | QCD | Quit Claim Deed | MATHIS, MARK A | MATHIS, JAMES M | | | $0.00 | 54385 | 95020267 |
| 6 | 12/01/1992 | QCD | Quit Claim Deed | MATHIS, MARK A | MATHIS, MARK A | | | $0.00 | 25060 | 92024981 |
| 7 | 06/01/1980 | OTHER | Other - Misc. Documents | MATHIS, MARK A | MATHIS, MARK A | | | $0.00 | 1914 | 0 |
| 8 | 08/01/1978 | OTHER | Other - Misc. Documents | Unknown | MATHIS, MARK A | | | $5,000.00 | 83688 | 337330 |
Payout Agreement
| No payout information available.. |