Property
Account |
| Property ID: | 41314 | Abbreviated Legal Description: | 0.2200 Acres ins Section 34s Township 33s Range R1s LOT 1 OH BLA 20-01 AF#4503158;s |
| Geographic ID: | R13334-361-0210 | Agent Code: | |
| Type: | Real | | |
| Tax Area: | 100 - APPRAISER-OH Schl Dist, in OH | Land Use Code | 11 |
| Open Space: | N | DFL | N |
| Historic Property: | N | Remodel Property: | N |
| Multi-Family Redevelopment: | N | | |
| Township: | 33 | Section: | 34 |
| Range: | R1 |
Location |
| Address: | 1775 NW CROSBY AVE OAK HARBOR, WA 98277 | Mapsco: | |
| Neighborhood: | Cycle 1 | Map ID: | 254 |
| Neighborhood CD: | 1 |
Owner |
| Name: | STAPEL, DEBRA A | Owner ID: | 290005 |
| Mailing Address: | 3027 HELLER RD OAK HARBOR, WA 98277 | % Ownership: | 100.0000000000% |
| | | Exemptions: | |
Taxes and Assessment Details
Values
| (+) Improvement Homesite Value: | + | $0 | |
| (+) Improvement Non-Homesite Value: | + | $157,650 | |
| (+) Land Homesite Value: | + | $0 | |
| (+) Land Non-Homesite Value: | + | $190,000 | |
| (+) Curr Use (HS): | + | $0 | $0 |
| (+) Curr Use (NHS): | + | $0 | $0 |
| | | -------------------------- | |
| (=) Market Value: | = | $347,650 | |
| (–) Productivity Loss: | – | $0 | |
| | | -------------------------- | |
| (=) Subtotal: | = | $347,650 | |
| (+) Senior Appraised Value: | + | $0 | |
| (+) Non-Senior Appraised Value: | + | $347,650 | |
| | | -------------------------- | |
| (=) Total Appraised Value: | = | $347,650 | |
| (–) Senior Exemption Loss: | – | $0 | |
| (–) Exemption Loss: | – | $0 | |
| | | -------------------------- | |
| (=) Taxable Value: | = | $347,650 | |
Taxing Jurisdiction
| Owner: | STAPEL, DEBRA A | | |
| % Ownership: | 100.0000000000% | | |
| Total Value: | $347,650 | | |
| Tax Area: | 100 - APPRAISER-OH Schl Dist, in OH |
| CF | Conservation Futures | 0.0316035091 | $347,650 | $347,650 | $10.99 | | |
| CEM1 | Cemetery #1 | 0.0040320932 | $347,650 | $347,650 | $1.40 | | |
| COH | City of Oak Harbor | 2.3001546061 | $347,650 | $347,650 | $799.65 | | |
| OAKBOND | City of Oak Harbor BOND | 0.1926904192 | $347,650 | $347,650 | $66.99 | | |
| HOBOND | Hospital BOND | 0.1910887512 | $347,650 | $347,650 | $66.43 | | |
| HOGEN | Hospital GEN | 0.3902502903 | $347,650 | $347,650 | $135.67 | | |
| CE | County Current Expense | 0.3708482477 | $347,650 | $347,650 | $128.93 | | |
| ISLANDEMS | Hospital GEN (EMS) | 0.5000000000 | $347,650 | $347,650 | $173.83 | | |
| LIB | Library Sno-Isle GEN | 0.3153421757 | $347,650 | $347,650 | $109.63 | | |
| NWHIDPRMT | P & R N Whidbey GEN | 0.2004466701 | $347,650 | $347,650 | $69.69 | | |
| SCH201MO | School 201 Enrichment | 1.8559231640 | $347,650 | $347,650 | $645.21 | | |
| ST | State School | 1.3035497053 | $347,650 | $347,650 | $453.18 | | |
| ST2 | State School Part 2 | 0.8169543533 | $347,650 | $347,650 | $284.01 | | |
| | Total Tax Rate: | 8.4728839852 | | | | | |
| | | | | Taxes w/Current Exemptions: | $2,945.61 | | |
| | | | | Taxes w/o Exemptions: | $2,945.61 | | |
Improvement / Building
| Improvement #1: | RESIDENTIAL | State Code: | Y | 1050.0 sqft | Value: | $157,650 |
| Bathrooms: | 1.5 | Bedrooms: | 3 | | Ceiling: | DRYWALL PAINTED | Exterior Wall/Cover: | PLY/HARDBOARD T-111 | | Floor Covering: | VINYL 100% | Floor Structure: | WOOD W/SUBFLOOR | | Foundation: | CONCRETE BLOCKS | Heating: | BASEBOARD ELECTRIC | | Interior Finish: | DRYWALL PAINT | Plumbing Fixture Cnt: | 9 | | Roof Slope: | 4" IN 12" | Roof Structure/Cover: | CJ ASPHALT |
|
| | Type | Description | Class CD | Sub Class CD | Year Built | Area |
| | BAS | BASE/MAIN FLOOR | 3 | 0 | 1966 | 1050.0 |
| | OP1 | OPEN PORCH SLAB | 3 | 0 | 1966 | 442.0 |
| | OP3 | OPEN PORCH W/ROOF | 3 | 0 | 1966 | 72.0 |
| | AGR | ATTACHED GARAGE | 3 | 0 | 1966 | 696.0 |
| | UTY | STORAGE/UTILITY | 3 | 0 | 1966 | 135.0 |
| | OWP | OPEN WOOD PORCH W/STEPS | 3 | 0 | 1966 | 80.0 |
Sketch
Property Image
Land
| 1 | 14 | SQ (08001-12000) | 0.2200 | 9583.20 | 0.00 | 0.00 | 1.00 | $190,000 | $0 |
Roll Value History
| 2026 | N/A | N/A | N/A | N/A | N/A |
| 2025 | $157,650 | $190,000 | $0 | $347,650 | $347,650 |
| 2024 | $163,561 | $180,000 | $0 | $343,561 | $343,561 |
| 2023 | $152,801 | $180,000 | $0 | $332,801 | $332,801 |
| 2022 | $140,781 | $180,000 | $0 | $320,781 | $320,781 |
| 2021 | $124,522 | $120,000 | $0 | $244,522 | $244,522 |
| 2020 | $121,488 | $100,000 | $0 | $221,488 | $221,488 |
| 2019 | $84,866 | $150,000 | $0 | $234,866 | $234,866 |
| 2018 | $85,211 | $130,000 | $0 | $215,211 | $215,211 |
| 2017 | $70,441 | $110,000 | $0 | $180,441 | $180,441 |
| 2016 | $71,795 | $90,000 | $0 | $161,795 | $161,795 |
| 2015 | $73,149 | $70,000 | $0 | $143,149 | $143,149 |
| 2014 | $74,503 | $55,000 | $0 | $129,503 | $129,503 |
| 2013 | $75,859 | $55,000 | $0 | $130,859 | $130,859 |
| 2012 | $77,214 | $65,000 | $0 | $142,214 | $142,214 |
| 2011 | $76,144 | $50,000 | $0 | $126,144 | $126,144 |
| 2010 | $82,339 | $50,000 | $0 | $132,339 | $132,339 |
| 2009 | $86,258 | $66,400 | $0 | $152,658 | $152,658 |
| 2008 | $87,684 | $80,000 | $0 | $167,684 | $167,684 |
| 2007 | $89,110 | $80,000 | $0 | $169,110 | $169,110 |
Deed and Sales History
| 1 | 11/12/2020 | QCD | Quit Claim Deed | STAPEL, DEBRA A | | | | | 46477 | 4507297 |
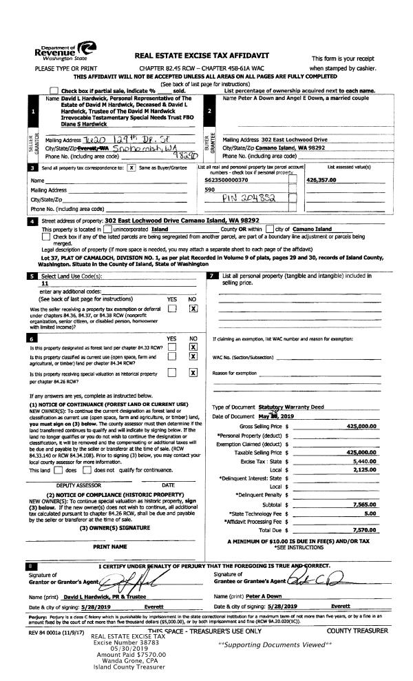
| 2 | 05/22/2019 | PRD | Personal Representatives Deed | STAPEL, RICHARD L / DEBRA & | STAPEL, DEBRA A | | | $0.00 | 38752 | 4464397 |
| 3 | 06/24/1998 | QCD | Quit Claim Deed | STAPEL, RICHARD L/DEBRA & | STAPEL, RICHARD L/DEBRA & | | | $0.00 | 82457 | 98012778 |
| 4 | 06/15/1998 | QCD | Quit Claim Deed | STAPEL, RICHARD L | STAPEL, RICHARD L/DEBRA & | | | $0.00 | 82290 | 98011927 |
| 5 | 12/01/1994 | QCD | Quit Claim Deed | SMITH, KENNETH | STAPEL, RICHARD L | | | $0.00 | 45057 | 94025772 |
| 6 | 02/01/1982 | WD | Warranty Deed | O'NEIL, BRIAN W | SMITH, KENNETH | | | $38,000.00 | 20363 | 393155 |
| 7 | 01/01/1900 | OTHER | Other - Misc. Documents | Unknown | STAPEL, RICHARD L | | | $0.00 | 82290 | 98011927 |
| 8 | 01/01/1900 | OTHER | Other - Misc. Documents | STAPEL, RICHARD L | STAPEL, RICHARD L | | | $0.00 | 82457 | 98012778 |
| 9 | 01/01/1900 | OTHER | Other - Misc. Documents | STAPEL, RICHARD L | O'NEIL, BRIAN W | | | $0.00 | 0 | 0 |
Payout Agreement
| No payout information available.. |