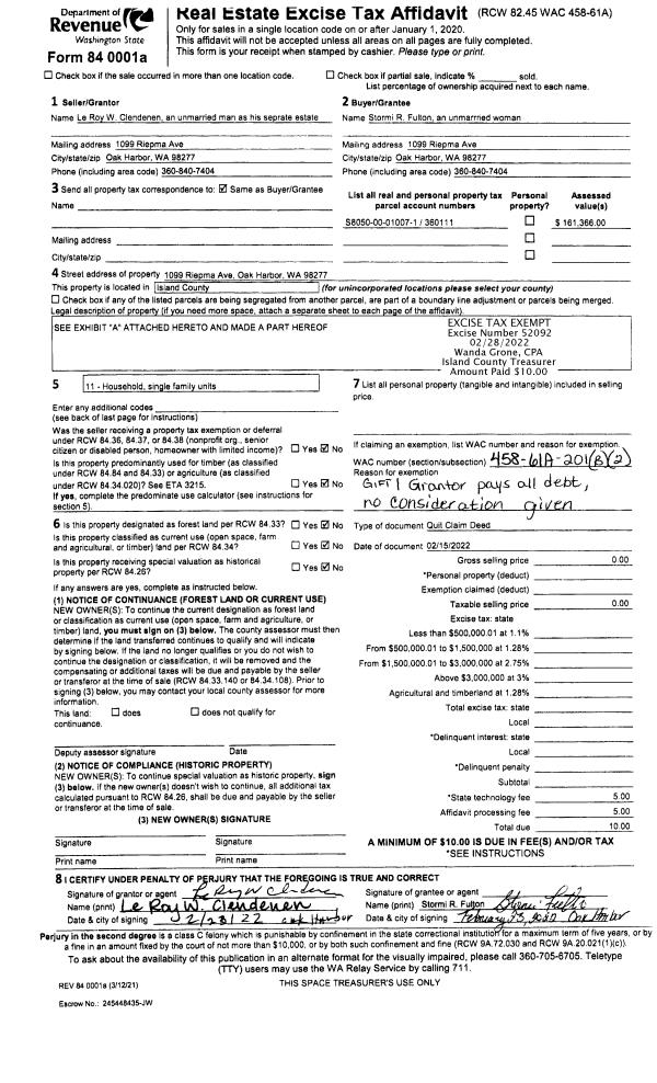
Property
Account |
| Property ID: | 413626 | Abbreviated Legal Description: | TYEE BCH LOTS 12 & 12A |
| Geographic ID: | S8330-00-00012-0 | Agent Code: | |
| Type: | Real | | |
| Tax Area: | 540 - APPRAISER-Stan/Cam Schl Dist, Special Dist, improved & less than 1 acre | Land Use Code | 11 |
| Open Space: | N | DFL | N |
| Historic Property: | N | Remodel Property: | N |
| Multi-Family Redevelopment: | N | | |
| Township: | | Section: | |
| Range: | |
Location |
| Address: | 3244 SHORELINE DR CAMANO ISLAND, WA 98282 | Mapsco: | |
| Neighborhood: | 58RecamWF-East Cam | Map ID: | 872 |
| Neighborhood CD: | 58RecamWF |
Owner |
| Name: | SWENSON, JEFF | Owner ID: | 68125 |
| Mailing Address: | CAROLE ANN SWENSON 3244 SHORELINE DR CAMANO ISLAND, WA 98282 | % Ownership: | 100.0000000000% |
| | | Exemptions: | |
Taxes and Assessment Details
Values
| (+) Improvement Homesite Value: | + | $0 | |
| (+) Improvement Non-Homesite Value: | + | $706,902 | |
| (+) Land Homesite Value: | + | $0 | |
| (+) Land Non-Homesite Value: | + | $725,800 | |
| (+) Curr Use (HS): | + | $0 | $0 |
| (+) Curr Use (NHS): | + | $0 | $0 |
| | | -------------------------- | |
| (=) Market Value: | = | $1,432,702 | |
| (–) Productivity Loss: | – | $0 | |
| | | -------------------------- | |
| (=) Subtotal: | = | $1,432,702 | |
| (+) Senior Appraised Value: | + | $0 | |
| (+) Non-Senior Appraised Value: | + | $1,432,702 | |
| | | -------------------------- | |
| (=) Total Appraised Value: | = | $1,432,702 | |
| (–) Senior Exemption Loss: | – | $0 | |
| (–) Exemption Loss: | – | $0 | |
| | | -------------------------- | |
| (=) Taxable Value: | = | $1,432,702 | |
Taxing Jurisdiction
| Owner: | SWENSON, JEFF | | |
| % Ownership: | 100.0000000000% | | |
| Total Value: | $1,432,702 | | |
| Tax Area: | 540 - APPRAISER-Stan/Cam Schl Dist, Special Dist, improved & less than 1 acre |
| CF | Conservation Futures | 0.0316035091 | $1,432,702 | $1,432,702 | $45.28 | | |
| EMS1 | Fire & Rescue Dist #1 Camano GEN (EMS) | 0.3677864386 | $1,432,702 | $1,432,702 | $526.93 | | |
| FIRE1 | Fire & Rescue Dist #1 Camano GEN | 1.2502910536 | $1,432,702 | $1,432,702 | $1,791.29 | | |
| FIRE1BOND | Fire & Rescue Dist #1 Camano BOND | 0.1570001679 | $1,432,702 | $1,432,702 | $224.93 | | |
| CE | County Current Expense | 0.3708482477 | $1,432,702 | $1,432,702 | $531.32 | | |
| CR | County Roads | 0.4584763726 | $1,432,702 | $1,432,702 | $656.86 | | |
| LCIB | Library Sno-Isle BOND (Camano Island) | 0.0396325772 | $1,432,702 | $1,432,702 | $56.78 | | |
| LIB | Library Sno-Isle GEN | 0.3153421757 | $1,432,702 | $1,432,702 | $451.79 | | |
| SCH205_401 | School 205-401 Enrichment | 1.2698420524 | $1,432,702 | $1,432,702 | $1,819.31 | | |
| SCH205BOND | School 205-401 BOND | 0.9396497583 | $1,432,702 | $1,432,702 | $1,346.24 | | |
| ST | State School | 1.3035497053 | $1,432,702 | $1,432,702 | $1,867.60 | | |
| ST2 | State School Part 2 | 0.8169543533 | $1,432,702 | $1,432,702 | $1,170.45 | | |
| | Total Tax Rate: | 7.3209764117 | | | | | |
| | | | | Taxes w/Current Exemptions: | $10,488.78 | | |
| | | | | Taxes w/o Exemptions: | $10,488.78 | | |
Improvement / Building
| Improvement #1: | RESIDENTIAL | State Code: | Y | 3129.5 sqft | Value: | $706,902 |
| Bathrooms: | 3.5 | Bedrooms: | 4 | | Ceiling: | DRYWALL PAINTED | Exterior Wall/Cover: | CEMENT FIBER | | Floor Covering: | HARDWOOD/CARP 60-40 | Floor Structure: | WOOD W/SUBFLOOR | | Foundation: | CONCRETE | Heating: | FHA GAS | | Interior Finish: | DRYWALL PAINT | Plumbing Fixture Cnt: | 20 | | Roof Slope: | 10" IN 12" | Roof Structure/Cover: | CJ ASPHALT |
|
| | Type | Description | Class CD | Sub Class CD | Year Built | Area |
| | BAS | BASE/MAIN FLOOR | 5 | 0 | 2004 | 1700.0 |
| | OP4 | OPEN PORCH W/CEILING-ROOF | 5 | 0 | 2004 | 130.0 |
| | BIG | BUILT IN GARAGE | 5 | 0 | 2004 | 680.0 |
| | UPS | UPPER STORY | 5 | 0 | 2004 | 493.5 |
| | OWC | OPEN WOOD PORCH W/STEPS/ROOF/C | 5 | 0 | 2004 | 130.0 |
| | BAW | BALCONY WOOD RAIL | 5 | 0 | 2004 | 84.0 |
| | DWN | DOWNSTAIRS LIVING AREA | 5 | 0 | 2004 | 936.0 |
| | OP1 | OPEN PORCH SLAB | 5 | 0 | 2004 | 206.5 |
Sketch
Property Image
Land
| 1 | LB | LOW BANK | 0.6100 | 26571.60 | 80.00 | 0.00 | 1.00 | $725,000 | $0 |
| 2 | 55 | TIDES | 0.0000 | 0.00 | 80.00 | 0.00 | 1.00 | $800 | $0 |
Roll Value History
| 2026 | N/A | N/A | N/A | N/A | N/A |
| 2025 | $706,902 | $725,800 | $0 | $1,432,702 | $1,432,702 |
| 2024 | $715,005 | $725,800 | $0 | $1,440,805 | $1,440,805 |
| 2023 | $723,109 | $725,800 | $0 | $1,448,909 | $1,448,909 |
| 2022 | $660,289 | $700,800 | $0 | $1,361,089 | $1,361,089 |
| 2021 | $556,610 | $550,800 | $0 | $1,107,410 | $1,107,410 |
| 2020 | $541,025 | $450,800 | $0 | $991,825 | $991,825 |
| 2019 | $450,525 | $500,800 | $0 | $951,325 | $951,325 |
| 2018 | $521,876 | $500,800 | $0 | $1,022,676 | $1,022,676 |
| 2017 | $521,876 | $300,800 | $0 | $822,676 | $822,676 |
| 2016 | $521,876 | $250,800 | $0 | $772,676 | $772,676 |
| 2015 | $521,876 | $250,800 | $0 | $772,676 | $772,676 |
| 2014 | $527,807 | $250,800 | $0 | $778,607 | $778,607 |
| 2013 | $533,739 | $200,269 | $0 | $734,008 | $734,008 |
| 2012 | $539,667 | $200,269 | $0 | $739,936 | $739,936 |
| 2011 | $545,596 | $250,136 | $0 | $795,732 | $795,732 |
| 2010 | $546,742 | $250,136 | $0 | $796,878 | $796,878 |
| 2009 | $575,459 | $268,171 | $0 | $843,630 | $843,630 |
| 2008 | $575,861 | $268,171 | $0 | $844,032 | $844,032 |
| 2007 | $582,108 | $267,611 | $0 | $849,719 | $849,719 |
Deed and Sales History
| 1 | 06/21/2005 | QCD | Quit Claim Deed | SWENSON, JEFF | SWENSON, JEFF | | | $214,000.00 | 52956 | 4138616 |
| 2 | 12/31/2003 | QCD | Quit Claim Deed | BUILDERS INC, NW | SWENSON, JEFF | | | $0.00 | 40153 | 4088481 |
| 3 | 08/28/2003 | WD | Warranty Deed | BARTELHEIMER, LILLIAN J | BUILDERS INC, NW | | | $115,000.00 | 33838 | 4073093 |
| 4 | 12/01/1991 | WD | Warranty Deed | BARTELHEIMER, LILLIAN J | BARTELHEIMER, LILLIAN J | | | $98,500.00 | 14521 | 91019820 |
| 5 | 12/01/1991 | QCD | Quit Claim Deed | COLEMAN, HOPE V | BARTELHEIMER, LILLIAN J | | | $0.00 | 14522 | 91019821 |
| 6 | 07/01/1982 | TRUSTEED | Trustee's Deed | JAT, CORPORATION | COLEMAN, HOPE V | | | $52,000.00 | 21723 | 398546 |
| 7 | 12/01/1981 | CD | DNU - Correction Deed | LEISHMAN, GILBERT H | JAT, CORPORATION | | | $0.00 | 13897 | 391588 |
| 8 | 09/01/1980 | EXECUTORD | Executor Deed | OCONNER, MICHEAL P | LEISHMAN, GILBERT H | | | $30,000.00 | 3244 | 374315 |
| 9 | 01/01/1900 | OTHER | Other - Misc. Documents | Unknown | OCONNER, MICHEAL P | | | $0.00 | 0 | 0 |
Payout Agreement
| No payout information available.. |