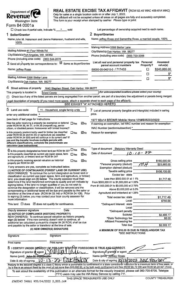
Property
Account |
| Property ID: | 413680 | Abbreviated Legal Description: | TYEE BCH 1 LOT 18 & 18A |
| Geographic ID: | S8330-00-00018-0 | Agent Code: | |
| Type: | Real | | |
| Tax Area: | 540 - APPRAISER-Stan/Cam Schl Dist, Special Dist, improved & less than 1 acre | Land Use Code | 11 |
| Open Space: | N | DFL | N |
| Historic Property: | N | Remodel Property: | N |
| Multi-Family Redevelopment: | N | | |
| Township: | | Section: | |
| Range: | |
Location |
| Address: | 3269 SHORELINE DR CAMANO ISLAND, WA 98282 | Mapsco: | |
| Neighborhood: | 58RecamWF-East Cam | Map ID: | 872 |
| Neighborhood CD: | 58RecamWF |
Owner |
| Name: | CAVANAUGH, JOHN M | Owner ID: | 149401 |
| Mailing Address: | LINDA J EVANS 3269 SHORELINE DR CAMANO ISLAND, WA 98282-7046 | % Ownership: | 100.0000000000% |
| | | Exemptions: | |
Taxes and Assessment Details
Values
| (+) Improvement Homesite Value: | + | $0 | |
| (+) Improvement Non-Homesite Value: | + | $545,450 | |
| (+) Land Homesite Value: | + | $0 | |
| (+) Land Non-Homesite Value: | + | $725,800 | |
| (+) Curr Use (HS): | + | $0 | $0 |
| (+) Curr Use (NHS): | + | $0 | $0 |
| | | -------------------------- | |
| (=) Market Value: | = | $1,271,250 | |
| (–) Productivity Loss: | – | $0 | |
| | | -------------------------- | |
| (=) Subtotal: | = | $1,271,250 | |
| (+) Senior Appraised Value: | + | $0 | |
| (+) Non-Senior Appraised Value: | + | $1,271,250 | |
| | | -------------------------- | |
| (=) Total Appraised Value: | = | $1,271,250 | |
| (–) Senior Exemption Loss: | – | $0 | |
| (–) Exemption Loss: | – | $0 | |
| | | -------------------------- | |
| (=) Taxable Value: | = | $1,271,250 | |
Taxing Jurisdiction
| Owner: | CAVANAUGH, JOHN M | | |
| % Ownership: | 100.0000000000% | | |
| Total Value: | $1,271,250 | | |
| Tax Area: | 540 - APPRAISER-Stan/Cam Schl Dist, Special Dist, improved & less than 1 acre |
| CF | Conservation Futures | 0.0316035091 | $1,271,250 | $1,271,250 | $40.18 | | |
| EMS1 | Fire & Rescue Dist #1 Camano GEN (EMS) | 0.3677864386 | $1,271,250 | $1,271,250 | $467.55 | | |
| FIRE1 | Fire & Rescue Dist #1 Camano GEN | 1.2502910536 | $1,271,250 | $1,271,250 | $1,589.43 | | |
| FIRE1BOND | Fire & Rescue Dist #1 Camano BOND | 0.1570001679 | $1,271,250 | $1,271,250 | $199.59 | | |
| CE | County Current Expense | 0.3708482477 | $1,271,250 | $1,271,250 | $471.44 | | |
| CR | County Roads | 0.4584763726 | $1,271,250 | $1,271,250 | $582.84 | | |
| LCIB | Library Sno-Isle BOND (Camano Island) | 0.0396325772 | $1,271,250 | $1,271,250 | $50.38 | | |
| LIB | Library Sno-Isle GEN | 0.3153421757 | $1,271,250 | $1,271,250 | $400.88 | | |
| SCH205_401 | School 205-401 Enrichment | 1.2698420524 | $1,271,250 | $1,271,250 | $1,614.29 | | |
| SCH205BOND | School 205-401 BOND | 0.9396497583 | $1,271,250 | $1,271,250 | $1,194.53 | | |
| ST | State School | 1.3035497053 | $1,271,250 | $1,271,250 | $1,657.14 | | |
| ST2 | State School Part 2 | 0.8169543533 | $1,271,250 | $1,271,250 | $1,038.55 | | |
| | Total Tax Rate: | 7.3209764117 | | | | | |
| | | | | Taxes w/Current Exemptions: | $9,306.80 | | |
| | | | | Taxes w/o Exemptions: | $9,306.80 | | |
Improvement / Building
| Improvement #1: | RESIDENTIAL | State Code: | Y | 1454.0 sqft | Value: | $545,450 |
| Bathrooms: | 2.5 | Bedrooms: | 2 | | Ceiling: | BEAM PAINTED | Exterior Wall/Cover: | CEMENT FIBER | | Floor Covering: | CERAMIC TILE/HWD 40/60 | Floor Structure: | WOOD W/SUBFLOOR | | Foundation: | CONCRETE | Heating: | RADIANT FLOOR | | Interior Finish: | DRYWALL PAINT | Plumbing Fixture Cnt: | 12 | | Roof Slope: | 4" IN 12" | Roof Structure/Cover: | BEAM ALUMINUM HEAVY |
|
| | Type | Description | Class CD | Sub Class CD | Year Built | Area |
| | BAS | BASE/MAIN FLOOR | 5 | 0 | 2011 | 782.0 |
| | OWP | OPEN WOOD PORCH W/STEPS | 5 | 0 | 2011 | 745.5 |
| | UPS | UPPER STORY | 5 | 0 | 2011 | 672.0 |
| | DGR | DETACHED GARAGE | 5 | 0 | 2011 | 1044.0 |
| | UTY | STORAGE/UTILITY | 5 | 0 | 2011 | 140.0 |
Sketch
Property Image
Land
| 1 | LB | LOW BANK | 0.0000 | 0.00 | 80.00 | 0.00 | 1.00 | $725,000 | $0 |
| 2 | 55 | TIDES | 0.0000 | 0.00 | 80.00 | 0.00 | 1.00 | $800 | $0 |
Roll Value History
| 2026 | N/A | N/A | N/A | N/A | N/A |
| 2025 | $545,450 | $725,800 | $0 | $1,271,250 | $1,271,250 |
| 2024 | $543,397 | $725,800 | $0 | $1,269,197 | $1,269,197 |
| 2023 | $547,587 | $725,800 | $0 | $1,273,387 | $1,273,387 |
| 2022 | $499,917 | $700,800 | $0 | $1,200,717 | $1,200,717 |
| 2021 | $408,575 | $550,800 | $0 | $959,375 | $959,375 |
| 2020 | $376,344 | $450,800 | $0 | $827,144 | $827,144 |
| 2019 | $278,947 | $500,800 | $0 | $779,747 | $779,747 |
| 2018 | $264,887 | $500,800 | $0 | $765,687 | $765,687 |
| 2017 | $266,289 | $300,800 | $0 | $567,089 | $567,089 |
| 2016 | $269,093 | $250,800 | $0 | $519,893 | $519,893 |
| 2015 | $233,387 | $250,800 | $0 | $484,187 | $484,187 |
| 2014 | $235,658 | $250,800 | $0 | $486,458 | $486,458 |
| 2013 | $237,927 | $200,269 | $0 | $438,196 | $438,196 |
| 2012 | $240,198 | $200,269 | $0 | $440,467 | $440,467 |
| 2011 | $77,016 | $250,136 | $0 | $327,152 | $327,152 |
| 2010 | $121,411 | $250,136 | $0 | $371,547 | $371,547 |
| 2009 | $123,204 | $268,171 | $0 | $391,375 | $391,375 |
| 2008 | $124,990 | $268,171 | $0 | $393,161 | $393,161 |
| 2007 | $125,525 | $267,611 | $0 | $393,136 | $393,136 |
Deed and Sales History
| 1 | 07/11/2003 | WD | Warranty Deed | ARNETT, DOUGLAS B | CAVANAUGH, JOHN M | | | $329,000.00 | 33057 | 4066938 |
| 2 | 09/06/2001 | QCD | Quit Claim Deed | CHRISTIE, LENEE M | ARNETT, DOUGLAS B | | | $0.00 | 13499 | 20042564 |
| 3 | 10/01/1997 | WD | Warranty Deed | PEISTRUP, GARNARD T | CHRISTIE, LENEE M | | | $200,000.00 | 73768 | 97018007 |
| 4 | 08/01/1991 | WD | Warranty Deed | Unknown | PEISTRUP, GARNARD T | | | $0.00 | 12981 | 91012641 |
Payout Agreement
| No payout information available.. |