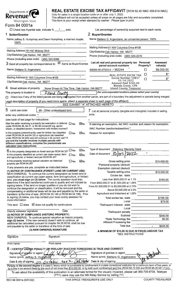
Property
Account |
| Property ID: | 413724 | Abbreviated Legal Description: | TYEE BCH 1 LOTS 21 & 21A EX NWLY 10' |
| Geographic ID: | S8330-00-00021-2 | Agent Code: | |
| Type: | Real | | |
| Tax Area: | 540 - APPRAISER-Stan/Cam Schl Dist, Special Dist, improved & less than 1 acre | Land Use Code | 11 |
| Open Space: | N | DFL | N |
| Historic Property: | N | Remodel Property: | N |
| Multi-Family Redevelopment: | N | | |
| Township: | | Section: | |
| Range: | |
Location |
| Address: | 3281 SHORELINE DR CAMANO ISLAND, WA 98282 | Mapsco: | |
| Neighborhood: | 58RecamWF-East Cam | Map ID: | 872 |
| Neighborhood CD: | 58RecamWF |
Owner |
| Name: | ANDREW, LYNN J | Owner ID: | 68135 |
| Mailing Address: | PHYLLIS J ANDREW PO BOX 1001 STANWOOD, WA 98292 | % Ownership: | 100.0000000000% |
| | | Exemptions: | |
Taxes and Assessment Details
Values
| (+) Improvement Homesite Value: | + | $0 | |
| (+) Improvement Non-Homesite Value: | + | $267,568 | |
| (+) Land Homesite Value: | + | $0 | |
| (+) Land Non-Homesite Value: | + | $725,700 | |
| (+) Curr Use (HS): | + | $0 | $0 |
| (+) Curr Use (NHS): | + | $0 | $0 |
| | | -------------------------- | |
| (=) Market Value: | = | $993,268 | |
| (–) Productivity Loss: | – | $0 | |
| | | -------------------------- | |
| (=) Subtotal: | = | $993,268 | |
| (+) Senior Appraised Value: | + | $0 | |
| (+) Non-Senior Appraised Value: | + | $993,268 | |
| | | -------------------------- | |
| (=) Total Appraised Value: | = | $993,268 | |
| (–) Senior Exemption Loss: | – | $0 | |
| (–) Exemption Loss: | – | $0 | |
| | | -------------------------- | |
| (=) Taxable Value: | = | $993,268 | |
Taxing Jurisdiction
| Owner: | ANDREW, LYNN J | | |
| % Ownership: | 100.0000000000% | | |
| Total Value: | $993,268 | | |
| Tax Area: | 540 - APPRAISER-Stan/Cam Schl Dist, Special Dist, improved & less than 1 acre |
| CF | Conservation Futures | 0.0316035091 | $993,268 | $993,268 | $31.39 | | |
| EMS1 | Fire & Rescue Dist #1 Camano GEN (EMS) | 0.3677864386 | $993,268 | $993,268 | $365.31 | | |
| FIRE1 | Fire & Rescue Dist #1 Camano GEN | 1.2502910536 | $993,268 | $993,268 | $1,241.87 | | |
| FIRE1BOND | Fire & Rescue Dist #1 Camano BOND | 0.1570001679 | $993,268 | $993,268 | $155.94 | | |
| CE | County Current Expense | 0.3708482477 | $993,268 | $993,268 | $368.35 | | |
| CR | County Roads | 0.4584763726 | $993,268 | $993,268 | $455.39 | | |
| LCIB | Library Sno-Isle BOND (Camano Island) | 0.0396325772 | $993,268 | $993,268 | $39.37 | | |
| LIB | Library Sno-Isle GEN | 0.3153421757 | $993,268 | $993,268 | $313.22 | | |
| SCH205_401 | School 205-401 Enrichment | 1.2698420524 | $993,268 | $993,268 | $1,261.29 | | |
| SCH205BOND | School 205-401 BOND | 0.9396497583 | $993,268 | $993,268 | $933.32 | | |
| ST | State School | 1.3035497053 | $993,268 | $993,268 | $1,294.77 | | |
| ST2 | State School Part 2 | 0.8169543533 | $993,268 | $993,268 | $811.45 | | |
| | Total Tax Rate: | 7.3209764117 | | | | | |
| | | | | Taxes w/Current Exemptions: | $7,271.67 | | |
| | | | | Taxes w/o Exemptions: | $7,271.67 | | |
Improvement / Building
| Improvement #1: | RESIDENTIAL | State Code: | Y | 1272.0 sqft | Value: | $267,568 |
| Bathrooms: | 1 | Bedrooms: | 1 | | Ceiling: | DRYWALL PAINTED | Exterior Wall/Cover: | CEMENT FIBER | | Floor Covering: | HARDWOOD 100% | Floor Structure: | WOOD W/SUBFLOOR | | Foundation: | CONCRETE | Interior Finish: | DRYWALL PAINT | | Plumbing Fixture Cnt: | 5 | Roof Slope: | 10" IN 12" | | Roof Structure/Cover: | CJ ASPHALT |   |   |
|
| | Type | Description | Class CD | Sub Class CD | Year Built | Area |
| | BAS | BASE/MAIN FLOOR | 4 | 0 | 2003 | 1008.0 |
| | LOF | LOFT | 4 | 0 | 2003 | 264.0 |
| | OWP | OPEN WOOD PORCH W/STEPS | 4 | 0 | 2018 | 15.0 |
| | OWP | OPEN WOOD PORCH W/STEPS | 4 | 0 | 2018 | 27.0 |
| | OWP | OPEN WOOD PORCH W/STEPS | 4 | 0 | 2003 | 60.0 |
| | UTY | STORAGE/UTILITY | 4 | 0 | 2003 | 100.0 |
Sketch
Property Image
Land
| 1 | LB | LOW BANK | 0.7600 | 33105.60 | 70.00 | 0.00 | 1.00 | $725,000 | $0 |
| 2 | 55 | TIDES | 0.0000 | 0.00 | 70.00 | 0.00 | 1.00 | $700 | $0 |
Roll Value History
| 2026 | N/A | N/A | N/A | N/A | N/A |
| 2025 | $267,568 | $725,700 | $0 | $993,268 | $993,268 |
| 2024 | $270,635 | $725,700 | $0 | $996,335 | $996,335 |
| 2023 | $273,701 | $725,700 | $0 | $999,401 | $999,401 |
| 2022 | $249,920 | $700,700 | $0 | $950,620 | $950,620 |
| 2021 | $204,412 | $550,700 | $0 | $755,112 | $755,112 |
| 2020 | $198,115 | $450,700 | $0 | $648,815 | $648,815 |
| 2019 | $142,803 | $500,700 | $0 | $643,503 | $643,503 |
| 2018 | $143,194 | $500,700 | $0 | $643,894 | $643,894 |
| 2017 | $71,218 | $300,700 | $0 | $371,918 | $371,918 |
| 2016 | $72,036 | $250,700 | $0 | $322,736 | $322,736 |
| 2015 | $65,239 | $250,700 | $0 | $315,939 | $315,939 |
| 2014 | $65,899 | $220,700 | $0 | $286,599 | $286,599 |
| 2013 | $68,207 | $178,871 | $0 | $247,078 | $247,078 |
| 2012 | $68,866 | $178,871 | $0 | $247,737 | $247,737 |
| 2011 | $69,526 | $223,414 | $0 | $292,940 | $292,940 |
| 2010 | $69,436 | $223,414 | $0 | $292,850 | $292,850 |
| 2009 | $72,018 | $239,524 | $0 | $311,542 | $311,542 |
| 2008 | $73,607 | $239,524 | $0 | $313,131 | $313,131 |
| 2007 | $73,773 | $239,034 | $0 | $312,807 | $312,807 |
Deed and Sales History
| 1 | 08/23/2006 | 5 | DNU - Marriage License/Name Change | ANDREW, PHYLLIS J | ANDREW, LYNN J | | | $0.00 | 63752 | 4180504 |
| 2 | 04/01/1997 | OTHER | Other - Misc. Documents | DURIE, DUDLEY C | ANDREW, PHYLLIS J | | | $0.00 | 67359 | 0 |
| 3 | 03/01/1996 | QCD | Quit Claim Deed | DURIE, DUDLEY C | DURIE, DUDLEY C | | | $0.00 | 61337 | 96006814 |
| 4 | 06/01/1989 | QCD | Quit Claim Deed | Unknown | DURIE, DUDLEY C | | | $0.00 | 92430 | 89008342 |
Payout Agreement
| No payout information available.. |