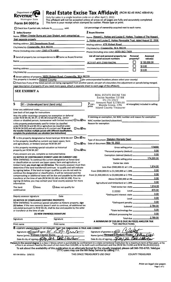
Property
Account |
| Property ID: | 413966 | Abbreviated Legal Description: | TYEE BCH 1 NELY 100' OF LOT 37 & ALL LOT 37A |
| Geographic ID: | S8330-00-00037-1 | Agent Code: | |
| Type: | Real | | |
| Tax Area: | 540 - APPRAISER-Stan/Cam Schl Dist, Special Dist, improved & less than 1 acre | Land Use Code | 11 |
| Open Space: | N | DFL | N |
| Historic Property: | N | Remodel Property: | N |
| Multi-Family Redevelopment: | N | | |
| Township: | | Section: | |
| Range: | |
Location |
| Address: | 3355 SHORELINE DR CAMANO ISLAND, WA 98282 | Mapsco: | |
| Neighborhood: | 58RecamWF-East Cam | Map ID: | 872 |
| Neighborhood CD: | 58RecamWF |
Owner |
| Name: | CHESSEN, BRUCE L | Owner ID: | 252639 |
| Mailing Address: | KAREN L CHESSEN 3355 SHORELINE DR CAMANO IS, WA 98282 | % Ownership: | 100.0000000000% |
| | | Exemptions: | |
Taxes and Assessment Details
Values
| (+) Improvement Homesite Value: | + | $0 | |
| (+) Improvement Non-Homesite Value: | + | $235,445 | |
| (+) Land Homesite Value: | + | $0 | |
| (+) Land Non-Homesite Value: | + | $725,800 | |
| (+) Curr Use (HS): | + | $0 | $0 |
| (+) Curr Use (NHS): | + | $0 | $0 |
| | | -------------------------- | |
| (=) Market Value: | = | $961,245 | |
| (–) Productivity Loss: | – | $0 | |
| | | -------------------------- | |
| (=) Subtotal: | = | $961,245 | |
| (+) Senior Appraised Value: | + | $0 | |
| (+) Non-Senior Appraised Value: | + | $961,245 | |
| | | -------------------------- | |
| (=) Total Appraised Value: | = | $961,245 | |
| (–) Senior Exemption Loss: | – | $0 | |
| (–) Exemption Loss: | – | $0 | |
| | | -------------------------- | |
| (=) Taxable Value: | = | $961,245 | |
Taxing Jurisdiction
| Owner: | CHESSEN, BRUCE L | | |
| % Ownership: | 100.0000000000% | | |
| Total Value: | $961,245 | | |
| Tax Area: | 540 - APPRAISER-Stan/Cam Schl Dist, Special Dist, improved & less than 1 acre |
| CF | Conservation Futures | 0.0316035091 | $961,245 | $961,245 | $30.38 | | |
| EMS1 | Fire & Rescue Dist #1 Camano GEN (EMS) | 0.3677864386 | $961,245 | $961,245 | $353.53 | | |
| FIRE1 | Fire & Rescue Dist #1 Camano GEN | 1.2502910536 | $961,245 | $961,245 | $1,201.84 | | |
| FIRE1BOND | Fire & Rescue Dist #1 Camano BOND | 0.1570001679 | $961,245 | $961,245 | $150.92 | | |
| CE | County Current Expense | 0.3708482477 | $961,245 | $961,245 | $356.48 | | |
| CR | County Roads | 0.4584763726 | $961,245 | $961,245 | $440.71 | | |
| LCIB | Library Sno-Isle BOND (Camano Island) | 0.0396325772 | $961,245 | $961,245 | $38.10 | | |
| LIB | Library Sno-Isle GEN | 0.3153421757 | $961,245 | $961,245 | $303.12 | | |
| SCH205_401 | School 205-401 Enrichment | 1.2698420524 | $961,245 | $961,245 | $1,220.63 | | |
| SCH205BOND | School 205-401 BOND | 0.9396497583 | $961,245 | $961,245 | $903.23 | | |
| ST | State School | 1.3035497053 | $961,245 | $961,245 | $1,253.03 | | |
| ST2 | State School Part 2 | 0.8169543533 | $961,245 | $961,245 | $785.29 | | |
| | Total Tax Rate: | 7.3209764117 | | | | | |
| | | | | Taxes w/Current Exemptions: | $7,037.26 | | |
| | | | | Taxes w/o Exemptions: | $7,037.26 | | |
Improvement / Building
| Improvement #1: | RESIDENTIAL | State Code: | Y | 1001.0 sqft | Value: | $235,445 |
| Bathrooms: | 2 | Bedrooms: | 2 | | Ceiling: | DRYWALL PAINTED | Exterior Wall/Cover: | CEMENT FIBER | | Floor Covering: | TILE CERAMIC | Floor Structure: | WOOD W/SUBFLOOR | | Foundation: | CONCRETE | Heating: | WALL HEAT ELECTRIC | | Interior Finish: | DRYWALL PAINT | Plumbing Fixture Cnt: | 9 | | Roof Slope: | 5" IN 12" | Roof Structure/Cover: | CJ ALUMINIUM HEAVY |
|
| | Type | Description | Class CD | Sub Class CD | Year Built | Area |
| | BAS | BASE/MAIN FLOOR | 3 | 0 | 1977 | 560.0 |
| | UPS | UPPER STORY | 3 | 0 | 1977 | 441.0 |
| | OWP | OPEN WOOD PORCH W/STEPS | 3 | 0 | 1977 | 464.4 |
Sketch
Property Image
Land
| 1 | LB | LOW BANK | 0.0000 | 0.00 | 80.00 | 0.00 | 1.00 | $725,000 | $0 |
| 2 | 55 | TIDES | 0.0000 | 0.00 | 80.00 | 0.00 | 1.00 | $800 | $0 |
Roll Value History
| 2026 | N/A | N/A | N/A | N/A | N/A |
| 2025 | $235,445 | $725,800 | $0 | $961,245 | $961,245 |
| 2024 | $238,207 | $725,800 | $0 | $964,007 | $964,007 |
| 2023 | $240,969 | $725,800 | $0 | $966,769 | $966,769 |
| 2022 | $220,704 | $700,800 | $0 | $921,504 | $921,504 |
| 2021 | $197,405 | $550,800 | $0 | $748,205 | $748,205 |
| 2020 | $191,775 | $450,800 | $0 | $642,575 | $642,575 |
| 2019 | $135,703 | $500,800 | $0 | $636,503 | $636,503 |
| 2018 | $136,083 | $500,800 | $0 | $636,883 | $636,883 |
| 2017 | $136,845 | $300,800 | $0 | $437,645 | $437,645 |
| 2016 | $138,365 | $250,800 | $0 | $389,165 | $389,165 |
| 2015 | $134,675 | $250,800 | $0 | $385,475 | $385,475 |
| 2014 | $136,139 | $250,800 | $0 | $386,939 | $386,939 |
| 2013 | $106,878 | $200,269 | $0 | $307,147 | $307,147 |
| 2012 | $97,584 | $200,269 | $0 | $297,853 | $297,853 |
| 2011 | $98,813 | $250,136 | $0 | $348,949 | $348,949 |
| 2010 | $102,632 | $250,136 | $0 | $352,768 | $352,768 |
| 2009 | $104,879 | $268,171 | $0 | $373,050 | $373,050 |
| 2008 | $106,122 | $268,171 | $0 | $374,293 | $374,293 |
| 2007 | $107,362 | $267,611 | $0 | $374,973 | $374,973 |
Deed and Sales History
| 1 | 11/01/2010 | WD | Warranty Deed | DURHAM, CHERYL | CHESSEN, BRUCE L | | | $420,000.00 | 2835 | 4284563 |
| 2 | 10/06/1999 | WD | Warranty Deed | AUNE, VERNON H | DURHAM, CHERYL | | | $250,000.00 | 94261 | 99023357 |
| 3 | 09/01/1985 | WD | Warranty Deed | Unknown | AUNE, VERNON H | | | $20,000.00 | 52668 | 85010562 |
Payout Agreement
| No payout information available.. |