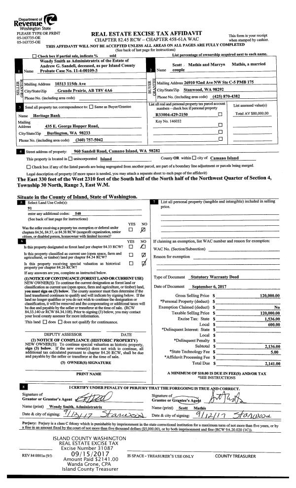
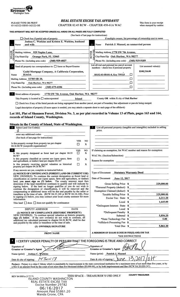
Property
Account |
| Property ID: | 414055 | Abbreviated Legal Description: | TYEE BCH 2 LOTS 6 & 6A DRAINFIELD LOC SWLY 50' OF LOT 7 AF#89003676 BOAT RAMP EZ AF#95003547 PT DRAINFIELD FOR LOT 7& 7A AF#95010044 |
| Geographic ID: | S8330-02-00006-0 | Agent Code: | |
| Type: | Real | | |
| Tax Area: | 540 - APPRAISER-Stan/Cam Schl Dist, Special Dist, improved & less than 1 acre | Land Use Code | 11 |
| Open Space: | N | DFL | N |
| Historic Property: | N | Remodel Property: | N |
| Multi-Family Redevelopment: | N | | |
| Township: | | Section: | |
| Range: | |
Location |
| Address: | 3173 SHORELINE DR CAMANO ISLAND, WA 98282 | Mapsco: | |
| Neighborhood: | 58RecamWF-East Cam | Map ID: | 867 |
| Neighborhood CD: | 58RecamWF |
Owner |
| Name: | BENNETT, MARK A | Owner ID: | 281412 |
| Mailing Address: | 6900 76TH DR NE MARYSVILLE, WA 98270 | % Ownership: | 100.0000000000% |
| | | Exemptions: | |
Taxes and Assessment Details
Values
| (+) Improvement Homesite Value: | + | $0 | |
| (+) Improvement Non-Homesite Value: | + | $218,032 | |
| (+) Land Homesite Value: | + | $0 | |
| (+) Land Non-Homesite Value: | + | $725,510 | |
| (+) Curr Use (HS): | + | $0 | $0 |
| (+) Curr Use (NHS): | + | $0 | $0 |
| | | -------------------------- | |
| (=) Market Value: | = | $943,542 | |
| (–) Productivity Loss: | – | $0 | |
| | | -------------------------- | |
| (=) Subtotal: | = | $943,542 | |
| (+) Senior Appraised Value: | + | $0 | |
| (+) Non-Senior Appraised Value: | + | $943,542 | |
| | | -------------------------- | |
| (=) Total Appraised Value: | = | $943,542 | |
| (–) Senior Exemption Loss: | – | $0 | |
| (–) Exemption Loss: | – | $0 | |
| | | -------------------------- | |
| (=) Taxable Value: | = | $943,542 | |
Taxing Jurisdiction
| Owner: | BENNETT, MARK A | | |
| % Ownership: | 100.0000000000% | | |
| Total Value: | $943,542 | | |
| Tax Area: | 540 - APPRAISER-Stan/Cam Schl Dist, Special Dist, improved & less than 1 acre |
| CF | Conservation Futures | 0.0316035091 | $943,542 | $943,542 | $29.82 | | |
| EMS1 | Fire & Rescue Dist #1 Camano GEN (EMS) | 0.3677864386 | $943,542 | $943,542 | $347.02 | | |
| FIRE1 | Fire & Rescue Dist #1 Camano GEN | 1.2502910536 | $943,542 | $943,542 | $1,179.70 | | |
| FIRE1BOND | Fire & Rescue Dist #1 Camano BOND | 0.1570001679 | $943,542 | $943,542 | $148.14 | | |
| CE | County Current Expense | 0.3708482477 | $943,542 | $943,542 | $349.91 | | |
| CR | County Roads | 0.4584763726 | $943,542 | $943,542 | $432.59 | | |
| LCIB | Library Sno-Isle BOND (Camano Island) | 0.0396325772 | $943,542 | $943,542 | $37.40 | | |
| LIB | Library Sno-Isle GEN | 0.3153421757 | $943,542 | $943,542 | $297.54 | | |
| SCH205_401 | School 205-401 Enrichment | 1.2698420524 | $943,542 | $943,542 | $1,198.15 | | |
| SCH205BOND | School 205-401 BOND | 0.9396497583 | $943,542 | $943,542 | $886.60 | | |
| ST | State School | 1.3035497053 | $943,542 | $943,542 | $1,229.95 | | |
| ST2 | State School Part 2 | 0.8169543533 | $943,542 | $943,542 | $770.83 | | |
| | Total Tax Rate: | 7.3209764117 | | | | | |
| | | | | Taxes w/Current Exemptions: | $6,907.65 | | |
| | | | | Taxes w/o Exemptions: | $6,907.65 | | |
Improvement / Building
| Improvement #1: | RESIDENTIAL | State Code: | Y | 1020.0 sqft | Value: | $218,032 |
| Bathrooms: | 2 | Bedrooms: | 0 | | Ceiling: | DRYWALL PAINTED | Exterior Wall/Cover: | WOOD SIDING | | Floor Covering: | HARDWOOD/CARP 20-80 | Floor Structure: | WOOD W/SUBFLOOR | | Foundation: | CONCRETE | Heating: | FHA GAS | | Interior Finish: | DRYWALL PAINT | Plumbing Fixture Cnt: | 9 | | Roof Slope: | 8" IN 12" | Roof Structure/Cover: | CJ ASPHALT |
|
| | Type | Description | Class CD | Sub Class CD | Year Built | Area |
| | BAS | BASE/MAIN FLOOR | 3 | 0 | 1989 | 1020.0 |
| | OWC | OPEN WOOD PORCH W/STEPS/ROOF/C | 3 | 0 | 1989 | 200.0 |
Sketch
Property Image
Land
| 1 | LB | LOW BANK | 0.4791 | 20869.60 | 50.00 | 0.00 | 1.00 | $725,000 | $0 |
| 2 | 55 | TIDES | 0.0000 | 0.00 | 50.00 | 0.00 | 1.00 | $500 | $0 |
| 3 | 54 | WASTE LAND | 0.0000 | 0.00 | 0.00 | 0.00 | 1.00 | $10 | $0 |
Roll Value History
| 2026 | N/A | N/A | N/A | N/A | N/A |
| 2025 | $218,032 | $725,510 | $0 | $943,542 | $943,542 |
| 2024 | $220,783 | $725,510 | $0 | $946,293 | $946,293 |
| 2023 | $223,535 | $725,510 | $0 | $949,045 | $949,045 |
| 2022 | $204,903 | $700,510 | $0 | $905,413 | $905,413 |
| 2021 | $171,659 | $550,510 | $0 | $722,169 | $722,169 |
| 2020 | $166,875 | $450,510 | $0 | $617,385 | $617,385 |
| 2019 | $117,779 | $500,510 | $0 | $618,289 | $618,289 |
| 2018 | $118,141 | $500,510 | $0 | $618,651 | $618,651 |
| 2017 | $118,824 | $380,510 | $0 | $499,334 | $499,334 |
| 2016 | $120,272 | $320,510 | $0 | $440,782 | $440,782 |
| 2015 | $116,413 | $300,510 | $0 | $416,923 | $416,923 |
| 2014 | $117,787 | $300,510 | $0 | $418,297 | $418,297 |
| 2013 | $119,161 | $266,711 | $0 | $385,872 | $385,872 |
| 2012 | $120,535 | $302,230 | $0 | $422,765 | $422,765 |
| 2011 | $121,909 | $377,660 | $0 | $499,569 | $499,569 |
| 2010 | $126,269 | $377,660 | $0 | $503,929 | $503,929 |
| 2009 | $128,653 | $406,304 | $0 | $534,957 | $534,957 |
| 2008 | $130,404 | $406,304 | $0 | $536,708 | $536,708 |
| 2007 | $132,177 | $405,954 | $0 | $538,131 | $538,131 |
Deed and Sales History
| 1 | 07/26/2017 | SEG | DNU - Segregation | BUTTRUM, CLAUDIA S | BENNETT, MARK A | | | $0.00 | 30627 | 4428139 |
| 2 | 07/25/2017 | PRD | Personal Representatives Deed | BUTTRUM, MEL A | BUTTRUM, CLAUDIA S | | | $0.00 | 30436 | 4427330 |
| 3 | 01/26/2010 | WD | Warranty Deed | STEENBERG, MICHAEL & | BUTTRUM, MEL A | | | $540,000.00 | 221 | 4267917 |
| 4 | 08/01/1996 | WD | Warranty Deed | RUNKEL, HENRY G | STEENBERG, MICHAEL & | | | $235,000.00 | 63204 | 96015666 |
| 5 | 06/01/1987 | WD | Warranty Deed | BUCK, HARRY C | RUNKEL, HENRY G | | | $42,000.00 | 71932 | 87008940 |
| 6 | 01/01/1900 | OTHER | Other - Misc. Documents | Unknown | BUCK, HARRY C | | | $0.00 | 0 | 0 |
Payout Agreement
| No payout information available.. |