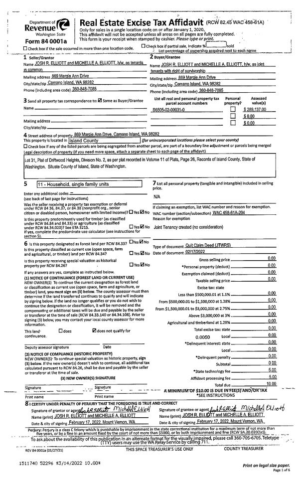
Property
Account |
| Property ID: | 414082 | Abbreviated Legal Description: | TYEE BCH 2 LOTS 9 & 9A EX PT TO IS CO AF#4358276 |
| Geographic ID: | S8330-02-00009-0 | Agent Code: | |
| Type: | Real | | |
| Tax Area: | 540 - APPRAISER-Stan/Cam Schl Dist, Special Dist, improved & less than 1 acre | Land Use Code | 11 |
| Open Space: | N | DFL | N |
| Historic Property: | N | Remodel Property: | N |
| Multi-Family Redevelopment: | N | | |
| Township: | | Section: | |
| Range: | |
Location |
| Address: | 3167 SHORELINE DR CAMANO ISLAND, WA 98282 | Mapsco: | |
| Neighborhood: | 58RecamWF-East Cam | Map ID: | 867 |
| Neighborhood CD: | 58RecamWF |
Owner |
| Name: | TYEE BEACH HOUSE LLC | Owner ID: | 68169 |
| Mailing Address: | 13533 NE 66TH ST KIRKLAND, WA 98033-8601 | % Ownership: | 100.0000000000% |
| | | Exemptions: | |
Taxes and Assessment Details
Values
| (+) Improvement Homesite Value: | + | $0 | |
| (+) Improvement Non-Homesite Value: | + | $102,382 | |
| (+) Land Homesite Value: | + | $0 | |
| (+) Land Non-Homesite Value: | + | $725,510 | |
| (+) Curr Use (HS): | + | $0 | $0 |
| (+) Curr Use (NHS): | + | $0 | $0 |
| | | -------------------------- | |
| (=) Market Value: | = | $827,892 | |
| (–) Productivity Loss: | – | $0 | |
| | | -------------------------- | |
| (=) Subtotal: | = | $827,892 | |
| (+) Senior Appraised Value: | + | $0 | |
| (+) Non-Senior Appraised Value: | + | $827,892 | |
| | | -------------------------- | |
| (=) Total Appraised Value: | = | $827,892 | |
| (–) Senior Exemption Loss: | – | $0 | |
| (–) Exemption Loss: | – | $0 | |
| | | -------------------------- | |
| (=) Taxable Value: | = | $827,892 | |
Taxing Jurisdiction
| Owner: | TYEE BEACH HOUSE LLC | | |
| % Ownership: | 100.0000000000% | | |
| Total Value: | $827,892 | | |
| Tax Area: | 540 - APPRAISER-Stan/Cam Schl Dist, Special Dist, improved & less than 1 acre |
| CF | Conservation Futures | 0.0316035091 | $827,892 | $827,892 | $26.16 | | |
| EMS1 | Fire & Rescue Dist #1 Camano GEN (EMS) | 0.3677864386 | $827,892 | $827,892 | $304.49 | | |
| FIRE1 | Fire & Rescue Dist #1 Camano GEN | 1.2502910536 | $827,892 | $827,892 | $1,035.11 | | |
| FIRE1BOND | Fire & Rescue Dist #1 Camano BOND | 0.1570001679 | $827,892 | $827,892 | $129.98 | | |
| CE | County Current Expense | 0.3708482477 | $827,892 | $827,892 | $307.02 | | |
| CR | County Roads | 0.4584763726 | $827,892 | $827,892 | $379.57 | | |
| LCIB | Library Sno-Isle BOND (Camano Island) | 0.0396325772 | $827,892 | $827,892 | $32.81 | | |
| LIB | Library Sno-Isle GEN | 0.3153421757 | $827,892 | $827,892 | $261.07 | | |
| SCH205_401 | School 205-401 Enrichment | 1.2698420524 | $827,892 | $827,892 | $1,051.29 | | |
| SCH205BOND | School 205-401 BOND | 0.9396497583 | $827,892 | $827,892 | $777.93 | | |
| ST | State School | 1.3035497053 | $827,892 | $827,892 | $1,079.20 | | |
| ST2 | State School Part 2 | 0.8169543533 | $827,892 | $827,892 | $676.35 | | |
| | Total Tax Rate: | 7.3209764117 | | | | | |
| | | | | Taxes w/Current Exemptions: | $6,060.98 | | |
| | | | | Taxes w/o Exemptions: | $6,060.98 | | |
Improvement / Building
| Improvement #1: | RESIDENTIAL | State Code: | Y | 518.0 sqft | Value: | $102,382 |
| Bathrooms: | 1 | Bedrooms: | 1 | | Ceiling: | DRYWALL PAINTED | Exterior Wall/Cover: | PLY/HARDBOARD T-111 | | Floor Covering: | HARDWOOD/CARP 20-80 | Floor Structure: | WOOD W/SUBFLOOR | | Foundation: | CONCRETE | Heating: | BASEBOARD ELECTRIC | | Interior Finish: | DRYWALL PAINT | Plumbing Fixture Cnt: | 3 | | Roof Slope: | 4" IN 12" | Roof Structure/Cover: | CJ ASPHALT |
|
| | Type | Description | Class CD | Sub Class CD | Year Built | Area |
| | BAS | BASE/MAIN FLOOR | 3 | 0 | 1983 | 350.0 |
| | UPS | UPPER STORY | 3 | 0 | 1983 | 168.0 |
| | OWP | OPEN WOOD PORCH W/STEPS | 3 | 0 | 1983 | 60.0 |
| | OWP | OPEN WOOD PORCH W/STEPS | 3 | 0 | 1983 | 300.0 |
| | UTY | STORAGE/UTILITY | 3 | 0 | 1983 | 99.0 |
Sketch
Property Image
Land
| 1 | LB | LOW BANK | 0.5222 | 22747.03 | 50.00 | 0.00 | 1.00 | $725,000 | $0 |
| 2 | 55 | TIDES | 0.0000 | 0.00 | 50.00 | 0.00 | 1.00 | $500 | $0 |
| 3 | 54 | WASTE LAND | 0.0000 | 0.00 | 0.00 | 0.00 | 1.00 | $10 | $0 |
Roll Value History
| 2026 | N/A | N/A | N/A | N/A | N/A |
| 2025 | $102,382 | $725,510 | $0 | $827,892 | $827,892 |
| 2024 | $105,931 | $725,510 | $0 | $831,441 | $831,441 |
| 2023 | $107,302 | $725,510 | $0 | $832,812 | $832,812 |
| 2022 | $98,408 | $700,510 | $0 | $798,918 | $798,918 |
| 2021 | $84,378 | $500,510 | $0 | $584,888 | $584,888 |
| 2020 | $82,293 | $350,510 | $0 | $432,803 | $432,803 |
| 2019 | $55,598 | $300,510 | $0 | $356,108 | $356,108 |
| 2018 | $59,987 | $500,510 | $0 | $560,497 | $560,497 |
| 2017 | $60,364 | $380,510 | $0 | $440,874 | $440,874 |
| 2016 | $61,118 | $320,510 | $0 | $381,628 | $381,628 |
| 2015 | $47,690 | $300,510 | $0 | $348,200 | $348,200 |
| 2014 | $48,335 | $300,510 | $0 | $348,845 | $348,845 |
| 2013 | $48,979 | $266,711 | $0 | $315,690 | $315,690 |
| 2012 | $49,890 | $302,230 | $0 | $352,120 | $352,120 |
| 2011 | $50,539 | $377,660 | $0 | $428,199 | $428,199 |
| 2010 | $48,712 | $377,660 | $0 | $426,372 | $426,372 |
| 2009 | $48,906 | $406,304 | $0 | $455,210 | $455,210 |
| 2008 | $49,653 | $406,304 | $0 | $455,957 | $455,957 |
| 2007 | $49,772 | $405,954 | $0 | $455,726 | $455,726 |
Deed and Sales History
| 1 | 02/24/2014 | QCD | Quit Claim Deed | TYEE BEACH HOUSE LLC | TYEE BEACH HOUSE LLC | | | $0.00 | 15011 | 4358276 |
| 2 | 07/23/2007 | QCD | Quit Claim Deed | WINSLOW, ARNOLD A | TYEE BEACH HOUSE LLC, | | | $0.00 | 72644 | 4208803 |
| 3 | 06/09/2005 | WD | Warranty Deed | ACREE, MARVIN W | WINSLOW, ARNOLD A | | | $365,000.00 | 52664 | 4137055 |
| 4 | 01/01/1900 | OTHER | Other - Misc. Documents | Unknown | ACREE, MARVIN W | | | $0.00 | 0 | 0 |
Payout Agreement
| No payout information available.. |