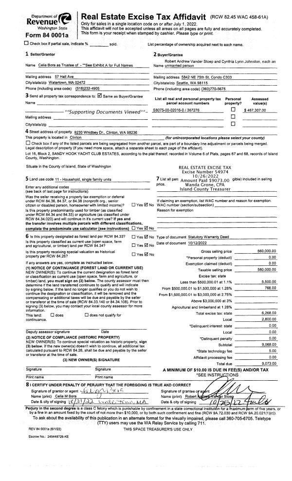
Property
Account |
| Property ID: | 414199 | Abbreviated Legal Description: | TYEE BCH 2 LOTS 22 & 22A TGW PT ADJ VAC SHORELINE DR AF#4228924 EX PT TO IS CO AF#4516744 |
| Geographic ID: | S8330-02-00022-0 | Agent Code: | |
| Type: | Real | | |
| Tax Area: | 540 - APPRAISER-Stan/Cam Schl Dist, Special Dist, improved & less than 1 acre | Land Use Code | 11 |
| Open Space: | N | DFL | N |
| Historic Property: | N | Remodel Property: | N |
| Multi-Family Redevelopment: | N | | |
| Township: | | Section: | |
| Range: | |
Location |
| Address: | 3131 SHORELINE DR CAMANO ISLAND, WA 98282 | Mapsco: | |
| Neighborhood: | 58RecamWF-East Cam | Map ID: | 867 |
| Neighborhood CD: | 58RecamWF |
Owner |
| Name: | MCGIBBON, KERRI R | Owner ID: | 304633 |
| Mailing Address: | 3131 SHORELINE DR CAMANO ISLAND, WA 98282 | % Ownership: | 100.0000000000% |
| | | Exemptions: | |
Taxes and Assessment Details
Values
| (+) Improvement Homesite Value: | + | $0 | |
| (+) Improvement Non-Homesite Value: | + | $123,999 | |
| (+) Land Homesite Value: | + | $0 | |
| (+) Land Non-Homesite Value: | + | $725,510 | |
| (+) Curr Use (HS): | + | $0 | $0 |
| (+) Curr Use (NHS): | + | $0 | $0 |
| | | -------------------------- | |
| (=) Market Value: | = | $849,509 | |
| (–) Productivity Loss: | – | $0 | |
| | | -------------------------- | |
| (=) Subtotal: | = | $849,509 | |
| (+) Senior Appraised Value: | + | $0 | |
| (+) Non-Senior Appraised Value: | + | $849,509 | |
| | | -------------------------- | |
| (=) Total Appraised Value: | = | $849,509 | |
| (–) Senior Exemption Loss: | – | $0 | |
| (–) Exemption Loss: | – | $0 | |
| | | -------------------------- | |
| (=) Taxable Value: | = | $849,509 | |
Taxing Jurisdiction
| Owner: | MCGIBBON, KERRI R | | |
| % Ownership: | 100.0000000000% | | |
| Total Value: | $849,509 | | |
| Tax Area: | 540 - APPRAISER-Stan/Cam Schl Dist, Special Dist, improved & less than 1 acre |
| CF | Conservation Futures | 0.0316035091 | $849,509 | $849,509 | $26.85 | | |
| EMS1 | Fire & Rescue Dist #1 Camano GEN (EMS) | 0.3677864386 | $849,509 | $849,509 | $312.44 | | |
| FIRE1 | Fire & Rescue Dist #1 Camano GEN | 1.2502910536 | $849,509 | $849,509 | $1,062.13 | | |
| FIRE1BOND | Fire & Rescue Dist #1 Camano BOND | 0.1570001679 | $849,509 | $849,509 | $133.37 | | |
| CE | County Current Expense | 0.3708482477 | $849,509 | $849,509 | $315.04 | | |
| CR | County Roads | 0.4584763726 | $849,509 | $849,509 | $389.48 | | |
| LCIB | Library Sno-Isle BOND (Camano Island) | 0.0396325772 | $849,509 | $849,509 | $33.67 | | |
| LIB | Library Sno-Isle GEN | 0.3153421757 | $849,509 | $849,509 | $267.89 | | |
| SCH205_401 | School 205-401 Enrichment | 1.2698420524 | $849,509 | $849,509 | $1,078.74 | | |
| SCH205BOND | School 205-401 BOND | 0.9396497583 | $849,509 | $849,509 | $798.24 | | |
| ST | State School | 1.3035497053 | $849,509 | $849,509 | $1,107.38 | | |
| ST2 | State School Part 2 | 0.8169543533 | $849,509 | $849,509 | $694.01 | | |
| | Total Tax Rate: | 7.3209764117 | | | | | |
| | | | | Taxes w/Current Exemptions: | $6,219.24 | | |
| | | | | Taxes w/o Exemptions: | $6,219.24 | | |
Improvement / Building
| Improvement #1: | RESIDENTIAL | State Code: | Y | 642.0 sqft | Value: | $123,999 |
| Bathrooms: | 1 | Bedrooms: | 2 | | Ceiling: | ACOUSTIC FURRED | Exterior Wall/Cover: | WOOD SIDING | | Floor Covering: | CARPET 100% | Floor Structure: | WOOD W/SUBFLOOR | | Foundation: | CONCRETE | Heating: | BASEBOARD ELECTRIC | | Interior Finish: | DRYWALL PAINT | Plumbing Fixture Cnt: | 6 | | Roof Slope: | 18" IN 12" | Roof Structure/Cover: | BEAM ASPHALT |
|
| | Type | Description | Class CD | Sub Class CD | Year Built | Area |
| | BAS | BASE/MAIN FLOOR | 3 | 0 | 1965 | 516.0 |
| | OP1 | OPEN PORCH SLAB | 3 | 0 | 1965 | 480.0 |
| | LOF | LOFT | 3 | 0 | 1965 | 126.0 |
Sketch
Property Image
Land
| 1 | LB | LOW BANK | 0.6400 | 27878.40 | 50.00 | 0.00 | 1.00 | $725,000 | $0 |
| 2 | 55 | TIDES | 0.0000 | 0.00 | 50.00 | 0.00 | 1.00 | $500 | $0 |
| 3 | 54 | WASTE LAND | 0.0000 | 0.00 | 0.00 | 0.00 | 1.00 | $10 | $0 |
Roll Value History
| 2026 | N/A | N/A | N/A | N/A | N/A |
| 2025 | $123,999 | $725,510 | $0 | $849,509 | $849,509 |
| 2024 | $127,895 | $725,510 | $0 | $853,405 | $853,405 |
| 2023 | $129,595 | $725,510 | $0 | $855,105 | $855,105 |
| 2022 | $118,891 | $700,510 | $0 | $819,401 | $819,401 |
| 2021 | $98,838 | $550,510 | $0 | $649,348 | $649,348 |
| 2020 | $96,269 | $450,510 | $0 | $546,779 | $546,779 |
| 2019 | $67,627 | $500,510 | $0 | $568,137 | $568,137 |
| 2018 | $67,846 | $500,510 | $0 | $568,356 | $568,356 |
| 2017 | $68,283 | $380,510 | $0 | $448,793 | $448,793 |
| 2016 | $69,158 | $320,510 | $0 | $389,668 | $389,668 |
| 2015 | $59,995 | $300,510 | $0 | $360,505 | $360,505 |
| 2014 | $60,870 | $300,510 | $0 | $361,380 | $361,380 |
| 2013 | $61,745 | $266,711 | $0 | $328,456 | $328,456 |
| 2012 | $62,621 | $302,230 | $0 | $364,851 | $364,851 |
| 2011 | $63,496 | $377,660 | $0 | $441,156 | $441,156 |
| 2010 | $68,098 | $377,660 | $0 | $445,758 | $445,758 |
| 2009 | $69,070 | $406,304 | $0 | $475,374 | $475,374 |
| 2008 | $69,070 | $406,304 | $0 | $475,374 | $475,374 |
| 2007 | $69,914 | $405,954 | $0 | $475,868 | $475,868 |
Deed and Sales History
| 1 | 05/31/2022 | QCD | Quit Claim Deed | MCGIBBON, KERRI R | MCGIBBON, KERRI R | | | $0.00 | 53381 | 4546380 |
| 2 | 04/01/2021 | QCD | Quit Claim Deed | MCGIBBON, KERRI R | ISLAND COUNTY, A POLITICAL SUBDIVIS | | | $0.00 | 47834 | 4516744 |
| 3 | 05/18/2001 | QCD | Quit Claim Deed | MCGIBBON, KERRI R | MCGIBBON, KERRI R | | | $0.00 | 11750 | 20032663 |
| 4 | 08/01/1991 | WD | Warranty Deed | MATTHEWS, NORMAN R | MCGIBBON, KERRI R | | | $192,000.00 | 12961 | 91012598 |
| 5 | 10/01/1990 | QCD | Quit Claim Deed | MATTHEWS, NORMAN R | MATTHEWS, NORMAN R | | | $0.00 | 5893 | 90019966 |
| 6 | 06/01/1989 | WD | Warranty Deed | STORY, NORMAN D | MATTHEWS, NORMAN R | | | $99,000.00 | 92517 | 89008598 |
| 7 | 01/01/1900 | OTHER | Other - Misc. Documents | Unknown | STORY, NORMAN D | | | $0.00 | 0 | 0 |
Payout Agreement
| No payout information available.. |