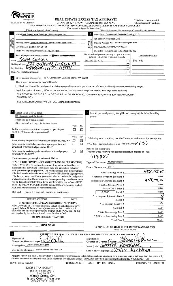
Property
Account |
| Property ID: | 414484 | Abbreviated Legal Description: | TYEE BCH 3 LOT 19 INCL ADJ TIDES & SHORELANDS |
| Geographic ID: | S8330-03-00019-0 | Agent Code: | |
| Type: | Real | | |
| Tax Area: | 540 - APPRAISER-Stan/Cam Schl Dist, Special Dist, improved & less than 1 acre | Land Use Code | 11 |
| Open Space: | N | DFL | N |
| Historic Property: | N | Remodel Property: | N |
| Multi-Family Redevelopment: | N | | |
| Township: | | Section: | |
| Range: | |
Location |
| Address: | 3071 SHORELINE DR CAMANO ISLAND, WA 98282 | Mapsco: | |
| Neighborhood: | 58RecamWF-East Cam | Map ID: | 867 |
| Neighborhood CD: | 58RecamWF |
Owner |
| Name: | STARMER, ANDREW P | Owner ID: | 293900 |
| Mailing Address: | BREA S STARMER 17326 NE 152ND ST WOODINVILLE, WA 98072 | % Ownership: | 100.0000000000% |
| | | Exemptions: | |
Taxes and Assessment Details
Values
| (+) Improvement Homesite Value: | + | $0 | |
| (+) Improvement Non-Homesite Value: | + | $353,189 | |
| (+) Land Homesite Value: | + | $0 | |
| (+) Land Non-Homesite Value: | + | $725,500 | |
| (+) Curr Use (HS): | + | $0 | $0 |
| (+) Curr Use (NHS): | + | $0 | $0 |
| | | -------------------------- | |
| (=) Market Value: | = | $1,078,689 | |
| (–) Productivity Loss: | – | $0 | |
| | | -------------------------- | |
| (=) Subtotal: | = | $1,078,689 | |
| (+) Senior Appraised Value: | + | $0 | |
| (+) Non-Senior Appraised Value: | + | $1,078,689 | |
| | | -------------------------- | |
| (=) Total Appraised Value: | = | $1,078,689 | |
| (–) Senior Exemption Loss: | – | $0 | |
| (–) Exemption Loss: | – | $0 | |
| | | -------------------------- | |
| (=) Taxable Value: | = | $1,078,689 | |
Taxing Jurisdiction
| Owner: | STARMER, ANDREW P | | |
| % Ownership: | 100.0000000000% | | |
| Total Value: | $1,078,689 | | |
| Tax Area: | 540 - APPRAISER-Stan/Cam Schl Dist, Special Dist, improved & less than 1 acre |
| CF | Conservation Futures | 0.0316035091 | $1,078,689 | $1,078,689 | $34.09 | | |
| EMS1 | Fire & Rescue Dist #1 Camano GEN (EMS) | 0.3677864386 | $1,078,689 | $1,078,689 | $396.73 | | |
| FIRE1 | Fire & Rescue Dist #1 Camano GEN | 1.2502910536 | $1,078,689 | $1,078,689 | $1,348.68 | | |
| FIRE1BOND | Fire & Rescue Dist #1 Camano BOND | 0.1570001679 | $1,078,689 | $1,078,689 | $169.35 | | |
| CE | County Current Expense | 0.3708482477 | $1,078,689 | $1,078,689 | $400.03 | | |
| CR | County Roads | 0.4584763726 | $1,078,689 | $1,078,689 | $494.55 | | |
| LCIB | Library Sno-Isle BOND (Camano Island) | 0.0396325772 | $1,078,689 | $1,078,689 | $42.75 | | |
| LIB | Library Sno-Isle GEN | 0.3153421757 | $1,078,689 | $1,078,689 | $340.16 | | |
| SCH205_401 | School 205-401 Enrichment | 1.2698420524 | $1,078,689 | $1,078,689 | $1,369.76 | | |
| SCH205BOND | School 205-401 BOND | 0.9396497583 | $1,078,689 | $1,078,689 | $1,013.59 | | |
| ST | State School | 1.3035497053 | $1,078,689 | $1,078,689 | $1,406.12 | | |
| ST2 | State School Part 2 | 0.8169543533 | $1,078,689 | $1,078,689 | $881.24 | | |
| | Total Tax Rate: | 7.3209764117 | | | | | |
| | | | | Taxes w/Current Exemptions: | $7,897.05 | | |
| | | | | Taxes w/o Exemptions: | $7,897.05 | | |
Improvement / Building
| Improvement #1: | RESIDENTIAL | State Code: | Y | 1406.0 sqft | Value: | $353,189 |
| Bathrooms: | 2 | Bedrooms: | 2 | | Ceiling: | DRYWALL PAINTED | Exterior Wall/Cover: | WOOD SIDING | | Floor Covering: | CARPET/VINYL 20-80 | Floor Structure: | WOOD W/SUBFLOOR | | Foundation: | CONCRETE | Heating: | BASEBOARD ELECTRIC | | Interior Finish: | DRYWALL PAINT | Plumbing Fixture Cnt: | 9 | | Roof Slope: | 6" IN 12" | Roof Structure/Cover: | CJ ASPHALT |
|
| | Type | Description | Class CD | Sub Class CD | Year Built | Area |
| | BAS | BASE/MAIN FLOOR | 4 | 0 | 1981 | 958.0 |
| | OP3 | OPEN PORCH W/ROOF | 4 | 0 | 1981 | 120.0 |
| | UPS | UPPER STORY | 4 | 0 | 1981 | 448.0 |
| | OWP | OPEN WOOD PORCH W/STEPS | 4 | 0 | 1981 | 464.0 |
| | UTY | STORAGE/UTILITY | 4 | 0 | 1981 | 96.0 |
| | DGR | DETACHED GARAGE | 4 | 0 | 1981 | 728.0 |
Sketch
Property Image
Land
| 1 | LB | LOW BANK | 0.3362 | 14644.87 | 50.00 | 0.00 | 1.00 | $725,000 | $0 |
| 2 | 55 | TIDES | 0.0000 | 0.00 | 50.00 | 0.00 | 1.00 | $500 | $0 |
Roll Value History
| 2026 | N/A | N/A | N/A | N/A | N/A |
| 2025 | $353,189 | $725,500 | $0 | $1,078,689 | $1,078,689 |
| 2024 | $364,231 | $725,500 | $0 | $1,089,731 | $1,089,731 |
| 2023 | $368,360 | $725,500 | $0 | $1,093,860 | $1,093,860 |
| 2022 | $336,343 | $700,500 | $0 | $1,036,843 | $1,036,843 |
| 2021 | $290,030 | $550,500 | $0 | $840,530 | $840,530 |
| 2020 | $282,681 | $450,500 | $0 | $733,181 | $733,181 |
| 2019 | $208,056 | $500,500 | $0 | $708,556 | $708,556 |
| 2018 | $208,638 | $500,500 | $0 | $709,138 | $709,138 |
| 2017 | $152,203 | $380,500 | $0 | $532,703 | $532,703 |
| 2016 | $154,156 | $320,500 | $0 | $474,656 | $474,656 |
| 2015 | $140,658 | $300,500 | $0 | $441,158 | $441,158 |
| 2014 | $142,324 | $300,500 | $0 | $442,824 | $442,824 |
| 2013 | $143,990 | $266,701 | $0 | $410,691 | $410,691 |
| 2012 | $145,656 | $313,678 | $0 | $459,334 | $459,334 |
| 2011 | $147,322 | $391,972 | $0 | $539,294 | $539,294 |
| 2010 | $153,813 | $391,972 | $0 | $545,785 | $545,785 |
| 2009 | $159,323 | $425,390 | $0 | $584,713 | $584,713 |
| 2008 | $161,779 | $425,390 | $0 | $587,169 | $587,169 |
| 2007 | $162,260 | $425,040 | $0 | $587,300 | $587,300 |
Deed and Sales History
| 1 | 09/25/2020 | WD | Warranty Deed | LIGHTLE, CURTIS | STARMER, ANDREW P | | | $975,000.00 | 44940 | 4497820 |
|   | |
| 2 | 06/12/2017 | WD | Warranty Deed | WENZEL, LORENNA L | LIGHTLE, CURTIS | | | $815,000.00 | 29983 | 4425277 |
|   | |
| 3 | 04/02/2014 | PRD | Personal Representatives Deed | WENZEL, RONALD E | WENZEL, LORENNA L | | | $0.00 | 14832 | 4357611 |
| 4 | 08/01/1986 | WD | Warranty Deed | CINKOVICH, JEAN W | WENZEL, RONALD E | | | $147,498.00 | 62305 | 86010557 |
| 5 | 02/01/1956 | OTHER | Other - Misc. Documents | CINKOVICH, MRS T | CINKOVICH, JEAN W | | | $0.00 | 58696 | 0 |
| 6 | 01/01/1900 | OTHER | Other - Misc. Documents | Unknown | CINKOVICH, MRS T | | | $0.00 | 0 | 0 |
Payout Agreement
| No payout information available.. |