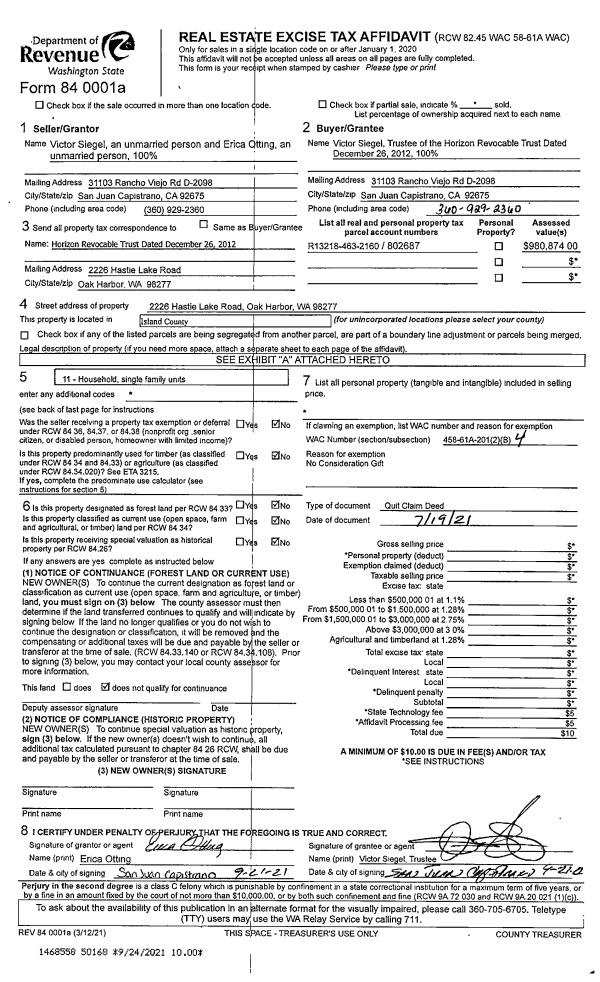
Property
Account |
| Property ID: | 414778 | Abbreviated Legal Description: | UPLANDS WEST LOT 1 |
| Geographic ID: | S8335-00-00001-0 | Agent Code: | |
| Type: | Real | | |
| Tax Area: | 100 - APPRAISER-OH Schl Dist, in OH | Land Use Code | 11 |
| Open Space: | N | DFL | N |
| Historic Property: | N | Remodel Property: | N |
| Multi-Family Redevelopment: | N | | |
| Township: | | Section: | |
| Range: | |
Location |
| Address: | 1983 NE SUMNER DR OAK HARBOR, WA 98277 | Mapsco: | |
| Neighborhood: | Cycle 1 | Map ID: | 262 |
| Neighborhood CD: | 1 |
Owner |
| Name: | HAINES TTEE, RICHARD F | Owner ID: | 298425 |
| Mailing Address: | CAROL T HAINES TTEE 839 SHORECREST DR OAK HARBOR, WA 98277 | % Ownership: | 100.0000000000% |
| | | Exemptions: | |
Taxes and Assessment Details
Values
| (+) Improvement Homesite Value: | + | $0 | |
| (+) Improvement Non-Homesite Value: | + | $337,031 | |
| (+) Land Homesite Value: | + | $0 | |
| (+) Land Non-Homesite Value: | + | $180,000 | |
| (+) Curr Use (HS): | + | $0 | $0 |
| (+) Curr Use (NHS): | + | $0 | $0 |
| | | -------------------------- | |
| (=) Market Value: | = | $517,031 | |
| (–) Productivity Loss: | – | $0 | |
| | | -------------------------- | |
| (=) Subtotal: | = | $517,031 | |
| (+) Senior Appraised Value: | + | $0 | |
| (+) Non-Senior Appraised Value: | + | $517,031 | |
| | | -------------------------- | |
| (=) Total Appraised Value: | = | $517,031 | |
| (–) Senior Exemption Loss: | – | $0 | |
| (–) Exemption Loss: | – | $0 | |
| | | -------------------------- | |
| (=) Taxable Value: | = | $517,031 | |
Taxing Jurisdiction
| Owner: | HAINES TTEE, RICHARD F | | |
| % Ownership: | 100.0000000000% | | |
| Total Value: | $517,031 | | |
| Tax Area: | 100 - APPRAISER-OH Schl Dist, in OH |
| CF | Conservation Futures | 0.0316035091 | $517,031 | $517,031 | $16.34 | | |
| CEM1 | Cemetery #1 | 0.0040320932 | $517,031 | $517,031 | $2.08 | | |
| COH | City of Oak Harbor | 2.3001546061 | $517,031 | $517,031 | $1,189.25 | | |
| OAKBOND | City of Oak Harbor BOND | 0.1926904192 | $517,031 | $517,031 | $99.63 | | |
| HOBOND | Hospital BOND | 0.1910887512 | $517,031 | $517,031 | $98.80 | | |
| HOGEN | Hospital GEN | 0.3902502903 | $517,031 | $517,031 | $201.77 | | |
| CE | County Current Expense | 0.3708482477 | $517,031 | $517,031 | $191.74 | | |
| ISLANDEMS | Hospital GEN (EMS) | 0.5000000000 | $517,031 | $517,031 | $258.52 | | |
| LIB | Library Sno-Isle GEN | 0.3153421757 | $517,031 | $517,031 | $163.04 | | |
| NWHIDPRMT | P & R N Whidbey GEN | 0.2004466701 | $517,031 | $517,031 | $103.64 | | |
| SCH201MO | School 201 Enrichment | 1.8559231640 | $517,031 | $517,031 | $959.57 | | |
| ST | State School | 1.3035497053 | $517,031 | $517,031 | $673.98 | | |
| ST2 | State School Part 2 | 0.8169543533 | $517,031 | $517,031 | $422.39 | | |
| | Total Tax Rate: | 8.4728839852 | | | | | |
| | | | | Taxes w/Current Exemptions: | $4,380.75 | | |
| | | | | Taxes w/o Exemptions: | $4,380.75 | | |
Improvement / Building
| Improvement #1: | RESIDENTIAL | State Code: | Y | 1979.0 sqft | Value: | $337,031 |
| Bathrooms: | 2.5 | Bedrooms: | 3 | | Ceiling: | DRY WALL SPRAYED | Exterior Wall/Cover: | WOOD SIDING | | Floor Covering: | CERAMIC TILE/HWD 40/60 | Floor Structure: | WOOD W/SUBFLOOR | | Foundation: | CONCRETE BLOCKS | Heating: | FHA GAS | | Interior Finish: | DRYWALL PAINT | Plumbing Fixture Cnt: | 11 | | Roof Slope: | 4" IN 12" | Roof Structure/Cover: | CJ ASPHALT |
|
| | Type | Description | Class CD | Sub Class CD | Year Built | Area |
| | BAS | BASE/MAIN FLOOR | 3 | 0 | 1974 | 1979.0 |
| | AGR | ATTACHED GARAGE | 3 | 0 | 1974 | 484.0 |
| | OWP | OPEN WOOD PORCH W/STEPS | 3 | 0 | 1974 | 349.5 |
Sketch
Property Image
Land
| 1 | 14 | SQ (08001-12000) | 0.0000 | 0.00 | 0.00 | 0.00 | 1.00 | $180,000 | $0 |
Roll Value History
| 2026 | N/A | N/A | N/A | N/A | N/A |
| 2025 | $337,031 | $180,000 | $0 | $517,031 | $517,031 |
| 2024 | $341,509 | $170,000 | $0 | $511,509 | $511,509 |
| 2023 | $337,031 | $170,000 | $0 | $507,031 | $507,031 |
| 2022 | $309,238 | $160,000 | $0 | $469,238 | $469,238 |
| 2021 | $247,942 | $125,000 | $0 | $372,942 | $372,942 |
| 2020 | $223,649 | $100,000 | $0 | $323,649 | $323,649 |
| 2019 | $169,835 | $140,000 | $0 | $309,835 | $309,835 |
| 2018 | $170,392 | $125,000 | $0 | $295,392 | $295,392 |
| 2017 | $140,131 | $110,000 | $0 | $250,131 | $250,131 |
| 2016 | $142,355 | $90,000 | $0 | $232,355 | $232,355 |
| 2015 | $144,579 | $80,000 | $0 | $224,579 | $224,579 |
| 2014 | $146,803 | $80,000 | $0 | $226,803 | $226,803 |
| 2013 | $149,026 | $80,000 | $0 | $229,026 | $229,026 |
| 2012 | $151,252 | $70,000 | $0 | $221,252 | $221,252 |
| 2011 | $154,978 | $80,000 | $0 | $234,978 | $234,978 |
| 2010 | $168,649 | $80,000 | $0 | $248,649 | $248,649 |
| 2009 | $176,193 | $97,000 | $0 | $273,193 | $273,193 |
| 2008 | $178,696 | $97,000 | $0 | $275,696 | $275,696 |
| 2007 | $181,230 | $97,000 | $0 | $278,230 | $278,230 |
Deed and Sales History
| 1 | 03/08/2021 | WD | Warranty Deed | WALTERS, NORMAN G | HAINES TTEE, RICHARD F | | | $425,000.00 | 47287 | 4513195 |
| 2 | 11/20/2020 | TOD | Transfer On Death Deed | WALTERS, NORMAN G | WALTERS, NORMAN G | | | $0.00 | 45978 | 4499830 |
| 3 | 12/15/2010 | WD | Warranty Deed | DAVIS, SHERI LYNN | WALTERS, NORMAN G | | | $252,500.00 | 3366 | 4288724 |
| 4 | 11/16/2006 | DECREE | Divorce Decree/Legal Separation | DAVIS, JEFFERY L | DAVIS, SHERI LYNN | | | $0.00 | 64874 | 4186960 |
| 5 | 04/01/1995 | WD | Warranty Deed | NORRIS, PAUL D | DAVIS, JEFFERY L | | | $146,500.00 | 51438 | 95006735 |
| 6 | 09/01/1991 | WD | Warranty Deed | VANDENBERGH, PIETER N | NORRIS, PAUL D | | | $132,500.00 | 13233 | 91013768 |
| 7 | 08/01/1989 | WD | Warranty Deed | BRACELIN, FRANK J | VANDENBERGH, PIETER N | | | $94,750.00 | 93518 | 89011830 |
| 8 | 08/01/1988 | WD | Warranty Deed | GOFF, JERRY D | BRACELIN, FRANK J | | | $90,900.00 | 82895 | 88010826 |
| 9 | 07/01/1978 | OTHER | Other - Misc. Documents | Unknown | GOFF, JERRY D | | | $66,500.00 | 83173 | 335705 |
Payout Agreement
| No payout information available.. |