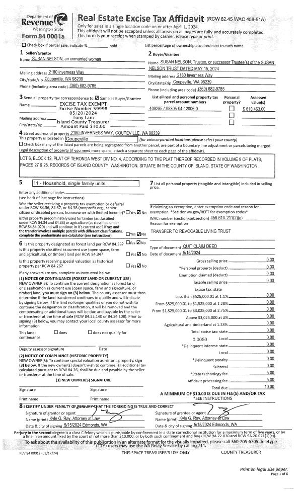
Property
Account |
| Property ID: | 414858 | Abbreviated Legal Description: | UPLANDS WEST LOT 9 |
| Geographic ID: | S8335-00-00009-0 | Agent Code: | |
| Type: | Real | | |
| Tax Area: | 100 - APPRAISER-OH Schl Dist, in OH | Land Use Code | 11 |
| Open Space: | N | DFL | N |
| Historic Property: | N | Remodel Property: | N |
| Multi-Family Redevelopment: | N | | |
| Township: | | Section: | |
| Range: | |
Location |
| Address: | 1763 NE SUMNER DR OAK HARBOR, WA 98277 | Mapsco: | |
| Neighborhood: | Cycle 1 | Map ID: | 262 |
| Neighborhood CD: | 1 |
Owner |
| Name: | HENDRIX, ROBERT L & DENISE | Owner ID: | 80834 |
| Mailing Address: | 1763 NE SUMNER DR OAK HARBOR, WA 98277-4808 | % Ownership: | 100.0000000000% |
| | | Exemptions: | |
Taxes and Assessment Details
Values
| (+) Improvement Homesite Value: | + | $0 | |
| (+) Improvement Non-Homesite Value: | + | $257,915 | |
| (+) Land Homesite Value: | + | $0 | |
| (+) Land Non-Homesite Value: | + | $180,000 | |
| (+) Curr Use (HS): | + | $0 | $0 |
| (+) Curr Use (NHS): | + | $0 | $0 |
| | | -------------------------- | |
| (=) Market Value: | = | $437,915 | |
| (–) Productivity Loss: | – | $0 | |
| | | -------------------------- | |
| (=) Subtotal: | = | $437,915 | |
| (+) Senior Appraised Value: | + | $0 | |
| (+) Non-Senior Appraised Value: | + | $437,915 | |
| | | -------------------------- | |
| (=) Total Appraised Value: | = | $437,915 | |
| (–) Senior Exemption Loss: | – | $0 | |
| (–) Exemption Loss: | – | $0 | |
| | | -------------------------- | |
| (=) Taxable Value: | = | $437,915 | |
Taxing Jurisdiction
| Owner: | HENDRIX, ROBERT L & DENISE | | |
| % Ownership: | 100.0000000000% | | |
| Total Value: | $437,915 | | |
| Tax Area: | 100 - APPRAISER-OH Schl Dist, in OH |
| CF | Conservation Futures | 0.0316035091 | $437,915 | $437,915 | $13.84 | | |
| CEM1 | Cemetery #1 | 0.0040320932 | $437,915 | $437,915 | $1.77 | | |
| COH | City of Oak Harbor | 2.3001546061 | $437,915 | $437,915 | $1,007.27 | | |
| OAKBOND | City of Oak Harbor BOND | 0.1926904192 | $437,915 | $437,915 | $84.38 | | |
| HOBOND | Hospital BOND | 0.1910887512 | $437,915 | $437,915 | $83.68 | | |
| HOGEN | Hospital GEN | 0.3902502903 | $437,915 | $437,915 | $170.90 | | |
| CE | County Current Expense | 0.3708482477 | $437,915 | $437,915 | $162.40 | | |
| ISLANDEMS | Hospital GEN (EMS) | 0.5000000000 | $437,915 | $437,915 | $218.96 | | |
| LIB | Library Sno-Isle GEN | 0.3153421757 | $437,915 | $437,915 | $138.09 | | |
| NWHIDPRMT | P & R N Whidbey GEN | 0.2004466701 | $437,915 | $437,915 | $87.78 | | |
| SCH201MO | School 201 Enrichment | 1.8559231640 | $437,915 | $437,915 | $812.74 | | |
| ST | State School | 1.3035497053 | $437,915 | $437,915 | $570.84 | | |
| ST2 | State School Part 2 | 0.8169543533 | $437,915 | $437,915 | $357.76 | | |
| | Total Tax Rate: | 8.4728839852 | | | | | |
| | | | | Taxes w/Current Exemptions: | $3,710.41 | | |
| | | | | Taxes w/o Exemptions: | $3,710.41 | | |
Improvement / Building
| Improvement #1: | RESIDENTIAL | State Code: | Y | 1960.0 sqft | Value: | $257,915 |
| Bathrooms: | 3 | Bedrooms: | 3 | | Ceiling: | DRYWALL PAINTED | Exterior Wall/Cover: | WOOD SIDING | | Floor Covering: | CARPET/VINYL 20-80 | Floor Structure: | WOOD W/SUBFLOOR | | Foundation: | CONCRETE | Heating: | FHA GAS | | Interior Finish: | DRYWALL PAINT | Plumbing Fixture Cnt: | 11 | | Roof Slope: | 5" IN 12" | Roof Structure/Cover: | CJ ASPHALT |
|
| | Type | Description | Class CD | Sub Class CD | Year Built | Area |
| | BAS | BASE/MAIN FLOOR | 3 | 0 | 1974 | 1288.0 |
| | OP1 | OPEN PORCH SLAB | 3 | 0 | 1974 | 100.0 |
| | OP3 | OPEN PORCH W/ROOF | 3 | 0 | 1974 | 18.0 |
| | AGR | ATTACHED GARAGE | 3 | 0 | 1974 | 528.0 |
| | UPS | UPPER STORY | 3 | 0 | 1974 | 672.0 |
| | OWP | OPEN WOOD PORCH W/STEPS | 3 | 0 | 1974 | 210.0 |
Sketch
Property Image
Land
| 1 | 14 | SQ (08001-12000) | 0.0000 | 0.00 | 0.00 | 0.00 | 1.00 | $180,000 | $0 |
Roll Value History
| 2026 | N/A | N/A | N/A | N/A | N/A |
| 2025 | $257,915 | $180,000 | $0 | $437,915 | $437,915 |
| 2024 | $261,639 | $170,000 | $0 | $431,639 | $431,639 |
| 2023 | $243,017 | $170,000 | $0 | $413,017 | $413,017 |
| 2022 | $223,425 | $160,000 | $0 | $383,425 | $383,425 |
| 2021 | $197,219 | $125,000 | $0 | $322,219 | $322,219 |
| 2020 | $192,822 | $100,000 | $0 | $292,822 | $292,822 |
| 2019 | $146,326 | $140,000 | $0 | $286,326 | $286,326 |
| 2018 | $146,856 | $125,000 | $0 | $271,856 | $271,856 |
| 2017 | $134,724 | $110,000 | $0 | $244,724 | $244,724 |
| 2016 | $136,898 | $90,000 | $0 | $226,898 | $226,898 |
| 2015 | $139,070 | $80,000 | $0 | $219,070 | $219,070 |
| 2014 | $141,243 | $80,000 | $0 | $221,243 | $221,243 |
| 2013 | $143,417 | $80,000 | $0 | $223,417 | $223,417 |
| 2012 | $145,589 | $70,000 | $0 | $215,589 | $215,589 |
| 2011 | $145,678 | $80,000 | $0 | $225,678 | $225,678 |
| 2010 | $155,680 | $80,000 | $0 | $235,680 | $235,680 |
| 2009 | $162,654 | $97,000 | $0 | $259,654 | $259,654 |
| 2008 | $165,001 | $97,000 | $0 | $262,001 | $262,001 |
| 2007 | $167,347 | $97,000 | $0 | $264,347 | $264,347 |
Deed and Sales History
| 1 | 02/01/1991 | QCD | Quit Claim Deed | , | HENDRIX, ROBERT L | | | $0.00 | 10438 | 91001992 |
| 2 | 01/01/1900 | OTHER | Other - Misc. Documents | Unknown | , | | | $0.00 | 0 | 0 |
Payout Agreement
| No payout information available.. |