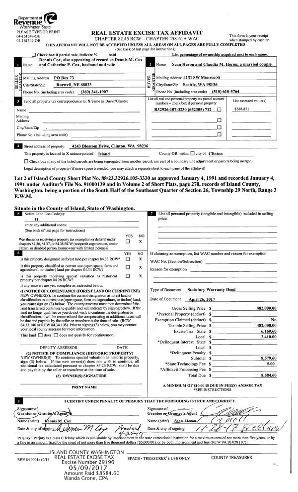
Property
Account |
| Property ID: | 414983 | Abbreviated Legal Description: | UPLANDS WEST LOT 22 |
| Geographic ID: | S8335-00-00022-0 | Agent Code: | |
| Type: | Real | | |
| Tax Area: | 100 - APPRAISER-OH Schl Dist, in OH | Land Use Code | 11 |
| Open Space: | N | DFL | N |
| Historic Property: | N | Remodel Property: | N |
| Multi-Family Redevelopment: | N | | |
| Township: | | Section: | |
| Range: | |
Location |
| Address: | 1267 NE SEALTH PLACE OAK HARBOR, WA 98277 | Mapsco: | |
| Neighborhood: | Cycle 1 | Map ID: | 262 |
| Neighborhood CD: | 1 |
Owner |
| Name: | ENGLISH, ANTHONY | Owner ID: | 259643 |
| Mailing Address: | 1267 NE SEALTH PLACE OAK HARBOR, WA 98277 | % Ownership: | 100.0000000000% |
| | | Exemptions: | |
Taxes and Assessment Details
Values
| (+) Improvement Homesite Value: | + | $0 | |
| (+) Improvement Non-Homesite Value: | + | $248,478 | |
| (+) Land Homesite Value: | + | $0 | |
| (+) Land Non-Homesite Value: | + | $180,000 | |
| (+) Curr Use (HS): | + | $0 | $0 |
| (+) Curr Use (NHS): | + | $0 | $0 |
| | | -------------------------- | |
| (=) Market Value: | = | $428,478 | |
| (–) Productivity Loss: | – | $0 | |
| | | -------------------------- | |
| (=) Subtotal: | = | $428,478 | |
| (+) Senior Appraised Value: | + | $0 | |
| (+) Non-Senior Appraised Value: | + | $428,478 | |
| | | -------------------------- | |
| (=) Total Appraised Value: | = | $428,478 | |
| (–) Senior Exemption Loss: | – | $0 | |
| (–) Exemption Loss: | – | $0 | |
| | | -------------------------- | |
| (=) Taxable Value: | = | $428,478 | |
Taxing Jurisdiction
| Owner: | ENGLISH, ANTHONY | | |
| % Ownership: | 100.0000000000% | | |
| Total Value: | $428,478 | | |
| Tax Area: | 100 - APPRAISER-OH Schl Dist, in OH |
| CF | Conservation Futures | 0.0316035091 | $428,478 | $428,478 | $13.54 | | |
| CEM1 | Cemetery #1 | 0.0040320932 | $428,478 | $428,478 | $1.73 | | |
| COH | City of Oak Harbor | 2.3001546061 | $428,478 | $428,478 | $985.57 | | |
| OAKBOND | City of Oak Harbor BOND | 0.1926904192 | $428,478 | $428,478 | $82.56 | | |
| HOBOND | Hospital BOND | 0.1910887512 | $428,478 | $428,478 | $81.88 | | |
| HOGEN | Hospital GEN | 0.3902502903 | $428,478 | $428,478 | $167.21 | | |
| CE | County Current Expense | 0.3708482477 | $428,478 | $428,478 | $158.90 | | |
| ISLANDEMS | Hospital GEN (EMS) | 0.5000000000 | $428,478 | $428,478 | $214.24 | | |
| LIB | Library Sno-Isle GEN | 0.3153421757 | $428,478 | $428,478 | $135.12 | | |
| NWHIDPRMT | P & R N Whidbey GEN | 0.2004466701 | $428,478 | $428,478 | $85.89 | | |
| SCH201MO | School 201 Enrichment | 1.8559231640 | $428,478 | $428,478 | $795.22 | | |
| ST | State School | 1.3035497053 | $428,478 | $428,478 | $558.54 | | |
| ST2 | State School Part 2 | 0.8169543533 | $428,478 | $428,478 | $350.05 | | |
| | Total Tax Rate: | 8.4728839852 | | | | | |
| | | | | Taxes w/Current Exemptions: | $3,630.45 | | |
| | | | | Taxes w/o Exemptions: | $3,630.45 | | |
Improvement / Building
| Improvement #1: | RESIDENTIAL | State Code: | Y | 1968.0 sqft | Value: | $248,478 |
| Bathrooms: | 2 | Bedrooms: | 4 | | Ceiling: | DRY WALL SPRAYED | Exterior Wall/Cover: | WOOD SIDING | | Floor Covering: | CARPET/VINYL 80-20 | Floor Structure: | WOOD W/SUBFLOOR | | Foundation: | CONCRETE | Heating: | FHA GAS | | Interior Finish: | DRYWALL PAINT | Plumbing Fixture Cnt: | 10 | | Roof Slope: | 5" IN 12" | Roof Structure/Cover: | CJ ASPHALT |
|
| | Type | Description | Class CD | Sub Class CD | Year Built | Area |
| | BAS | BASE/MAIN FLOOR | 3 | 0 | 1974 | 984.0 |
| | DWN | DOWNSTAIRS LIVING AREA | 3 | 0 | 1974 | 984.0 |
| | OP4 | OPEN PORCH W/CEILING-ROOF | 3 | 0 | 1974 | 117.0 |
| | AGR | ATTACHED GARAGE | 3 | 0 | 1974 | 528.0 |
| | OWP | OPEN WOOD PORCH W/STEPS | 3 | 0 | 1974 | 231.0 |
Sketch
Property Image
Land
| 1 | 14 | SQ (08001-12000) | 0.0000 | 0.00 | 0.00 | 0.00 | 1.00 | $180,000 | $0 |
Roll Value History
| 2026 | N/A | N/A | N/A | N/A | N/A |
| 2025 | $248,478 | $180,000 | $0 | $428,478 | $428,478 |
| 2024 | $251,964 | $170,000 | $0 | $421,964 | $421,964 |
| 2023 | $226,737 | $170,000 | $0 | $396,737 | $396,737 |
| 2022 | $208,463 | $160,000 | $0 | $368,463 | $368,463 |
| 2021 | $203,465 | $125,000 | $0 | $328,465 | $328,465 |
| 2020 | $197,899 | $100,000 | $0 | $297,899 | $297,899 |
| 2019 | $138,233 | $140,000 | $0 | $278,233 | $278,233 |
| 2018 | $138,732 | $125,000 | $0 | $263,732 | $263,732 |
| 2017 | $114,334 | $110,000 | $0 | $224,334 | $224,334 |
| 2016 | $116,289 | $90,000 | $0 | $206,289 | $206,289 |
| 2015 | $118,247 | $80,000 | $0 | $198,247 | $198,247 |
| 2014 | $120,205 | $80,000 | $0 | $200,205 | $200,205 |
| 2013 | $122,161 | $80,000 | $0 | $202,161 | $202,161 |
| 2012 | $124,119 | $70,000 | $0 | $194,119 | $194,119 |
| 2011 | $126,074 | $80,000 | $0 | $206,074 | $206,074 |
| 2010 | $137,253 | $80,000 | $0 | $217,253 | $217,253 |
| 2009 | $143,318 | $97,000 | $0 | $240,318 | $240,318 |
| 2008 | $145,339 | $97,000 | $0 | $242,339 | $242,339 |
| 2007 | $147,358 | $97,000 | $0 | $244,358 | $244,358 |
Deed and Sales History
| 1 | 09/05/2012 | QCD | Quit Claim Deed | ENGLISH, AMBER L | ENGLISH, ANTHONY | | | $0.00 | 9104 | 4324691 |
| 2 | 03/15/2004 | 5 | DNU - Marriage License/Name Change | ENGLISH, AMBER L | ENGLISH, AMBER L | | | $0.00 | 41532 | 4097417 |
| 3 | 07/11/2002 | ESTSEPPROP | Establish Separate Property | ENGLISH, AMBER L | ENGLISH, AMBER L | | | $0.00 | 22733 | 4025710 |
| 4 | 07/11/2002 | WD | Warranty Deed | LAURITZEN, ROBERT W | ENGLISH, AMBER L | | | $159,000.00 | 22732 | 4025709 |
| 5 | 03/27/2000 | WD | Warranty Deed | PARKS, RONALD L | LAURITZEN, ROBERT W | | | $139,950.00 | 1101 | 20005453 |
| 6 | 09/01/1992 | WD | Warranty Deed | FOSSUM, ANTON P | PARKS, RONALD L | | | $128,000.00 | 23866 | 92018714 |
| 7 | 01/01/1900 | OTHER | Other - Misc. Documents | Unknown | FOSSUM, ANTON P | | | $0.00 | 0 | 0 |
Payout Agreement
| No payout information available.. |