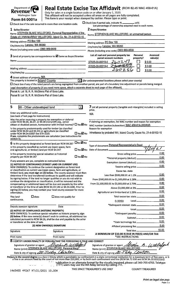
Property
Account |
| Property ID: | 41635 | Abbreviated Legal Description: | 94 SUMNER DC - BG NW CR DC S1*W1373.5' TO NLN 700 AVE W S89*E805' TPB S89*E503. 75' N0*E300' N89*W503.75' S0*W300' TPB EX HWY EX W100 ' EX N150' OF E160'OF W260' EX S150' OF E100' OF W200' EX N150' OF E243.75'; EX BG 200'E OF TPB N1*E140' S88*E 119' S20*W |
| Geographic ID: | R13335-070-1370 | Agent Code: | |
| Type: | Real | | |
| Tax Area: | 100 - APPRAISER-OH Schl Dist, in OH | Land Use Code | 69 |
| Open Space: | N | DFL | N |
| Historic Property: | N | Remodel Property: | N |
| Multi-Family Redevelopment: | N | | |
| Township: | 33 | Section: | 35 |
| Range: | R1 |
Location |
| Address: | 390 E WHIDBEY AVE OAK HARBOR, WA 98277 | Mapsco: | |
| Neighborhood: | 4BcOH-whidbey ave | Map ID: | 256 |
| Neighborhood CD: | 4BcOHwhdby |
Owner |
| Name: | INFINITY REALTY, LLC | Owner ID: | 294536 |
| Mailing Address: | 390 E WHIDBEY AVE OAK HARBOR, WA 98277 | % Ownership: | 100.0000000000% |
| | | Exemptions: | |
Taxes and Assessment Details
Values
| (+) Improvement Homesite Value: | + | $0 | |
| (+) Improvement Non-Homesite Value: | + | $221,994 | |
| (+) Land Homesite Value: | + | $0 | |
| (+) Land Non-Homesite Value: | + | $278,784 | |
| (+) Curr Use (HS): | + | $0 | $0 |
| (+) Curr Use (NHS): | + | $0 | $0 |
| | | -------------------------- | |
| (=) Market Value: | = | $500,778 | |
| (–) Productivity Loss: | – | $0 | |
| | | -------------------------- | |
| (=) Subtotal: | = | $500,778 | |
| (+) Senior Appraised Value: | + | $0 | |
| (+) Non-Senior Appraised Value: | + | $500,778 | |
| | | -------------------------- | |
| (=) Total Appraised Value: | = | $500,778 | |
| (–) Senior Exemption Loss: | – | $0 | |
| (–) Exemption Loss: | – | $0 | |
| | | -------------------------- | |
| (=) Taxable Value: | = | $500,778 | |
Taxing Jurisdiction
| Owner: | INFINITY REALTY, LLC | | |
| % Ownership: | 100.0000000000% | | |
| Total Value: | $500,778 | | |
| Tax Area: | 100 - APPRAISER-OH Schl Dist, in OH |
| CF | Conservation Futures | 0.0316035091 | $500,778 | $500,778 | $15.83 | | |
| CEM1 | Cemetery #1 | 0.0040320932 | $500,778 | $500,778 | $2.02 | | |
| COH | City of Oak Harbor | 2.3001546061 | $500,778 | $500,778 | $1,151.87 | | |
| OAKBOND | City of Oak Harbor BOND | 0.1926904192 | $500,778 | $500,778 | $96.50 | | |
| HOBOND | Hospital BOND | 0.1910887512 | $500,778 | $500,778 | $95.69 | | |
| HOGEN | Hospital GEN | 0.3902502903 | $500,778 | $500,778 | $195.43 | | |
| CE | County Current Expense | 0.3708482477 | $500,778 | $500,778 | $185.71 | | |
| ISLANDEMS | Hospital GEN (EMS) | 0.5000000000 | $500,778 | $500,778 | $250.39 | | |
| LIB | Library Sno-Isle GEN | 0.3153421757 | $500,778 | $500,778 | $157.92 | | |
| NWHIDPRMT | P & R N Whidbey GEN | 0.2004466701 | $500,778 | $500,778 | $100.38 | | |
| SCH201MO | School 201 Enrichment | 1.8559231640 | $500,778 | $500,778 | $929.41 | | |
| ST | State School | 1.3035497053 | $500,778 | $500,778 | $652.79 | | |
| ST2 | State School Part 2 | 0.8169543533 | $500,778 | $500,778 | $409.11 | | |
| | Total Tax Rate: | 8.4728839852 | | | | | |
| | | | | Taxes w/Current Exemptions: | $4,243.05 | | |
| | | | | Taxes w/o Exemptions: | $4,243.05 | | |
Improvement / Building
| Improvement #1: | COMMERCIAL | State Code: | F1 | 2000.0 sqft | Value: | $221,994 |
| Bathrooms: | 0 | Bedrooms: | 0 | | Ceiling: | DRYWALL PAINTED | Cooling: | HEAT PUMP/CONV/V | | Exterior Wall/Cover: | WD/WD OR STEEL STUDS | Floor Covering: | CARPET 100% | | Floor Structure: | WOOD ON WOOD JOIST | Foundation: | CONCRETE | | Interior Finish: | OFFICE | Plumbing Fixture Cnt: | 1 | | Roof Structure/Cover: | BEAM BUILT-UP ROCK |   |   |
|
| | Type | Description | Class CD | Sub Class CD | Year Built | Area |
| | BAS | BASE/MAIN FLOOR | 3 | 0 | 1985 | 2000.0 |
| | OP3 | OPEN PORCH W/ROOF | 3 | 0 | 1985 | 220.0 |
| | oPV2 | PV/ASPH 3" | 3 | 0 | 1985 | 7400.0 |
Sketch
Property Image
Land
| 1 | 64 | PERSONAL BUSINESS | 0.3200 | 13939.20 | 0.00 | 0.00 | 1.00 | $278,784 | $0 |
Roll Value History
| 2026 | N/A | N/A | N/A | N/A | N/A |
| 2025 | $221,994 | $278,784 | $0 | $500,778 | $500,778 |
| 2024 | $228,351 | $278,784 | $0 | $507,135 | $507,135 |
| 2023 | $239,279 | $278,784 | $0 | $518,063 | $518,063 |
| 2022 | $125,893 | $278,784 | $0 | $404,677 | $404,677 |
| 2021 | $75,238 | $278,784 | $0 | $354,022 | $354,022 |
| 2020 | $54,141 | $278,784 | $0 | $332,925 | $332,925 |
| 2019 | $65,532 | $250,906 | $0 | $316,438 | $316,438 |
| 2018 | $65,542 | $209,088 | $0 | $274,630 | $274,630 |
| 2017 | $65,562 | $125,100 | $0 | $190,662 | $190,662 |
| 2016 | $65,602 | $125,100 | $0 | $190,702 | $190,702 |
| 2015 | $70,183 | $125,100 | $0 | $195,283 | $195,283 |
| 2014 | $94,891 | $125,100 | $0 | $219,991 | $219,991 |
| 2013 | $94,891 | $125,100 | $0 | $219,991 | $219,991 |
| 2012 | $94,891 | $125,100 | $0 | $219,991 | $219,991 |
| 2011 | $94,891 | $125,100 | $0 | $219,991 | $219,991 |
| 2010 | $110,109 | $125,100 | $0 | $235,209 | $235,209 |
| 2009 | $113,702 | $141,525 | $0 | $255,227 | $255,227 |
| 2008 | $115,498 | $141,525 | $0 | $257,023 | $257,023 |
| 2007 | $119,091 | $141,525 | $0 | $260,616 | $260,616 |
Deed and Sales History
| 1 | 12/28/2020 | WD | Warranty Deed | BURGE, E LYNN | INFINITY REALTY, LLC | | | $275,000.00 | 46321 | 4506459 |
| 2 | 08/01/1988 | WD | Warranty Deed | BURGE, E L | BURGE, E L | | | $500.00 | 82852 | 88010702 |
| 3 | 09/01/1976 | EXECUTORD | Executor Deed | Unknown | BURGE, E L | | | $17,000.00 | 63432 | 0 |
Payout Agreement
| No payout information available.. |