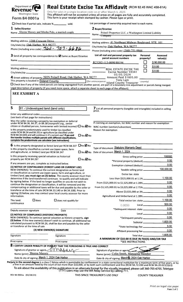
Property
Account |
| Property ID: | 41671 | Abbreviated Legal Description: | 2 - IN ELLMORE DC DESC : BG SECR SD DC ALSO NECR ULRICH FREUND DC N130' N89*W30' TO NECR LOT 1 ELLMORE ADD & TPB N89*W100' TO NWCR LOT 1 N40' S89*E100' TO WLN 80TH NW ST SLY ALG WLN 40' TPB TGW & SUB EZ AF#95009306 |
| Geographic ID: | R13335-076-0130 | Agent Code: | |
| Type: | Real | | |
| Tax Area: | 100 - APPRAISER-OH Schl Dist, in OH | Land Use Code | 11 |
| Open Space: | N | DFL | N |
| Historic Property: | N | Remodel Property: | N |
| Multi-Family Redevelopment: | N | | |
| Township: | 33 | Section: | 35 |
| Range: | R1 |
Location |
| Address: | 45 N OAK HARBOR ST OAK HARBOR, WA 98277 | Mapsco: | |
| Neighborhood: | Cycle 1 | Map ID: | 256 |
| Neighborhood CD: | 1 |
Owner |
| Name: | T&CM 45 N OAK HARBOR ST, LLC | Owner ID: | 307042 |
| Mailing Address: | PO BOX 572 OAK HARBOR, WA 98277 | % Ownership: | 100.0000000000% |
| | | Exemptions: | |
Taxes and Assessment Details
Values
| (+) Improvement Homesite Value: | + | $0 | |
| (+) Improvement Non-Homesite Value: | + | $205,728 | |
| (+) Land Homesite Value: | + | $0 | |
| (+) Land Non-Homesite Value: | + | $190,000 | |
| (+) Curr Use (HS): | + | $0 | $0 |
| (+) Curr Use (NHS): | + | $0 | $0 |
| | | -------------------------- | |
| (=) Market Value: | = | $395,728 | |
| (–) Productivity Loss: | – | $0 | |
| | | -------------------------- | |
| (=) Subtotal: | = | $395,728 | |
| (+) Senior Appraised Value: | + | $0 | |
| (+) Non-Senior Appraised Value: | + | $395,728 | |
| | | -------------------------- | |
| (=) Total Appraised Value: | = | $395,728 | |
| (–) Senior Exemption Loss: | – | $0 | |
| (–) Exemption Loss: | – | $0 | |
| | | -------------------------- | |
| (=) Taxable Value: | = | $395,728 | |
Taxing Jurisdiction
| Owner: | T&CM 45 N OAK HARBOR ST, LLC | | |
| % Ownership: | 100.0000000000% | | |
| Total Value: | $395,728 | | |
| Tax Area: | 100 - APPRAISER-OH Schl Dist, in OH |
| CF | Conservation Futures | 0.0316035091 | $395,728 | $395,728 | $12.51 | | |
| CEM1 | Cemetery #1 | 0.0040320932 | $395,728 | $395,728 | $1.60 | | |
| COH | City of Oak Harbor | 2.3001546061 | $395,728 | $395,728 | $910.24 | | |
| OAKBOND | City of Oak Harbor BOND | 0.1926904192 | $395,728 | $395,728 | $76.25 | | |
| HOBOND | Hospital BOND | 0.1910887512 | $395,728 | $395,728 | $75.62 | | |
| HOGEN | Hospital GEN | 0.3902502903 | $395,728 | $395,728 | $154.43 | | |
| CE | County Current Expense | 0.3708482477 | $395,728 | $395,728 | $146.76 | | |
| ISLANDEMS | Hospital GEN (EMS) | 0.5000000000 | $395,728 | $395,728 | $197.86 | | |
| LIB | Library Sno-Isle GEN | 0.3153421757 | $395,728 | $395,728 | $124.79 | | |
| NWHIDPRMT | P & R N Whidbey GEN | 0.2004466701 | $395,728 | $395,728 | $79.32 | | |
| SCH201MO | School 201 Enrichment | 1.8559231640 | $395,728 | $395,728 | $734.44 | | |
| ST | State School | 1.3035497053 | $395,728 | $395,728 | $515.85 | | |
| ST2 | State School Part 2 | 0.8169543533 | $395,728 | $395,728 | $323.29 | | |
| | Total Tax Rate: | 8.4728839852 | | | | | |
| | | | | Taxes w/Current Exemptions: | $3,352.96 | | |
| | | | | Taxes w/o Exemptions: | $3,352.96 | | |
Improvement / Building
| Improvement #1: | RESIDENTIAL | State Code: | Y | 1092.0 sqft | Value: | $205,728 |
| Bathrooms: | 1.5 | Bedrooms: | 2 | | Ceiling: | DRYWALL PAINTED | Exterior Wall/Cover: | CEMENT FIBER | | Floor Covering: | CARPET/VINYL 80-20 | Floor Structure: | WOOD W/SUBFLOOR | | Foundation: | CONCRETE | Heating: | FHA GAS | | Interior Finish: | DRYWALL PAINT | Plumbing Fixture Cnt: | 8 | | Roof Slope: | 5" IN 12" | Roof Structure/Cover: | CJ ASPHALT |
|
| | Type | Description | Class CD | Sub Class CD | Year Built | Area |
| | BAS | BASE/MAIN FLOOR | 3 | 0 | 2000 | 546.0 |
| | DGR | DETACHED GARAGE | 3 | 0 | 2000 | 448.4 |
| | UPS | UPPER STORY | 3 | 0 | 2000 | 546.0 |
| | OWC | OPEN WOOD PORCH W/STEPS/ROOF/C | 3 | 0 | 2000 | 80.0 |
Sketch
Property Image
Land
| 1 | 12 | SQ (00000-06000) | 0.0900 | 3920.40 | 0.00 | 0.00 | 1.00 | $190,000 | $0 |
Roll Value History
| 2026 | N/A | N/A | N/A | N/A | N/A |
| 2025 | $205,728 | $190,000 | $0 | $395,728 | $395,728 |
| 2024 | $208,258 | $190,000 | $0 | $398,258 | $398,258 |
| 2023 | $210,790 | $190,000 | $0 | $400,790 | $400,790 |
| 2022 | $183,995 | $180,000 | $0 | $363,995 | $363,995 |
| 2021 | $161,992 | $120,000 | $0 | $281,992 | $281,992 |
| 2020 | $157,614 | $100,000 | $0 | $257,614 | $257,614 |
| 2019 | $112,018 | $150,000 | $0 | $262,018 | $262,018 |
| 2018 | $112,354 | $130,000 | $0 | $242,354 | $242,354 |
| 2017 | $114,055 | $110,000 | $0 | $224,055 | $224,055 |
| 2016 | $115,412 | $90,000 | $0 | $205,412 | $205,412 |
| 2015 | $116,770 | $55,000 | $0 | $171,770 | $171,770 |
| 2014 | $118,128 | $55,000 | $0 | $173,128 | $173,128 |
| 2013 | $119,486 | $55,000 | $0 | $174,486 | $174,486 |
| 2012 | $120,843 | $65,000 | $0 | $185,843 | $185,843 |
| 2011 | $120,636 | $50,000 | $0 | $170,636 | $170,636 |
| 2010 | $123,466 | $50,000 | $0 | $173,466 | $173,466 |
| 2009 | $128,621 | $66,400 | $0 | $195,021 | $195,021 |
| 2008 | $130,031 | $80,000 | $0 | $210,031 | $210,031 |
| 2007 | $130,083 | $80,000 | $0 | $210,083 | $210,083 |
Deed and Sales History
| 1 | 12/22/2022 | QCD | Quit Claim Deed | MCCARTHY, TIMOTHY E | T&CM 45 N OAK HARBOR ST, LLC | | | $0.00 | 55469 | 4555139 |
| 2 | 11/16/2022 | WD | Warranty Deed | DAVIS TRUSTEE, PATRIA R | MCCARTHY, TIMOTHY E | | | $365,000.00 | 55181 | 4553948 |
| 3 | 12/01/1994 | WD | Warranty Deed | DYER, MARJORIE N | DAVIS, PATRIA R | | | $10,100.00 | 45041 | 94025709 |
| 4 | 08/01/1986 | PRD | Personal Representatives Deed | DYER, MARJORIE N | DYER, MARJORIE N | | | $0.00 | 62057 | 86009637 |
| 5 | 08/01/1986 | PRD | Personal Representatives Deed | DYER, C Y | DYER, MARJORIE N | | | $0.00 | 62612 | 86011888 |
| 6 | 01/01/1900 | OTHER | Other - Misc. Documents | Unknown | DYER, C Y | | | $0.00 | 0 | 0 |
Payout Agreement
| No payout information available.. |