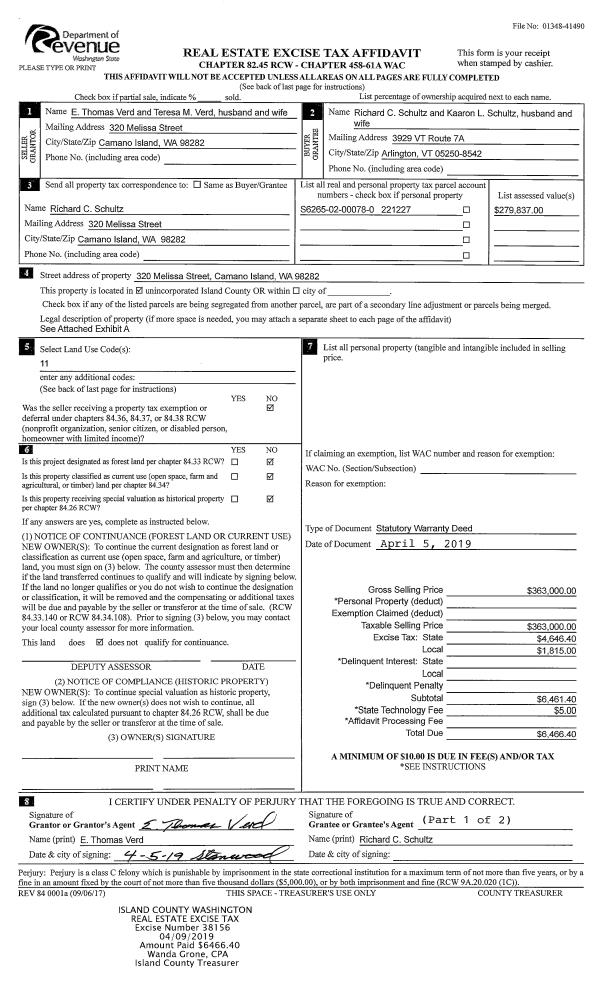
Property
Account |
| Property ID: | 417098 | Abbreviated Legal Description: | USE BAY 6 LOT 97 |
| Geographic ID: | S8340-06-00097-0 | Agent Code: | |
| Type: | Real | | |
| Tax Area: | 750 - APPRAISER-S Whid Schl Dist, Special District, improved & less than 1 acre | Land Use Code | 11 |
| Open Space: | N | DFL | N |
| Historic Property: | N | Remodel Property: | N |
| Multi-Family Redevelopment: | N | | |
| Township: | | Section: | |
| Range: | |
Location |
| Address: | 2289 LORI DR LANGLEY, WA 98260 | Mapsco: | |
| Neighborhood: | Cycle 3 | Map ID: | 322 |
| Neighborhood CD: | 3 |
Owner |
| Name: | CRAWFORD III, WILLIAM BOYD | Owner ID: | 289846 |
| Mailing Address: | A. JENNIFER L CRAWFORD 2289 LORI DR LANGLEY, WA 98260 | % Ownership: | 100.0000000000% |
| | | Exemptions: | |
Taxes and Assessment Details
Values
| (+) Improvement Homesite Value: | + | $0 | |
| (+) Improvement Non-Homesite Value: | + | $347,814 | |
| (+) Land Homesite Value: | + | $0 | |
| (+) Land Non-Homesite Value: | + | $290,000 | |
| (+) Curr Use (HS): | + | $0 | $0 |
| (+) Curr Use (NHS): | + | $0 | $0 |
| | | -------------------------- | |
| (=) Market Value: | = | $637,814 | |
| (–) Productivity Loss: | – | $0 | |
| | | -------------------------- | |
| (=) Subtotal: | = | $637,814 | |
| (+) Senior Appraised Value: | + | $0 | |
| (+) Non-Senior Appraised Value: | + | $637,814 | |
| | | -------------------------- | |
| (=) Total Appraised Value: | = | $637,814 | |
| (–) Senior Exemption Loss: | – | $0 | |
| (–) Exemption Loss: | – | $0 | |
| | | -------------------------- | |
| (=) Taxable Value: | = | $637,814 | |
Taxing Jurisdiction
| Owner: | CRAWFORD III, WILLIAM BOYD | | |
| % Ownership: | 100.0000000000% | | |
| Total Value: | $637,814 | | |
| Tax Area: | 750 - APPRAISER-S Whid Schl Dist, Special District, improved & less than 1 acre |
| CF | Conservation Futures | 0.0316035091 | $637,814 | $637,814 | $20.16 | | |
| FIRE3 | Fire & Rescue Dist #3 S Whidbey GEN | 1.2004855531 | $637,814 | $637,814 | $765.69 | | |
| HOBOND | Hospital BOND | 0.1910887512 | $637,814 | $637,814 | $121.88 | | |
| HOGEN | Hospital GEN | 0.3902502903 | $637,814 | $637,814 | $248.91 | | |
| CE | County Current Expense | 0.3708482477 | $637,814 | $637,814 | $236.53 | | |
| CR | County Roads | 0.4584763726 | $637,814 | $637,814 | $292.42 | | |
| ISLANDEMS | Hospital GEN (EMS) | 0.5000000000 | $637,814 | $637,814 | $318.91 | | |
| LIB | Library Sno-Isle GEN | 0.3153421757 | $637,814 | $637,814 | $201.13 | | |
| PORTWHID | Port of S Whidbey GEN | 0.1094540357 | $637,814 | $637,814 | $69.81 | | |
| SCH206BOND | School 206 BOND | 0.3161759235 | $637,814 | $637,814 | $201.66 | | |
| SCH206MO | School 206 Enrichment | 0.4547169547 | $637,814 | $637,814 | $290.02 | | |
| ST | State School | 1.3035497053 | $637,814 | $637,814 | $831.42 | | |
| ST2 | State School Part 2 | 0.8169543533 | $637,814 | $637,814 | $521.06 | | |
| SWHIDPRBD | P & R S Whidbey BOND | 0.0152817568 | $637,814 | $637,814 | $9.75 | | |
| SWHIDPRBD2 | P & R S Whidbey BOND2 | 0.0138911264 | $637,814 | $637,814 | $8.86 | | |
| SWHIDPRMT | P & R S Whidbey GEN | 0.2053334452 | $637,814 | $637,814 | $130.96 | | |
| | Total Tax Rate: | 6.6934522006 | | | | | |
| | | | | Taxes w/Current Exemptions: | $4,269.17 | | |
| | | | | Taxes w/o Exemptions: | $4,269.17 | | |
Improvement / Building
| Improvement #1: | RESIDENTIAL | State Code: | Y | 2662.4 sqft | Value: | $347,814 |
| Bathrooms: | 3 | Bedrooms: | 3 | | Ceiling: | DRYWALL PAINTED | Cooling: | HEAT PUMP/CONV/V | | Exterior Wall/Cover: | WOOD SIDING | Floor Covering: | CARPET/VINYL 80-20 | | Floor Structure: | WOOD W/SUBFLOOR | Foundation: | CONCRETE | | Interior Finish: | DRYWALL PAINT | Plumbing Fixture Cnt: | 11 | | Roof Slope: | 4" IN 12" | Roof Structure/Cover: | CJ ASPHALT |
|
| | Type | Description | Class CD | Sub Class CD | Year Built | Area |
| | BAS | BASE/MAIN FLOOR | 3 | 0 | 1979 | 1614.4 |
| | OP1 | OPEN PORCH SLAB | 3 | 0 | 1979 | 180.0 |
| | BIG | BUILT IN GARAGE | 3 | 0 | 1979 | 640.0 |
| | OWP | OPEN WOOD PORCH W/STEPS | 3 | 0 | 1979 | 275.2 |
| | OWR | OPEN WOOD PORCH W/STEPS/ROOF | 3 | 0 | 1979 | 36.0 |
| | CPD | OPEN CARPORT DIRT FLOOR | 3 | 0 | 1979 | 126.0 |
| | DWN | DOWNSTAIRS LIVING AREA | 3 | 0 | 1979 | 1048.0 |
Sketch
Property Image
Land
| 1 | 14 | SQ (08001-12000) | 0.0000 | 0.00 | 0.00 | 0.00 | 1.00 | $290,000 | $0 |
Roll Value History
| 2026 | N/A | N/A | N/A | N/A | N/A |
| 2025 | $347,814 | $290,000 | $0 | $637,814 | $637,814 |
| 2024 | $352,438 | $270,000 | $0 | $622,438 | $622,438 |
| 2023 | $357,059 | $250,000 | $0 | $607,059 | $607,059 |
| 2022 | $327,501 | $210,000 | $0 | $537,501 | $537,501 |
| 2021 | $288,420 | $180,000 | $0 | $468,420 | $468,420 |
| 2020 | $281,845 | $140,000 | $0 | $421,845 | $421,845 |
| 2019 | $171,329 | $180,000 | $0 | $351,329 | $351,329 |
| 2018 | $171,975 | $155,000 | $0 | $326,975 | $326,975 |
| 2017 | $173,248 | $120,000 | $0 | $293,248 | $293,248 |
| 2016 | $175,834 | $95,000 | $0 | $270,834 | $270,834 |
| 2015 | $178,420 | $65,000 | $0 | $243,420 | $243,420 |
| 2014 | $181,006 | $75,000 | $0 | $256,006 | $256,006 |
| 2013 | $169,125 | $75,500 | $0 | $244,625 | $244,625 |
| 2012 | $171,605 | $75,500 | $0 | $247,105 | $247,105 |
| 2011 | $174,084 | $75,500 | $0 | $249,584 | $249,584 |
| 2010 | $185,382 | $85,800 | $0 | $271,182 | $271,182 |
| 2009 | $193,448 | $144,300 | $0 | $337,748 | $337,748 |
| 2008 | $195,932 | $145,000 | $0 | $340,932 | $340,932 |
| 2007 | $177,314 | $145,000 | $0 | $322,314 | $322,314 |
Deed and Sales History
| 1 | 05/10/2019 | WD | Warranty Deed | IRVIN JTWROS, TERESA W | CRAWFORD III, WILLIAM BOYD | | | $457,000.00 | 38593 | 4463746 |
| 2 | 01/11/2013 | QCD | Quit Claim Deed | IRVIN, TERESA W | IRVIN JTWROS, TERESA W | | | $0.00 | 10151 | 4331510 |
| 3 | 03/21/2009 | OTHER | Other - Misc. Documents | IRVIN, DONALD M | IRVIN, TERESA W | | | $0.00 | 80367 | 0 |
| 4 | 06/12/2003 | WD | Warranty Deed | MACKENZIE, EDWARD R | IRVIN, DONALD M | | | $190,000.00 | 32647 | 4063623 |
| 5 | 11/15/2001 | QCD | Quit Claim Deed | MACKENZIE, EDWARD R | MACKENZIE, EDWARD R | | | $0.00 | 14470 | 4003648 |
| 6 | 12/01/1994 | QCD | Quit Claim Deed | MACKENZIE, EDWARD R | MACKENZIE, EDWARD R | | | $0.00 | 45090 | 94025962 |
| 7 | 05/01/1988 | WD | Warranty Deed | FARNWORTH, WILFRED & | MACKENZIE, EDWARD R | | | $90,500.00 | 81867 | 88006976 |
| 8 | 07/01/1979 | CD | DNU - Correction Deed | FARNWORTH, WILFRED | FARNWORTH, WILFRED & | | | $0.00 | 93625 | 356118 |
| 9 | 03/01/1979 | OTHER | Other - Misc. Documents | Unknown | FARNWORTH, WILFRED | | | $10,000.00 | 913430 | 3497230 |
Payout Agreement
| No payout information available.. |