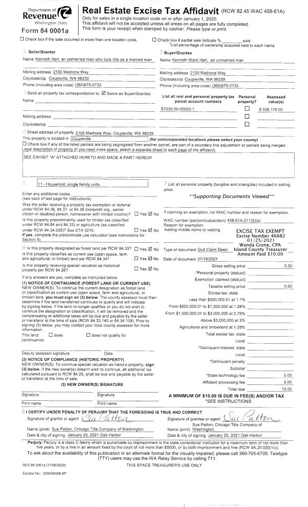
Property
Account |
| Property ID: | 417123 | Abbreviated Legal Description: | USE BAY 6 LOT 100 |
| Geographic ID: | S8340-06-00100-0 | Agent Code: | |
| Type: | Real | | |
| Tax Area: | 750 - APPRAISER-S Whid Schl Dist, Special District, improved & less than 1 acre | Land Use Code | 11 |
| Open Space: | N | DFL | N |
| Historic Property: | N | Remodel Property: | N |
| Multi-Family Redevelopment: | N | | |
| Township: | | Section: | |
| Range: | |
Location |
| Address: | 5834 CAPT VANCOUVER DR LANGLEY, WA 98260 | Mapsco: | |
| Neighborhood: | Cycle 3 | Map ID: | 322 |
| Neighborhood CD: | 3 |
Owner |
| Name: | ROUSH HANSEN REVOCABLE TRUST | Owner ID: | 309398 |
| Mailing Address: | 11603 EAST OAKMONT DR MUKILTEO, WA 98275 | % Ownership: | 100.0000000000% |
| | | Exemptions: | |
Taxes and Assessment Details
Values
| (+) Improvement Homesite Value: | + | $0 | |
| (+) Improvement Non-Homesite Value: | + | $442,136 | |
| (+) Land Homesite Value: | + | $0 | |
| (+) Land Non-Homesite Value: | + | $290,000 | |
| (+) Curr Use (HS): | + | $0 | $0 |
| (+) Curr Use (NHS): | + | $0 | $0 |
| | | -------------------------- | |
| (=) Market Value: | = | $732,136 | |
| (–) Productivity Loss: | – | $0 | |
| | | -------------------------- | |
| (=) Subtotal: | = | $732,136 | |
| (+) Senior Appraised Value: | + | $0 | |
| (+) Non-Senior Appraised Value: | + | $732,136 | |
| | | -------------------------- | |
| (=) Total Appraised Value: | = | $732,136 | |
| (–) Senior Exemption Loss: | – | $0 | |
| (–) Exemption Loss: | – | $0 | |
| | | -------------------------- | |
| (=) Taxable Value: | = | $732,136 | |
Taxing Jurisdiction
| Owner: | ROUSH HANSEN REVOCABLE TRUST | | |
| % Ownership: | 100.0000000000% | | |
| Total Value: | $732,136 | | |
| Tax Area: | 750 - APPRAISER-S Whid Schl Dist, Special District, improved & less than 1 acre |
| CF | Conservation Futures | 0.0316035091 | $732,136 | $732,136 | $23.14 | | |
| FIRE3 | Fire & Rescue Dist #3 S Whidbey GEN | 1.2004855531 | $732,136 | $732,136 | $878.92 | | |
| HOBOND | Hospital BOND | 0.1910887512 | $732,136 | $732,136 | $139.90 | | |
| HOGEN | Hospital GEN | 0.3902502903 | $732,136 | $732,136 | $285.72 | | |
| CE | County Current Expense | 0.3708482477 | $732,136 | $732,136 | $271.51 | | |
| CR | County Roads | 0.4584763726 | $732,136 | $732,136 | $335.67 | | |
| ISLANDEMS | Hospital GEN (EMS) | 0.5000000000 | $732,136 | $732,136 | $366.07 | | |
| LIB | Library Sno-Isle GEN | 0.3153421757 | $732,136 | $732,136 | $230.87 | | |
| PORTWHID | Port of S Whidbey GEN | 0.1094540357 | $732,136 | $732,136 | $80.14 | | |
| SCH206BOND | School 206 BOND | 0.3161759235 | $732,136 | $732,136 | $231.48 | | |
| SCH206MO | School 206 Enrichment | 0.4547169547 | $732,136 | $732,136 | $332.91 | | |
| ST | State School | 1.3035497053 | $732,136 | $732,136 | $954.38 | | |
| ST2 | State School Part 2 | 0.8169543533 | $732,136 | $732,136 | $598.12 | | |
| SWHIDPRBD | P & R S Whidbey BOND | 0.0152817568 | $732,136 | $732,136 | $11.19 | | |
| SWHIDPRBD2 | P & R S Whidbey BOND2 | 0.0138911264 | $732,136 | $732,136 | $10.17 | | |
| SWHIDPRMT | P & R S Whidbey GEN | 0.2053334452 | $732,136 | $732,136 | $150.33 | | |
| | Total Tax Rate: | 6.6934522006 | | | | | |
| | | | | Taxes w/Current Exemptions: | $4,900.52 | | |
| | | | | Taxes w/o Exemptions: | $4,900.52 | | |
Improvement / Building
| Improvement #1: | RESIDENTIAL | State Code: | Y | 2695.0 sqft | Value: | $442,136 |
| Bathrooms: | 2.5 | Bedrooms: | 2 | | Ceiling: | DRY WALL SPRAYED | Cooling: | HEAT PUMP/CONV/V | | Exterior Wall/Cover: | CEMENT FIBER | Floor Covering: | CARPET/VINYL 80-20 | | Floor Structure: | SLAB ON GRADE | Foundation: | CONCRETE | | Interior Finish: | DRYWALL PAINT | Plumbing Fixture Cnt: | 9 | | Roof Slope: | 5" IN 12" | Roof Structure/Cover: | CJ ASPHALT |
|
| | Type | Description | Class CD | Sub Class CD | Year Built | Area |
| | BAS | BASE/MAIN FLOOR | 4 | 0 | 1980 | 1093.0 |
| | DWN | DOWNSTAIRS LIVING AREA | 4 | 0 | 1980 | 1602.0 |
| | AGR | ATTACHED GARAGE | 4 | 0 | 1980 | 528.0 |
| | OWP | OPEN WOOD PORCH W/STEPS | 4 | 0 | 1980 | 534.0 |
| | OWP | OPEN WOOD PORCH W/STEPS | 4 | 0 | 1980 | 160.0 |
| | OWP | OPEN WOOD PORCH W/STEPS | 4 | 0 | 1980 | 256.0 |
| | OWR | OPEN WOOD PORCH W/STEPS/ROOF | 4 | 0 | 1980 | 35.0 |
| | OWP | OPEN WOOD PORCH W/STEPS | 4 | 0 | 1980 | 72.0 |
Sketch
Property Image
Land
| 1 | 14 | SQ (08001-12000) | 0.0000 | 0.00 | 0.00 | 0.00 | 1.00 | $290,000 | $0 |
Roll Value History
| 2026 | N/A | N/A | N/A | N/A | N/A |
| 2025 | $442,136 | $290,000 | $0 | $732,136 | $732,136 |
| 2024 | $447,447 | $270,000 | $0 | $717,447 | $717,447 |
| 2023 | $452,757 | $250,000 | $0 | $702,757 | $702,757 |
| 2022 | $414,783 | $210,000 | $0 | $624,783 | $624,783 |
| 2021 | $364,843 | $180,000 | $0 | $544,843 | $544,843 |
| 2020 | $244,642 | $140,000 | $0 | $384,642 | $384,642 |
| 2019 | $166,417 | $180,000 | $0 | $346,417 | $346,417 |
| 2018 | $167,045 | $155,000 | $0 | $322,045 | $322,045 |
| 2017 | $168,301 | $120,000 | $0 | $288,301 | $288,301 |
| 2016 | $170,813 | $95,000 | $0 | $265,813 | $265,813 |
| 2015 | $173,325 | $65,000 | $0 | $238,325 | $238,325 |
| 2014 | $175,838 | $75,000 | $0 | $250,838 | $250,838 |
| 2013 | $180,418 | $75,500 | $0 | $255,918 | $255,918 |
| 2012 | $183,066 | $75,500 | $0 | $258,566 | $258,566 |
| 2011 | $185,713 | $75,500 | $0 | $261,213 | $261,213 |
| 2010 | $198,954 | $85,800 | $0 | $284,754 | $284,754 |
| 2009 | $207,622 | $144,300 | $0 | $351,922 | $351,922 |
| 2008 | $216,044 | $145,000 | $0 | $361,044 | $361,044 |
| 2007 | $211,619 | $145,000 | $0 | $356,619 | $356,619 |
Deed and Sales History
| 1 | 07/17/2023 | QCD | Quit Claim Deed | HANSEN, TARA P | ROUSH HANSEN REVOCABLE TRUST | | | $0.00 | 57391 | 4562600 |
| 2 | 11/25/2020 | WD | Warranty Deed | MORGAN, GREGORY A | HANSEN, TARA P | | | $580,000.00 | 45949 | 4503869 |
| 3 | 04/10/2013 | TRUSTEED | Trustee's Deed | MORGAN, GREGORY A | MORGAN, GREGORY A | | | $0.00 | 11113 | 4338684 |
| 4 | 08/04/2004 | QCD | Quit Claim Deed | MORGAN, GREGORY A | MORGAN, GREGORY A | | | $0.00 | 43658 | 4109465 |
| 5 | 08/01/1993 | WD | Warranty Deed | MORGAN, GREGORY A | MORGAN, GREGORY A | | | $165,000.00 | 32989 | 93015421 |
| 6 | 08/01/1993 | QCD | Quit Claim Deed | BENTLEY, WILLIAM F | MORGAN, GREGORY A | | | $0.00 | 32990 | 93015420 |
| 7 | 01/01/1900 | OTHER | Other - Misc. Documents | Unknown | BENTLEY, WILLIAM F | | | $0.00 | 0 | 0 |
Payout Agreement
| No payout information available.. |