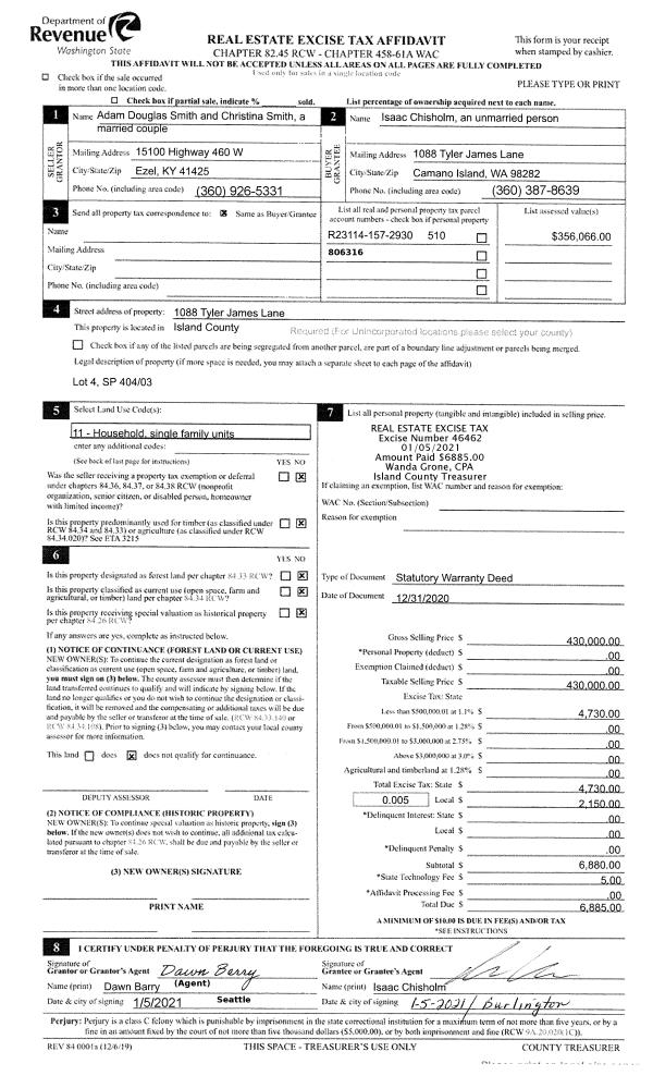
Property
Account |
| Property ID: | 417267 | Abbreviated Legal Description: | USE BAY 6 LOT 114 |
| Geographic ID: | S8340-06-00114-0 | Agent Code: | |
| Type: | Real | | |
| Tax Area: | 750 - APPRAISER-S Whid Schl Dist, Special District, improved & less than 1 acre | Land Use Code | 11 |
| Open Space: | N | DFL | N |
| Historic Property: | N | Remodel Property: | N |
| Multi-Family Redevelopment: | N | | |
| Township: | | Section: | |
| Range: | |
Location |
| Address: | 5876 CAPT VANCOUVER DR LANGLEY, WA 98260 | Mapsco: | |
| Neighborhood: | Cycle 3 | Map ID: | 322 |
| Neighborhood CD: | 3 |
Owner |
| Name: | FOCHT, JOAN B | Owner ID: | 184997 |
| Mailing Address: | 5876 CAPT VANCOUVER DR LANGLEY, WA 98260-9746 | % Ownership: | 100.0000000000% |
| | | Exemptions: | SNR/DSBL |
Taxes and Assessment Details
Values
| (+) Improvement Homesite Value: | + | $275,657 | |
| (+) Improvement Non-Homesite Value: | + | $0 | |
| (+) Land Homesite Value: | + | $340,000 | |
| (+) Land Non-Homesite Value: | + | $0 | |
| (+) Curr Use (HS): | + | $0 | $0 |
| (+) Curr Use (NHS): | + | $0 | $0 |
| | | -------------------------- | |
| (=) Market Value: | = | $615,657 | |
| (–) Productivity Loss: | – | $0 | |
| | | -------------------------- | |
| (=) Subtotal: | = | $615,657 | |
| (+) Senior Appraised Value: | + | $259,356 | |
| (+) Non-Senior Appraised Value: | + | $0 | |
| | | -------------------------- | |
| (=) Total Appraised Value: | = | $259,356 | |
| (–) Senior Exemption Loss: | – | $155,614 | |
| (–) Exemption Loss: | – | $0 | |
| | | -------------------------- | |
| (=) Taxable Value: | = | $103,742 | |
Taxing Jurisdiction
| Owner: | FOCHT, JOAN B | | |
| % Ownership: | 100.0000000000% | | |
| Total Value: | $615,657 | | |
| Tax Area: | 750 - APPRAISER-S Whid Schl Dist, Special District, improved & less than 1 acre |
| CF | Conservation Futures | 0.0316035091 | $615,657 | $103,742 | $3.28 | | |
| FIRE3 | Fire & Rescue Dist #3 S Whidbey GEN | 1.2004855531 | $615,657 | $103,742 | $124.54 | | |
| HOBOND | Hospital BOND | 0.0000000000 | $615,657 | $0 | $0.00 | | |
| HOGEN | Hospital GEN | 0.3902502903 | $615,657 | $103,742 | $40.49 | | |
| CE | County Current Expense | 0.3708482477 | $615,657 | $103,742 | $38.47 | | |
| CR | County Roads | 0.4584763726 | $615,657 | $103,742 | $47.56 | | |
| ISLANDEMS | Hospital GEN (EMS) | 0.5000000000 | $615,657 | $103,742 | $51.87 | | |
| LIB | Library Sno-Isle GEN | 0.3153421757 | $615,657 | $103,742 | $32.71 | | |
| PORTWHID | Port of S Whidbey GEN | 0.1094540357 | $615,657 | $103,742 | $11.35 | | |
| SCH206BOND | School 206 BOND | 0.3161759235 | $615,657 | $103,742 | $32.80 | | |
| SCH206MO | School 206 Enrichment | 0.0000000000 | $615,657 | $0 | $0.00 | | |
| ST | State School | 1.3035497053 | $615,657 | $103,742 | $135.23 | | |
| ST2 | State School Part 2 | 0.0000000000 | $615,657 | $0 | $0.00 | | |
| SWHIDPRBD | P & R S Whidbey BOND | 0.0000000000 | $615,657 | $0 | $0.00 | | |
| SWHIDPRBD2 | P & R S Whidbey BOND2 | 0.0000000000 | $615,657 | $0 | $0.00 | | |
| SWHIDPRMT | P & R S Whidbey GEN | 0.2053334452 | $615,657 | $103,742 | $21.30 | | |
| | Total Tax Rate: | 5.2015192582 | | | | | |
| | | | | Taxes w/Current Exemptions: | $539.60 | | |
| | | | | Taxes w/o Exemptions: | $4,120.88 | | |
Improvement / Building
| Improvement #1: | RESIDENTIAL | State Code: | Y | 2772.0 sqft | Value: | $275,657 |
| Bathrooms: | 2 | Bedrooms: | 3 | | Ceiling: | DRY WALL SPRAYED | Exterior Wall/Cover: | WOOD SIDING | | Floor Covering: | HARDWOOD/CARP 20-80 | Floor Structure: | WOOD W/SUBFLOOR | | Foundation: | CONCRETE | Heating: | FHA GAS | | Interior Finish: | DRYWALL PAINT | Plumbing Fixture Cnt: | 9 | | Roof Slope: | 4" IN 12" | Roof Structure/Cover: | CJ ASPHALT |
|
| | Type | Description | Class CD | Sub Class CD | Year Built | Area |
| | BAS | BASE/MAIN FLOOR | 3 | 0 | 1968 | 1446.0 |
| | DWN | DOWNSTAIRS LIVING AREA | 3 | 0 | 1968 | 1326.0 |
| | OP1 | OPEN PORCH SLAB | 3 | 0 | 1968 | 390.0 |
| | OCP | OPEN CARPORT | 3 | 0 | 1968 | 462.0 |
| | UTY | STORAGE/UTILITY | 3 | 0 | 1968 | 120.0 |
| | OWP | OPEN WOOD PORCH W/STEPS | 3 | 0 | 1968 | 250.0 |
| | OWP | OPEN WOOD PORCH W/STEPS | 3 | 0 | 1968 | 390.0 |
Sketch
Property Image
Land
| 1 | 14 | SQ (08001-12000) | 0.0000 | 0.00 | 0.00 | 0.00 | 1.00 | $340,000 | $0 |
Roll Value History
| 2026 | N/A | N/A | N/A | N/A | N/A |
| 2025 | $275,657 | $340,000 | $0 | $615,657 | $103,742 |
| 2024 | $279,881 | $320,000 | $0 | $599,881 | $103,742 |
| 2023 | $284,106 | $300,000 | $0 | $584,106 | $103,742 |
| 2022 | $261,090 | $280,000 | $0 | $541,090 | $103,742 |
| 2021 | $230,356 | $210,000 | $0 | $440,356 | $103,742 |
| 2020 | $225,800 | $160,000 | $0 | $385,800 | $103,742 |
| 2019 | $160,128 | $180,000 | $0 | $340,128 | $103,742 |
| 2018 | $160,730 | $155,000 | $0 | $315,730 | $103,742 |
| 2017 | $161,939 | $120,000 | $0 | $281,939 | $103,742 |
| 2016 | $164,356 | $95,000 | $0 | $259,356 | $103,742 |
| 2015 | $165,784 | $65,000 | $0 | $230,784 | $230,784 |
| 2014 | $168,189 | $75,000 | $0 | $243,189 | $243,189 |
| 2013 | $139,861 | $75,500 | $0 | $215,361 | $215,361 |
| 2012 | $142,337 | $75,500 | $0 | $217,837 | $217,837 |
| 2011 | $144,811 | $75,500 | $0 | $220,311 | $220,311 |
| 2010 | $163,851 | $85,800 | $0 | $249,651 | $249,651 |
| 2009 | $171,337 | $144,300 | $0 | $315,637 | $315,637 |
| 2008 | $174,014 | $145,000 | $0 | $319,014 | $319,014 |
| 2007 | $174,725 | $145,000 | $0 | $319,725 | $319,725 |
Deed and Sales History
| 1 | 03/01/1993 | WD | Warranty Deed | ARMSTRONG, JOHN H | FOCHT, JOAN B | | | $175,000.00 | 31136 | 93005795 |
| 2 | 01/01/1988 | QCD | Quit Claim Deed | ARMSTRONG, ERIS C | ARMSTRONG, JOHN H | | | $0.00 | 80062 | 88000247 |
| 3 | 01/01/1900 | OTHER | Other - Misc. Documents | Unknown | ARMSTRONG, ERIS C | | | $0.00 | 0 | 0 |
Payout Agreement
| No payout information available.. |