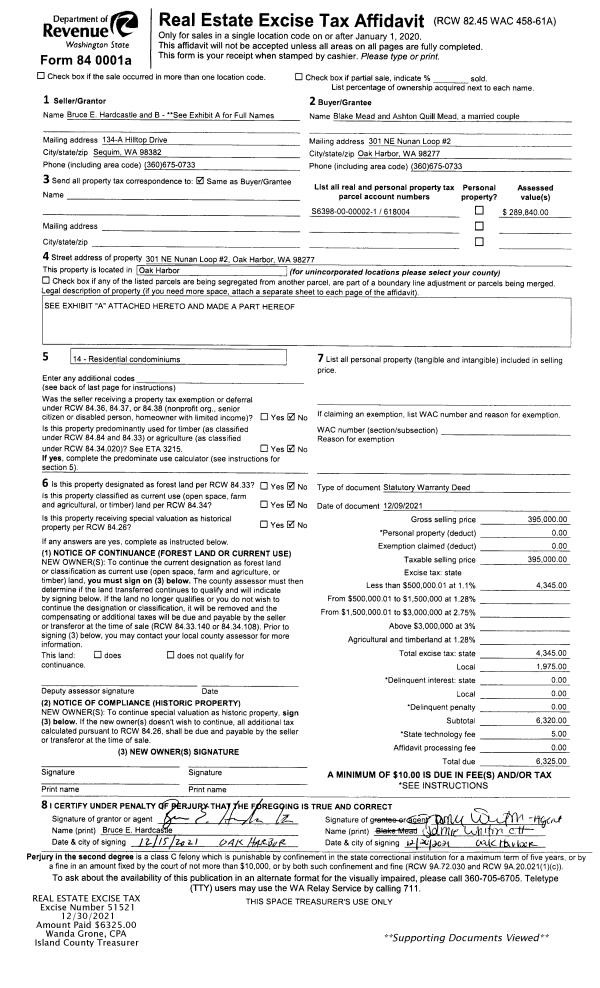
Property
Account |
| Property ID: | 417294 | Abbreviated Legal Description: | USE BAY 6 LOT 117 |
| Geographic ID: | S8340-06-00117-0 | Agent Code: | |
| Type: | Real | | |
| Tax Area: | 750 - APPRAISER-S Whid Schl Dist, Special District, improved & less than 1 acre | Land Use Code | 11 |
| Open Space: | N | DFL | N |
| Historic Property: | N | Remodel Property: | N |
| Multi-Family Redevelopment: | N | | |
| Township: | | Section: | |
| Range: | |
Location |
| Address: | 5892 CAPT VANCOUVER DR LANGLEY, WA 98260 | Mapsco: | |
| Neighborhood: | Cycle 3 | Map ID: | 322 |
| Neighborhood CD: | 3 |
Owner |
| Name: | BUEING, RONALD L | Owner ID: | 300909 |
| Mailing Address: | 5892 CAPT VANCOUVER LANGLEY, WA 98260 | % Ownership: | 100.0000000000% |
| | | Exemptions: | |
Taxes and Assessment Details
Values
| (+) Improvement Homesite Value: | + | $0 | |
| (+) Improvement Non-Homesite Value: | + | $459,577 | |
| (+) Land Homesite Value: | + | $0 | |
| (+) Land Non-Homesite Value: | + | $340,000 | |
| (+) Curr Use (HS): | + | $0 | $0 |
| (+) Curr Use (NHS): | + | $0 | $0 |
| | | -------------------------- | |
| (=) Market Value: | = | $799,577 | |
| (–) Productivity Loss: | – | $0 | |
| | | -------------------------- | |
| (=) Subtotal: | = | $799,577 | |
| (+) Senior Appraised Value: | + | $0 | |
| (+) Non-Senior Appraised Value: | + | $799,577 | |
| | | -------------------------- | |
| (=) Total Appraised Value: | = | $799,577 | |
| (–) Senior Exemption Loss: | – | $0 | |
| (–) Exemption Loss: | – | $0 | |
| | | -------------------------- | |
| (=) Taxable Value: | = | $799,577 | |
Taxing Jurisdiction
| Owner: | BUEING, RONALD L | | |
| % Ownership: | 100.0000000000% | | |
| Total Value: | $799,577 | | |
| Tax Area: | 750 - APPRAISER-S Whid Schl Dist, Special District, improved & less than 1 acre |
| CF | Conservation Futures | 0.0316035091 | $799,577 | $799,577 | $25.27 | | |
| FIRE3 | Fire & Rescue Dist #3 S Whidbey GEN | 1.2004855531 | $799,577 | $799,577 | $959.88 | | |
| HOBOND | Hospital BOND | 0.1910887512 | $799,577 | $799,577 | $152.79 | | |
| HOGEN | Hospital GEN | 0.3902502903 | $799,577 | $799,577 | $312.04 | | |
| CE | County Current Expense | 0.3708482477 | $799,577 | $799,577 | $296.52 | | |
| CR | County Roads | 0.4584763726 | $799,577 | $799,577 | $366.59 | | |
| ISLANDEMS | Hospital GEN (EMS) | 0.5000000000 | $799,577 | $799,577 | $399.79 | | |
| LIB | Library Sno-Isle GEN | 0.3153421757 | $799,577 | $799,577 | $252.14 | | |
| PORTWHID | Port of S Whidbey GEN | 0.1094540357 | $799,577 | $799,577 | $87.52 | | |
| SCH206BOND | School 206 BOND | 0.3161759235 | $799,577 | $799,577 | $252.81 | | |
| SCH206MO | School 206 Enrichment | 0.4547169547 | $799,577 | $799,577 | $363.58 | | |
| ST | State School | 1.3035497053 | $799,577 | $799,577 | $1,042.29 | | |
| ST2 | State School Part 2 | 0.8169543533 | $799,577 | $799,577 | $653.22 | | |
| SWHIDPRBD | P & R S Whidbey BOND | 0.0152817568 | $799,577 | $799,577 | $12.22 | | |
| SWHIDPRBD2 | P & R S Whidbey BOND2 | 0.0138911264 | $799,577 | $799,577 | $11.11 | | |
| SWHIDPRMT | P & R S Whidbey GEN | 0.2053334452 | $799,577 | $799,577 | $164.18 | | |
| | Total Tax Rate: | 6.6934522006 | | | | | |
| | | | | Taxes w/Current Exemptions: | $5,351.95 | | |
| | | | | Taxes w/o Exemptions: | $5,351.95 | | |
Improvement / Building
| Improvement #1: | RESIDENTIAL | State Code: | Y | 2839.5 sqft | Value: | $459,577 |
| Bathrooms: | 2.75 | Bedrooms: | 3 | | Ceiling: | DRYWALL PAINTED | Cooling: | HEAT PUMP/CONV/V | | Exterior Wall/Cover: | CEMENT FIBER | Floor Covering: | CARPET/VINYL 20-80 | | Floor Structure: | WOOD W/SUBFLOOR | Foundation: | CONCRETE | | Interior Finish: | DRYWALL PAINT | Plumbing Fixture Cnt: | 13 | | Roof Slope: | 4" IN 12" | Roof Structure/Cover: | CJ ASPHALT |
|
| | Type | Description | Class CD | Sub Class CD | Year Built | Area |
| | BAS | BASE/MAIN FLOOR | 3 | 0 | 2018 | 1592.0 |
| | AGR | ATTACHED GARAGE | 3 | 0 | 2018 | 564.0 |
| | DWN | DOWNSTAIRS LIVING AREA | 3 | 0 | 2018 | 1247.5 |
| | UB8 | BASEMENT UNFINISHED 8" | 3 | 0 | 2018 | 162.2 |
| | UB8 | BASEMENT UNFINISHED 8" | 3 | 0 | 2018 | 185.0 |
| | OWC | OPEN WOOD PORCH W/STEPS/ROOF/C | 3 | 0 | 2018 | 360.0 |
| | OP1 | OPEN PORCH SLAB | 3 | 0 | 2018 | 502.5 |
Sketch
Property Image
Land
| 1 | 14 | SQ (08001-12000) | 0.0000 | 0.00 | 0.00 | 0.00 | 1.00 | $340,000 | $0 |
Roll Value History
| 2026 | N/A | N/A | N/A | N/A | N/A |
| 2025 | $459,577 | $340,000 | $0 | $799,577 | $799,577 |
| 2024 | $463,284 | $320,000 | $0 | $783,284 | $783,284 |
| 2023 | $466,991 | $300,000 | $0 | $766,991 | $766,991 |
| 2022 | $426,233 | $280,000 | $0 | $706,233 | $706,233 |
| 2021 | $374,512 | $210,000 | $0 | $584,512 | $584,512 |
| 2020 | $367,778 | $160,000 | $0 | $527,778 | $527,778 |
| 2019 | $293,721 | $210,000 | $0 | $503,721 | $503,721 |
| 2018 | $79,099 | $70,000 | $0 | $149,099 | $149,099 |
| 2017 | $4,000 | $70,000 | $0 | $74,000 | $74,000 |
| 2016 | $4,000 | $60,000 | $0 | $64,000 | $64,000 |
| 2015 | $4,000 | $60,000 | $0 | $64,000 | $64,000 |
| 2014 | $4,000 | $60,000 | $0 | $64,000 | $64,000 |
| 2013 | $4,000 | $54,210 | $0 | $58,210 | $58,210 |
| 2012 | $4,000 | $54,210 | $0 | $58,210 | $58,210 |
| 2011 | $4,000 | $54,210 | $0 | $58,210 | $58,210 |
| 2010 | $4,000 | $61,600 | $0 | $65,600 | $65,600 |
| 2009 | $4,000 | $144,300 | $0 | $148,300 | $148,300 |
| 2008 | $4,000 | $135,000 | $0 | $139,000 | $139,000 |
| 2007 | $4,000 | $135,000 | $0 | $139,000 | $139,000 |
Deed and Sales History
| 1 | 07/14/2021 | QCD | Quit Claim Deed | BUEING, RONALD L | BUEING, RONALD L | | | $0.00 | 49782 | 4527650 |
| 2 | 08/31/2016 | WD | Warranty Deed | CONNELLY, PATRICK J | BUEING, RONALD L | | | $75,000.00 | 25990 | 4406543 |
| 3 | 11/27/1996 | DECREE | Divorce Decree/Legal Separation | CONNELLY, P J | CONNELLY, PATRICK J | | | $0.00 | 90576 | 99004113 |
| 4 | 04/01/1981 | EXECUTORD | Executor Deed | FOUR, FIFTEEN C | CONNELLY, P J | | | $17,500.00 | 11386 | 382715 |
| 5 | 04/01/1979 | CD | DNU - Correction Deed | MALOTT, THOMAS | FOUR, FIFTEEN C | | | $0.00 | 1397 | 368057 |
| 6 | 07/01/1978 | OTHER | Other - Misc. Documents | Unknown | MALOTT, THOMAS | | | $0.00 | 83242 | 3358950 |
Payout Agreement
| No payout information available.. |