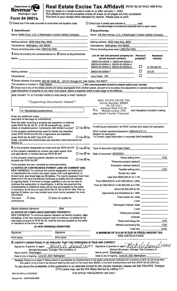
Property
Account |
| Property ID: | 417622 | Abbreviated Legal Description: | USELESS BAY 6 LOT 150 |
| Geographic ID: | S8340-06-00150-0 | Agent Code: | |
| Type: | Real | | |
| Tax Area: | 750 - APPRAISER-S Whid Schl Dist, Special District, improved & less than 1 acre | Land Use Code | 11 |
| Open Space: | N | DFL | N |
| Historic Property: | N | Remodel Property: | N |
| Multi-Family Redevelopment: | N | | |
| Township: | | Section: | |
| Range: | |
Location |
| Address: | 5822 DEER LAGOON RD LANGLEY, WA 98260 | Mapsco: | |
| Neighborhood: | Cycle 3 | Map ID: | 322 |
| Neighborhood CD: | 3 |
Owner |
| Name: | FUNK TTEE, CAROL A. C. | Owner ID: | 297767 |
| Mailing Address: | PO BOX 606 FREELAND, WA 98249 | % Ownership: | 100.0000000000% |
| | | Exemptions: | |
Taxes and Assessment Details
Values
| (+) Improvement Homesite Value: | + | $0 | |
| (+) Improvement Non-Homesite Value: | + | $279,655 | |
| (+) Land Homesite Value: | + | $0 | |
| (+) Land Non-Homesite Value: | + | $290,000 | |
| (+) Curr Use (HS): | + | $0 | $0 |
| (+) Curr Use (NHS): | + | $0 | $0 |
| | | -------------------------- | |
| (=) Market Value: | = | $569,655 | |
| (–) Productivity Loss: | – | $0 | |
| | | -------------------------- | |
| (=) Subtotal: | = | $569,655 | |
| (+) Senior Appraised Value: | + | $0 | |
| (+) Non-Senior Appraised Value: | + | $569,655 | |
| | | -------------------------- | |
| (=) Total Appraised Value: | = | $569,655 | |
| (–) Senior Exemption Loss: | – | $0 | |
| (–) Exemption Loss: | – | $0 | |
| | | -------------------------- | |
| (=) Taxable Value: | = | $569,655 | |
Taxing Jurisdiction
| Owner: | FUNK TTEE, CAROL A. C. | | |
| % Ownership: | 100.0000000000% | | |
| Total Value: | $569,655 | | |
| Tax Area: | 750 - APPRAISER-S Whid Schl Dist, Special District, improved & less than 1 acre |
| CF | Conservation Futures | 0.0316035091 | $569,655 | $569,655 | $18.00 | | |
| FIRE3 | Fire & Rescue Dist #3 S Whidbey GEN | 1.2004855531 | $569,655 | $569,655 | $683.86 | | |
| HOBOND | Hospital BOND | 0.1910887512 | $569,655 | $569,655 | $108.85 | | |
| HOGEN | Hospital GEN | 0.3902502903 | $569,655 | $569,655 | $222.31 | | |
| CE | County Current Expense | 0.3708482477 | $569,655 | $569,655 | $211.26 | | |
| CR | County Roads | 0.4584763726 | $569,655 | $569,655 | $261.17 | | |
| ISLANDEMS | Hospital GEN (EMS) | 0.5000000000 | $569,655 | $569,655 | $284.83 | | |
| LIB | Library Sno-Isle GEN | 0.3153421757 | $569,655 | $569,655 | $179.64 | | |
| PORTWHID | Port of S Whidbey GEN | 0.1094540357 | $569,655 | $569,655 | $62.35 | | |
| SCH206BOND | School 206 BOND | 0.3161759235 | $569,655 | $569,655 | $180.11 | | |
| SCH206MO | School 206 Enrichment | 0.4547169547 | $569,655 | $569,655 | $259.03 | | |
| ST | State School | 1.3035497053 | $569,655 | $569,655 | $742.57 | | |
| ST2 | State School Part 2 | 0.8169543533 | $569,655 | $569,655 | $465.38 | | |
| SWHIDPRBD | P & R S Whidbey BOND | 0.0152817568 | $569,655 | $569,655 | $8.71 | | |
| SWHIDPRBD2 | P & R S Whidbey BOND2 | 0.0138911264 | $569,655 | $569,655 | $7.91 | | |
| SWHIDPRMT | P & R S Whidbey GEN | 0.2053334452 | $569,655 | $569,655 | $116.97 | | |
| | Total Tax Rate: | 6.6934522006 | | | | | |
| | | | | Taxes w/Current Exemptions: | $3,812.95 | | |
| | | | | Taxes w/o Exemptions: | $3,812.95 | | |
Improvement / Building
| Improvement #1: | RESIDENTIAL | State Code: | Y | 1568.0 sqft | Value: | $279,655 |
| Bathrooms: | 1.75 | Bedrooms: | 2 | | Ceiling: | DRYWALL PAINTED | Cooling: | HEAT PUMP/CONV/V | | Exterior Wall/Cover: | PLY/HARDBOARD T-111 | Floor Covering: | VINYL TILE | | Floor Structure: | WOOD W/SUBFLOOR | Foundation: | CONCRETE | | Interior Finish: | DRYWALL PAINT | Plumbing Fixture Cnt: | 10 | | Roof Slope: | 4" IN 12" | Roof Structure/Cover: | CJ ASPHALT |
|
| | Type | Description | Class CD | Sub Class CD | Year Built | Area |
| | BAS | BASE/MAIN FLOOR | 3 | 0 | 1979 | 1568.0 |
| | OP4 | OPEN PORCH W/CEILING-ROOF | 3 | 0 | 1979 | 80.0 |
| | AGR | ATTACHED GARAGE | 3 | 0 | 1979 | 480.0 |
| | OWP | OPEN WOOD PORCH W/STEPS | 3 | 0 | 1979 | 60.0 |
| | OWP | OPEN WOOD PORCH W/STEPS | 3 | 0 | 1979 | 255.0 |
Sketch
Property Image
Land
| 1 | 14 | SQ (08001-12000) | 0.0000 | 0.00 | 0.00 | 0.00 | 1.00 | $290,000 | $0 |
Roll Value History
| 2026 | N/A | N/A | N/A | N/A | N/A |
| 2025 | $279,655 | $290,000 | $0 | $569,655 | $569,655 |
| 2024 | $283,140 | $270,000 | $0 | $553,140 | $553,140 |
| 2023 | $286,624 | $250,000 | $0 | $536,624 | $536,624 |
| 2022 | $262,702 | $210,000 | $0 | $472,702 | $472,702 |
| 2021 | $231,182 | $180,000 | $0 | $411,182 | $411,182 |
| 2020 | $225,134 | $140,000 | $0 | $365,134 | $365,134 |
| 2019 | $164,924 | $180,000 | $0 | $344,924 | $344,924 |
| 2018 | $165,401 | $155,000 | $0 | $320,401 | $320,401 |
| 2017 | $166,356 | $120,000 | $0 | $286,356 | $286,356 |
| 2016 | $168,270 | $95,000 | $0 | $263,270 | $263,270 |
| 2015 | $175,530 | $65,000 | $0 | $240,530 | $240,530 |
| 2014 | $177,503 | $75,000 | $0 | $252,503 | $252,503 |
| 2013 | $179,475 | $75,500 | $0 | $254,975 | $254,975 |
| 2012 | $124,848 | $75,500 | $0 | $200,348 | $200,348 |
| 2011 | $126,726 | $75,500 | $0 | $202,226 | $202,226 |
| 2010 | $138,306 | $85,800 | $0 | $224,106 | $224,106 |
| 2009 | $144,356 | $144,300 | $0 | $288,656 | $288,656 |
| 2008 | $146,313 | $145,000 | $0 | $291,313 | $291,313 |
| 2007 | $146,881 | $145,000 | $0 | $291,881 | $291,881 |
Deed and Sales History
| 1 | 12/30/2020 | WD | Warranty Deed | FUNK, CAROL A C | FUNK TTEE, CAROL A. C. | | | $0.00 | 46603 | 4508361 |
| 2 | 10/15/2012 | WD | Warranty Deed | ROBBINS, SCOTT M | FUNK, CAROL A C | | | $257,000.00 | 9305 | 4326106 |
| 3 | 12/22/2005 | WD | Warranty Deed | BLACKBURN-ROEHL, JODELL A | ROBBINS, SCOTT M | | | $250,000.00 | 56397 | 4158149 |
| 4 | 08/01/1993 | PRD | Personal Representatives Deed | BLACKBURN, MARGARET H | BLACKBURN-ROEHL, JODELL A | | | $0.00 | 33674 | 93019099 |
| 5 | 08/01/1989 | WD | Warranty Deed | DYE, LOIS B | BLACKBURN, MARGARET H | | | $85,000.00 | 93621 | 89012126 |
| 6 | 06/01/1985 | WD | Warranty Deed | GROOM, BRUCE E | DYE, LOIS B | | | $79,000.00 | 51593 | 85006387 |
| 7 | 03/01/1979 | OTHER | Other - Misc. Documents | Unknown | GROOM, BRUCE E | | | $9,100.00 | 90936 | 348379 |
Payout Agreement
| No payout information available.. |