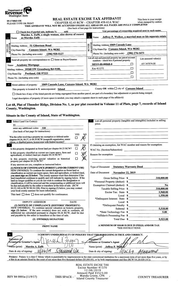
Property
Account |
| Property ID: | 418248 | Abbreviated Legal Description: | Useless Bay Beach - 7,s Lot 40 & 41,s Blk 0;s LOT B BLA 236-17 AF#4434116s |
| Geographic ID: | S8340-07-00040-0 | Agent Code: | |
| Type: | Real | | |
| Tax Area: | 850 - APPRAISER-S Whid Schl Dist, Special District, improved & less than 1 acre | Land Use Code | 11 |
| Open Space: | N | DFL | N |
| Historic Property: | N | Remodel Property: | N |
| Multi-Family Redevelopment: | N | | |
| Township: | | Section: | |
| Range: | |
Location |
| Address: | 2529 DISCOVERY PL LANGLEY, WA 98260 | Mapsco: | |
| Neighborhood: | Cycle 3 | Map ID: | 782 |
| Neighborhood CD: | 3 |
Owner |
| Name: | WILCOX, AL | Owner ID: | 292512 |
| Mailing Address: | SUSAN WILCOX 2529 DISCOVERY PL LANGLEY, WA 98260 | % Ownership: | 100.0000000000% |
| | | Exemptions: | |
Taxes and Assessment Details
Values
| (+) Improvement Homesite Value: | + | $0 | |
| (+) Improvement Non-Homesite Value: | + | $679,070 | |
| (+) Land Homesite Value: | + | $0 | |
| (+) Land Non-Homesite Value: | + | $400,000 | |
| (+) Curr Use (HS): | + | $0 | $0 |
| (+) Curr Use (NHS): | + | $0 | $0 |
| | | -------------------------- | |
| (=) Market Value: | = | $1,079,070 | |
| (–) Productivity Loss: | – | $0 | |
| | | -------------------------- | |
| (=) Subtotal: | = | $1,079,070 | |
| (+) Senior Appraised Value: | + | $0 | |
| (+) Non-Senior Appraised Value: | + | $1,079,070 | |
| | | -------------------------- | |
| (=) Total Appraised Value: | = | $1,079,070 | |
| (–) Senior Exemption Loss: | – | $0 | |
| (–) Exemption Loss: | – | $0 | |
| | | -------------------------- | |
| (=) Taxable Value: | = | $1,079,070 | |
Taxing Jurisdiction
| Owner: | WILCOX, AL | | |
| % Ownership: | 100.0000000000% | | |
| Total Value: | $1,079,070 | | |
| Tax Area: | 850 - APPRAISER-S Whid Schl Dist, Special District, improved & less than 1 acre |
| CF | Conservation Futures | 0.0316035091 | $1,079,070 | $1,079,070 | $34.10 | | |
| FIRE3 | Fire & Rescue Dist #3 S Whidbey GEN | 1.2004855531 | $1,079,070 | $1,079,070 | $1,295.41 | | |
| HOBOND | Hospital BOND | 0.1910887512 | $1,079,070 | $1,079,070 | $206.20 | | |
| HOGEN | Hospital GEN | 0.3902502903 | $1,079,070 | $1,079,070 | $421.11 | | |
| CE | County Current Expense | 0.3708482477 | $1,079,070 | $1,079,070 | $400.17 | | |
| CR | County Roads | 0.4584763726 | $1,079,070 | $1,079,070 | $494.73 | | |
| ISLANDEMS | Hospital GEN (EMS) | 0.5000000000 | $1,079,070 | $1,079,070 | $539.54 | | |
| LIB | Library Sno-Isle GEN | 0.3153421757 | $1,079,070 | $1,079,070 | $340.28 | | |
| PORTWHID | Port of S Whidbey GEN | 0.1094540357 | $1,079,070 | $1,079,070 | $118.11 | | |
| SCH206BOND | School 206 BOND | 0.3161759235 | $1,079,070 | $1,079,070 | $341.18 | | |
| SCH206MO | School 206 Enrichment | 0.4547169547 | $1,079,070 | $1,079,070 | $490.67 | | |
| ST | State School | 1.3035497053 | $1,079,070 | $1,079,070 | $1,406.62 | | |
| ST2 | State School Part 2 | 0.8169543533 | $1,079,070 | $1,079,070 | $881.55 | | |
| SWHIDPRBD | P & R S Whidbey BOND | 0.0152817568 | $1,079,070 | $1,079,070 | $16.49 | | |
| SWHIDPRBD2 | P & R S Whidbey BOND2 | 0.0138911264 | $1,079,070 | $1,079,070 | $14.99 | | |
| SWHIDPRMT | P & R S Whidbey GEN | 0.2053334452 | $1,079,070 | $1,079,070 | $221.57 | | |
| | Total Tax Rate: | 6.6934522006 | | | | | |
| | | | | Taxes w/Current Exemptions: | $7,222.72 | | |
| | | | | Taxes w/o Exemptions: | $7,222.72 | | |
Improvement / Building
| Improvement #1: | RESIDENTIAL | State Code: | Y | 2480.2 sqft | Value: | $679,070 |
| Bathrooms: | 3 | Bedrooms: | 2 | | Ceiling: | DRYWALL PAINTED | Exterior Wall/Cover: | CEMENT FIBER | | Floor Covering: | HARDWOOD 100% | Floor Structure: | WOOD W/SUBFLOOR | | Foundation: | CONCRETE | Heating: | FHA GAS | | Interior Finish: | DRYWALL PAINT | Plumbing Fixture Cnt: | 15 | | Roof Slope: | 12" IN 12" | Roof Structure/Cover: | CJ ASPHALT |
|
| | Type | Description | Class CD | Sub Class CD | Year Built | Area |
| | BAS | BASE/MAIN FLOOR | 5 | 0 | 2004 | 2056.2 |
| | OP4 | OPEN PORCH W/CEILING-ROOF | 5 | 0 | 2004 | 98.2 |
| | BIG | BUILT IN GARAGE | 5 | 0 | 2004 | 607.2 |
| | OWP | OPEN WOOD PORCH W/STEPS | 5 | 0 | 2004 | 57.6 |
| | OWC | OPEN WOOD PORCH W/STEPS/ROOF/C | 5 | 0 | 2004 | 212.0 |
| | UPH | HALF STORY | 5 | 0 | 2004 | 424.0 |
| | UTY | STORAGE/UTILITY | 5 | 0 | 2004 | 120.0 |
Sketch
Property Image
Land
| 1 | 15 | SQ (12001-21780) | 0.4500 | 19602.00 | 0.00 | 0.00 | 1.00 | $400,000 | $0 |
Roll Value History
| 2026 | N/A | N/A | N/A | N/A | N/A |
| 2025 | $679,070 | $400,000 | $0 | $1,079,070 | $1,079,070 |
| 2024 | $684,305 | $357,000 | $0 | $1,041,305 | $1,041,305 |
| 2023 | $635,892 | $327,000 | $0 | $962,892 | $962,892 |
| 2022 | $575,794 | $247,000 | $0 | $822,794 | $822,794 |
| 2021 | $498,051 | $207,000 | $0 | $705,051 | $705,051 |
| 2020 | $484,207 | $157,000 | $0 | $641,207 | $641,207 |
| 2019 | $349,329 | $217,000 | $0 | $566,329 | $566,329 |
| 2018 | $350,260 | $190,000 | $0 | $540,260 | $540,260 |
| 2017 | $352,152 | $160,000 | $0 | $512,152 | $512,152 |
| 2016 | $355,874 | $140,000 | $0 | $495,874 | $495,874 |
| 2015 | $359,598 | $125,000 | $0 | $484,598 | $484,598 |
| 2014 | $334,720 | $125,000 | $0 | $459,720 | $459,720 |
| 2013 | $328,977 | $105,600 | $0 | $434,577 | $434,577 |
| 2012 | $71,336 | $105,600 | $0 | $176,936 | $176,936 |
| 2011 | $336,125 | $105,600 | $0 | $441,725 | $441,725 |
| 2010 | $342,286 | $120,000 | $0 | $462,286 | $462,286 |
| 2009 | $360,299 | $185,000 | $0 | $545,299 | $545,299 |
| 2008 | $360,913 | $185,000 | $0 | $545,913 | $545,913 |
| 2007 | $355,597 | $185,000 | $0 | $540,597 | $540,597 |
Deed and Sales History
| 1 | 11/08/2019 | WD | Warranty Deed | LIU, YUET HA | WILCOX, AL | | | $755,000.00 | 41029 | 4475135 |
| 2 | 03/18/2019 | WD | Warranty Deed | CHAPMAN, LAWRENCE E | LIU, YUET HA | | | $639,899.00 | 37937 | 4460835 |
| 3 | 01/10/2018 | QCD | Quit Claim Deed | CHAPMAN, LAWRENCE E | CHAPMAN, LAWRENCE E | | | $0.00 | 32619 | 4437556 |
| 4 | 07/24/2015 | WD | Warranty Deed | | CHAPMAN, LAWRENCE E | | | $525,000.00 | 20704 | 4383142 |
| 5 | 05/05/2003 | WD | Warranty Deed | SANDAL, ROBERT J | ANDERSON, W C | | | $70,000.00 | 31968 | 4058289 |
| 6 | 08/05/1999 | WD | Warranty Deed | SACKRIDER, DONALD J | SANDAL, ROBERT J | | | $5,000.00 | 83341 | 98017425 |
| 7 | 08/01/1985 | WD | Warranty Deed | GROSHART, WAYNE C | SACKRIDER, DONALD J | | | $2,150.00 | 52338 | 85009201 |
Payout Agreement
| No payout information available.. |