Property
Account |
| Property ID: | 418391 | Abbreviated Legal Description: | USE BAY 7 LOT 48 |
| Geographic ID: | S8340-07-00048-0 | Agent Code: | |
| Type: | Real | | |
| Tax Area: | 750 - APPRAISER-S Whid Schl Dist, Special District, improved & less than 1 acre | Land Use Code | 11 |
| Open Space: | N | DFL | N |
| Historic Property: | N | Remodel Property: | N |
| Multi-Family Redevelopment: | N | | |
| Township: | | Section: | |
| Range: | |
Location |
| Address: | 2492 DISCOVERY PLACE LANGLEY, WA 98260 | Mapsco: | |
| Neighborhood: | Cycle 3 | Map ID: | 782 |
| Neighborhood CD: | 3 |
Owner |
| Name: | VAN PELT TTEE, LINDA K | Owner ID: | 299583 |
| Mailing Address: | 2492 DISCOVERY PLACE LANGLEY, WA 98260 | % Ownership: | 100.0000000000% |
| | | Exemptions: | |
Taxes and Assessment Details
Values
| (+) Improvement Homesite Value: | + | $0 | |
| (+) Improvement Non-Homesite Value: | + | $327,954 | |
| (+) Land Homesite Value: | + | $0 | |
| (+) Land Non-Homesite Value: | + | $390,000 | |
| (+) Curr Use (HS): | + | $0 | $0 |
| (+) Curr Use (NHS): | + | $0 | $0 |
| | | -------------------------- | |
| (=) Market Value: | = | $717,954 | |
| (–) Productivity Loss: | – | $0 | |
| | | -------------------------- | |
| (=) Subtotal: | = | $717,954 | |
| (+) Senior Appraised Value: | + | $0 | |
| (+) Non-Senior Appraised Value: | + | $717,954 | |
| | | -------------------------- | |
| (=) Total Appraised Value: | = | $717,954 | |
| (–) Senior Exemption Loss: | – | $0 | |
| (–) Exemption Loss: | – | $0 | |
| | | -------------------------- | |
| (=) Taxable Value: | = | $717,954 | |
Taxing Jurisdiction
| Owner: | VAN PELT TTEE, LINDA K | | |
| % Ownership: | 100.0000000000% | | |
| Total Value: | $717,954 | | |
| Tax Area: | 750 - APPRAISER-S Whid Schl Dist, Special District, improved & less than 1 acre |
| CF | Conservation Futures | 0.0316035091 | $717,954 | $717,954 | $22.69 | | |
| FIRE3 | Fire & Rescue Dist #3 S Whidbey GEN | 1.2004855531 | $717,954 | $717,954 | $861.89 | | |
| HOBOND | Hospital BOND | 0.1910887512 | $717,954 | $717,954 | $137.19 | | |
| HOGEN | Hospital GEN | 0.3902502903 | $717,954 | $717,954 | $280.18 | | |
| CE | County Current Expense | 0.3708482477 | $717,954 | $717,954 | $266.25 | | |
| CR | County Roads | 0.4584763726 | $717,954 | $717,954 | $329.16 | | |
| ISLANDEMS | Hospital GEN (EMS) | 0.5000000000 | $717,954 | $717,954 | $358.98 | | |
| LIB | Library Sno-Isle GEN | 0.3153421757 | $717,954 | $717,954 | $226.40 | | |
| PORTWHID | Port of S Whidbey GEN | 0.1094540357 | $717,954 | $717,954 | $78.58 | | |
| SCH206BOND | School 206 BOND | 0.3161759235 | $717,954 | $717,954 | $227.00 | | |
| SCH206MO | School 206 Enrichment | 0.4547169547 | $717,954 | $717,954 | $326.47 | | |
| ST | State School | 1.3035497053 | $717,954 | $717,954 | $935.89 | | |
| ST2 | State School Part 2 | 0.8169543533 | $717,954 | $717,954 | $586.54 | | |
| SWHIDPRBD | P & R S Whidbey BOND | 0.0152817568 | $717,954 | $717,954 | $10.97 | | |
| SWHIDPRBD2 | P & R S Whidbey BOND2 | 0.0138911264 | $717,954 | $717,954 | $9.97 | | |
| SWHIDPRMT | P & R S Whidbey GEN | 0.2053334452 | $717,954 | $717,954 | $147.42 | | |
| | Total Tax Rate: | 6.6934522006 | | | | | |
| | | | | Taxes w/Current Exemptions: | $4,805.58 | | |
| | | | | Taxes w/o Exemptions: | $4,805.58 | | |
Improvement / Building
| Improvement #1: | RESIDENTIAL | State Code: | Y | 2520.0 sqft | Value: | $327,954 |
| Bathrooms: | 2.75 | Bedrooms: | 3 | | Ceiling: | DRYWALL PAINTED | Exterior Wall/Cover: | WOOD SIDING | | Floor Covering: | VINYL TILE/CARP 20-80 | Floor Structure: | WOOD W/SUBFLOOR | | Foundation: | CONCRETE | Heating: | BASEBOARD ELECTRIC | | Interior Finish: | DRYWALL PAINT | Plumbing Fixture Cnt: | 12 | | Roof Slope: | 6" IN 12" | Roof Structure/Cover: | CJ ASPHALT |
|
| | Type | Description | Class CD | Sub Class CD | Year Built | Area |
| | BAS | BASE/MAIN FLOOR | 3 | 0 | 1980 | 1590.0 |
| | DWN | DOWNSTAIRS LIVING AREA | 3 | 0 | 1980 | 930.0 |
| | OP2 | OPEN PORCH W/STEPS | 3 | 0 | 1980 | 104.0 |
| | OP4 | OPEN PORCH W/CEILING-ROOF | 3 | 0 | 1980 | 30.0 |
| | BGR | BASEMENT GARAGE | 3 | 0 | 1980 | 660.0 |
| | OWP | OPEN WOOD PORCH W/STEPS | 3 | 0 | 1980 | 312.0 |
Sketch
Property Image
Land
| 1 | 14 | SQ (08001-12000) | 0.0000 | 0.00 | 0.00 | 0.00 | 1.00 | $390,000 | $0 |
Roll Value History
| 2026 | N/A | N/A | N/A | N/A | N/A |
| 2025 | $327,954 | $390,000 | $0 | $717,954 | $717,954 |
| 2024 | $339,574 | $350,000 | $0 | $689,574 | $689,574 |
| 2023 | $344,146 | $320,000 | $0 | $664,146 | $664,146 |
| 2022 | $315,758 | $270,000 | $0 | $585,758 | $585,758 |
| 2021 | $278,173 | $200,000 | $0 | $478,173 | $478,173 |
| 2020 | $271,738 | $150,000 | $0 | $421,738 | $421,738 |
| 2019 | $211,384 | $180,000 | $0 | $391,384 | $391,384 |
| 2018 | $212,051 | $155,000 | $0 | $367,051 | $367,051 |
| 2017 | $188,247 | $120,000 | $0 | $308,247 | $308,247 |
| 2016 | $190,692 | $95,000 | $0 | $285,692 | $285,692 |
| 2015 | $193,136 | $85,000 | $0 | $278,136 | $278,136 |
| 2014 | $195,582 | $85,000 | $0 | $280,582 | $280,582 |
| 2013 | $165,705 | $105,600 | $0 | $271,305 | $271,305 |
| 2012 | $168,090 | $105,600 | $0 | $273,690 | $273,690 |
| 2011 | $170,474 | $105,600 | $0 | $276,074 | $276,074 |
| 2010 | $186,239 | $120,000 | $0 | $306,239 | $306,239 |
| 2009 | $194,255 | $125,000 | $0 | $319,255 | $319,255 |
| 2008 | $196,699 | $125,000 | $0 | $321,699 | $321,699 |
| 2007 | $196,699 | $125,000 | $0 | $321,699 | $321,699 |
Deed and Sales History
| 1 | 05/22/2021 | QCD | Quit Claim Deed | VAN PELT, LINDA K | VAN PELT TTEE, LINDA K | | | $0.00 | 48458 | 4520494 |
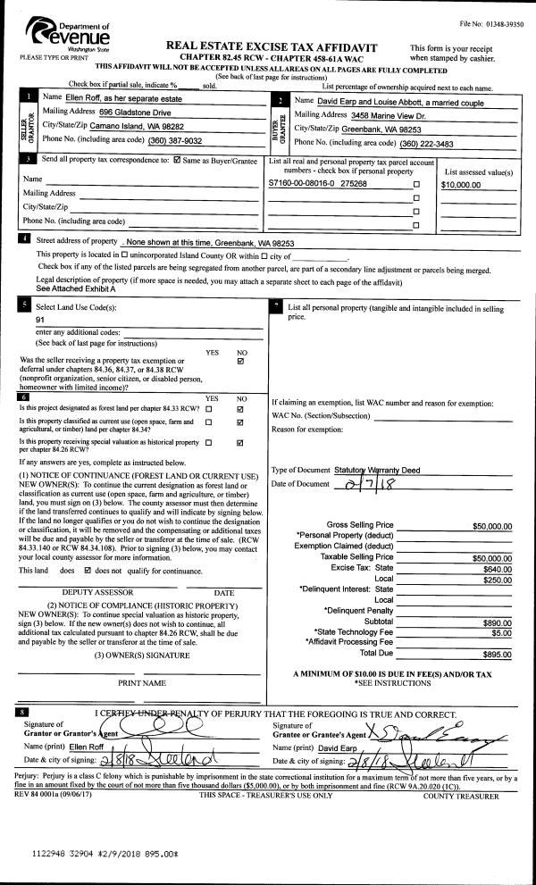
| 2 | 04/17/2018 | WD | Warranty Deed | MAGDALIK, DEREK S | VAN PELT, LINDA K | | | $390,000.00 | 33775 | 4443036 |
| 3 | 05/14/2002 | WD | Warranty Deed | BINCE, FRED L | MAGDALIK, DEREK S | | | $195,000.00 | 21798 | 4019870 |
| 4 | 01/01/1900 | OTHER | Other - Misc. Documents | Unknown | BINCE, FRED L | | | $0.00 | 0 | 0 |
Payout Agreement
| No payout information available.. |