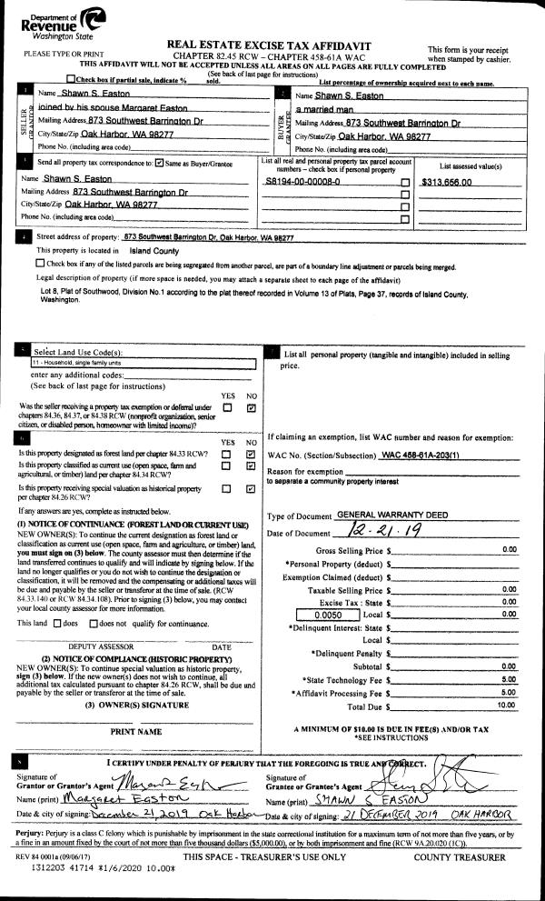
Property
Account |
| Property ID: | 419693 | Abbreviated Legal Description: | USE BAY 10 LOT 2 |
| Geographic ID: | S8340-10-00002-0 | Agent Code: | |
| Type: | Real | | |
| Tax Area: | 750 - APPRAISER-S Whid Schl Dist, Special District, improved & less than 1 acre | Land Use Code | 11 |
| Open Space: | N | DFL | N |
| Historic Property: | N | Remodel Property: | N |
| Multi-Family Redevelopment: | N | | |
| Township: | | Section: | |
| Range: | |
Location |
| Address: | 2591 HILLIS DR LANGLEY, WA 98260 | Mapsco: | |
| Neighborhood: | Cycle 3 | Map ID: | 786 |
| Neighborhood CD: | 3 |
Owner |
| Name: | MELLISH JR, ROBERT W | Owner ID: | 180344 |
| Mailing Address: | KELLI L WHITE-MELLISH 2591 HILLIS DR LANGLEY, WA 98260-9575 | % Ownership: | 100.0000000000% |
| | | Exemptions: | |
Taxes and Assessment Details
Values
| (+) Improvement Homesite Value: | + | $0 | |
| (+) Improvement Non-Homesite Value: | + | $332,874 | |
| (+) Land Homesite Value: | + | $0 | |
| (+) Land Non-Homesite Value: | + | $240,000 | |
| (+) Curr Use (HS): | + | $0 | $0 |
| (+) Curr Use (NHS): | + | $0 | $0 |
| | | -------------------------- | |
| (=) Market Value: | = | $572,874 | |
| (–) Productivity Loss: | – | $0 | |
| | | -------------------------- | |
| (=) Subtotal: | = | $572,874 | |
| (+) Senior Appraised Value: | + | $0 | |
| (+) Non-Senior Appraised Value: | + | $572,874 | |
| | | -------------------------- | |
| (=) Total Appraised Value: | = | $572,874 | |
| (–) Senior Exemption Loss: | – | $0 | |
| (–) Exemption Loss: | – | $0 | |
| | | -------------------------- | |
| (=) Taxable Value: | = | $572,874 | |
Taxing Jurisdiction
| Owner: | MELLISH JR, ROBERT W | | |
| % Ownership: | 100.0000000000% | | |
| Total Value: | $572,874 | | |
| Tax Area: | 750 - APPRAISER-S Whid Schl Dist, Special District, improved & less than 1 acre |
| CF | Conservation Futures | 0.0316035091 | $572,874 | $572,874 | $18.10 | | |
| FIRE3 | Fire & Rescue Dist #3 S Whidbey GEN | 1.2004855531 | $572,874 | $572,874 | $687.73 | | |
| HOBOND | Hospital BOND | 0.1910887512 | $572,874 | $572,874 | $109.47 | | |
| HOGEN | Hospital GEN | 0.3902502903 | $572,874 | $572,874 | $223.56 | | |
| CE | County Current Expense | 0.3708482477 | $572,874 | $572,874 | $212.45 | | |
| CR | County Roads | 0.4584763726 | $572,874 | $572,874 | $262.65 | | |
| ISLANDEMS | Hospital GEN (EMS) | 0.5000000000 | $572,874 | $572,874 | $286.44 | | |
| LIB | Library Sno-Isle GEN | 0.3153421757 | $572,874 | $572,874 | $180.65 | | |
| PORTWHID | Port of S Whidbey GEN | 0.1094540357 | $572,874 | $572,874 | $62.70 | | |
| SCH206BOND | School 206 BOND | 0.3161759235 | $572,874 | $572,874 | $181.13 | | |
| SCH206MO | School 206 Enrichment | 0.4547169547 | $572,874 | $572,874 | $260.50 | | |
| ST | State School | 1.3035497053 | $572,874 | $572,874 | $746.77 | | |
| ST2 | State School Part 2 | 0.8169543533 | $572,874 | $572,874 | $468.01 | | |
| SWHIDPRBD | P & R S Whidbey BOND | 0.0152817568 | $572,874 | $572,874 | $8.75 | | |
| SWHIDPRBD2 | P & R S Whidbey BOND2 | 0.0138911264 | $572,874 | $572,874 | $7.96 | | |
| SWHIDPRMT | P & R S Whidbey GEN | 0.2053334452 | $572,874 | $572,874 | $117.63 | | |
| | Total Tax Rate: | 6.6934522006 | | | | | |
| | | | | Taxes w/Current Exemptions: | $3,834.50 | | |
| | | | | Taxes w/o Exemptions: | $3,834.50 | | |
Improvement / Building
| Improvement #1: | RESIDENTIAL | State Code: | Y | 2248.7 sqft | Value: | $332,874 |
| Bathrooms: | 2 | Bedrooms: | 0 | | Ceiling: | DRYWALL PAINTED | Cooling: | HEAT PUMP/CONV/V | | Exterior Wall/Cover: | CEMENT FIBER | Floor Covering: | HARDWOOD/CARP 20-80 | | Floor Structure: | WOOD W/SUBFLOOR | Foundation: | CONCRETE | | Interior Finish: | DRYWALL PAINT | Plumbing Fixture Cnt: | 10 | | Roof Slope: | 4" IN 12" | Roof Structure/Cover: | CJ ASPHALT |
|
| | Type | Description | Class CD | Sub Class CD | Year Built | Area |
| | BAS | BASE/MAIN FLOOR | 3 | 0 | 2005 | 1204.8 |
| | AGR | ATTACHED GARAGE | 3 | 0 | 2005 | 360.0 |
| | UPS | UPPER STORY | 3 | 0 | 2005 | 1043.9 |
| | OWP | OPEN WOOD PORCH W/STEPS | 3 | 0 | 2005 | 117.0 |
| | OWP | OPEN WOOD PORCH W/STEPS | 3 | 0 | 2005 | 274.5 |
Sketch
Property Image
Land
| 1 | 14 | SQ (08001-12000) | 0.0000 | 0.00 | 0.00 | 0.00 | 1.00 | $240,000 | $0 |
Roll Value History
| 2026 | N/A | N/A | N/A | N/A | N/A |
| 2025 | $332,874 | $240,000 | $0 | $572,874 | $572,874 |
| 2024 | $336,871 | $230,000 | $0 | $566,871 | $566,871 |
| 2023 | $340,870 | $210,000 | $0 | $550,870 | $550,870 |
| 2022 | $312,280 | $180,000 | $0 | $492,280 | $492,280 |
| 2021 | $274,691 | $150,000 | $0 | $424,691 | $424,691 |
| 2020 | $268,001 | $120,000 | $0 | $388,001 | $388,001 |
| 2019 | $202,668 | $170,000 | $0 | $372,668 | $372,668 |
| 2018 | $203,248 | $130,000 | $0 | $333,248 | $333,248 |
| 2017 | $204,294 | $100,000 | $0 | $304,294 | $304,294 |
| 2016 | $206,615 | $55,000 | $0 | $261,615 | $261,615 |
| 2015 | $208,938 | $55,000 | $0 | $263,938 | $263,938 |
| 2014 | $211,259 | $55,000 | $0 | $266,259 | $266,259 |
| 2013 | $219,792 | $55,180 | $0 | $274,972 | $274,972 |
| 2012 | $222,205 | $55,180 | $0 | $277,385 | $277,385 |
| 2011 | $224,622 | $55,180 | $0 | $279,802 | $279,802 |
| 2010 | $233,863 | $62,700 | $0 | $296,563 | $296,563 |
| 2009 | $241,139 | $105,450 | $0 | $346,589 | $346,589 |
| 2008 | $250,797 | $140,000 | $0 | $390,797 | $390,797 |
| 2007 | $236,197 | $140,000 | $0 | $376,197 | $376,197 |
Deed and Sales History
| 1 | 03/30/2004 | WD | Warranty Deed | JOHNSON, GEORGE L | MELLISH, ROBERT W | | | $39,900.00 | 41213 | 4095690 |
| 2 | 08/05/2002 | QCD | Quit Claim Deed | MELLISH, ROBERT W | MELLISH JR, ROBERT W | | | $0.00 | 43592 | 4109071 |
| 3 | 06/10/1999 | WD | Warranty Deed | MARTINOVIC, MARK T | JOHNSON, GEORGE L | | | $28,500.00 | 92406 | 99014657 |
| 4 | 12/01/1989 | WD | Warranty Deed | RUBEL, ROBERT W | MARTINOVIC, MARK T | | | $10,000.00 | 95615 | 89017931 |
| 5 | 01/01/1900 | OTHER | Other - Misc. Documents | Unknown | RUBEL, ROBERT W | | | $0.00 | 0 | 0 |
Payout Agreement
| No payout information available.. |