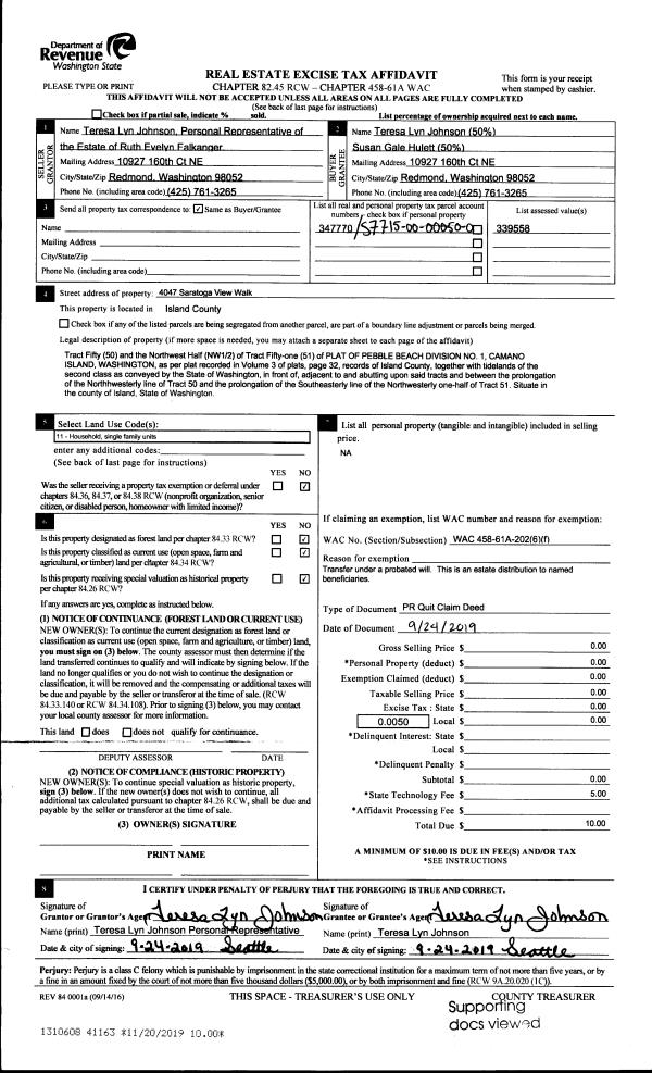
Property
Account |
| Property ID: | 419942 | Abbreviated Legal Description: | USE BAY 10 LOT 27 |
| Geographic ID: | S8340-10-00027-0 | Agent Code: | |
| Type: | Real | | |
| Tax Area: | 750 - APPRAISER-S Whid Schl Dist, Special District, improved & less than 1 acre | Land Use Code | 11 |
| Open Space: | N | DFL | N |
| Historic Property: | N | Remodel Property: | N |
| Multi-Family Redevelopment: | N | | |
| Township: | | Section: | |
| Range: | |
Location |
| Address: | 5617 LENZ PLACE LANGLEY, WA 98260 | Mapsco: | |
| Neighborhood: | Cycle 3 | Map ID: | 786 |
| Neighborhood CD: | 3 |
Owner |
| Name: | TURNER, SUZANNE D | Owner ID: | 257402 |
| Mailing Address: | 5617 LENZ PLACE LANGLEY, WA 98260 | % Ownership: | 100.0000000000% |
| | | Exemptions: | |
Taxes and Assessment Details
Values
| (+) Improvement Homesite Value: | + | $0 | |
| (+) Improvement Non-Homesite Value: | + | $255,960 | |
| (+) Land Homesite Value: | + | $0 | |
| (+) Land Non-Homesite Value: | + | $240,000 | |
| (+) Curr Use (HS): | + | $0 | $0 |
| (+) Curr Use (NHS): | + | $0 | $0 |
| | | -------------------------- | |
| (=) Market Value: | = | $495,960 | |
| (–) Productivity Loss: | – | $0 | |
| | | -------------------------- | |
| (=) Subtotal: | = | $495,960 | |
| (+) Senior Appraised Value: | + | $0 | |
| (+) Non-Senior Appraised Value: | + | $495,960 | |
| | | -------------------------- | |
| (=) Total Appraised Value: | = | $495,960 | |
| (–) Senior Exemption Loss: | – | $0 | |
| (–) Exemption Loss: | – | $0 | |
| | | -------------------------- | |
| (=) Taxable Value: | = | $495,960 | |
Taxing Jurisdiction
| Owner: | TURNER, SUZANNE D | | |
| % Ownership: | 100.0000000000% | | |
| Total Value: | $495,960 | | |
| Tax Area: | 750 - APPRAISER-S Whid Schl Dist, Special District, improved & less than 1 acre |
| CF | Conservation Futures | 0.0316035091 | $495,960 | $495,960 | $15.67 | | |
| FIRE3 | Fire & Rescue Dist #3 S Whidbey GEN | 1.2004855531 | $495,960 | $495,960 | $595.39 | | |
| HOBOND | Hospital BOND | 0.1910887512 | $495,960 | $495,960 | $94.77 | | |
| HOGEN | Hospital GEN | 0.3902502903 | $495,960 | $495,960 | $193.55 | | |
| CE | County Current Expense | 0.3708482477 | $495,960 | $495,960 | $183.93 | | |
| CR | County Roads | 0.4584763726 | $495,960 | $495,960 | $227.39 | | |
| ISLANDEMS | Hospital GEN (EMS) | 0.5000000000 | $495,960 | $495,960 | $247.98 | | |
| LIB | Library Sno-Isle GEN | 0.3153421757 | $495,960 | $495,960 | $156.40 | | |
| PORTWHID | Port of S Whidbey GEN | 0.1094540357 | $495,960 | $495,960 | $54.28 | | |
| SCH206BOND | School 206 BOND | 0.3161759235 | $495,960 | $495,960 | $156.81 | | |
| SCH206MO | School 206 Enrichment | 0.4547169547 | $495,960 | $495,960 | $225.52 | | |
| ST | State School | 1.3035497053 | $495,960 | $495,960 | $646.51 | | |
| ST2 | State School Part 2 | 0.8169543533 | $495,960 | $495,960 | $405.18 | | |
| SWHIDPRBD | P & R S Whidbey BOND | 0.0152817568 | $495,960 | $495,960 | $7.58 | | |
| SWHIDPRBD2 | P & R S Whidbey BOND2 | 0.0138911264 | $495,960 | $495,960 | $6.89 | | |
| SWHIDPRMT | P & R S Whidbey GEN | 0.2053334452 | $495,960 | $495,960 | $101.84 | | |
| | Total Tax Rate: | 6.6934522006 | | | | | |
| | | | | Taxes w/Current Exemptions: | $3,319.69 | | |
| | | | | Taxes w/o Exemptions: | $3,319.69 | | |
Improvement / Building
| Improvement #1: | RESIDENTIAL | State Code: | Y | 1242.0 sqft | Value: | $255,960 |
| Bathrooms: | 2 | Bedrooms: | 2 | | Ceiling: | DRYWALL PAINTED | Exterior Wall/Cover: | PLY/HARDBOARD T-111 | | Floor Covering: | CARPET/VINYL 80-20 | Floor Structure: | WOOD W/SUBFLOOR | | Foundation: | CONCRETE | Heating: | FHA GAS | | Interior Finish: | DRYWALL PAINT | Plumbing Fixture Cnt: | 9 | | Roof Slope: | 10" IN 12" | Roof Structure/Cover: | CJ ASPHALT |
|
| | Type | Description | Class CD | Sub Class CD | Year Built | Area |
| | BAS | BASE/MAIN FLOOR | 3 | 0 | 1997 | 1242.0 |
| | AGR | ATTACHED GARAGE | 3 | 0 | 1997 | 520.0 |
| | OWP | OPEN WOOD PORCH W/STEPS | 3 | 0 | 1997 | 240.0 |
| | OWC | OPEN WOOD PORCH W/STEPS/ROOF/C | 3 | 0 | 1997 | 68.0 |
| | OP3 | OPEN PORCH W/ROOF | 3 | 0 | 1997 | 144.0 |
Sketch
Property Image
Land
| 1 | 14 | SQ (08001-12000) | 0.0000 | 0.00 | 0.00 | 0.00 | 1.00 | $240,000 | $0 |
Roll Value History
| 2026 | N/A | N/A | N/A | N/A | N/A |
| 2025 | $255,960 | $240,000 | $0 | $495,960 | $495,960 |
| 2024 | $259,111 | $230,000 | $0 | $489,111 | $489,111 |
| 2023 | $262,261 | $210,000 | $0 | $472,261 | $472,261 |
| 2022 | $240,334 | $180,000 | $0 | $420,334 | $420,334 |
| 2021 | $211,468 | $150,000 | $0 | $361,468 | $361,468 |
| 2020 | $205,671 | $120,000 | $0 | $325,671 | $325,671 |
| 2019 | $136,298 | $170,000 | $0 | $306,298 | $306,298 |
| 2018 | $136,717 | $130,000 | $0 | $266,717 | $266,717 |
| 2017 | $136,171 | $100,000 | $0 | $236,171 | $236,171 |
| 2016 | $137,831 | $55,000 | $0 | $192,831 | $192,831 |
| 2015 | $139,491 | $55,000 | $0 | $194,491 | $194,491 |
| 2014 | $141,151 | $55,000 | $0 | $196,151 | $196,151 |
| 2013 | $131,370 | $55,180 | $0 | $186,550 | $186,550 |
| 2012 | $132,937 | $55,180 | $0 | $188,117 | $188,117 |
| 2011 | $134,503 | $55,180 | $0 | $189,683 | $57,136 |
| 2010 | $140,558 | $62,700 | $0 | $203,258 | $57,136 |
| 2009 | $146,732 | $135,050 | $0 | $281,782 | $92,840 |
| 2008 | $148,706 | $137,800 | $0 | $286,506 | $92,840 |
| 2007 | $149,010 | $137,800 | $0 | $286,810 | $92,840 |
Deed and Sales History
| 1 | 04/10/2012 | WD | Warranty Deed | LOUGHEED, DENNIS K | TURNER, SUZANNE D | | | $200,200.00 | 7382 | 4313527 |
| 2 | 11/04/1998 | WD | Warranty Deed | SMALLEY, LORRAINE G | LOUGHEED, DENNIS K | | | $143,500.00 | 84654 | 98025475 |
| 3 | 07/01/1996 | WD | Warranty Deed | WOODRIDGE, DEV & | SMALLEY, LORRAINE G | | | $129,000.00 | 62767 | 96013505 |
| 4 | 04/01/1996 | WD | Warranty Deed | H, & H | WOODRIDGE, DEV & | | | $25,500.00 | 61200 | 96006146 |
| 5 | 01/01/1900 | OTHER | Other - Misc. Documents | Unknown | H, & H | | | $0.00 | 0 | 0 |
Payout Agreement
| No payout information available.. |