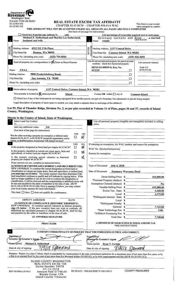
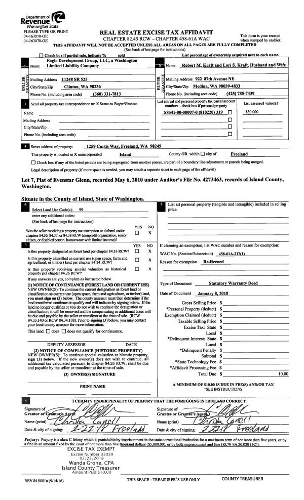
Property
Account |
| Property ID: | 420119 | Abbreviated Legal Description: | USE BAY 10 PT LOTS 44 & 45 LY NELY FOLL DESC LN: BG AT A PT ON NLY LN OF SD LOT 44 LY 38.85' NELY OF NWCR S19*E28.44' S34*E87.31' S68*E37.75' TO A PT ON ELN SD LOT 45 SUB TO EZ AF#4183809 |
| Geographic ID: | S8340-10-00044-0 | Agent Code: | |
| Type: | Real | | |
| Tax Area: | 750 - APPRAISER-S Whid Schl Dist, Special District, improved & less than 1 acre | Land Use Code | 11 |
| Open Space: | N | DFL | N |
| Historic Property: | N | Remodel Property: | N |
| Multi-Family Redevelopment: | N | | |
| Township: | | Section: | |
| Range: | |
Location |
| Address: | 5612 MELENDY DR LANGLEY, WA 98260 | Mapsco: | |
| Neighborhood: | Cycle 3 | Map ID: | 786 |
| Neighborhood CD: | 3 |
Owner |
| Name: | EDWARDS, DANIEL A | Owner ID: | 285839 |
| Mailing Address: | HILLARY EDWARDS 5612 MELENDY DR LANGLEY, WA 98260 | % Ownership: | 100.0000000000% |
| | | Exemptions: | |
Taxes and Assessment Details
Values
| (+) Improvement Homesite Value: | + | $0 | |
| (+) Improvement Non-Homesite Value: | + | $425,549 | |
| (+) Land Homesite Value: | + | $0 | |
| (+) Land Non-Homesite Value: | + | $260,000 | |
| (+) Curr Use (HS): | + | $0 | $0 |
| (+) Curr Use (NHS): | + | $0 | $0 |
| | | -------------------------- | |
| (=) Market Value: | = | $685,549 | |
| (–) Productivity Loss: | – | $0 | |
| | | -------------------------- | |
| (=) Subtotal: | = | $685,549 | |
| (+) Senior Appraised Value: | + | $0 | |
| (+) Non-Senior Appraised Value: | + | $685,549 | |
| | | -------------------------- | |
| (=) Total Appraised Value: | = | $685,549 | |
| (–) Senior Exemption Loss: | – | $0 | |
| (–) Exemption Loss: | – | $0 | |
| | | -------------------------- | |
| (=) Taxable Value: | = | $685,549 | |
Taxing Jurisdiction
| Owner: | EDWARDS, DANIEL A | | |
| % Ownership: | 100.0000000000% | | |
| Total Value: | $685,549 | | |
| Tax Area: | 750 - APPRAISER-S Whid Schl Dist, Special District, improved & less than 1 acre |
| CF | Conservation Futures | 0.0316035091 | $685,549 | $685,549 | $21.67 | | |
| FIRE3 | Fire & Rescue Dist #3 S Whidbey GEN | 1.2004855531 | $685,549 | $685,549 | $822.99 | | |
| HOBOND | Hospital BOND | 0.1910887512 | $685,549 | $685,549 | $131.00 | | |
| HOGEN | Hospital GEN | 0.3902502903 | $685,549 | $685,549 | $267.54 | | |
| CE | County Current Expense | 0.3708482477 | $685,549 | $685,549 | $254.23 | | |
| CR | County Roads | 0.4584763726 | $685,549 | $685,549 | $314.31 | | |
| ISLANDEMS | Hospital GEN (EMS) | 0.5000000000 | $685,549 | $685,549 | $342.77 | | |
| LIB | Library Sno-Isle GEN | 0.3153421757 | $685,549 | $685,549 | $216.18 | | |
| PORTWHID | Port of S Whidbey GEN | 0.1094540357 | $685,549 | $685,549 | $75.04 | | |
| SCH206BOND | School 206 BOND | 0.3161759235 | $685,549 | $685,549 | $216.75 | | |
| SCH206MO | School 206 Enrichment | 0.4547169547 | $685,549 | $685,549 | $311.73 | | |
| ST | State School | 1.3035497053 | $685,549 | $685,549 | $893.65 | | |
| ST2 | State School Part 2 | 0.8169543533 | $685,549 | $685,549 | $560.06 | | |
| SWHIDPRBD | P & R S Whidbey BOND | 0.0152817568 | $685,549 | $685,549 | $10.48 | | |
| SWHIDPRBD2 | P & R S Whidbey BOND2 | 0.0138911264 | $685,549 | $685,549 | $9.52 | | |
| SWHIDPRMT | P & R S Whidbey GEN | 0.2053334452 | $685,549 | $685,549 | $140.77 | | |
| | Total Tax Rate: | 6.6934522006 | | | | | |
| | | | | Taxes w/Current Exemptions: | $4,588.69 | | |
| | | | | Taxes w/o Exemptions: | $4,588.69 | | |
Improvement / Building
| Improvement #1: | RESIDENTIAL | State Code: | Y | 1891.5 sqft | Value: | $425,549 |
| Bathrooms: | 2.5 | Bedrooms: | 3 | | Ceiling: | DRYWALL PAINTED | Cooling: | HEAT PUMP/CONV/V | | Exterior Wall/Cover: | CEMENT FIBER | Floor Covering: | HARDWOOD/CARP 60-40 | | Floor Structure: | WOOD W/SUBFLOOR | Foundation: | CONCRETE | | Interior Finish: | DRYWALL PAINT | Plumbing Fixture Cnt: | 14 | | Roof Slope: | 4" IN 12" | Roof Structure/Cover: | CJ ASPHALT |
|
| | Type | Description | Class CD | Sub Class CD | Year Built | Area |
| | BAS | BASE/MAIN FLOOR | 4 | 0 | 2010 | 1411.5 |
| | UPS | UPPER STORY | 4 | 0 | 2010 | 480.0 |
| | AGR | ATTACHED GARAGE | 4 | 0 | 2010 | 440.0 |
| | OWC | OPEN WOOD PORCH W/STEPS/ROOF/C | 4 | 0 | 2010 | 248.0 |
| | OWP | OPEN WOOD PORCH W/STEPS | 4 | 0 | 2010 | 148.0 |
| | UTY | STORAGE/UTILITY | 4 | 0 | 2010 | 0.0 |
Sketch
Property Image
Land
| 1 | 16 | AC (00.51-01.00) | 0.0000 | 0.00 | 0.00 | 0.00 | 1.00 | $260,000 | $0 |
Roll Value History
| 2026 | N/A | N/A | N/A | N/A | N/A |
| 2025 | $425,549 | $260,000 | $0 | $685,549 | $685,549 |
| 2024 | $430,398 | $230,000 | $0 | $660,398 | $660,398 |
| 2023 | $435,248 | $210,000 | $0 | $645,248 | $645,248 |
| 2022 | $397,661 | $180,000 | $0 | $577,661 | $577,661 |
| 2021 | $346,755 | $150,000 | $0 | $496,755 | $496,755 |
| 2020 | $335,783 | $120,000 | $0 | $455,783 | $455,783 |
| 2019 | $216,863 | $150,000 | $0 | $366,863 | $366,863 |
| 2018 | $217,458 | $115,000 | $0 | $332,458 | $332,458 |
| 2017 | $218,645 | $90,000 | $0 | $308,645 | $308,645 |
| 2016 | $221,022 | $55,000 | $0 | $276,022 | $276,022 |
| 2015 | $223,398 | $55,000 | $0 | $278,398 | $278,398 |
| 2014 | $225,777 | $55,000 | $0 | $280,777 | $280,777 |
| 2013 | $210,615 | $75,500 | $0 | $286,115 | $286,115 |
| 2012 | $212,810 | $75,500 | $0 | $288,310 | $288,310 |
| 2011 | $215,003 | $75,500 | $0 | $290,503 | $290,503 |
| 2010 | $0 | $61,600 | $0 | $61,600 | $61,600 |
| 2009 | $0 | $103,600 | $0 | $103,600 | $103,600 |
| 2008 | $0 | $130,000 | $0 | $130,000 | $130,000 |
| 2007 | $0 | $16,000 | $0 | $16,000 | $16,000 |
Deed and Sales History
| 1 | 06/28/2018 | QCD | Quit Claim Deed | EDWARDS, CHARLES | EDWARDS, DANIEL A | | | $314,000.00 | 34815 | 4447284 |
| 2 | 11/20/2017 | QCD | Quit Claim Deed | EDWARDS, CHARLES | EDWARDS, CHARLES | | | $0.00 | 32394 | 4436290 |
| 3 | 11/20/2017 | QCD | Quit Claim Deed | EDWARDS, CHARLES W | EDWARDS, CHARLES | | | $0.00 | 32134 | 4435100 |
| 4 | 07/21/2010 | QCD | Quit Claim Deed | EDWARDS, CHARLES W | EDWARDS, CHARLES W | | | | 2034 | 4278999 |
| 5 | 06/18/2008 | BLA | DNU - Boundary Line Adjustment | EDWARDS, CHARLES W | EDWARDS, CHARLES W | | | $0.00 | 81176 | 4218770 |
| 6 | 03/22/2007 | QCD | Quit Claim Deed | HILLIS DRIVE LLC, | EDWARDS, CHARLES W | | | $0.00 | 70985 | 4197613 |
| 7 | 04/11/2005 | WD | Warranty Deed | H & H PROPERTIES, | HILLIS DRIVE LLC, | | | $5,437.00 | 51507 | 4160921 |
| 8 | 01/01/1900 | OTHER | Other - Misc. Documents | Unknown | H & H PROPERTIES, | | | $0.00 | 0 | 0 |
Payout Agreement
| No payout information available.. |