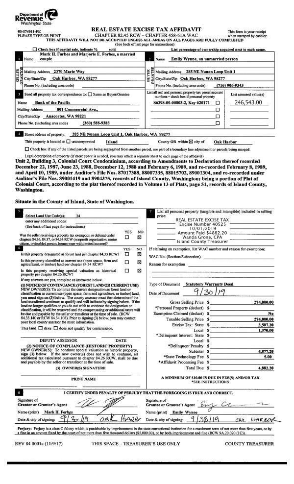
Property
Account |
| Property ID: | 420173 | Abbreviated Legal Description: | USE BAY 10 LOT 50 |
| Geographic ID: | S8340-10-00050-0 | Agent Code: | |
| Type: | Real | | |
| Tax Area: | 750 - APPRAISER-S Whid Schl Dist, Special District, improved & less than 1 acre | Land Use Code | 11 |
| Open Space: | N | DFL | N |
| Historic Property: | N | Remodel Property: | N |
| Multi-Family Redevelopment: | N | | |
| Township: | | Section: | |
| Range: | |
Location |
| Address: | 2446 HILLIS DR LANGLEY, WA 98260 | Mapsco: | |
| Neighborhood: | Cycle 3 | Map ID: | 786 |
| Neighborhood CD: | 3 |
Owner |
| Name: | COURTNEY TTEE, MARY ELLEN | Owner ID: | 294177 |
| Mailing Address: | 2446 HILLIS DR LANGLEY, WA 98260 | % Ownership: | 100.0000000000% |
| | | Exemptions: | |
Taxes and Assessment Details
Values
| (+) Improvement Homesite Value: | + | $0 | |
| (+) Improvement Non-Homesite Value: | + | $336,412 | |
| (+) Land Homesite Value: | + | $0 | |
| (+) Land Non-Homesite Value: | + | $290,000 | |
| (+) Curr Use (HS): | + | $0 | $0 |
| (+) Curr Use (NHS): | + | $0 | $0 |
| | | -------------------------- | |
| (=) Market Value: | = | $626,412 | |
| (–) Productivity Loss: | – | $0 | |
| | | -------------------------- | |
| (=) Subtotal: | = | $626,412 | |
| (+) Senior Appraised Value: | + | $0 | |
| (+) Non-Senior Appraised Value: | + | $626,412 | |
| | | -------------------------- | |
| (=) Total Appraised Value: | = | $626,412 | |
| (–) Senior Exemption Loss: | – | $0 | |
| (–) Exemption Loss: | – | $0 | |
| | | -------------------------- | |
| (=) Taxable Value: | = | $626,412 | |
Taxing Jurisdiction
| Owner: | COURTNEY TTEE, MARY ELLEN | | |
| % Ownership: | 100.0000000000% | | |
| Total Value: | $626,412 | | |
| Tax Area: | 750 - APPRAISER-S Whid Schl Dist, Special District, improved & less than 1 acre |
| CF | Conservation Futures | 0.0316035091 | $626,412 | $626,412 | $19.80 | | |
| FIRE3 | Fire & Rescue Dist #3 S Whidbey GEN | 1.2004855531 | $626,412 | $626,412 | $752.00 | | |
| HOBOND | Hospital BOND | 0.1910887512 | $626,412 | $626,412 | $119.70 | | |
| HOGEN | Hospital GEN | 0.3902502903 | $626,412 | $626,412 | $244.46 | | |
| CE | County Current Expense | 0.3708482477 | $626,412 | $626,412 | $232.30 | | |
| CR | County Roads | 0.4584763726 | $626,412 | $626,412 | $287.20 | | |
| ISLANDEMS | Hospital GEN (EMS) | 0.5000000000 | $626,412 | $626,412 | $313.21 | | |
| LIB | Library Sno-Isle GEN | 0.3153421757 | $626,412 | $626,412 | $197.53 | | |
| PORTWHID | Port of S Whidbey GEN | 0.1094540357 | $626,412 | $626,412 | $68.56 | | |
| SCH206BOND | School 206 BOND | 0.3161759235 | $626,412 | $626,412 | $198.06 | | |
| SCH206MO | School 206 Enrichment | 0.4547169547 | $626,412 | $626,412 | $284.84 | | |
| ST | State School | 1.3035497053 | $626,412 | $626,412 | $816.56 | | |
| ST2 | State School Part 2 | 0.8169543533 | $626,412 | $626,412 | $511.75 | | |
| SWHIDPRBD | P & R S Whidbey BOND | 0.0152817568 | $626,412 | $626,412 | $9.57 | | |
| SWHIDPRBD2 | P & R S Whidbey BOND2 | 0.0138911264 | $626,412 | $626,412 | $8.70 | | |
| SWHIDPRMT | P & R S Whidbey GEN | 0.2053334452 | $626,412 | $626,412 | $128.62 | | |
| | Total Tax Rate: | 6.6934522006 | | | | | |
| | | | | Taxes w/Current Exemptions: | $4,192.86 | | |
| | | | | Taxes w/o Exemptions: | $4,192.86 | | |
Improvement / Building
| Improvement #1: | RESIDENTIAL | State Code: | Y | 2400.0 sqft | Value: | $336,412 |
| Bathrooms: | 3 | Bedrooms: | 2 | | Ceiling: | DRYWALL PAINTED | Exterior Wall/Cover: | WOOD SIDING | | Floor Covering: | CARPET/VINYL 80-20 | Floor Structure: | WOOD W/SUBFLOOR | | Foundation: | CONCRETE | Heating: | FHA ELECTRIC | | Interior Finish: | DRYWALL PAINT | Plumbing Fixture Cnt: | 9 | | Roof Slope: | 4" IN 12" | Roof Structure/Cover: | CJ ASPHALT |
|
| | Type | Description | Class CD | Sub Class CD | Year Built | Area |
| | BAS | BASE/MAIN FLOOR | 3 | 0 | 1979 | 1238.0 |
| | DWN | DOWNSTAIRS LIVING AREA | 3 | 0 | 1979 | 1162.0 |
| | OP1 | OPEN PORCH SLAB | 3 | 0 | 1979 | 420.0 |
| | OP4 | OPEN PORCH W/CEILING-ROOF | 3 | 0 | 1979 | 18.0 |
| | AGR | ATTACHED GARAGE | 3 | 0 | 1979 | 572.0 |
| | OWP | OPEN WOOD PORCH W/STEPS | 3 | 0 | 1979 | 288.0 |
| | OWC | OPEN WOOD PORCH W/STEPS/ROOF/C | 3 | 0 | 1979 | 120.0 |
Sketch
Property Image
Land
| 1 | 14 | SQ (08001-12000) | 0.0000 | 0.00 | 0.00 | 0.00 | 1.00 | $290,000 | $0 |
Roll Value History
| 2026 | N/A | N/A | N/A | N/A | N/A |
| 2025 | $336,412 | $290,000 | $0 | $626,412 | $626,412 |
| 2024 | $340,658 | $270,000 | $0 | $610,658 | $610,658 |
| 2023 | $344,902 | $250,000 | $0 | $594,902 | $594,902 |
| 2022 | $316,146 | $210,000 | $0 | $526,146 | $526,146 |
| 2021 | $278,264 | $180,000 | $0 | $458,264 | $458,264 |
| 2020 | $271,913 | $140,000 | $0 | $411,913 | $411,913 |
| 2019 | $195,433 | $180,000 | $0 | $375,433 | $375,433 |
| 2018 | $196,041 | $155,000 | $0 | $351,041 | $351,041 |
| 2017 | $197,260 | $120,000 | $0 | $317,260 | $317,260 |
| 2016 | $199,695 | $95,000 | $0 | $294,695 | $294,695 |
| 2015 | $202,130 | $65,000 | $0 | $267,130 | $267,130 |
| 2014 | $176,101 | $75,000 | $0 | $251,101 | $251,101 |
| 2013 | $174,648 | $75,500 | $0 | $250,148 | $250,148 |
| 2012 | $177,133 | $75,500 | $0 | $252,633 | $252,633 |
| 2011 | $179,618 | $75,500 | $0 | $255,118 | $255,118 |
| 2010 | $192,165 | $85,800 | $0 | $277,965 | $277,965 |
| 2009 | $200,475 | $185,000 | $0 | $385,475 | $385,475 |
| 2008 | $200,475 | $185,000 | $0 | $385,475 | $385,475 |
| 2007 | $204,940 | $185,000 | $0 | $389,940 | $389,940 |
Deed and Sales History
| 1 | 05/04/2020 | QCD | Quit Claim Deed | FITZGERALD TRUSTEE, WAYNE R | COURTNEY TTEE, MARY ELLEN | | | $0.00 | 42988 | 4486480 |
| 2 | 02/13/2015 | WD | Warranty Deed | COATS, STEVEN K | FITZGERALD TRUSTEE, WAYNE R | | | $277,800.00 | 18529 | 4373544 |
| 3 | 11/19/2014 | CPADC | Comm Prop Agmnt & Death Cert | COATS, HAROLD K | COATS, STEVEN K | | | | 85046 | |
| 4 | 10/06/2014 | PRD | Personal Representatives Deed | COATS, HAROLD K | COATS, HAROLD K | | | $0.00 | 17482 | 4368097 |
| 5 | 05/01/1989 | WD | Warranty Deed | CULBERTSON, FRED J | COATS, HAROLD K | | | $120,500.00 | 91708 | 89005876 |
| 6 | 10/01/1981 | CD | DNU - Correction Deed | CULBERTSON, FRED J | CULBERTSON, FRED J | | | $1.00 | 13365 | 389527 |
| 7 | 01/01/1900 | OTHER | Other - Misc. Documents | Unknown | CULBERTSON, FRED J | | | $0.00 | 0 | 0 |
Payout Agreement
| No payout information available.. |