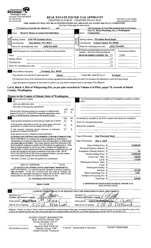
Property
Account |
| Property ID: | 4202 | Abbreviated Legal Description: | IN J CROCKETT DC - E120' & S30' OF FOL: N120' OF W325' OF DES FOLL: BG PT 443.7' S OF NW CR SD DLC E660' S528' W660' N528' TPB EX RD |
| Geographic ID: | R13104-329-4300 | Agent Code: | |
| Type: | Real | | |
| Tax Area: | 300 - APPRAISER-Cpvl Schl Dist, in Cpvl | Land Use Code | 11 |
| Open Space: | N | DFL | N |
| Historic Property: | N | Remodel Property: | N |
| Multi-Family Redevelopment: | N | | |
| Township: | 31 | Section: | 04 |
| Range: | R1 |
Location |
| Address: | 609 S MAIN ST COUPEVILLE, WA 98239 | Mapsco: | |
| Neighborhood: | Cycle 2 | Map ID: | 32 |
| Neighborhood CD: | 2 |
Owner |
| Name: | OLSON, JOHN SCOTT | Owner ID: | 309220 |
| Mailing Address: | CATHERINE ANN OLSON 609 S MAIN ST COUPEVILLE, WA 98239 | % Ownership: | 100.0000000000% |
| | | Exemptions: | |
Taxes and Assessment Details
Values
| (+) Improvement Homesite Value: | + | $0 | |
| (+) Improvement Non-Homesite Value: | + | $449,294 | |
| (+) Land Homesite Value: | + | $0 | |
| (+) Land Non-Homesite Value: | + | $216,364 | |
| (+) Curr Use (HS): | + | $0 | $0 |
| (+) Curr Use (NHS): | + | $0 | $0 |
| | | -------------------------- | |
| (=) Market Value: | = | $665,658 | |
| (–) Productivity Loss: | – | $0 | |
| | | -------------------------- | |
| (=) Subtotal: | = | $665,658 | |
| (+) Senior Appraised Value: | + | $0 | |
| (+) Non-Senior Appraised Value: | + | $665,658 | |
| | | -------------------------- | |
| (=) Total Appraised Value: | = | $665,658 | |
| (–) Senior Exemption Loss: | – | $0 | |
| (–) Exemption Loss: | – | $0 | |
| | | -------------------------- | |
| (=) Taxable Value: | = | $665,658 | |
Taxing Jurisdiction
| Owner: | OLSON, JOHN SCOTT | | |
| % Ownership: | 100.0000000000% | | |
| Total Value: | $665,658 | | |
| Tax Area: | 300 - APPRAISER-Cpvl Schl Dist, in Cpvl |
| CF | Conservation Futures | 0.0316035091 | $665,658 | $665,658 | $21.04 | | |
| CEM2 | Cemetery #2 | 0.0095056933 | $665,658 | $665,658 | $6.33 | | |
| COUP | City: Town of Coupeville | 0.8426414490 | $665,658 | $665,658 | $560.91 | | |
| FIRE5 | Fire & Rescue Dist #5 C Whidbey GEN | 1.2008080668 | $665,658 | $665,658 | $799.33 | | |
| FIRE5BOND | Fire & Rescue Dist #5 C Whidbey BOND | 0.1400090713 | $665,658 | $665,658 | $93.20 | | |
| HOBOND | Hospital BOND | 0.1910887512 | $665,658 | $665,658 | $127.20 | | |
| HOGEN | Hospital GEN | 0.3902502903 | $665,658 | $665,658 | $259.77 | | |
| CE | County Current Expense | 0.3708482477 | $665,658 | $665,658 | $246.86 | | |
| ISLANDEMS | Hospital GEN (EMS) | 0.5000000000 | $665,658 | $665,658 | $332.83 | | |
| LIB | Library Sno-Isle GEN | 0.3153421757 | $665,658 | $665,658 | $209.91 | | |
| LIBCAP | Library Sno-Isle BOND (Cap Fac Imp Area) | 0.0543427938 | $665,658 | $665,658 | $36.17 | | |
| POCOUP | Port of Coupeville GEN | 0.1093371703 | $665,658 | $665,658 | $72.78 | | |
| POCOUPIDD | Port of Coupeville IDD | 0.3409740022 | $665,658 | $665,658 | $226.97 | | |
| COUPSDTECH | School 204 CP (TECH) | 0.7545480007 | $665,658 | $665,658 | $502.27 | | |
| SCH204MO | School 204 Enrichment | 0.6716186034 | $665,658 | $665,658 | $447.07 | | |
| ST | State School | 1.3035497053 | $665,658 | $665,658 | $867.72 | | |
| ST2 | State School Part 2 | 0.8169543533 | $665,658 | $665,658 | $543.81 | | |
| | Total Tax Rate: | 8.0434218834 | | | | | |
| | | | | Taxes w/Current Exemptions: | $5,354.17 | | |
| | | | | Taxes w/o Exemptions: | $5,354.17 | | |
Improvement / Building
| Improvement #1: | RESIDENTIAL | State Code: | Y | 2396.0 sqft | Value: | $449,294 |
| Bathrooms: | 2.5 | Bedrooms: | 5 | | Ceiling: | DRYWALL PAINTED | Cooling: | HEAT PUMP/CONV/V | | Exterior Wall/Cover: | PLY/HARDBOARD T-111 | Floor Covering: | HARDWOOD/CARP 20-80 | | Floor Structure: | WOOD W/SUBFLOOR | Foundation: | CONCRETE | | Interior Finish: | DRYWALL PAINT | Plumbing Fixture Cnt: | 13 | | Roof Slope: | 4" IN 12" | Roof Structure/Cover: | CJ ASPHALT |
|
| | Type | Description | Class CD | Sub Class CD | Year Built | Area |
| | BAS | BASE/MAIN FLOOR | 4 | 0 | 1982 | 1424.0 |
| | OP1 | OPEN PORCH SLAB | 4 | 0 | 1982 | 106.5 |
| | BIG | BUILT IN GARAGE | 4 | 0 | 1982 | 480.0 |
| | UPS | UPPER STORY | 4 | 0 | 1982 | 972.0 |
| | OWP | OPEN WOOD PORCH W/STEPS | 4 | 0 | 1982 | 193.8 |
| | UTY | STORAGE/UTILITY | 4 | 0 | 1982 | 143.0 |
| | OWP | OPEN WOOD PORCH W/STEPS | 4 | 0 | 1982 | 160.0 |
| | UTY | STORAGE/UTILITY | 4 | 0 | 1982 | 200.0 |
Sketch
| No sketches available for this property. |
Property Image
Land
| 1 | HS | HOMESITE | 0.4200 | 18295.20 | 0.00 | 0.00 | 1.00 | $216,364 | $0 |
Roll Value History
| 2026 | N/A | N/A | N/A | N/A | N/A |
| 2025 | $449,294 | $216,364 | $0 | $665,658 | $665,658 |
| 2024 | $446,021 | $200,000 | $0 | $646,021 | $646,021 |
| 2023 | $451,192 | $200,000 | $0 | $651,192 | $651,192 |
| 2022 | $413,239 | $200,000 | $0 | $613,239 | $613,239 |
| 2021 | $363,418 | $150,000 | $0 | $513,418 | $513,418 |
| 2020 | $288,213 | $130,000 | $0 | $418,213 | $418,213 |
| 2019 | $221,776 | $170,000 | $0 | $391,776 | $391,776 |
| 2018 | $214,705 | $150,000 | $0 | $364,705 | $364,705 |
| 2017 | $129,204 | $130,000 | $0 | $259,204 | $259,204 |
| 2016 | $131,224 | $120,000 | $0 | $251,224 | $251,224 |
| 2015 | $133,242 | $89,250 | $0 | $222,492 | $222,492 |
| 2014 | $135,260 | $89,250 | $0 | $224,510 | $224,510 |
| 2013 | $137,280 | $89,250 | $0 | $226,530 | $226,530 |
| 2012 | $147,463 | $89,250 | $0 | $236,713 | $236,713 |
| 2011 | $149,484 | $105,000 | $0 | $254,484 | $254,484 |
| 2010 | $158,069 | $105,000 | $0 | $263,069 | $263,069 |
| 2009 | $165,194 | $125,000 | $0 | $290,194 | $290,194 |
| 2008 | $167,678 | $134,000 | $0 | $301,678 | $301,678 |
| 2007 | $170,063 | $87,750 | $0 | $257,813 | $257,813 |
Deed and Sales History
| 1 | 07/03/2023 | WD | Warranty Deed | HENDERSON, JOHN LEWIS | OLSON, JOHN SCOTT | | | $645,000.00 | 57237 | 4561946 |
| 2 | 08/17/2020 | WD | Warranty Deed | WENZEL, SHERINE | HENDERSON, JOHN LEWIS | | | $515,000.00 | 44463 | 4495073 |
| 3 | 07/26/2018 | WD | Warranty Deed | BEPLER, MARK JASON | WENZEL, SHERINE | | | $434,000.00 | 35267 | 4449105 |
| 4 | 12/09/2015 | SPWARDEED | Special Warranty Deed | SECRETARY OF HOUSING & URBAN DEVELOPMENT | BEPLER, MARK JASON | | | $176,000.00 | 22449 | 4390909 |
| 5 | 04/21/2015 | WD | Warranty Deed | HUNTINGTON NATIONAL BANK | SECRETARY OF HOUSING & URBAN DEVELOPMENT | | | $0.00 | 19345 | 4377395 |
| 6 | 10/20/2014 | TRUSTEED | Trustee's Deed | LANGVOLD, BORD | HUNTINGTON NATIONAL BANK | | | $0.00 | 17243 | 4367217 |
| 7 | 07/11/2007 | OTHER | Other - Misc. Documents | LANGVOLD, BEVERLY J | LANGVOLD, BORD | | | $0.00 | 80251 | 0 |
| 8 | 10/01/1996 | QCD | Quit Claim Deed | LARWOOD, BEVERLY J | LANGVOLD, BEVERLY J | | | $0.00 | 63898 | 96018887 |
| 9 | 07/01/1985 | OTHER | Other - Misc. Documents | KIRKWOOD, BEVERLY J | LARWOOD, BEVERLY J | | | $0.00 | 61251 | 0 |
| 10 | 09/01/1982 | TRUSTEED | Trustee's Deed | JAMPSA, KENNETH C | KIRKWOOD, BEVERLY J | | | $46,000.00 | 22158 | 400420 |
| 11 | 08/01/1980 | CD | DNU - Correction Deed | JAMPSA, JOLENE L | JAMPSA, KENNETH C | | | $0.00 | 2787 | 372750 |
| 12 | 05/01/1980 | CD | DNU - Correction Deed | JAMPSA, KENNETH C | JAMPSA, JOLENE L | | | $0.00 | 1802 | 369209 |
| 13 | 03/01/1979 | OTHER | Other - Misc. Documents | Unknown | JAMPSA, KENNETH C | | | $5,250.00 | 91014 | 348640 |
Payout Agreement
| No payout information available.. |