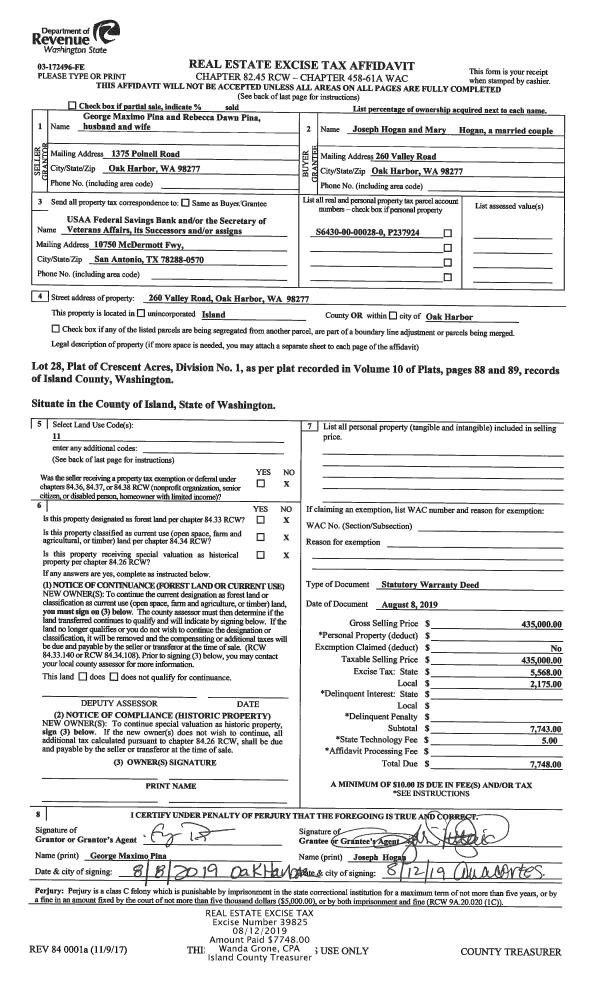
Property
Account |
| Property ID: | 420217 | Abbreviated Legal Description: | USE BAY 10 LOT 54 |
| Geographic ID: | S8340-10-00054-0 | Agent Code: | |
| Type: | Real | | |
| Tax Area: | 750 - APPRAISER-S Whid Schl Dist, Special District, improved & less than 1 acre | Land Use Code | 11 |
| Open Space: | N | DFL | N |
| Historic Property: | N | Remodel Property: | N |
| Multi-Family Redevelopment: | N | | |
| Township: | | Section: | |
| Range: | |
Location |
| Address: | 5674 LENZ PLACE LANGLEY, WA 98260 | Mapsco: | |
| Neighborhood: | Cycle 3 | Map ID: | 786 |
| Neighborhood CD: | 3 |
Owner |
| Name: | O'HARA, DENNIS M | Owner ID: | 294035 |
| Mailing Address: | CONSTANCE M O'HARA 5674 LENZ PL LANGLEY, WA 98260 | % Ownership: | 100.0000000000% |
| | | Exemptions: | |
Taxes and Assessment Details
Values
| (+) Improvement Homesite Value: | + | $0 | |
| (+) Improvement Non-Homesite Value: | + | $416,979 | |
| (+) Land Homesite Value: | + | $0 | |
| (+) Land Non-Homesite Value: | + | $290,000 | |
| (+) Curr Use (HS): | + | $0 | $0 |
| (+) Curr Use (NHS): | + | $0 | $0 |
| | | -------------------------- | |
| (=) Market Value: | = | $706,979 | |
| (–) Productivity Loss: | – | $0 | |
| | | -------------------------- | |
| (=) Subtotal: | = | $706,979 | |
| (+) Senior Appraised Value: | + | $0 | |
| (+) Non-Senior Appraised Value: | + | $706,979 | |
| | | -------------------------- | |
| (=) Total Appraised Value: | = | $706,979 | |
| (–) Senior Exemption Loss: | – | $0 | |
| (–) Exemption Loss: | – | $0 | |
| | | -------------------------- | |
| (=) Taxable Value: | = | $706,979 | |
Taxing Jurisdiction
| Owner: | O'HARA, DENNIS M | | |
| % Ownership: | 100.0000000000% | | |
| Total Value: | $706,979 | | |
| Tax Area: | 750 - APPRAISER-S Whid Schl Dist, Special District, improved & less than 1 acre |
| CF | Conservation Futures | 0.0316035091 | $706,979 | $706,979 | $22.34 | | |
| FIRE3 | Fire & Rescue Dist #3 S Whidbey GEN | 1.2004855531 | $706,979 | $706,979 | $848.72 | | |
| HOBOND | Hospital BOND | 0.1910887512 | $706,979 | $706,979 | $135.10 | | |
| HOGEN | Hospital GEN | 0.3902502903 | $706,979 | $706,979 | $275.90 | | |
| CE | County Current Expense | 0.3708482477 | $706,979 | $706,979 | $262.18 | | |
| CR | County Roads | 0.4584763726 | $706,979 | $706,979 | $324.13 | | |
| ISLANDEMS | Hospital GEN (EMS) | 0.5000000000 | $706,979 | $706,979 | $353.49 | | |
| LIB | Library Sno-Isle GEN | 0.3153421757 | $706,979 | $706,979 | $222.94 | | |
| PORTWHID | Port of S Whidbey GEN | 0.1094540357 | $706,979 | $706,979 | $77.38 | | |
| SCH206BOND | School 206 BOND | 0.3161759235 | $706,979 | $706,979 | $223.53 | | |
| SCH206MO | School 206 Enrichment | 0.4547169547 | $706,979 | $706,979 | $321.48 | | |
| ST | State School | 1.3035497053 | $706,979 | $706,979 | $921.58 | | |
| ST2 | State School Part 2 | 0.8169543533 | $706,979 | $706,979 | $577.57 | | |
| SWHIDPRBD | P & R S Whidbey BOND | 0.0152817568 | $706,979 | $706,979 | $10.80 | | |
| SWHIDPRBD2 | P & R S Whidbey BOND2 | 0.0138911264 | $706,979 | $706,979 | $9.82 | | |
| SWHIDPRMT | P & R S Whidbey GEN | 0.2053334452 | $706,979 | $706,979 | $145.17 | | |
| | Total Tax Rate: | 6.6934522006 | | | | | |
| | | | | Taxes w/Current Exemptions: | $4,732.13 | | |
| | | | | Taxes w/o Exemptions: | $4,732.13 | | |
Improvement / Building
| Improvement #1: | RESIDENTIAL | State Code: | Y | 1855.5 sqft | Value: | $416,979 |
| Bathrooms: | 2 | Bedrooms: | 2 | | Ceiling: | DRYWALL PAINTED | Cooling: | HEAT PUMP/CONV/V | | Exterior Wall/Cover: | WOOD SIDING | Floor Covering: | HARDWOOD/CARP 60-40 | | Floor Structure: | WOOD W/SUBFLOOR | Foundation: | CONCRETE | | Interior Finish: | DRYWALL PAINT | Plumbing Fixture Cnt: | 12 | | Roof Slope: | 4" IN 12" | Roof Structure/Cover: | CJ ASPHALT |
|
| | Type | Description | Class CD | Sub Class CD | Year Built | Area |
| | BAS | BASE/MAIN FLOOR | 4 | 0 | 2004 | 1855.5 |
| | OP1 | OPEN PORCH SLAB | 4 | 0 | 2004 | 108.4 |
| | AGR | ATTACHED GARAGE | 4 | 0 | 2004 | 418.1 |
| | OWC | OPEN WOOD PORCH W/STEPS/ROOF/C | 4 | 0 | 2004 | 110.6 |
Sketch
Property Image
Land
| 1 | 14 | SQ (08001-12000) | 0.0000 | 0.00 | 0.00 | 0.00 | 1.00 | $290,000 | $0 |
Roll Value History
| 2026 | N/A | N/A | N/A | N/A | N/A |
| 2025 | $416,979 | $290,000 | $0 | $706,979 | $706,979 |
| 2024 | $421,758 | $270,000 | $0 | $691,758 | $691,758 |
| 2023 | $426,537 | $250,000 | $0 | $676,537 | $676,537 |
| 2022 | $389,482 | $210,000 | $0 | $599,482 | $599,482 |
| 2021 | $341,684 | $180,000 | $0 | $521,684 | $521,684 |
| 2020 | $331,250 | $140,000 | $0 | $471,250 | $471,250 |
| 2019 | $230,434 | $180,000 | $0 | $410,434 | $410,434 |
| 2018 | $231,090 | $155,000 | $0 | $386,090 | $386,090 |
| 2017 | $232,341 | $120,000 | $0 | $352,341 | $352,341 |
| 2016 | $234,966 | $95,000 | $0 | $329,966 | $329,966 |
| 2015 | $237,590 | $65,000 | $0 | $302,590 | $302,590 |
| 2014 | $240,214 | $75,000 | $0 | $315,214 | $315,214 |
| 2013 | $248,336 | $75,500 | $0 | $323,836 | $323,836 |
| 2012 | $251,010 | $75,500 | $0 | $326,510 | $326,510 |
| 2011 | $253,685 | $75,500 | $0 | $329,185 | $329,185 |
| 2010 | $262,497 | $85,800 | $0 | $348,297 | $348,297 |
| 2009 | $276,201 | $185,000 | $0 | $461,201 | $461,201 |
| 2008 | $276,688 | $185,000 | $0 | $461,688 | $461,688 |
| 2007 | $293,293 | $185,000 | $0 | $478,293 | $478,293 |
Deed and Sales History
| 1 | 04/21/2020 | WD | Warranty Deed | BEAN, JULIANA | O'HARA, DENNIS M | | | $510,000.00 | 42830 | 4485416 |
| 2 | 03/05/2010 | WD | Warranty Deed | ARVIDSON TRUSTEE, ROLF | BEAN, JULIANA | | | $340,000.00 | 555 | 4270125 |
| 3 | 11/12/2007 | QCD | Quit Claim Deed | ARVIDSON, ROLF | ARVIDSON TRUSTEE, ROLF | | | $0.00 | 73838 | 4216822 |
| 4 | 06/18/2007 | WD | Warranty Deed | HADDEN, JULIA ROMELLE | ARVIDSON, ROLF | | | $455,000.00 | 72154 | 4205751 |
| 5 | 05/21/2004 | WD | Warranty Deed | CASA GROUP CORPORATION, | HADDEN, JULIA ROMELLE | | | $325,000.00 | 42209 | 4101669 |
| 6 | 10/09/2003 | WD | Warranty Deed | CORBIN, NANCY L | CASA GROUP CORPORATION, | | | $68,700.00 | 34651 | 4079322 |
| 7 | 02/01/1990 | WD | Warranty Deed | EIKENBERRY, JEFFREY A | CORBIN, NANCY L | | | $29,000.00 | 1146 | 90003706 |
| 8 | 01/01/1900 | OTHER | Other - Misc. Documents | Unknown | EIKENBERRY, JEFFREY A | | | $0.00 | 0 | 0 |
Payout Agreement
| No payout information available.. |