Property
Account |
| Property ID: | 420404 | Abbreviated Legal Description: | USE BAY 10 LOT 67 |
| Geographic ID: | S8340-10-00067-0 | Agent Code: | |
| Type: | Real | | |
| Tax Area: | 850 - APPRAISER-S Whid Schl Dist, Special District, improved & less than 1 acre | Land Use Code | 11 |
| Open Space: | N | DFL | N |
| Historic Property: | N | Remodel Property: | N |
| Multi-Family Redevelopment: | N | | |
| Township: | | Section: | |
| Range: | |
Location |
| Address: | 5681 LENZ PLACE LANGLEY, WA 98260 | Mapsco: | |
| Neighborhood: | Cycle 3 | Map ID: | 786 |
| Neighborhood CD: | 3 |
Owner |
| Name: | MULCAHY, EDWARD | Owner ID: | 284688 |
| Mailing Address: | CHRISTINE MULCAHY PO BOX 1615 LANGLEY, WA 98260 | % Ownership: | 100.0000000000% |
| | | Exemptions: | |
Taxes and Assessment Details
Values
| (+) Improvement Homesite Value: | + | $0 | |
| (+) Improvement Non-Homesite Value: | + | $498,637 | |
| (+) Land Homesite Value: | + | $0 | |
| (+) Land Non-Homesite Value: | + | $390,000 | |
| (+) Curr Use (HS): | + | $0 | $0 |
| (+) Curr Use (NHS): | + | $0 | $0 |
| | | -------------------------- | |
| (=) Market Value: | = | $888,637 | |
| (–) Productivity Loss: | – | $0 | |
| | | -------------------------- | |
| (=) Subtotal: | = | $888,637 | |
| (+) Senior Appraised Value: | + | $0 | |
| (+) Non-Senior Appraised Value: | + | $888,637 | |
| | | -------------------------- | |
| (=) Total Appraised Value: | = | $888,637 | |
| (–) Senior Exemption Loss: | – | $0 | |
| (–) Exemption Loss: | – | $0 | |
| | | -------------------------- | |
| (=) Taxable Value: | = | $888,637 | |
Taxing Jurisdiction
| Owner: | MULCAHY, EDWARD | | |
| % Ownership: | 100.0000000000% | | |
| Total Value: | $888,637 | | |
| Tax Area: | 850 - APPRAISER-S Whid Schl Dist, Special District, improved & less than 1 acre |
| CF | Conservation Futures | 0.0316035091 | $888,637 | $888,637 | $28.08 | | |
| FIRE3 | Fire & Rescue Dist #3 S Whidbey GEN | 1.2004855531 | $888,637 | $888,637 | $1,066.80 | | |
| HOBOND | Hospital BOND | 0.1910887512 | $888,637 | $888,637 | $169.81 | | |
| HOGEN | Hospital GEN | 0.3902502903 | $888,637 | $888,637 | $346.79 | | |
| CE | County Current Expense | 0.3708482477 | $888,637 | $888,637 | $329.55 | | |
| CR | County Roads | 0.4584763726 | $888,637 | $888,637 | $407.42 | | |
| ISLANDEMS | Hospital GEN (EMS) | 0.5000000000 | $888,637 | $888,637 | $444.32 | | |
| LIB | Library Sno-Isle GEN | 0.3153421757 | $888,637 | $888,637 | $280.22 | | |
| PORTWHID | Port of S Whidbey GEN | 0.1094540357 | $888,637 | $888,637 | $97.26 | | |
| SCH206BOND | School 206 BOND | 0.3161759235 | $888,637 | $888,637 | $280.97 | | |
| SCH206MO | School 206 Enrichment | 0.4547169547 | $888,637 | $888,637 | $404.08 | | |
| ST | State School | 1.3035497053 | $888,637 | $888,637 | $1,158.38 | | |
| ST2 | State School Part 2 | 0.8169543533 | $888,637 | $888,637 | $725.98 | | |
| SWHIDPRBD | P & R S Whidbey BOND | 0.0152817568 | $888,637 | $888,637 | $13.58 | | |
| SWHIDPRBD2 | P & R S Whidbey BOND2 | 0.0138911264 | $888,637 | $888,637 | $12.34 | | |
| SWHIDPRMT | P & R S Whidbey GEN | 0.2053334452 | $888,637 | $888,637 | $182.47 | | |
| | Total Tax Rate: | 6.6934522006 | | | | | |
| | | | | Taxes w/Current Exemptions: | $5,948.05 | | |
| | | | | Taxes w/o Exemptions: | $5,948.05 | | |
Improvement / Building
| Improvement #1: | RESIDENTIAL | State Code: | Y | 2624.0 sqft | Value: | $498,637 |
| Bathrooms: | 3 | Bedrooms: | 2 | | Ceiling: | DRYWALL PAINTED | Cooling: | HEAT PUMP/CONV/V | | Exterior Wall/Cover: | PLY/HARDBOARD T-111 | Floor Covering: | HARDWOOD/CARP 60-40 | | Floor Structure: | WOOD W/SUBFLOOR | Foundation: | CONCRETE | | Interior Finish: | DRYWALL PAINT | Plumbing Fixture Cnt: | 14 | | Roof Slope: | 4" IN 12" | Roof Structure/Cover: | CJ ASPHALT |
|
| | Type | Description | Class CD | Sub Class CD | Year Built | Area |
| | BAS | BASE/MAIN FLOOR | 4 | 0 | 1991 | 1700.0 |
| | OP1 | OPEN PORCH SLAB | 4 | 0 | 1991 | 616.0 |
| | AGR | ATTACHED GARAGE | 4 | 0 | 1991 | 576.0 |
| | BIG | BUILT IN GARAGE | 4 | 0 | 1991 | 308.0 |
| | OWP | OPEN WOOD PORCH W/STEPS | 4 | 0 | 1991 | 328.0 |
| | OWP | OPEN WOOD PORCH W/STEPS | 4 | 0 | 1991 | 632.0 |
| | OWC | OPEN WOOD PORCH W/STEPS/ROOF/C | 4 | 0 | 1991 | 48.0 |
| | DWN | DOWNSTAIRS LIVING AREA | 4 | 0 | 1991 | 924.0 |
Sketch
Property Image
Land
| 1 | 14 | SQ (08001-12000) | 0.0000 | 0.00 | 0.00 | 0.00 | 1.00 | $390,000 | $0 |
Roll Value History
| 2026 | N/A | N/A | N/A | N/A | N/A |
| 2025 | $498,637 | $390,000 | $0 | $888,637 | $888,637 |
| 2024 | $504,851 | $350,000 | $0 | $854,851 | $854,851 |
| 2023 | $511,062 | $320,000 | $0 | $831,062 | $831,062 |
| 2022 | $468,400 | $270,000 | $0 | $738,400 | $738,400 |
| 2021 | $412,201 | $200,000 | $0 | $612,201 | $612,201 |
| 2020 | $401,845 | $150,000 | $0 | $551,845 | $551,845 |
| 2019 | $301,789 | $210,000 | $0 | $511,789 | $511,789 |
| 2018 | $302,665 | $190,000 | $0 | $492,665 | $492,665 |
| 2017 | $245,506 | $160,000 | $0 | $405,506 | $405,506 |
| 2016 | $248,499 | $140,000 | $0 | $388,499 | $388,499 |
| 2015 | $251,494 | $125,000 | $0 | $376,494 | $376,494 |
| 2014 | $254,489 | $125,000 | $0 | $379,489 | $379,489 |
| 2013 | $230,840 | $96,800 | $0 | $327,640 | $327,640 |
| 2012 | $233,708 | $96,800 | $0 | $330,508 | $330,508 |
| 2011 | $236,578 | $96,800 | $0 | $333,378 | $333,378 |
| 2010 | $243,554 | $110,000 | $0 | $353,554 | $353,554 |
| 2009 | $253,805 | $185,000 | $0 | $438,805 | $438,805 |
| 2008 | $266,645 | $185,000 | $0 | $451,645 | $451,645 |
| 2007 | $271,869 | $185,000 | $0 | $456,869 | $456,869 |
Deed and Sales History
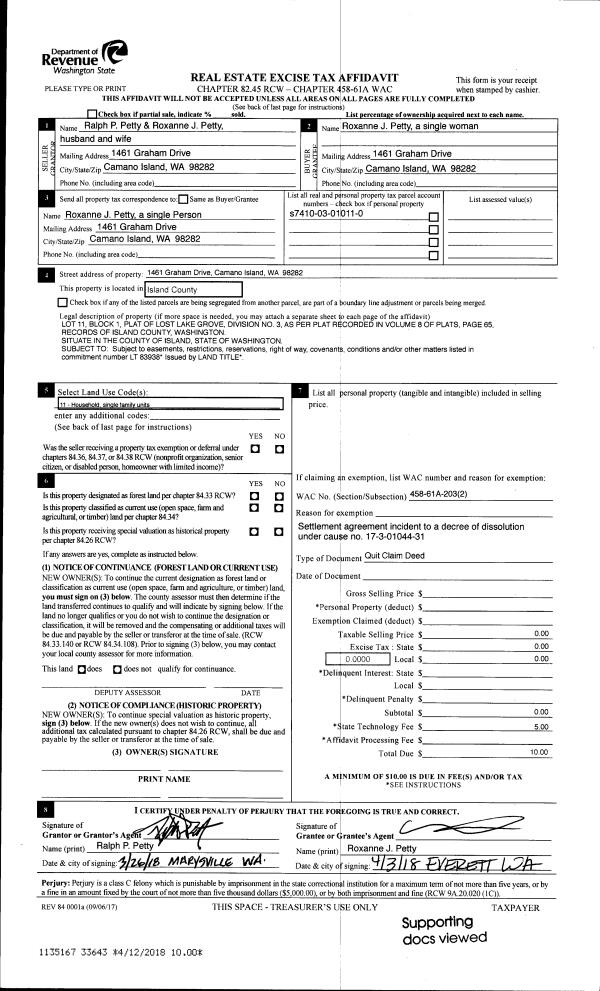
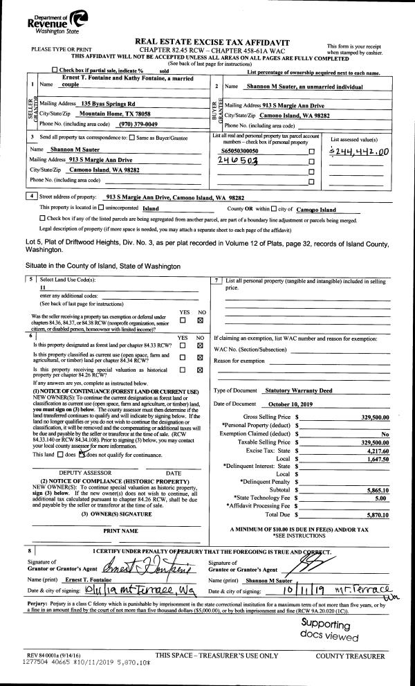
| 1 | 04/19/2018 | WD | Warranty Deed | LARSON, D MICHAEL | MULCAHY, EDWARD | | | $560,000.00 | 33767 | 4442981 |
| 2 | 11/04/2002 | WD | Warranty Deed | BOHRER, RICHARD K | LARSON, D MICHAEL | | | $340,000.00 | 24521 | 4037217 |
| 3 | 05/22/2000 | WD | Warranty Deed | COOPER, JOHN Q/DEANNE A J | BOHRER, RICHARD K | | | $260,000.00 | 1947 | 20009302 |
| 4 | 06/01/1992 | WD | Warranty Deed | R, K P | COOPER, JOHN Q | | | $202,500.00 | 22229 | 92010751 |
| 5 | 05/01/1990 | WD | Warranty Deed | BOHRER, RICHARD K | R, K P | | | $39,500.00 | 3431 | 90011167 |
| 6 | 10/01/1979 | CD | DNU - Correction Deed | HINDS, LYNN R | NORGAARD, VIRGINIA A | | | $0.00 | 95312 | 361236 |
| 7 | 01/01/1900 | OTHER | Other - Misc. Documents | NORGAARD, VIRGINIA A | BOHRER, RICHARD K | | | $0.00 | 0 | 0 |
| 8 | 01/01/1900 | OTHER | Other - Misc. Documents | COOPER, JOHN Q | COOPER, JOHN Q/DEANNE A J | | | $0.00 | 0 | 0 |
| 9 | 01/01/1900 | OTHER | Other - Misc. Documents | Unknown | HINDS, LYNN R | | | $0.00 | 0 | 0 |
Payout Agreement
| No payout information available.. |