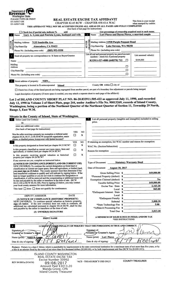
Property
Account |
| Property ID: | 420459 | Abbreviated Legal Description: | USE BAY 10 LOT 70 |
| Geographic ID: | S8340-10-00070-0 | Agent Code: | |
| Type: | Real | | |
| Tax Area: | 750 - APPRAISER-S Whid Schl Dist, Special District, improved & less than 1 acre | Land Use Code | 11 |
| Open Space: | N | DFL | N |
| Historic Property: | N | Remodel Property: | N |
| Multi-Family Redevelopment: | N | | |
| Township: | | Section: | |
| Range: | |
Location |
| Address: | 5663 LENZ PLACE LANGLEY, WA 98260 | Mapsco: | |
| Neighborhood: | Cycle 3 | Map ID: | 786 |
| Neighborhood CD: | 3 |
Owner |
| Name: | WALDRON, MATT T | Owner ID: | 282465 |
| Mailing Address: | AUBREY WALDRON 5663 LENZ PLACE LANGLEY, WA 98260 | % Ownership: | 100.0000000000% |
| | | Exemptions: | |
Taxes and Assessment Details
Values
| (+) Improvement Homesite Value: | + | $0 | |
| (+) Improvement Non-Homesite Value: | + | $455,725 | |
| (+) Land Homesite Value: | + | $0 | |
| (+) Land Non-Homesite Value: | + | $290,000 | |
| (+) Curr Use (HS): | + | $0 | $0 |
| (+) Curr Use (NHS): | + | $0 | $0 |
| | | -------------------------- | |
| (=) Market Value: | = | $745,725 | |
| (–) Productivity Loss: | – | $0 | |
| | | -------------------------- | |
| (=) Subtotal: | = | $745,725 | |
| (+) Senior Appraised Value: | + | $0 | |
| (+) Non-Senior Appraised Value: | + | $745,725 | |
| | | -------------------------- | |
| (=) Total Appraised Value: | = | $745,725 | |
| (–) Senior Exemption Loss: | – | $0 | |
| (–) Exemption Loss: | – | $0 | |
| | | -------------------------- | |
| (=) Taxable Value: | = | $745,725 | |
Taxing Jurisdiction
| Owner: | WALDRON, MATT T | | |
| % Ownership: | 100.0000000000% | | |
| Total Value: | $745,725 | | |
| Tax Area: | 750 - APPRAISER-S Whid Schl Dist, Special District, improved & less than 1 acre |
| CF | Conservation Futures | 0.0316035091 | $745,725 | $745,725 | $23.57 | | |
| FIRE3 | Fire & Rescue Dist #3 S Whidbey GEN | 1.2004855531 | $745,725 | $745,725 | $895.23 | | |
| HOBOND | Hospital BOND | 0.1910887512 | $745,725 | $745,725 | $142.50 | | |
| HOGEN | Hospital GEN | 0.3902502903 | $745,725 | $745,725 | $291.02 | | |
| CE | County Current Expense | 0.3708482477 | $745,725 | $745,725 | $276.55 | | |
| CR | County Roads | 0.4584763726 | $745,725 | $745,725 | $341.90 | | |
| ISLANDEMS | Hospital GEN (EMS) | 0.5000000000 | $745,725 | $745,725 | $372.86 | | |
| LIB | Library Sno-Isle GEN | 0.3153421757 | $745,725 | $745,725 | $235.16 | | |
| PORTWHID | Port of S Whidbey GEN | 0.1094540357 | $745,725 | $745,725 | $81.62 | | |
| SCH206BOND | School 206 BOND | 0.3161759235 | $745,725 | $745,725 | $235.78 | | |
| SCH206MO | School 206 Enrichment | 0.4547169547 | $745,725 | $745,725 | $339.09 | | |
| ST | State School | 1.3035497053 | $745,725 | $745,725 | $972.09 | | |
| ST2 | State School Part 2 | 0.8169543533 | $745,725 | $745,725 | $609.22 | | |
| SWHIDPRBD | P & R S Whidbey BOND | 0.0152817568 | $745,725 | $745,725 | $11.40 | | |
| SWHIDPRBD2 | P & R S Whidbey BOND2 | 0.0138911264 | $745,725 | $745,725 | $10.36 | | |
| SWHIDPRMT | P & R S Whidbey GEN | 0.2053334452 | $745,725 | $745,725 | $153.12 | | |
| | Total Tax Rate: | 6.6934522006 | | | | | |
| | | | | Taxes w/Current Exemptions: | $4,991.47 | | |
| | | | | Taxes w/o Exemptions: | $4,991.47 | | |
Improvement / Building
| Improvement #1: | RESIDENTIAL | State Code: | Y | 3183.8 sqft | Value: | $455,725 |
| Bathrooms: | 2.5 | Bedrooms: | 2 | | Ceiling: | DRYWALL PAINTED | Cooling: | HEAT PUMP/CONV/V | | Exterior Wall/Cover: | WOOD SIDING | Floor Covering: | HARDWOOD/CARP 60-40 | | Floor Structure: | WOOD W/SUBFLOOR | Foundation: | CONCRETE | | Interior Finish: | DRYWALL PAINT | Plumbing Fixture Cnt: | 12 | | Roof Slope: | 4" IN 12" | Roof Structure/Cover: | CJ CONCRETE TILE |
|
| | Type | Description | Class CD | Sub Class CD | Year Built | Area |
| | BAS | BASE/MAIN FLOOR | 3 | 0 | 1989 | 1891.1 |
| | UB8 | BASEMENT UNFINISHED 8" | 3 | 0 | 1989 | 337.0 |
| | DWN | DOWNSTAIRS LIVING AREA | 3 | 0 | 1989 | 1292.7 |
| | OP1 | OPEN PORCH SLAB | 3 | 0 | 1989 | 481.8 |
| | AGR | ATTACHED GARAGE | 3 | 0 | 1989 | 610.0 |
| | BGR | BASEMENT GARAGE | 3 | 0 | 1989 | 150.0 |
| | OWP | OPEN WOOD PORCH W/STEPS | 3 | 0 | 1989 | 926.3 |
| | OWC | OPEN WOOD PORCH W/STEPS/ROOF/C | 3 | 0 | 1989 | 166.9 |
Sketch
Property Image
Land
| 1 | 14 | SQ (08001-12000) | 0.0000 | 0.00 | 0.00 | 0.00 | 1.00 | $290,000 | $0 |
Roll Value History
| 2026 | N/A | N/A | N/A | N/A | N/A |
| 2025 | $455,725 | $290,000 | $0 | $745,725 | $745,725 |
| 2024 | $461,780 | $270,000 | $0 | $731,780 | $731,780 |
| 2023 | $467,837 | $250,000 | $0 | $717,837 | $717,837 |
| 2022 | $429,108 | $210,000 | $0 | $639,108 | $639,108 |
| 2021 | $377,901 | $180,000 | $0 | $557,901 | $557,901 |
| 2020 | $369,658 | $140,000 | $0 | $509,658 | $509,658 |
| 2019 | $300,908 | $180,000 | $0 | $480,908 | $480,908 |
| 2018 | $301,831 | $155,000 | $0 | $456,831 | $456,831 |
| 2017 | $314,810 | $120,000 | $0 | $434,810 | $434,810 |
| 2016 | $318,649 | $95,000 | $0 | $413,649 | $413,649 |
| 2015 | $322,490 | $65,000 | $0 | $387,490 | $387,490 |
| 2014 | $326,329 | $75,000 | $0 | $401,329 | $401,329 |
| 2013 | $360,848 | $75,500 | $0 | $436,348 | $436,348 |
| 2012 | $365,522 | $75,500 | $0 | $441,022 | $441,022 |
| 2011 | $370,195 | $75,500 | $0 | $445,695 | $445,695 |
| 2010 | $387,378 | $85,800 | $0 | $473,178 | $473,178 |
| 2009 | $403,946 | $185,000 | $0 | $588,946 | $588,946 |
| 2008 | $421,911 | $185,000 | $0 | $606,911 | $606,911 |
| 2007 | $374,389 | $185,000 | $0 | $559,389 | $559,389 |
Deed and Sales History
| 1 | 10/16/2017 | WD | Warranty Deed | THOMPSON, JAMES T | WALDRON, MATT T | | | $450,000.00 | 31541 | 4432222 |
| 2 | 12/13/2011 | BARGSLD | Bargain And Sale Deed | WHIDBEY ISLAND BANK | THOMPSON, JAMES T | | | $279,900.00 | 6434 | 4306630 |
| 3 | 08/26/2011 | TRUSTEED | Trustee's Deed | BARRETT, JOHN | WHIDBEY ISLAND BANK | | | $0.00 | 5393 | 4300332 |
| 4 | 04/07/2007 | PRD | Personal Representatives Deed | GIESA, DONALD G | BARRETT, JOHN | | | $400,000.00 | 71207 | 4199289 |
| 5 | 08/02/2002 | PRD | Personal Representatives Deed | GIESA, DONALD G | GIESA, DONALD G | | | $0.00 | 23403 | 4029765 |
| 6 | 01/01/1988 | WD | Warranty Deed | GOODRICH, RICHARD L | GIESA, DONALD G | | | $14,500.00 | 80306 | 88001325 |
| 7 | 01/01/1900 | OTHER | Other - Misc. Documents | Unknown | GOODRICH, RICHARD L | | | $0.00 | 0 | 0 |
Payout Agreement
| No payout information available.. |