Property
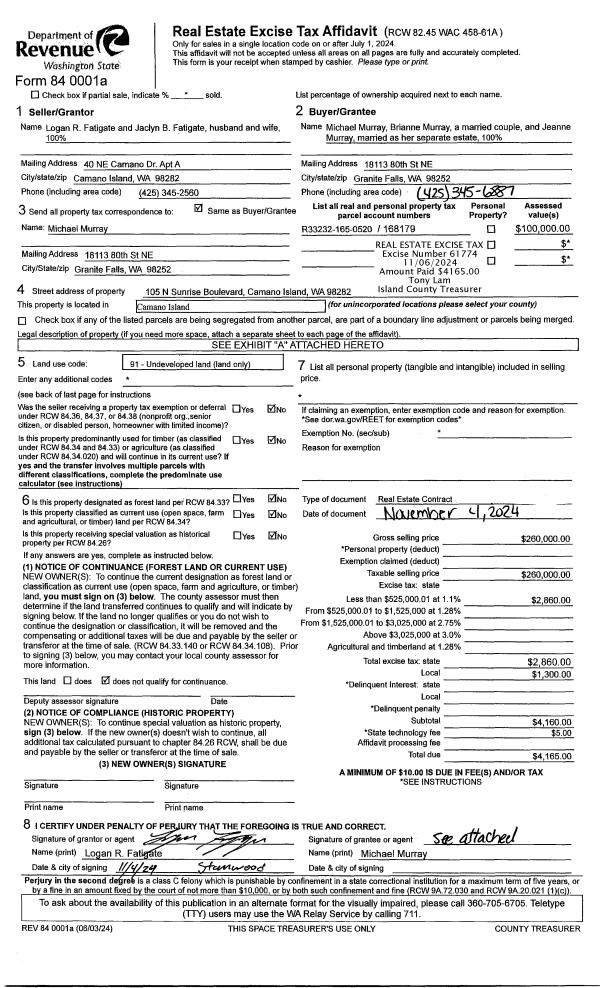
Account |
| Property ID: | 4211 | Abbreviated Legal Description: | IN J CROCKETT DC - N120' OF W325' OF FOLL DESC TR EX E120' EX S30': BG 443.7'S OF NWCR SD DC E660' S528' W660' N528' TPB EX RD |
| Geographic ID: | R13104-331-4200 | Agent Code: | |
| Type: | Real | | |
| Tax Area: | 300 - APPRAISER-Cpvl Schl Dist, in Cpvl | Land Use Code | 11 |
| Open Space: | N | DFL | N |
| Historic Property: | N | Remodel Property: | N |
| Multi-Family Redevelopment: | N | | |
| Township: | 31 | Section: | 04 |
| Range: | R1 |
Location |
| Address: | 607 S MAIN ST COUPEVILLE, WA 98239 | Mapsco: | |
| Neighborhood: | Cycle 2 | Map ID: | 32 |
| Neighborhood CD: | 2 |
Owner |
| Name: | MARTIN, MICHAEL S | Owner ID: | 81719 |
| Mailing Address: | 607 S MAIN ST COUPEVILLE, WA 98239-3514 | % Ownership: | 100.0000000000% |
| | | Exemptions: | |
Taxes and Assessment Details
Values
| (+) Improvement Homesite Value: | + | $0 | |
| (+) Improvement Non-Homesite Value: | + | $182,311 | |
| (+) Land Homesite Value: | + | $0 | |
| (+) Land Non-Homesite Value: | + | $215,455 | |
| (+) Curr Use (HS): | + | $0 | $0 |
| (+) Curr Use (NHS): | + | $0 | $0 |
| | | -------------------------- | |
| (=) Market Value: | = | $397,766 | |
| (–) Productivity Loss: | – | $0 | |
| | | -------------------------- | |
| (=) Subtotal: | = | $397,766 | |
| (+) Senior Appraised Value: | + | $0 | |
| (+) Non-Senior Appraised Value: | + | $397,766 | |
| | | -------------------------- | |
| (=) Total Appraised Value: | = | $397,766 | |
| (–) Senior Exemption Loss: | – | $0 | |
| (–) Exemption Loss: | – | $0 | |
| | | -------------------------- | |
| (=) Taxable Value: | = | $397,766 | |
Taxing Jurisdiction
| Owner: | MARTIN, MICHAEL S | | |
| % Ownership: | 100.0000000000% | | |
| Total Value: | $397,766 | | |
| Tax Area: | 300 - APPRAISER-Cpvl Schl Dist, in Cpvl |
| CF | Conservation Futures | 0.0316035091 | $397,766 | $397,766 | $12.57 | | |
| CEM2 | Cemetery #2 | 0.0095056933 | $397,766 | $397,766 | $3.78 | | |
| COUP | City: Town of Coupeville | 0.8426414490 | $397,766 | $397,766 | $335.17 | | |
| FIRE5 | Fire & Rescue Dist #5 C Whidbey GEN | 1.2008080668 | $397,766 | $397,766 | $477.64 | | |
| FIRE5BOND | Fire & Rescue Dist #5 C Whidbey BOND | 0.1400090713 | $397,766 | $397,766 | $55.69 | | |
| HOBOND | Hospital BOND | 0.1910887512 | $397,766 | $397,766 | $76.01 | | |
| HOGEN | Hospital GEN | 0.3902502903 | $397,766 | $397,766 | $155.23 | | |
| CE | County Current Expense | 0.3708482477 | $397,766 | $397,766 | $147.51 | | |
| ISLANDEMS | Hospital GEN (EMS) | 0.5000000000 | $397,766 | $397,766 | $198.88 | | |
| LIB | Library Sno-Isle GEN | 0.3153421757 | $397,766 | $397,766 | $125.43 | | |
| LIBCAP | Library Sno-Isle BOND (Cap Fac Imp Area) | 0.0543427938 | $397,766 | $397,766 | $21.62 | | |
| POCOUP | Port of Coupeville GEN | 0.1093371703 | $397,766 | $397,766 | $43.49 | | |
| POCOUPIDD | Port of Coupeville IDD | 0.3409740022 | $397,766 | $397,766 | $135.63 | | |
| COUPSDTECH | School 204 CP (TECH) | 0.7545480007 | $397,766 | $397,766 | $300.13 | | |
| SCH204MO | School 204 Enrichment | 0.6716186034 | $397,766 | $397,766 | $267.15 | | |
| ST | State School | 1.3035497053 | $397,766 | $397,766 | $518.51 | | |
| ST2 | State School Part 2 | 0.8169543533 | $397,766 | $397,766 | $324.96 | | |
| | Total Tax Rate: | 8.0434218834 | | | | | |
| | | | | Taxes w/Current Exemptions: | $3,199.40 | | |
| | | | | Taxes w/o Exemptions: | $3,199.40 | | |
Improvement / Building
| Improvement #1: | RESIDENTIAL | State Code: | Y | 1959.2 sqft | Value: | $182,311 |
| Bathrooms: | 2 | Bedrooms: | 2 | | Ceiling: | DRYWALL PAINTED | Exterior Wall/Cover: | WOOD SIDING | | Floor Covering: | CARPET/VINYL 20-80 | Floor Structure: | WOOD W/SUBFLOOR | | Foundation: | WOOD BLOCKS | Interior Finish: | DRYWALL PAINT | | Plumbing Fixture Cnt: | 9 | Roof Slope: | 12" IN 12" | | Roof Structure/Cover: | CJ WOOD SHAKES |   |   |
|
| | Type | Description | Class CD | Sub Class CD | Year Built | Area |
| | BAS | BASE/MAIN FLOOR | 3 | 0 | 1890 | 979.6 |
| | OP2 | OPEN PORCH W/STEPS | 3 | 0 | 1890 | 29.1 |
| | ENP | ENCLOSED PORCH | 3 | 0 | 1890 | 147.0 |
| | UPH | HALF STORY | 3 | 0 | 1890 | 979.6 |
Sketch
Property Image
Land
| 1 | HS | HOMESITE | 0.4000 | 17424.00 | 0.00 | 0.00 | 1.00 | $215,455 | $0 |
Roll Value History
| 2026 | N/A | N/A | N/A | N/A | N/A |
| 2025 | $182,311 | $215,455 | $0 | $397,766 | $397,766 |
| 2024 | $179,011 | $200,000 | $0 | $379,011 | $379,011 |
| 2023 | $182,311 | $200,000 | $0 | $382,311 | $382,311 |
| 2022 | $168,071 | $200,000 | $0 | $368,071 | $368,071 |
| 2021 | $148,748 | $150,000 | $0 | $298,748 | $298,748 |
| 2020 | $145,894 | $130,000 | $0 | $275,894 | $275,894 |
| 2019 | $111,490 | $170,000 | $0 | $281,490 | $281,490 |
| 2018 | $53,948 | $150,000 | $0 | $203,948 | $203,948 |
| 2017 | $54,820 | $130,000 | $0 | $184,820 | $184,820 |
| 2016 | $56,531 | $120,000 | $0 | $176,531 | $176,531 |
| 2015 | $58,245 | $89,250 | $0 | $147,495 | $147,495 |
| 2014 | $59,959 | $89,250 | $0 | $149,209 | $149,209 |
| 2013 | $61,671 | $89,250 | $0 | $150,921 | $150,921 |
| 2012 | $63,384 | $89,250 | $0 | $152,634 | $152,634 |
| 2011 | $65,097 | $105,000 | $0 | $170,097 | $170,097 |
| 2010 | $80,187 | $105,000 | $0 | $185,187 | $185,187 |
| 2009 | $84,288 | $125,000 | $0 | $209,288 | $209,288 |
| 2008 | $86,013 | $134,000 | $0 | $220,013 | $220,013 |
| 2007 | $87,737 | $87,750 | $0 | $175,487 | $175,487 |
Deed and Sales History
| 1 | 12/13/2023 | QCD | Quit Claim Deed | MARTIN, CHELSEA KAWEHILANI | MARTIN, MICHAEL S | | | $0.00 | 58909 | 4568186 |
| 2 | 05/26/1998 | QCD | Quit Claim Deed | MARTIN, JOHN R | MARTIN, MICHAEL S | | | $20,000.00 | 82363 | 98012244 |
| 3 | 08/01/1992 | WD | Warranty Deed | MARTIN, PATRICK C | MARTIN, JOHN R | | | $23,142.00 | 23189 | 92015570 |
| 4 | 01/01/1900 | OTHER | Other - Misc. Documents | Unknown | MARTIN, MICHAEL S | | | $0.00 | 82363 | 98012244 |
| 5 | 01/01/1900 | OTHER | Other - Misc. Documents | MARTIN, MICHAEL S | MARTIN, PATRICK C | | | $0.00 | 0 | 0 |
Payout Agreement
| No payout information available.. |