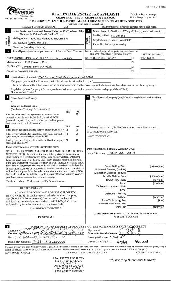
Property
Account |
| Property ID: | 42117 | Abbreviated Legal Description: | 132 TAFT DLC - E74' OF: BG S89*W972.18' & 260'S OF NECR SD DLC S220' S89*W266 .20' TPB S89*W148' N220' N89*E148' S220' TPB |
| Geographic ID: | R13335-221-4240 | Agent Code: | |
| Type: | Real | | |
| Tax Area: | 100 - APPRAISER-OH Schl Dist, in OH | Land Use Code | 11 |
| Open Space: | N | DFL | N |
| Historic Property: | N | Remodel Property: | N |
| Multi-Family Redevelopment: | N | | |
| Township: | 33 | Section: | 35 |
| Range: | R1 |
Location |
| Address: | 1371 NE 6TH AVE OAK HARBOR, WA 98277 | Mapsco: | |
| Neighborhood: | Cycle 1 | Map ID: | 257 |
| Neighborhood CD: | 1 |
Owner |
| Name: | TAYLOR, MATTHEW L | Owner ID: | 296090 |
| Mailing Address: | LESLIE SERENA TAYLOR 1371 NE 6TH AVE OAK HARBOR, WA 98277 | % Ownership: | 100.0000000000% |
| | | Exemptions: | |
Taxes and Assessment Details
Values
| (+) Improvement Homesite Value: | + | $0 | |
| (+) Improvement Non-Homesite Value: | + | $181,536 | |
| (+) Land Homesite Value: | + | $0 | |
| (+) Land Non-Homesite Value: | + | $185,000 | |
| (+) Curr Use (HS): | + | $0 | $0 |
| (+) Curr Use (NHS): | + | $0 | $0 |
| | | -------------------------- | |
| (=) Market Value: | = | $366,536 | |
| (–) Productivity Loss: | – | $0 | |
| | | -------------------------- | |
| (=) Subtotal: | = | $366,536 | |
| (+) Senior Appraised Value: | + | $0 | |
| (+) Non-Senior Appraised Value: | + | $366,536 | |
| | | -------------------------- | |
| (=) Total Appraised Value: | = | $366,536 | |
| (–) Senior Exemption Loss: | – | $0 | |
| (–) Exemption Loss: | – | $0 | |
| | | -------------------------- | |
| (=) Taxable Value: | = | $366,536 | |
Taxing Jurisdiction
| Owner: | TAYLOR, MATTHEW L | | |
| % Ownership: | 100.0000000000% | | |
| Total Value: | $366,536 | | |
| Tax Area: | 100 - APPRAISER-OH Schl Dist, in OH |
| CF | Conservation Futures | 0.0316035091 | $366,536 | $366,536 | $11.58 | | |
| CEM1 | Cemetery #1 | 0.0040320932 | $366,536 | $366,536 | $1.48 | | |
| COH | City of Oak Harbor | 2.3001546061 | $366,536 | $366,536 | $843.09 | | |
| OAKBOND | City of Oak Harbor BOND | 0.1926904192 | $366,536 | $366,536 | $70.63 | | |
| HOBOND | Hospital BOND | 0.1910887512 | $366,536 | $366,536 | $70.04 | | |
| HOGEN | Hospital GEN | 0.3902502903 | $366,536 | $366,536 | $143.04 | | |
| CE | County Current Expense | 0.3708482477 | $366,536 | $366,536 | $135.93 | | |
| ISLANDEMS | Hospital GEN (EMS) | 0.5000000000 | $366,536 | $366,536 | $183.27 | | |
| LIB | Library Sno-Isle GEN | 0.3153421757 | $366,536 | $366,536 | $115.58 | | |
| NWHIDPRMT | P & R N Whidbey GEN | 0.2004466701 | $366,536 | $366,536 | $73.47 | | |
| SCH201MO | School 201 Enrichment | 1.8559231640 | $366,536 | $366,536 | $680.26 | | |
| ST | State School | 1.3035497053 | $366,536 | $366,536 | $477.80 | | |
| ST2 | State School Part 2 | 0.8169543533 | $366,536 | $366,536 | $299.44 | | |
| | Total Tax Rate: | 8.4728839852 | | | | | |
| | | | | Taxes w/Current Exemptions: | $3,105.61 | | |
| | | | | Taxes w/o Exemptions: | $3,105.61 | | |
Improvement / Building
| Improvement #1: | RESIDENTIAL | State Code: | Y | 1098.0 sqft | Value: | $181,536 |
| Bathrooms: | 1 | Bedrooms: | 3 | | Ceiling: | DRYWALL PAINTED | Exterior Wall/Cover: | WOOD SIDING | | Floor Covering: | CARPET/VINYL 60-40 | Floor Structure: | WOOD W/SUBFLOOR | | Foundation: | CONCRETE | Heating: | FHA GAS | | Interior Finish: | DRYWALL PAINT | Plumbing Fixture Cnt: | 6 | | Roof Slope: | 3" IN 12" | Roof Structure/Cover: | CJ ASPHALT |
|
| | Type | Description | Class CD | Sub Class CD | Year Built | Area |
| | BAS | BASE/MAIN FLOOR | 3 | 0 | 1959 | 1098.0 |
| | OP3 | OPEN PORCH W/ROOF | 3 | 0 | 1959 | 235.0 |
| | AGR | ATTACHED GARAGE | 3 | 0 | 1959 | 500.0 |
Sketch
Property Image
Land
| 1 | 15 | SQ (12001-21780) | 0.3800 | 16552.80 | 0.00 | 0.00 | 1.00 | $185,000 | $0 |
Roll Value History
| 2026 | N/A | N/A | N/A | N/A | N/A |
| 2025 | $181,536 | $185,000 | $0 | $366,536 | $366,536 |
| 2024 | $183,981 | $175,000 | $0 | $358,981 | $358,981 |
| 2023 | $170,526 | $180,000 | $0 | $350,526 | $350,526 |
| 2022 | $156,582 | $180,000 | $0 | $336,582 | $336,582 |
| 2021 | $138,040 | $135,000 | $0 | $273,040 | $273,040 |
| 2020 | $134,801 | $100,000 | $0 | $234,801 | $234,801 |
| 2019 | $91,213 | $160,000 | $0 | $251,213 | $251,213 |
| 2018 | $91,532 | $125,000 | $0 | $216,532 | $216,532 |
| 2017 | $68,054 | $110,000 | $0 | $178,054 | $178,054 |
| 2016 | $69,337 | $90,000 | $0 | $159,337 | $159,337 |
| 2015 | $70,621 | $70,000 | $0 | $140,621 | $140,621 |
| 2014 | $71,906 | $55,000 | $0 | $126,906 | $126,906 |
| 2013 | $73,188 | $55,000 | $0 | $128,188 | $128,188 |
| 2012 | $74,472 | $65,000 | $0 | $139,472 | $139,472 |
| 2011 | $70,288 | $65,000 | $0 | $135,288 | $135,288 |
| 2010 | $79,743 | $65,000 | $0 | $144,743 | $144,743 |
| 2009 | $82,065 | $90,470 | $0 | $172,535 | $172,535 |
| 2008 | $83,356 | $109,000 | $0 | $192,356 | $192,356 |
| 2007 | $84,646 | $109,000 | $0 | $193,646 | $193,646 |
Deed and Sales History
| 1 | 09/03/2020 | WD | Warranty Deed | ENCINAS III, JOHNNY C | TAYLOR, MATTHEW L | | | $345,000.00 | 44749 | 4496576 |
| 2 | 05/17/2019 | WD | Warranty Deed | SIRES, BARBARA J / JOSEPH S | ENCINAS III, JOHNNY C | | | $210,000.00 | 38641 | 4463921 |
| 3 | 02/01/1995 | QCD | Quit Claim Deed | GABELEIN, ARTHUR | SIRES, BARBARA J | | | $0.00 | 50626 | 95002991 |
| 4 | 09/01/1978 | OTHER | Other - Misc. Documents | Unknown | GABELEIN, ARTHUR | | | $39,600.00 | 84801 | 340485 |
Payout Agreement
| No payout information available.. |