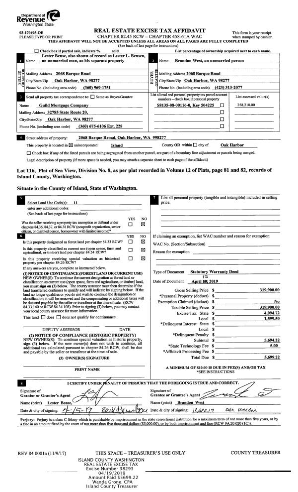
Property
Account |
| Property ID: | 421305 | Abbreviated Legal Description: | UTSALADY W/2 LOT 19 BLK 2 & INT TR B C & D |
| Geographic ID: | S8345-00-02019-0 | Agent Code: | |
| Type: | Real | | |
| Tax Area: | 510 - APPRAISER-Stan/Cam Schl Dist, improved & 1 acre or less | Land Use Code | 99 |
| Open Space: | N | DFL | N |
| Historic Property: | N | Remodel Property: | N |
| Multi-Family Redevelopment: | N | | |
| Township: | | Section: | |
| Range: | |
Location |
| Address: | | Mapsco: | |
| Neighborhood: | North Camano | Map ID: | 962 |
| Neighborhood CD: | 06-C |
Owner |
| Name: | HELLUM, UFFE | Owner ID: | 267046 |
| Mailing Address: | LORRAINE HELLUM 1241 NE 89TH ST SEATTLE, WA 98115 | % Ownership: | 100.0000000000% |
| | | Exemptions: | U500 |
Taxes and Assessment Details
Values
| (+) Improvement Homesite Value: | + | $0 | |
| (+) Improvement Non-Homesite Value: | + | $0 | |
| (+) Land Homesite Value: | + | $0 | |
| (+) Land Non-Homesite Value: | + | $450 | |
| (+) Curr Use (HS): | + | $0 | $0 |
| (+) Curr Use (NHS): | + | $0 | $0 |
| | | -------------------------- | |
| (=) Market Value: | = | $450 | |
| (–) Productivity Loss: | – | $0 | |
| | | -------------------------- | |
| (=) Subtotal: | = | $450 | |
| (+) Senior Appraised Value: | + | $0 | |
| (+) Non-Senior Appraised Value: | + | $450 | |
| | | -------------------------- | |
| (=) Total Appraised Value: | = | $450 | |
| (–) Senior Exemption Loss: | – | $0 | |
| (–) Exemption Loss: | – | $450 | |
| | | -------------------------- | |
| (=) Taxable Value: | = | $0 | |
Taxing Jurisdiction
| Owner: | HELLUM, UFFE | | |
| % Ownership: | 100.0000000000% | | |
| Total Value: | $450 | | |
| Tax Area: | 510 - APPRAISER-Stan/Cam Schl Dist, improved & 1 acre or less |
| CF | Conservation Futures | 0.0316035091 | $450 | $0 | $0.00 | | |
| EMS1 | Fire & Rescue Dist #1 Camano GEN (EMS) | 0.3677864386 | $450 | $0 | $0.00 | | |
| FIRE1 | Fire & Rescue Dist #1 Camano GEN | 1.2502910536 | $450 | $0 | $0.00 | | |
| FIRE1BOND | Fire & Rescue Dist #1 Camano BOND | 0.1570001679 | $450 | $0 | $0.00 | | |
| CE | County Current Expense | 0.3708482477 | $450 | $0 | $0.00 | | |
| CR | County Roads | 0.4584763726 | $450 | $0 | $0.00 | | |
| LCIB | Library Sno-Isle BOND (Camano Island) | 0.0396325772 | $450 | $0 | $0.00 | | |
| LIB | Library Sno-Isle GEN | 0.3153421757 | $450 | $0 | $0.00 | | |
| SCH205_401 | School 205-401 Enrichment | 1.2698420524 | $450 | $0 | $0.00 | | |
| SCH205BOND | School 205-401 BOND | 0.9396497583 | $450 | $0 | $0.00 | | |
| ST | State School | 1.3035497053 | $450 | $0 | $0.00 | | |
| ST2 | State School Part 2 | 0.8169543533 | $450 | $0 | $0.00 | | |
| | Total Tax Rate: | 7.3209764117 | | | | | |
| | | | | Taxes w/Current Exemptions: | $0.00 | | |
| | | | | Taxes w/o Exemptions: | $3.30 | | |
Improvement / Building
Sketch
| No sketches available for this property. |
Property Image
Land
| 1 | 54 | WASTE LAND | 0.0000 | 0.00 | 0.00 | 0.00 | 1.00 | $450 | $0 |
Roll Value History
| 2026 | N/A | N/A | N/A | N/A | N/A |
| 2025 | $0 | $450 | $0 | $450 | $0 |
| 2024 | $0 | $450 | $0 | $450 | $0 |
| 2023 | $0 | $450 | $0 | $450 | $0 |
| 2022 | $0 | $450 | $0 | $450 | $0 |
| 2021 | $0 | $450 | $0 | $450 | $0 |
| 2020 | $0 | $450 | $0 | $450 | $0 |
| 2019 | $0 | $450 | $0 | $450 | $0 |
| 2018 | $0 | $450 | $0 | $450 | $0 |
| 2017 | $0 | $450 | $0 | $450 | $0 |
| 2016 | $0 | $10 | $0 | $10 | $0 |
| 2015 | $0 | $10 | $0 | $10 | $0 |
| 2014 | $0 | $1 | $0 | $1 | $0 |
| 2013 | $0 | $1 | $0 | $1 | $0 |
| 2012 | $0 | $1 | $0 | $1 | $0 |
| 2011 | $0 | $1 | $0 | $1 | $0 |
| 2010 | $0 | $1 | $0 | $1 | $0 |
| 2009 | $0 | $1 | $0 | $1 | $0 |
| 2008 | $0 | $1 | $0 | $1 | $1 |
Deed and Sales History
| 1 | 06/24/2019 | WD | Warranty Deed | NORD JR, RICHARD G | HELLUM, UFFE | | | $331,000.00 | 39144 | 4466120 |
|   | |
| 2 | 06/24/2019 | QCD | Quit Claim Deed | RGN CONSTRUCTION LLC | NORD JR, RICHARD G | | | $0.00 | 39143 | 4466119 |
| 3 | 03/01/2007 | QCD | Quit Claim Deed | NORD JR, RICHARD G | RGN CONSTRUCTION LLC, | | | $0.00 | 70765 | 4195829 |
| 4 | 10/05/2006 | WD | Warranty Deed | ANDERSON, NORMAN A | NORD JR, RICHARD G | | | $285.00 | 64398 | 4183988 |
| 5 | 06/04/1999 | WD | Warranty Deed | MARITZ, DAVID L | ANDERSON, NORMAN A | | | $0.00 | 92221 | 99013813 |
| 6 | 07/01/1996 | WD | Warranty Deed | MARITZ, DAVID L | MARITZ, DAVID L | | | $0.00 | 62472 | 96012305 |
| 7 | 07/01/1996 | QCD | Quit Claim Deed | MUELLER, CHARLOTTE L | MARITZ, DAVID L | | | $0.00 | 62473 | 96012304 |
| 8 | 09/01/1987 | WD | Warranty Deed | COSTELLO, WALTER | MUELLER, CHARLOTTE L | | | $4,750.00 | 73106 | 87013729 |
| 9 | 01/01/1900 | OTHER | Other - Misc. Documents | Unknown | COSTELLO, WALTER | | | $0.00 | 0 | 0 |
Payout Agreement
| No payout information available.. |