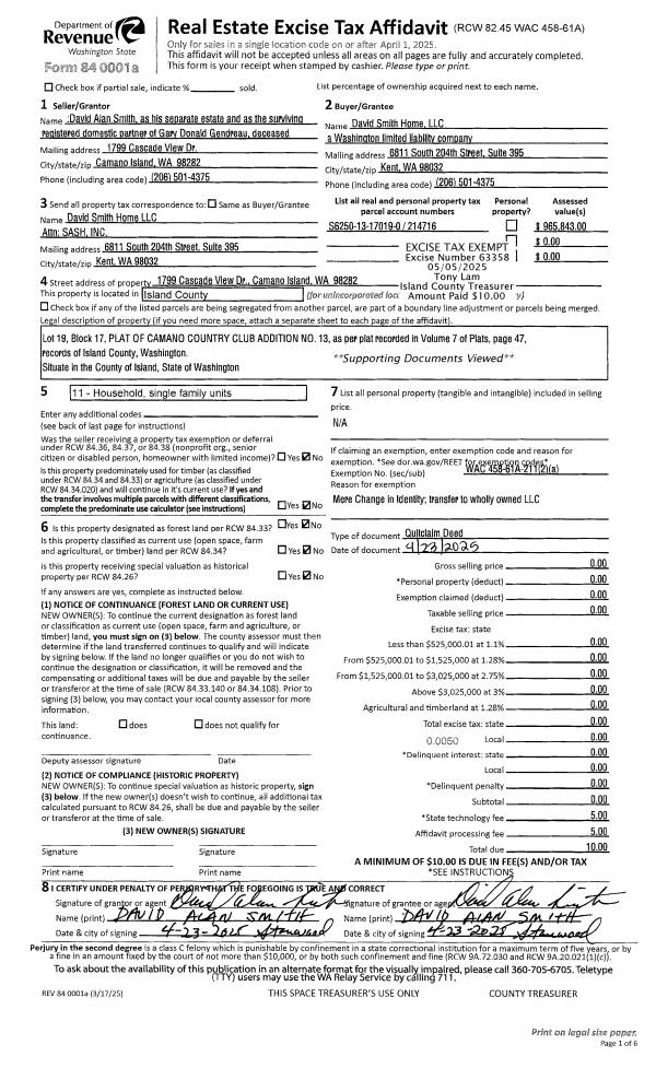
Property
Account |
| Property ID: | 421412 | Abbreviated Legal Description: | UTSALADY LOTS 6 & 7 BLK 3 & INT TR B C & D TGW PT ADJ VAC UTSALADY RD AF#94021250 |
| Geographic ID: | S8345-00-03006-0 | Agent Code: | |
| Type: | Real | | |
| Tax Area: | 510 - APPRAISER-Stan/Cam Schl Dist, improved & 1 acre or less | Land Use Code | 11 |
| Open Space: | N | DFL | N |
| Historic Property: | N | Remodel Property: | N |
| Multi-Family Redevelopment: | N | | |
| Township: | | Section: | |
| Range: | |
Location |
| Address: | 64 UTSALADY RD CAMANO ISLAND, WA 98282 | Mapsco: | |
| Neighborhood: | North Camano | Map ID: | 962 |
| Neighborhood CD: | 06-C |
Owner |
| Name: | MERKLINGHAUS, ERICK W | Owner ID: | 313902 |
| Mailing Address: | 17044 13TH AVE NE SHORELINE, WA 98155 | % Ownership: | 100.0000000000% |
| | | Exemptions: | |
Taxes and Assessment Details
Values
| (+) Improvement Homesite Value: | + | $0 | |
| (+) Improvement Non-Homesite Value: | + | $78,754 | |
| (+) Land Homesite Value: | + | $0 | |
| (+) Land Non-Homesite Value: | + | $370,000 | |
| (+) Curr Use (HS): | + | $0 | $0 |
| (+) Curr Use (NHS): | + | $0 | $0 |
| | | -------------------------- | |
| (=) Market Value: | = | $448,754 | |
| (–) Productivity Loss: | – | $0 | |
| | | -------------------------- | |
| (=) Subtotal: | = | $448,754 | |
| (+) Senior Appraised Value: | + | $0 | |
| (+) Non-Senior Appraised Value: | + | $448,754 | |
| | | -------------------------- | |
| (=) Total Appraised Value: | = | $448,754 | |
| (–) Senior Exemption Loss: | – | $0 | |
| (–) Exemption Loss: | – | $0 | |
| | | -------------------------- | |
| (=) Taxable Value: | = | $448,754 | |
Taxing Jurisdiction
| Owner: | MERKLINGHAUS, ERICK W | | |
| % Ownership: | 100.0000000000% | | |
| Total Value: | $448,754 | | |
| Tax Area: | 510 - APPRAISER-Stan/Cam Schl Dist, improved & 1 acre or less |
| CF | Conservation Futures | 0.0316035091 | $448,754 | $448,754 | $14.18 | | |
| EMS1 | Fire & Rescue Dist #1 Camano GEN (EMS) | 0.3677864386 | $448,754 | $448,754 | $165.05 | | |
| FIRE1 | Fire & Rescue Dist #1 Camano GEN | 1.2502910536 | $448,754 | $448,754 | $561.07 | | |
| FIRE1BOND | Fire & Rescue Dist #1 Camano BOND | 0.1570001679 | $448,754 | $448,754 | $70.45 | | |
| CE | County Current Expense | 0.3708482477 | $448,754 | $448,754 | $166.42 | | |
| CR | County Roads | 0.4584763726 | $448,754 | $448,754 | $205.74 | | |
| LCIB | Library Sno-Isle BOND (Camano Island) | 0.0396325772 | $448,754 | $448,754 | $17.79 | | |
| LIB | Library Sno-Isle GEN | 0.3153421757 | $448,754 | $448,754 | $141.51 | | |
| SCH205_401 | School 205-401 Enrichment | 1.2698420524 | $448,754 | $448,754 | $569.85 | | |
| SCH205BOND | School 205-401 BOND | 0.9396497583 | $448,754 | $448,754 | $421.67 | | |
| ST | State School | 1.3035497053 | $448,754 | $448,754 | $584.97 | | |
| ST2 | State School Part 2 | 0.8169543533 | $448,754 | $448,754 | $366.61 | | |
| | Total Tax Rate: | 7.3209764117 | | | | | |
| | | | | Taxes w/Current Exemptions: | $3,285.31 | | |
| | | | | Taxes w/o Exemptions: | $3,285.31 | | |
Improvement / Building
| Improvement #1: | RESIDENTIAL | State Code: | Y | 728.0 sqft | Value: | $78,754 |
| Bathrooms: | 1 | Bedrooms: | 2 | | Ceiling: | DRYWALL PAINTED | Exterior Wall/Cover: | WOOD SIDING | | Floor Covering: | CARPET/VINYL 80-20 | Floor Structure: | WOOD W/SUBFLOOR | | Foundation: | PEIRS | Heating: | BASEBOARD ELECTRIC | | Interior Finish: | DRYWALL PAINT | Plumbing Fixture Cnt: | 6 | | Roof Slope: | 5" IN 12" | Roof Structure/Cover: | CJ ASPHALT |
|
| | Type | Description | Class CD | Sub Class CD | Year Built | Area |
| | BAS | BASE/MAIN FLOOR | 2 | 0 | 1930 | 728.0 |
| | OP3 | OPEN PORCH W/ROOF | 2 | 0 | 1930 | 160.0 |
| | OWP | OPEN WOOD PORCH W/STEPS | 2 | 0 | 1930 | 40.0 |
| | UTY | STORAGE/UTILITY | 2 | 0 | 1930 | 192.0 |
Sketch
Property Image
Land
| 1 | 12 | SQ (00000-06000) | 0.0000 | 0.00 | 0.00 | 0.00 | 1.00 | $370,000 | $0 |
Roll Value History
| 2026 | N/A | N/A | N/A | N/A | N/A |
| 2025 | $78,754 | $370,000 | $0 | $448,754 | $448,754 |
| 2024 | $82,156 | $370,000 | $0 | $452,156 | $452,156 |
| 2023 | $83,671 | $400,000 | $0 | $483,671 | $483,671 |
| 2022 | $59,310 | $340,000 | $0 | $399,310 | $399,310 |
| 2021 | $52,763 | $250,000 | $0 | $302,763 | $302,763 |
| 2020 | $51,824 | $220,000 | $0 | $271,824 | $271,824 |
| 2019 | $37,301 | $250,000 | $0 | $287,301 | $287,301 |
| 2018 | $37,504 | $200,000 | $0 | $237,504 | $237,504 |
| 2017 | $37,907 | $165,000 | $0 | $202,907 | $202,907 |
| 2016 | $24,428 | $150,000 | $0 | $174,428 | $174,428 |
| 2015 | $25,168 | $150,000 | $0 | $175,168 | $175,168 |
| 2014 | $25,908 | $100,000 | $0 | $125,908 | $125,908 |
| 2013 | $26,649 | $100,000 | $0 | $126,649 | $126,649 |
| 2012 | $27,388 | $108,000 | $0 | $135,388 | $135,388 |
| 2011 | $28,129 | $135,000 | $0 | $163,129 | $163,129 |
| 2010 | $29,060 | $135,000 | $0 | $164,060 | $164,060 |
| 2009 | $30,726 | $150,000 | $0 | $180,726 | $180,726 |
| 2008 | $31,494 | $150,000 | $0 | $181,494 | $181,494 |
| 2007 | $32,262 | $150,000 | $0 | $182,262 | $182,262 |
Deed and Sales History
| 1 | 03/12/2021 | TOD | Transfer On Death Deed | SAMPSON, WILMA | MERKLINGHAUS, ERICK W | | | $0.00 | 61278 | 4513809 |
| 2 | 12/08/2005 | 5 | DNU - Marriage License/Name Change | SAMPSON-MERKLINGHAUS, FAMILY | SAMPSON, WILMA | | | $0.00 | 60778 | 4162902 |
| 3 | 05/01/1996 | QCD | Quit Claim Deed | MERKLINGHAUS, WILMA T | SAMPSON-MERKLINGHAUS, FAMILY | | | $0.00 | 61791 | 96008929 |
| 4 | 07/01/1984 | OTHER | Other - Misc. Documents | MERKLINGHAUS, FREDERICK E | MERKLINGHAUS, WILMA T | | | $0.00 | 60709 | 0 |
| 5 | 01/01/1900 | OTHER | Other - Misc. Documents | Unknown | MERKLINGHAUS, FREDERICK E | | | $0.00 | 0 | 0 |
Payout Agreement
| No payout information available.. |