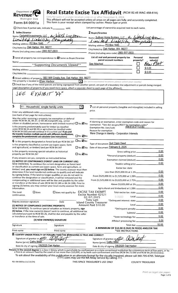
Property
Account |
| Property ID: | 421546 | Abbreviated Legal Description: | UTSALADY LOTS 33, 34 & 35 BLK 3 & INT TR B, C & D |
| Geographic ID: | S8345-00-03034-0 | Agent Code: | |
| Type: | Real | | |
| Tax Area: | 510 - APPRAISER-Stan/Cam Schl Dist, improved & 1 acre or less | Land Use Code | 11 |
| Open Space: | N | DFL | N |
| Historic Property: | N | Remodel Property: | N |
| Multi-Family Redevelopment: | N | | |
| Township: | | Section: | |
| Range: | |
Location |
| Address: | 1114 ESSEX ST CAMANO ISLAND, WA 98282 | Mapsco: | |
| Neighborhood: | North Camano | Map ID: | 962 |
| Neighborhood CD: | 06-C |
Owner |
| Name: | NESS, CURTIS E | Owner ID: | 310222 |
| Mailing Address: | TAMARA D NESS 354 SHORE DR CAMANO ISLAND, WA 98282 | % Ownership: | 100.0000000000% |
| | | Exemptions: | |
Taxes and Assessment Details
Values
| (+) Improvement Homesite Value: | + | $0 | |
| (+) Improvement Non-Homesite Value: | + | $87,039 | |
| (+) Land Homesite Value: | + | $0 | |
| (+) Land Non-Homesite Value: | + | $240,000 | |
| (+) Curr Use (HS): | + | $0 | $0 |
| (+) Curr Use (NHS): | + | $0 | $0 |
| | | -------------------------- | |
| (=) Market Value: | = | $327,039 | |
| (–) Productivity Loss: | – | $0 | |
| | | -------------------------- | |
| (=) Subtotal: | = | $327,039 | |
| (+) Senior Appraised Value: | + | $0 | |
| (+) Non-Senior Appraised Value: | + | $327,039 | |
| | | -------------------------- | |
| (=) Total Appraised Value: | = | $327,039 | |
| (–) Senior Exemption Loss: | – | $0 | |
| (–) Exemption Loss: | – | $0 | |
| | | -------------------------- | |
| (=) Taxable Value: | = | $327,039 | |
Taxing Jurisdiction
| Owner: | NESS, CURTIS E | | |
| % Ownership: | 100.0000000000% | | |
| Total Value: | $327,039 | | |
| Tax Area: | 510 - APPRAISER-Stan/Cam Schl Dist, improved & 1 acre or less |
| CF | Conservation Futures | 0.0316035091 | $327,039 | $327,039 | $10.34 | | |
| EMS1 | Fire & Rescue Dist #1 Camano GEN (EMS) | 0.3677864386 | $327,039 | $327,039 | $120.28 | | |
| FIRE1 | Fire & Rescue Dist #1 Camano GEN | 1.2502910536 | $327,039 | $327,039 | $408.89 | | |
| FIRE1BOND | Fire & Rescue Dist #1 Camano BOND | 0.1570001679 | $327,039 | $327,039 | $51.35 | | |
| CE | County Current Expense | 0.3708482477 | $327,039 | $327,039 | $121.28 | | |
| CR | County Roads | 0.4584763726 | $327,039 | $327,039 | $149.94 | | |
| LCIB | Library Sno-Isle BOND (Camano Island) | 0.0396325772 | $327,039 | $327,039 | $12.96 | | |
| LIB | Library Sno-Isle GEN | 0.3153421757 | $327,039 | $327,039 | $103.13 | | |
| SCH205_401 | School 205-401 Enrichment | 1.2698420524 | $327,039 | $327,039 | $415.29 | | |
| SCH205BOND | School 205-401 BOND | 0.9396497583 | $327,039 | $327,039 | $307.30 | | |
| ST | State School | 1.3035497053 | $327,039 | $327,039 | $426.31 | | |
| ST2 | State School Part 2 | 0.8169543533 | $327,039 | $327,039 | $267.18 | | |
| | Total Tax Rate: | 7.3209764117 | | | | | |
| | | | | Taxes w/Current Exemptions: | $2,394.25 | | |
| | | | | Taxes w/o Exemptions: | $2,394.25 | | |
Improvement / Building
| Improvement #1: | RESIDENTIAL | State Code: | Y | 0.0 sqft | Value: | $87,039 |
Sketch
Property Image
Land
| 1 | 14 | SQ (08001-12000) | 0.0000 | 0.00 | 0.00 | 0.00 | 1.00 | $240,000 | $0 |
Roll Value History
| 2026 | N/A | N/A | N/A | N/A | N/A |
| 2025 | $87,039 | $240,000 | $0 | $327,039 | $327,039 |
| 2024 | $81,362 | $230,000 | $0 | $311,362 | $311,362 |
| 2023 | $47,460 | $230,000 | $0 | $277,460 | $277,460 |
| 2022 | $47,460 | $210,000 | $0 | $257,460 | $257,460 |
| 2021 | $47,460 | $160,000 | $0 | $207,460 | $207,460 |
| 2020 | $47,460 | $130,000 | $0 | $177,460 | $177,460 |
| 2019 | $47,460 | $170,000 | $0 | $217,460 | $217,460 |
| 2018 | $47,460 | $115,000 | $0 | $162,460 | $162,460 |
| 2017 | $32,925 | $115,000 | $0 | $147,925 | $147,925 |
| 2016 | $30,000 | $115,000 | $0 | $145,000 | $145,000 |
| 2015 | $30,000 | $100,000 | $0 | $130,000 | $130,000 |
| 2014 | $30,000 | $85,000 | $0 | $115,000 | $115,000 |
| 2013 | $30,000 | $85,000 | $0 | $115,000 | $115,000 |
| 2012 | $30,000 | $80,000 | $0 | $110,000 | $110,000 |
| 2011 | $30,000 | $100,000 | $0 | $130,000 | $130,000 |
| 2010 | $48,454 | $100,000 | $0 | $148,454 | $148,454 |
| 2009 | $49,018 | $115,000 | $0 | $164,018 | $164,018 |
| 2008 | $49,582 | $115,000 | $0 | $164,582 | $164,582 |
| 2007 | $50,144 | $115,000 | $0 | $165,144 | $165,144 |
Deed and Sales History
| 1 | 09/28/2023 | WD | Warranty Deed | PETERSON, SCOTT G | NESS, CURTIS E | | | $420,000.00 | 58125 | 4565245 |
| 2 | 04/17/2018 | WD | Warranty Deed | SCHUESSLER, MICHAEL SCOTT | PETERSON, SCOTT G | | | $250,000.00 | 33731 | 4442848 |
| 3 | 07/17/2015 | WD | Warranty Deed | CAMERON, MITZI CHEIRE | SCHUESSLER, MICHAEL SCOTT | | | $200,000.00 | 20541 | 4382497 |
| 4 | 07/09/2006 | WD | Warranty Deed | DEVEAU, RICH | CAMERON, MITZI CHEIRE | | | $150,000.00 | 63041 | 4175795 |
| 5 | 01/11/2006 | BLA | DNU - Boundary Line Adjustment | DEVEAU, RICH | DEVEAU, RICH | | | $0.00 | 70789 | 4051004 |
| 6 | 12/16/2002 | WD | Warranty Deed | HAGSTROM, RICHARD E | DEVEAU, RICH | | | $20,500.00 | 25136 | 4041545 |
| 7 | 12/10/2002 | QCD | Quit Claim Deed | HAGSTROM, RICHARD E | HAGSTROM, RICHARD E | | | $0.00 | 25098 | 4041212 |
| 8 | 01/01/1988 | QCD | Quit Claim Deed | HAGSTROM, RICHARD E | HAGSTROM, RICHARD E | | | $0.00 | 80548 | 88002315 |
| 9 | 01/01/1900 | OTHER | Other - Misc. Documents | Unknown | HAGSTROM, RICHARD E | | | $0.00 | 0 | 0 |
Payout Agreement
| No payout information available.. |