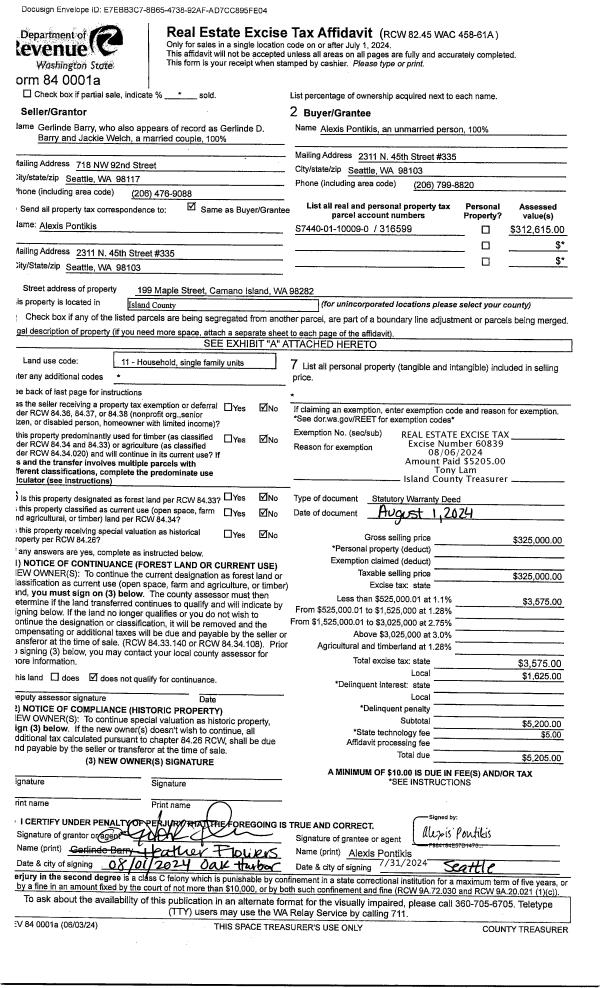
Property
Account |
| Property ID: | 421582 | Abbreviated Legal Description: | UTSALADY LOTS 8 & 9 BLK 4 TGW INT TR B, C & D TGW N/2 ADJ VAC ALLEY AF#95003464 TGW PT ADJ VAC UTSALADY RD AF#94021250 COMB 6/96 |
| Geographic ID: | S8345-00-04008-0 | Agent Code: | |
| Type: | Real | | |
| Tax Area: | 510 - APPRAISER-Stan/Cam Schl Dist, improved & 1 acre or less | Land Use Code | 11 |
| Open Space: | N | DFL | N |
| Historic Property: | N | Remodel Property: | N |
| Multi-Family Redevelopment: | N | | |
| Township: | | Section: | |
| Range: | |
Location |
| Address: | 100 UTSALADY RD CAMANO ISLAND, WA 98282 | Mapsco: | |
| Neighborhood: | North Camano | Map ID: | 962 |
| Neighborhood CD: | 06-C |
Owner |
| Name: | HARRISON, PAMELA E | Owner ID: | 310659 |
| Mailing Address: | DENNIS J NICK 14415 53RD AVE SE EVERETT, WA 98208 | % Ownership: | 100.0000000000% |
| | | Exemptions: | |
Taxes and Assessment Details
Values
| (+) Improvement Homesite Value: | + | $0 | |
| (+) Improvement Non-Homesite Value: | + | $423,630 | |
| (+) Land Homesite Value: | + | $0 | |
| (+) Land Non-Homesite Value: | + | $340,000 | |
| (+) Curr Use (HS): | + | $0 | $0 |
| (+) Curr Use (NHS): | + | $0 | $0 |
| | | -------------------------- | |
| (=) Market Value: | = | $763,630 | |
| (–) Productivity Loss: | – | $0 | |
| | | -------------------------- | |
| (=) Subtotal: | = | $763,630 | |
| (+) Senior Appraised Value: | + | $0 | |
| (+) Non-Senior Appraised Value: | + | $763,630 | |
| | | -------------------------- | |
| (=) Total Appraised Value: | = | $763,630 | |
| (–) Senior Exemption Loss: | – | $0 | |
| (–) Exemption Loss: | – | $0 | |
| | | -------------------------- | |
| (=) Taxable Value: | = | $763,630 | |
Taxing Jurisdiction
| Owner: | HARRISON, PAMELA E | | |
| % Ownership: | 100.0000000000% | | |
| Total Value: | $763,630 | | |
| Tax Area: | 510 - APPRAISER-Stan/Cam Schl Dist, improved & 1 acre or less |
| CF | Conservation Futures | 0.0316035091 | $763,630 | $763,630 | $24.13 | | |
| EMS1 | Fire & Rescue Dist #1 Camano GEN (EMS) | 0.3677864386 | $763,630 | $763,630 | $280.85 | | |
| FIRE1 | Fire & Rescue Dist #1 Camano GEN | 1.2502910536 | $763,630 | $763,630 | $954.76 | | |
| FIRE1BOND | Fire & Rescue Dist #1 Camano BOND | 0.1570001679 | $763,630 | $763,630 | $119.89 | | |
| CE | County Current Expense | 0.3708482477 | $763,630 | $763,630 | $283.19 | | |
| CR | County Roads | 0.4584763726 | $763,630 | $763,630 | $350.11 | | |
| LCIB | Library Sno-Isle BOND (Camano Island) | 0.0396325772 | $763,630 | $763,630 | $30.26 | | |
| LIB | Library Sno-Isle GEN | 0.3153421757 | $763,630 | $763,630 | $240.80 | | |
| SCH205_401 | School 205-401 Enrichment | 1.2698420524 | $763,630 | $763,630 | $969.69 | | |
| SCH205BOND | School 205-401 BOND | 0.9396497583 | $763,630 | $763,630 | $717.54 | | |
| ST | State School | 1.3035497053 | $763,630 | $763,630 | $995.43 | | |
| ST2 | State School Part 2 | 0.8169543533 | $763,630 | $763,630 | $623.85 | | |
| | Total Tax Rate: | 7.3209764117 | | | | | |
| | | | | Taxes w/Current Exemptions: | $5,590.50 | | |
| | | | | Taxes w/o Exemptions: | $5,590.50 | | |
Improvement / Building
| Improvement #1: | RESIDENTIAL | State Code: | Y | 2120.0 sqft | Value: | $423,630 |
| Bathrooms: | 2 | Bedrooms: | 2 | | Ceiling: | DRYWALL PAINTED | Exterior Wall/Cover: | WOOD SIDING | | Floor Covering: | HARDWOOD/CARP 60-40 | Floor Structure: | WOOD W/SUBFLOOR | | Foundation: | CONCRETE | Heating: | FHA GAS | | Interior Finish: | DRYWALL PAINT | Plumbing Fixture Cnt: | 12 | | Roof Slope: | 6" IN 12" | Roof Structure/Cover: | CJ ALUMINIUM HEAVY |
|
| | Type | Description | Class CD | Sub Class CD | Year Built | Area |
| | BAS | BASE/MAIN FLOOR | 4 | 0 | 1997 | 1060.0 |
| | UB8 | BASEMENT UNFINISHED 8" | 4 | 0 | 1997 | 520.0 |
| | OWP | OPEN WOOD PORCH W/STEPS | 4 | 0 | 1997 | 240.0 |
| | OWP | OPEN WOOD PORCH W/STEPS | 4 | 0 | 1997 | 234.0 |
| | OWP | OPEN WOOD PORCH W/STEPS | 4 | 0 | 1997 | 156.0 |
| | OWC | OPEN WOOD PORCH W/STEPS/ROOF/C | 4 | 0 | 1997 | 180.0 |
| | DWN | DOWNSTAIRS LIVING AREA | 4 | 0 | 1997 | 1060.0 |
Sketch
Property Image
Land
| 1 | 12 | SQ (00000-06000) | 0.0000 | 0.00 | 0.00 | 0.00 | 1.00 | $340,000 | $0 |
Roll Value History
| 2026 | N/A | N/A | N/A | N/A | N/A |
| 2025 | $423,630 | $340,000 | $0 | $763,630 | $763,630 |
| 2024 | $428,718 | $330,000 | $0 | $758,718 | $758,718 |
| 2023 | $433,806 | $360,000 | $0 | $793,806 | $793,806 |
| 2022 | $388,201 | $260,000 | $0 | $648,201 | $648,201 |
| 2021 | $341,567 | $220,000 | $0 | $561,567 | $561,567 |
| 2020 | $332,896 | $190,000 | $0 | $522,896 | $522,896 |
| 2019 | $247,544 | $230,000 | $0 | $477,544 | $477,544 |
| 2018 | $248,254 | $200,000 | $0 | $448,254 | $448,254 |
| 2017 | $249,672 | $165,000 | $0 | $414,672 | $414,672 |
| 2016 | $246,836 | $150,000 | $0 | $396,836 | $396,836 |
| 2015 | $249,672 | $150,000 | $0 | $399,672 | $399,672 |
| 2014 | $252,509 | $100,000 | $0 | $352,509 | $352,509 |
| 2013 | $255,347 | $100,000 | $0 | $355,347 | $355,347 |
| 2012 | $258,185 | $108,000 | $0 | $366,185 | $366,185 |
| 2011 | $261,020 | $135,000 | $0 | $396,020 | $396,020 |
| 2010 | $277,331 | $135,000 | $0 | $412,331 | $412,331 |
| 2009 | $289,130 | $150,000 | $0 | $439,130 | $439,130 |
| 2008 | $292,449 | $150,000 | $0 | $442,449 | $442,449 |
| 2007 | $295,759 | $150,000 | $0 | $445,759 | $445,759 |
Deed and Sales History
| 1 | 09/28/2023 | PRD | Personal Representatives Deed | ESTATE OF JOHN NICK | HARRISON, PAMELA E | | | $0.00 | 58495 | 4566695 |
| 2 | 09/28/2023 | PRD | Personal Representatives Deed | NICK, JOHN P & CAROL O | ESTATE OF JOHN NICK | | | $0.00 | 58142 | 4565321 |
| 3 | 06/01/1996 | OTHER | Other - Misc. Documents | NICK, JOHN P | NICK, JOHN P | | | $0.00 | 67040 | 96011109 |
| 4 | 10/01/1992 | QCD | Quit Claim Deed | JOHNSON, DORIS M | NICK, JOHN P | | | $0.00 | 23977 | 92019321 |
| 5 | 10/01/1988 | QCD | Quit Claim Deed | JOHNSON, J E | JOHNSON, DORIS M | | | $0.00 | 83334 | 88012433 |
| 6 | 01/01/1900 | OTHER | Other - Misc. Documents | Unknown | JOHNSON, J E | | | $0.00 | 0 | 0 |
Payout Agreement
| No payout information available.. |