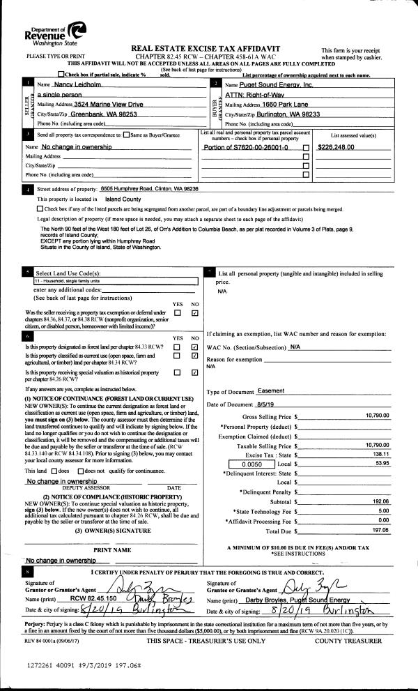
Property
Account |
| Property ID: | 421671 | Abbreviated Legal Description: | UTSALADY LOTS 25 & 26 BLK 4 & INT TR B, C & D TGW S/2 ADJ VAC ALLEY AF#95003464 |
| Geographic ID: | S8345-00-04025-0 | Agent Code: | |
| Type: | Real | | |
| Tax Area: | 510 - APPRAISER-Stan/Cam Schl Dist, improved & 1 acre or less | Land Use Code | 99 |
| Open Space: | N | DFL | N |
| Historic Property: | N | Remodel Property: | N |
| Multi-Family Redevelopment: | N | | |
| Township: | | Section: | |
| Range: | |
Location |
| Address: | E NORTH CAMANO DR CAMANO ISLAND, WA 98282 | Mapsco: | |
| Neighborhood: | North Camano | Map ID: | 962 |
| Neighborhood CD: | 06-C |
Owner |
| Name: | SCHOONOVER, KEITH J | Owner ID: | 290551 |
| Mailing Address: | JEAN M KOHLER 24 FARM RD LOS ALTOS, CA 94024 | % Ownership: | 100.0000000000% |
| | | Exemptions: | |
Taxes and Assessment Details
Values
| (+) Improvement Homesite Value: | + | $0 | |
| (+) Improvement Non-Homesite Value: | + | $0 | |
| (+) Land Homesite Value: | + | $0 | |
| (+) Land Non-Homesite Value: | + | $200,000 | |
| (+) Curr Use (HS): | + | $0 | $0 |
| (+) Curr Use (NHS): | + | $0 | $0 |
| | | -------------------------- | |
| (=) Market Value: | = | $200,000 | |
| (–) Productivity Loss: | – | $0 | |
| | | -------------------------- | |
| (=) Subtotal: | = | $200,000 | |
| (+) Senior Appraised Value: | + | $0 | |
| (+) Non-Senior Appraised Value: | + | $200,000 | |
| | | -------------------------- | |
| (=) Total Appraised Value: | = | $200,000 | |
| (–) Senior Exemption Loss: | – | $0 | |
| (–) Exemption Loss: | – | $0 | |
| | | -------------------------- | |
| (=) Taxable Value: | = | $200,000 | |
Taxing Jurisdiction
| Owner: | SCHOONOVER, KEITH J | | |
| % Ownership: | 100.0000000000% | | |
| Total Value: | $200,000 | | |
| Tax Area: | 510 - APPRAISER-Stan/Cam Schl Dist, improved & 1 acre or less |
| CF | Conservation Futures | 0.0316035091 | $200,000 | $200,000 | $6.32 | | |
| EMS1 | Fire & Rescue Dist #1 Camano GEN (EMS) | 0.3677864386 | $200,000 | $200,000 | $73.56 | | |
| FIRE1 | Fire & Rescue Dist #1 Camano GEN | 1.2502910536 | $200,000 | $200,000 | $250.06 | | |
| FIRE1BOND | Fire & Rescue Dist #1 Camano BOND | 0.1570001679 | $200,000 | $200,000 | $31.40 | | |
| CE | County Current Expense | 0.3708482477 | $200,000 | $200,000 | $74.17 | | |
| CR | County Roads | 0.4584763726 | $200,000 | $200,000 | $91.70 | | |
| LCIB | Library Sno-Isle BOND (Camano Island) | 0.0396325772 | $200,000 | $200,000 | $7.93 | | |
| LIB | Library Sno-Isle GEN | 0.3153421757 | $200,000 | $200,000 | $63.07 | | |
| SCH205_401 | School 205-401 Enrichment | 1.2698420524 | $200,000 | $200,000 | $253.97 | | |
| SCH205BOND | School 205-401 BOND | 0.9396497583 | $200,000 | $200,000 | $187.93 | | |
| ST | State School | 1.3035497053 | $200,000 | $200,000 | $260.71 | | |
| ST2 | State School Part 2 | 0.8169543533 | $200,000 | $200,000 | $163.39 | | |
| | Total Tax Rate: | 7.3209764117 | | | | | |
| | | | | Taxes w/Current Exemptions: | $1,464.21 | | |
| | | | | Taxes w/o Exemptions: | $1,464.21 | | |
Improvement / Building
Sketch
| No sketches available for this property. |
Property Image
Land
| 1 | 12 | SQ (00000-06000) | 0.0000 | 0.00 | 0.00 | 0.00 | 1.00 | $200,000 | $0 |
Roll Value History
| 2026 | N/A | N/A | N/A | N/A | N/A |
| 2025 | $0 | $200,000 | $0 | $200,000 | $200,000 |
| 2024 | $0 | $200,000 | $0 | $200,000 | $200,000 |
| 2023 | $0 | $200,000 | $0 | $200,000 | $200,000 |
| 2022 | $0 | $150,000 | $0 | $150,000 | $150,000 |
| 2021 | $0 | $120,000 | $0 | $120,000 | $120,000 |
| 2020 | $0 | $120,000 | $0 | $120,000 | $120,000 |
| 2019 | $0 | $110,000 | $0 | $110,000 | $110,000 |
| 2018 | $0 | $100,000 | $0 | $100,000 | $100,000 |
| 2017 | $0 | $100,000 | $0 | $100,000 | $100,000 |
| 2016 | $0 | $100,000 | $0 | $100,000 | $100,000 |
| 2015 | $0 | $100,000 | $0 | $100,000 | $100,000 |
| 2014 | $0 | $85,000 | $0 | $85,000 | $85,000 |
| 2013 | $0 | $85,000 | $0 | $85,000 | $85,000 |
| 2012 | $0 | $80,000 | $0 | $80,000 | $80,000 |
| 2011 | $0 | $100,000 | $0 | $100,000 | $100,000 |
| 2010 | $0 | $100,000 | $0 | $100,000 | $100,000 |
| 2009 | $0 | $115,000 | $0 | $115,000 | $115,000 |
| 2008 | $0 | $115,000 | $0 | $115,000 | $115,000 |
| 2007 | $0 | $115,000 | $0 | $115,000 | $115,000 |
Deed and Sales History
| 1 | 06/21/2019 | WD | Warranty Deed | UTSALADY BAY ESTATES LLC | SCHOONOVER, KEITH J | | | $480,000.00 | 39156 | 4466178 |
|   | |
| 2 | 07/24/2009 | QCD | Quit Claim Deed | VAN STEYN, PAMELA | UTSALADY BAY ESTATES LLC, | | | $0.00 | 91857 | 4258265 |
| 3 | 07/24/2009 | PRD | Personal Representatives Deed | WOHLFEIL, JUNE C | VAN STEYN, PAMELA | | | $0.00 | 91859 | 4258264 |
| 4 | 06/01/1999 | OTHER | Other - Misc. Documents | WOHLFEIL, NORWYN E | WOHLFEIL, JUNE C | | | $0.00 | 68289 | 0 |
| 5 | 11/01/1979 | EXECUTORD | Executor Deed | LEVERINGTON, KENNETH C | WOHLFEIL, NORWYN E | | | $38,000.00 | 95915 | 363230 |
| 6 | 01/01/1900 | OTHER | Other - Misc. Documents | Unknown | LEVERINGTON, KENNETH C | | | $0.00 | 0 | 0 |
Payout Agreement
| No payout information available.. |