Property
Account |
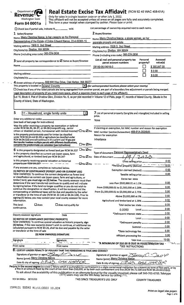
| Property ID: | 421760 | Abbreviated Legal Description: | UTSALADY LOTS 4 & 5 BLK 5 & INT TR B C & D TGW PT ADJ VAC UTSALADY RD AF#94021250 |
| Geographic ID: | S8345-00-05004-0 | Agent Code: | |
| Type: | Real | | |
| Tax Area: | 510 - APPRAISER-Stan/Cam Schl Dist, improved & 1 acre or less | Land Use Code | 11 |
| Open Space: | N | DFL | N |
| Historic Property: | N | Remodel Property: | N |
| Multi-Family Redevelopment: | N | | |
| Township: | | Section: | |
| Range: | |
Location |
| Address: | 124 UTSALADY RD CAMANO ISLAND, WA 98282 | Mapsco: | |
| Neighborhood: | North Camano | Map ID: | 962 |
| Neighborhood CD: | 06-C |
Owner |
| Name: | KEITH, CHARLES A | Owner ID: | 40721 |
| Mailing Address: | 124 UTSALADY RD CAMANO ISLAND, WA 98282-7212 | % Ownership: | 100.0000000000% |
| | | Exemptions: | |
Taxes and Assessment Details
Values
| (+) Improvement Homesite Value: | + | $0 | |
| (+) Improvement Non-Homesite Value: | + | $365,030 | |
| (+) Land Homesite Value: | + | $0 | |
| (+) Land Non-Homesite Value: | + | $370,000 | |
| (+) Curr Use (HS): | + | $0 | $0 |
| (+) Curr Use (NHS): | + | $0 | $0 |
| | | -------------------------- | |
| (=) Market Value: | = | $735,030 | |
| (–) Productivity Loss: | – | $0 | |
| | | -------------------------- | |
| (=) Subtotal: | = | $735,030 | |
| (+) Senior Appraised Value: | + | $0 | |
| (+) Non-Senior Appraised Value: | + | $735,030 | |
| | | -------------------------- | |
| (=) Total Appraised Value: | = | $735,030 | |
| (–) Senior Exemption Loss: | – | $0 | |
| (–) Exemption Loss: | – | $0 | |
| | | -------------------------- | |
| (=) Taxable Value: | = | $735,030 | |
Taxing Jurisdiction
| Owner: | KEITH, CHARLES A | | |
| % Ownership: | 100.0000000000% | | |
| Total Value: | $735,030 | | |
| Tax Area: | 510 - APPRAISER-Stan/Cam Schl Dist, improved & 1 acre or less |
| CF | Conservation Futures | 0.0316035091 | $735,030 | $735,030 | $23.23 | | |
| EMS1 | Fire & Rescue Dist #1 Camano GEN (EMS) | 0.3677864386 | $735,030 | $735,030 | $270.33 | | |
| FIRE1 | Fire & Rescue Dist #1 Camano GEN | 1.2502910536 | $735,030 | $735,030 | $919.00 | | |
| FIRE1BOND | Fire & Rescue Dist #1 Camano BOND | 0.1570001679 | $735,030 | $735,030 | $115.40 | | |
| CE | County Current Expense | 0.3708482477 | $735,030 | $735,030 | $272.58 | | |
| CR | County Roads | 0.4584763726 | $735,030 | $735,030 | $336.99 | | |
| LCIB | Library Sno-Isle BOND (Camano Island) | 0.0396325772 | $735,030 | $735,030 | $29.13 | | |
| LIB | Library Sno-Isle GEN | 0.3153421757 | $735,030 | $735,030 | $231.79 | | |
| SCH205_401 | School 205-401 Enrichment | 1.2698420524 | $735,030 | $735,030 | $933.37 | | |
| SCH205BOND | School 205-401 BOND | 0.9396497583 | $735,030 | $735,030 | $690.67 | | |
| ST | State School | 1.3035497053 | $735,030 | $735,030 | $958.15 | | |
| ST2 | State School Part 2 | 0.8169543533 | $735,030 | $735,030 | $600.49 | | |
| | Total Tax Rate: | 7.3209764117 | | | | | |
| | | | | Taxes w/Current Exemptions: | $5,381.13 | | |
| | | | | Taxes w/o Exemptions: | $5,381.13 | | |
Improvement / Building
| Improvement #1: | RESIDENTIAL | State Code: | Y | 3374.0 sqft | Value: | $365,030 |
| Bathrooms: | 3 | Bedrooms: | 3 | | Ceiling: | DRYWALL PAINTED | Exterior Wall/Cover: | WOOD SIDING | | Floor Covering: | CARPET/VINYL 80-20 | Floor Structure: | WOOD W/SUBFLOOR | | Foundation: | CONCRETE | Heating: | BASEBOARD ELECTRIC | | Interior Finish: | DRYWALL PAINT | Plumbing Fixture Cnt: | 12 | | Roof Slope: | 4" IN 12" | Roof Structure/Cover: | CJ WOOD SHAKES |
|
| | Type | Description | Class CD | Sub Class CD | Year Built | Area |
| | BAS | BASE/MAIN FLOOR | 3 | 0 | 1930 | 1730.0 |
| | ATF | ATTIC FINISHED | 3 | 0 | 1930 | 132.0 |
| | UB6 | BASEMENT UNFINISHED 6" | 3 | 0 | 1930 | 504.0 |
| | DWN | DOWNSTAIRS LIVING AREA | 3 | 0 | 1930 | 1372.0 |
| | BAI | BALCONY IRON RAIL | 3 | 0 | 1930 | 138.0 |
| | OWP | OPEN WOOD PORCH W/STEPS | 3 | 0 | 1930 | 456.2 |
| | OWR | OPEN WOOD PORCH W/STEPS/ROOF | 3 | 0 | 1930 | 52.0 |
| | OWC | OPEN WOOD PORCH W/STEPS/ROOF/C | 3 | 0 | 1930 | 182.0 |
| | UPH | HALF STORY | 3 | 0 | 1930 | 272.0 |
Sketch
Property Image
Land
| 1 | 12 | SQ (00000-06000) | 0.0000 | 0.00 | 0.00 | 0.00 | 1.00 | $370,000 | $0 |
Roll Value History
| 2026 | N/A | N/A | N/A | N/A | N/A |
| 2025 | $365,030 | $370,000 | $0 | $735,030 | $735,030 |
| 2024 | $378,440 | $370,000 | $0 | $748,440 | $748,440 |
| 2023 | $383,677 | $400,000 | $0 | $783,677 | $783,677 |
| 2022 | $342,679 | $340,000 | $0 | $682,679 | $682,679 |
| 2021 | $302,087 | $250,000 | $0 | $552,087 | $552,087 |
| 2020 | $295,721 | $220,000 | $0 | $515,721 | $515,721 |
| 2019 | $242,731 | $250,000 | $0 | $492,731 | $492,731 |
| 2018 | $243,538 | $200,000 | $0 | $443,538 | $443,538 |
| 2017 | $245,150 | $165,000 | $0 | $410,150 | $410,150 |
| 2016 | $228,738 | $150,000 | $0 | $378,738 | $378,738 |
| 2015 | $230,765 | $150,000 | $0 | $380,765 | $380,765 |
| 2014 | $233,883 | $100,000 | $0 | $333,883 | $333,883 |
| 2013 | $237,000 | $100,000 | $0 | $337,000 | $337,000 |
| 2012 | $240,119 | $108,000 | $0 | $348,119 | $348,119 |
| 2011 | $243,238 | $135,000 | $0 | $378,238 | $378,238 |
| 2010 | $237,084 | $135,000 | $0 | $372,084 | $372,084 |
| 2009 | $247,401 | $150,000 | $0 | $397,401 | $397,401 |
| 2008 | $250,493 | $150,000 | $0 | $400,493 | $400,493 |
| 2007 | $253,585 | $150,000 | $0 | $403,585 | $403,585 |
Deed and Sales History
Payout Agreement
| No payout information available.. |