Property
Account |
| Property ID: | 422019 | Abbreviated Legal Description: | UTSALADY LOTS 27 & 28 BLK 6 & INT TR B, C & D TGW VAC ALLEY RD AF#4350403 |
| Geographic ID: | S8345-00-06027-0 | Agent Code: | |
| Type: | Real | | |
| Tax Area: | 510 - APPRAISER-Stan/Cam Schl Dist, improved & 1 acre or less | Land Use Code | 11 |
| Open Space: | N | DFL | N |
| Historic Property: | N | Remodel Property: | N |
| Multi-Family Redevelopment: | N | | |
| Township: | | Section: | |
| Range: | |
Location |
| Address: | 161 SKAGIT AVE CAMANO ISLAND, WA 98282 | Mapsco: | |
| Neighborhood: | North Camano | Map ID: | 962 |
| Neighborhood CD: | 06-C |
Owner |
| Name: | GARRY OAK PROPERTIES LLC | Owner ID: | 297112 |
| Mailing Address: | 18911 SE 43RD ST ISSAQUAH, WA 98027 | % Ownership: | 100.0000000000% |
| | | Exemptions: | |
Taxes and Assessment Details
Values
| (+) Improvement Homesite Value: | + | $0 | |
| (+) Improvement Non-Homesite Value: | + | $46,340 | |
| (+) Land Homesite Value: | + | $0 | |
| (+) Land Non-Homesite Value: | + | $340,000 | |
| (+) Curr Use (HS): | + | $0 | $0 |
| (+) Curr Use (NHS): | + | $0 | $0 |
| | | -------------------------- | |
| (=) Market Value: | = | $386,340 | |
| (–) Productivity Loss: | – | $0 | |
| | | -------------------------- | |
| (=) Subtotal: | = | $386,340 | |
| (+) Senior Appraised Value: | + | $0 | |
| (+) Non-Senior Appraised Value: | + | $386,340 | |
| | | -------------------------- | |
| (=) Total Appraised Value: | = | $386,340 | |
| (–) Senior Exemption Loss: | – | $0 | |
| (–) Exemption Loss: | – | $0 | |
| | | -------------------------- | |
| (=) Taxable Value: | = | $386,340 | |
Taxing Jurisdiction
| Owner: | GARRY OAK PROPERTIES LLC | | |
| % Ownership: | 100.0000000000% | | |
| Total Value: | $386,340 | | |
| Tax Area: | 510 - APPRAISER-Stan/Cam Schl Dist, improved & 1 acre or less |
| CF | Conservation Futures | 0.0316035091 | $386,340 | $386,340 | $12.21 | | |
| EMS1 | Fire & Rescue Dist #1 Camano GEN (EMS) | 0.3677864386 | $386,340 | $386,340 | $142.09 | | |
| FIRE1 | Fire & Rescue Dist #1 Camano GEN | 1.2502910536 | $386,340 | $386,340 | $483.04 | | |
| FIRE1BOND | Fire & Rescue Dist #1 Camano BOND | 0.1570001679 | $386,340 | $386,340 | $60.66 | | |
| CE | County Current Expense | 0.3708482477 | $386,340 | $386,340 | $143.27 | | |
| CR | County Roads | 0.4584763726 | $386,340 | $386,340 | $177.13 | | |
| LCIB | Library Sno-Isle BOND (Camano Island) | 0.0396325772 | $386,340 | $386,340 | $15.31 | | |
| LIB | Library Sno-Isle GEN | 0.3153421757 | $386,340 | $386,340 | $121.83 | | |
| SCH205_401 | School 205-401 Enrichment | 1.2698420524 | $386,340 | $386,340 | $490.59 | | |
| SCH205BOND | School 205-401 BOND | 0.9396497583 | $386,340 | $386,340 | $363.02 | | |
| ST | State School | 1.3035497053 | $386,340 | $386,340 | $503.61 | | |
| ST2 | State School Part 2 | 0.8169543533 | $386,340 | $386,340 | $315.62 | | |
| | Total Tax Rate: | 7.3209764117 | | | | | |
| | | | | Taxes w/Current Exemptions: | $2,828.38 | | |
| | | | | Taxes w/o Exemptions: | $2,828.38 | | |
Improvement / Building
| Improvement #1: | RESIDENTIAL | State Code: | Y | 352.0 sqft | Value: | $46,340 |
| Bathrooms: | 1 | Bedrooms: | 2 | | Ceiling: | DRYWALL PAINTED | Exterior Wall/Cover: | ASBESTOES/ASPHALT | | Floor Covering: | CARPET/VINYL 80-20 | Floor Structure: | WOOD W/SUBFLOOR | | Foundation: | CONCRETE BLOCKS | Heating: | BASEBOARD ELECTRIC | | Interior Finish: | DRYWALL PAINT | Plumbing Fixture Cnt: | 5 | | Roof Slope: | 5" IN 12" | Roof Structure/Cover: | CJ ASPHALT |
|
| | Type | Description | Class CD | Sub Class CD | Year Built | Area |
| | BAS | BASE/MAIN FLOOR | 2 | 0 | 1946 | 352.0 |
| | OWP | OPEN WOOD PORCH W/STEPS | 2 | 0 | 1946 | 132.0 |
| | OWP | OPEN WOOD PORCH W/STEPS | 2 | 0 | 1946 | 131.5 |
Sketch
Property Image
Land
| 1 | 13 | SQ (06001-08000) | 0.1618 | 7050.02 | 0.00 | 0.00 | 1.00 | $340,000 | $0 |
Roll Value History
| 2026 | N/A | N/A | N/A | N/A | N/A |
| 2025 | $46,340 | $340,000 | $0 | $386,340 | $386,340 |
| 2024 | $48,169 | $330,000 | $0 | $378,169 | $378,169 |
| 2023 | $48,996 | $360,000 | $0 | $408,996 | $408,996 |
| 2022 | $45,114 | $260,000 | $0 | $305,114 | $305,114 |
| 2021 | $39,882 | $220,000 | $0 | $259,882 | $259,882 |
| 2020 | $38,889 | $190,000 | $0 | $228,889 | $228,889 |
| 2019 | $28,099 | $230,000 | $0 | $258,099 | $258,099 |
| 2018 | $28,210 | $200,000 | $0 | $228,210 | $228,210 |
| 2017 | $28,427 | $150,000 | $0 | $178,427 | $178,427 |
| 2016 | $27,983 | $115,000 | $0 | $142,983 | $142,983 |
| 2015 | $28,427 | $100,000 | $0 | $128,427 | $128,427 |
| 2014 | $20,324 | $100,000 | $0 | $120,324 | $120,324 |
| 2013 | $20,730 | $100,000 | $0 | $120,730 | $120,730 |
| 2012 | $21,136 | $108,000 | $0 | $129,136 | $129,136 |
| 2011 | $21,543 | $135,000 | $0 | $156,543 | $156,543 |
| 2010 | $17,076 | $135,000 | $0 | $152,076 | $152,076 |
| 2009 | $17,971 | $150,000 | $0 | $167,971 | $167,971 |
| 2008 | $18,338 | $125,000 | $0 | $143,338 | $143,338 |
| 2007 | $18,704 | $125,000 | $0 | $143,704 | $143,704 |
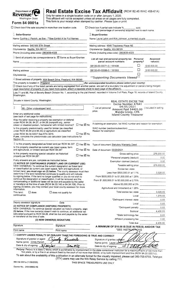
Deed and Sales History
| 1 | 10/15/2020 | QCD | Quit Claim Deed | DAVIES, JAMES A | GARRY OAK PROPERTIES LLC | | | $0.00 | 45460 | 4500914 |
| 2 | 10/15/2020 | PRD | Personal Representatives Deed | DAVIES, ALEXANDER M | DAVIES, JAMES A | | | $0.00 | 45461 | 4500916 |
| 3 | 06/01/1981 | TRUSTEED | Trustee's Deed | GREENAN, DONALD L | DAVIES, ALEXANDER M | | | $37,500.00 | 11946 | 384669 |
| 4 | 01/01/1900 | OTHER | Other - Misc. Documents | Unknown | GREENAN, DONALD L | | | $0.00 | 0 | 0 |
Payout Agreement
| No payout information available.. |