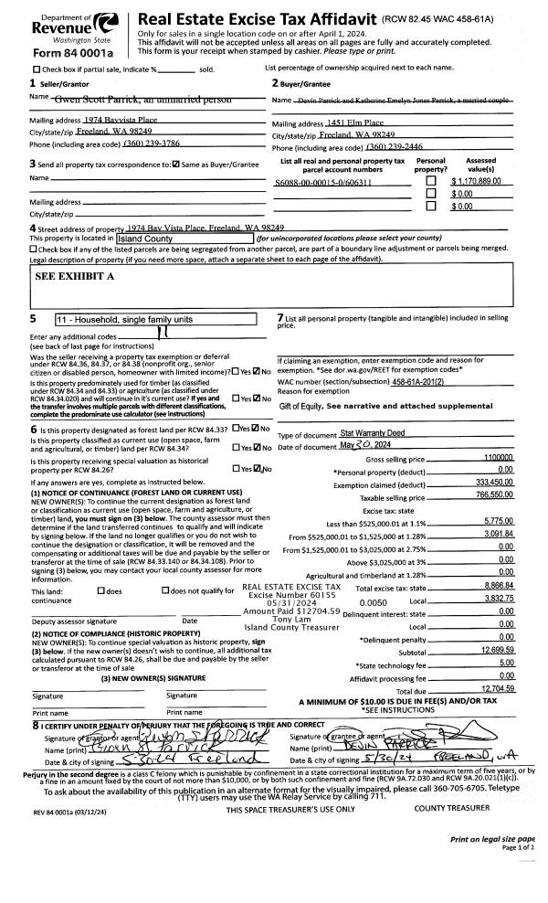
Property
Account |
| Property ID: | 422037 | Abbreviated Legal Description: | UTSALADY LOTS 1 & 2 BLK 7 & INT TR B C & D EX N CAM DR |
| Geographic ID: | S8345-00-07001-0 | Agent Code: | |
| Type: | Real | | |
| Tax Area: | 510 - APPRAISER-Stan/Cam Schl Dist, improved & 1 acre or less | Land Use Code | 11 |
| Open Space: | N | DFL | N |
| Historic Property: | N | Remodel Property: | N |
| Multi-Family Redevelopment: | N | | |
| Township: | | Section: | |
| Range: | |
Location |
| Address: | 1160 STANWOOD ST CAMANO ISLAND, WA 98282 | Mapsco: | |
| Neighborhood: | North Camano | Map ID: | 962 |
| Neighborhood CD: | 06-C |
Owner |
| Name: | MCCONNAUGHEY, MARY | Owner ID: | 311486 |
| Mailing Address: | JOSEFINA BEECHER 1120 STANWOOD ST CAMANO ISLAND, WA 98282 | % Ownership: | 100.0000000000% |
| | | Exemptions: | |
Taxes and Assessment Details
Values
| (+) Improvement Homesite Value: | + | $0 | |
| (+) Improvement Non-Homesite Value: | + | $71,055 | |
| (+) Land Homesite Value: | + | $0 | |
| (+) Land Non-Homesite Value: | + | $270,000 | |
| (+) Curr Use (HS): | + | $0 | $0 |
| (+) Curr Use (NHS): | + | $0 | $0 |
| | | -------------------------- | |
| (=) Market Value: | = | $341,055 | |
| (–) Productivity Loss: | – | $0 | |
| | | -------------------------- | |
| (=) Subtotal: | = | $341,055 | |
| (+) Senior Appraised Value: | + | $0 | |
| (+) Non-Senior Appraised Value: | + | $341,055 | |
| | | -------------------------- | |
| (=) Total Appraised Value: | = | $341,055 | |
| (–) Senior Exemption Loss: | – | $0 | |
| (–) Exemption Loss: | – | $0 | |
| | | -------------------------- | |
| (=) Taxable Value: | = | $341,055 | |
Taxing Jurisdiction
| Owner: | MCCONNAUGHEY, MARY | | |
| % Ownership: | 100.0000000000% | | |
| Total Value: | $341,055 | | |
| Tax Area: | 510 - APPRAISER-Stan/Cam Schl Dist, improved & 1 acre or less |
| CF | Conservation Futures | 0.0316035091 | $341,055 | $341,055 | $10.78 | | |
| EMS1 | Fire & Rescue Dist #1 Camano GEN (EMS) | 0.3677864386 | $341,055 | $341,055 | $125.44 | | |
| FIRE1 | Fire & Rescue Dist #1 Camano GEN | 1.2502910536 | $341,055 | $341,055 | $426.42 | | |
| FIRE1BOND | Fire & Rescue Dist #1 Camano BOND | 0.1570001679 | $341,055 | $341,055 | $53.55 | | |
| CE | County Current Expense | 0.3708482477 | $341,055 | $341,055 | $126.48 | | |
| CR | County Roads | 0.4584763726 | $341,055 | $341,055 | $156.37 | | |
| LCIB | Library Sno-Isle BOND (Camano Island) | 0.0396325772 | $341,055 | $341,055 | $13.52 | | |
| LIB | Library Sno-Isle GEN | 0.3153421757 | $341,055 | $341,055 | $107.55 | | |
| SCH205_401 | School 205-401 Enrichment | 1.2698420524 | $341,055 | $341,055 | $433.09 | | |
| SCH205BOND | School 205-401 BOND | 0.9396497583 | $341,055 | $341,055 | $320.47 | | |
| ST | State School | 1.3035497053 | $341,055 | $341,055 | $444.58 | | |
| ST2 | State School Part 2 | 0.8169543533 | $341,055 | $341,055 | $278.63 | | |
| | Total Tax Rate: | 7.3209764117 | | | | | |
| | | | | Taxes w/Current Exemptions: | $2,496.88 | | |
| | | | | Taxes w/o Exemptions: | $2,496.88 | | |
Improvement / Building
| Improvement #1: | RESIDENTIAL | State Code: | Y | 677.0 sqft | Value: | $71,055 |
| Bathrooms: | 1 | Bedrooms: | 1 | | Ceiling: | ACOUSTIC FURRED | Exterior Wall/Cover: | WOOD SIDING | | Floor Covering: | VINYL/HARDWOOD 20-80 | Floor Structure: | WOOD W/SUBFLOOR | | Foundation: | CONCRETE | Heating: | BASEBOARD ELECTRIC | | Interior Finish: | DRYWALL PAINT | Plumbing Fixture Cnt: | 6 | | Roof Slope: | 8" IN 12" | Roof Structure/Cover: | CJ ALUMINIUM HEAVY |
|
| | Type | Description | Class CD | Sub Class CD | Year Built | Area |
| | BAS | BASE/MAIN FLOOR | 2 | 0 | 1946 | 677.0 |
| | UB6 | BASEMENT UNFINISHED 6" | 2 | 0 | 1946 | 648.0 |
| | OP2 | OPEN PORCH W/STEPS | 2 | 0 | 1946 | 48.0 |
| | OP4 | OPEN PORCH W/CEILING-ROOF | 2 | 0 | 1946 | 55.0 |
| | ATU | ATTIC UNFINISHED | 2 | 0 | 1946 | 270.0 |
| | OWR | OPEN WOOD PORCH W/STEPS/ROOF | 2 | 0 | 1946 | 36.0 |
Sketch
Property Image
Land
| 1 | 12 | SQ (00000-06000) | 0.0000 | 0.00 | 0.00 | 0.00 | 1.00 | $270,000 | $0 |
Roll Value History
| 2026 | N/A | N/A | N/A | N/A | N/A |
| 2025 | $71,055 | $270,000 | $0 | $341,055 | $341,055 |
| 2024 | $53,980 | $200,000 | $0 | $253,980 | $253,980 |
| 2023 | $53,980 | $360,000 | $0 | $413,980 | $413,980 |
| 2022 | $62,321 | $260,000 | $0 | $322,321 | $57,424 |
| 2021 | $55,607 | $220,000 | $0 | $275,607 | $57,424 |
| 2020 | $54,851 | $190,000 | $0 | $244,851 | $57,424 |
| 2019 | $39,643 | $230,000 | $0 | $269,643 | $57,424 |
| 2018 | $39,882 | $200,000 | $0 | $239,882 | $57,424 |
| 2017 | $40,363 | $150,000 | $0 | $190,363 | $57,424 |
| 2016 | $31,714 | $115,000 | $0 | $146,714 | $57,424 |
| 2015 | $32,676 | $100,000 | $0 | $132,676 | $53,070 |
| 2014 | $33,635 | $100,000 | $0 | $133,635 | $53,454 |
| 2013 | $34,598 | $100,000 | $0 | $134,598 | $53,839 |
| 2012 | $35,559 | $108,000 | $0 | $143,559 | $57,424 |
| 2011 | $36,518 | $135,000 | $0 | $171,518 | $171,518 |
| 2010 | $40,166 | $135,000 | $0 | $175,166 | $175,166 |
| 2009 | $42,285 | $150,000 | $0 | $192,285 | $192,285 |
| 2008 | $43,222 | $125,000 | $0 | $168,222 | $168,222 |
| 2007 | $44,159 | $125,000 | $0 | $169,159 | $169,159 |
Deed and Sales History
| 1 | 11/17/2023 | WD | Warranty Deed | STEEN, LARRY A | MCCONNAUGHEY, MARY | | | $275,000.00 | 58576 | 4566921 |
| 2 | 09/01/1997 | OTHER | Other - Misc. Documents | STEEN, LARRY A | STEEN, OPAL A | | | $0.00 | 67611 | 97015767 |
| 3 | 09/01/1997 | QCD | Quit Claim Deed | STEEN, CARL O | STEEN, LARRY A | | | $0.00 | 73339 | 97015768 |
| 4 | 06/01/1982 | TRUSTEED | Trustee's Deed | STEEN, OLGA R | STEEN, CARL O | | | $1.00 | 59516 | 389904 |
| 5 | 01/01/1900 | OTHER | Other - Misc. Documents | Unknown | STEEN, OLGA R | | | $0.00 | 0 | 0 |
Payout Agreement
| No payout information available.. |