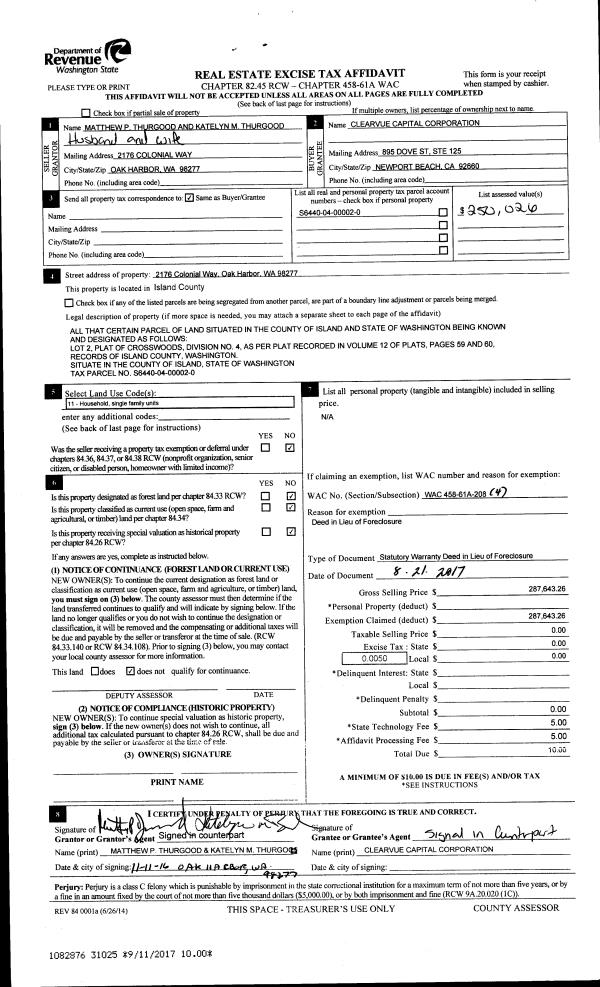
Property
Account |
| Property ID: | 422046 | Abbreviated Legal Description: | UTSALADY LOT 3 & W/2 LOT 4 BLK 7 TGW PT LOTS 36, 37 & 38 LY N OF N CAM DR TGW INT TR B, C & D ALSO TGW ADJ VAC ST AF#350117 DRIVEWAY EZ AF#96001580 COMB 4/96 |
| Geographic ID: | S8345-00-07003-0 | Agent Code: | |
| Type: | Real | | |
| Tax Area: | 510 - APPRAISER-Stan/Cam Schl Dist, improved & 1 acre or less | Land Use Code | 11 |
| Open Space: | N | DFL | N |
| Historic Property: | N | Remodel Property: | N |
| Multi-Family Redevelopment: | N | | |
| Township: | | Section: | |
| Range: | |
Location |
| Address: | 166 SKAGIT AVE CAMANO ISLAND, WA 98282 | Mapsco: | |
| Neighborhood: | North Camano | Map ID: | 962 |
| Neighborhood CD: | 06-C |
Owner |
| Name: | ALVAREZ, MONICA DELEON | Owner ID: | 280269 |
| Mailing Address: | 166 SKAGIT AVE CAMANO ISLAND, WA 98282 | % Ownership: | 100.0000000000% |
| | | Exemptions: | |
Taxes and Assessment Details
Values
| (+) Improvement Homesite Value: | + | $0 | |
| (+) Improvement Non-Homesite Value: | + | $230,740 | |
| (+) Land Homesite Value: | + | $0 | |
| (+) Land Non-Homesite Value: | + | $370,000 | |
| (+) Curr Use (HS): | + | $0 | $0 |
| (+) Curr Use (NHS): | + | $0 | $0 |
| | | -------------------------- | |
| (=) Market Value: | = | $600,740 | |
| (–) Productivity Loss: | – | $0 | |
| | | -------------------------- | |
| (=) Subtotal: | = | $600,740 | |
| (+) Senior Appraised Value: | + | $0 | |
| (+) Non-Senior Appraised Value: | + | $600,740 | |
| | | -------------------------- | |
| (=) Total Appraised Value: | = | $600,740 | |
| (–) Senior Exemption Loss: | – | $0 | |
| (–) Exemption Loss: | – | $0 | |
| | | -------------------------- | |
| (=) Taxable Value: | = | $600,740 | |
Taxing Jurisdiction
| Owner: | ALVAREZ, MONICA DELEON | | |
| % Ownership: | 100.0000000000% | | |
| Total Value: | $600,740 | | |
| Tax Area: | 510 - APPRAISER-Stan/Cam Schl Dist, improved & 1 acre or less |
| CF | Conservation Futures | 0.0316035091 | $600,740 | $600,740 | $18.99 | | |
| EMS1 | Fire & Rescue Dist #1 Camano GEN (EMS) | 0.3677864386 | $600,740 | $600,740 | $220.94 | | |
| FIRE1 | Fire & Rescue Dist #1 Camano GEN | 1.2502910536 | $600,740 | $600,740 | $751.10 | | |
| FIRE1BOND | Fire & Rescue Dist #1 Camano BOND | 0.1570001679 | $600,740 | $600,740 | $94.32 | | |
| CE | County Current Expense | 0.3708482477 | $600,740 | $600,740 | $222.78 | | |
| CR | County Roads | 0.4584763726 | $600,740 | $600,740 | $275.43 | | |
| LCIB | Library Sno-Isle BOND (Camano Island) | 0.0396325772 | $600,740 | $600,740 | $23.81 | | |
| LIB | Library Sno-Isle GEN | 0.3153421757 | $600,740 | $600,740 | $189.44 | | |
| SCH205_401 | School 205-401 Enrichment | 1.2698420524 | $600,740 | $600,740 | $762.84 | | |
| SCH205BOND | School 205-401 BOND | 0.9396497583 | $600,740 | $600,740 | $564.49 | | |
| ST | State School | 1.3035497053 | $600,740 | $600,740 | $783.09 | | |
| ST2 | State School Part 2 | 0.8169543533 | $600,740 | $600,740 | $490.78 | | |
| | Total Tax Rate: | 7.3209764117 | | | | | |
| | | | | Taxes w/Current Exemptions: | $4,398.01 | | |
| | | | | Taxes w/o Exemptions: | $4,398.01 | | |
Improvement / Building
| Improvement #1: | RESIDENTIAL | State Code: | Y | 1811.0 sqft | Value: | $230,740 |
| Bathrooms: | 1.75 | Bedrooms: | 2 | | Ceiling: | DRYWALL PAINTED | Exterior Wall/Cover: | VINYL | | Floor Covering: | CARPET/VINYL 80-20 | Floor Structure: | WOOD W/SUBFLOOR | | Foundation: | CONCRETE | Heating: | FHA GAS | | Interior Finish: | DRYWALL PAINT | Plumbing Fixture Cnt: | 9 | | Roof Slope: | 6" IN 12" | Roof Structure/Cover: | CJ ASPHALT |
|
| | Type | Description | Class CD | Sub Class CD | Year Built | Area |
| | BAS | BASE/MAIN FLOOR | 3 | 0 | 1933 | 1271.0 |
| | DWN | DOWNSTAIRS LIVING AREA | 3 | 0 | 1933 | 540.0 |
| | OCP | OPEN CARPORT | 3 | 0 | 1933 | 306.0 |
| | OWP | OPEN WOOD PORCH W/STEPS | 3 | 0 | 1933 | 461.0 |
| | OWP | OPEN WOOD PORCH W/STEPS | 3 | 0 | 1933 | 42.0 |
Sketch
Property Image
Land
| 1 | 12 | SQ (00000-06000) | 0.0000 | 0.00 | 0.00 | 0.00 | 1.00 | $370,000 | $0 |
Roll Value History
| 2026 | N/A | N/A | N/A | N/A | N/A |
| 2025 | $230,740 | $370,000 | $0 | $600,740 | $600,740 |
| 2024 | $234,071 | $370,000 | $0 | $604,071 | $604,071 |
| 2023 | $237,404 | $400,000 | $0 | $637,404 | $637,404 |
| 2022 | $211,959 | $340,000 | $0 | $551,959 | $551,959 |
| 2021 | $186,938 | $250,000 | $0 | $436,938 | $436,938 |
| 2020 | $182,747 | $220,000 | $0 | $402,747 | $402,747 |
| 2019 | $136,892 | $250,000 | $0 | $386,892 | $386,892 |
| 2018 | $137,359 | $200,000 | $0 | $337,359 | $337,359 |
| 2017 | $129,162 | $165,000 | $0 | $294,162 | $294,162 |
| 2016 | $128,527 | $115,000 | $0 | $243,527 | $243,527 |
| 2015 | $130,390 | $100,000 | $0 | $230,390 | $230,390 |
| 2014 | $132,252 | $100,000 | $0 | $232,252 | $232,252 |
| 2013 | $134,114 | $100,000 | $0 | $234,114 | $234,114 |
| 2012 | $135,977 | $108,000 | $0 | $243,977 | $243,977 |
| 2011 | $137,841 | $135,000 | $0 | $272,841 | $272,841 |
| 2010 | $128,996 | $135,000 | $0 | $263,996 | $263,996 |
| 2009 | $134,907 | $150,000 | $0 | $284,907 | $158,009 |
| 2008 | $136,186 | $125,710 | $0 | $261,896 | $261,896 |
| 2007 | $139,853 | $124,021 | $0 | $263,874 | $158,009 |
Deed and Sales History
| 1 | 05/31/2017 | WD | Warranty Deed | GOFF TRUSTEE, RICHARD E | ALVAREZ, MONICA DELEON | | | $333,000.00 | 29630 | 4423869 |
| 2 | 05/30/2017 | QCD | Quit Claim Deed | GOFF TRUSTEE, RICHARD E | GOFF TRUSTEE, RICHARD E | | | $0.00 | 29633 | 4423868 |
| 3 | 01/01/1998 | QCD | Quit Claim Deed | GOFF, RICHARD E | GOFF, RICHARD E | | | $0.00 | 80240 | 98001115 |
| 4 | 04/01/1996 | OTHER | Other - Misc. Documents | GOFF, RICHARD E | GOFF, RICHARD E | | | $0.00 | 66881 | 96006397 |
| 5 | 04/01/1996 | QCD | Quit Claim Deed | GOFF, RICHARD E | GOFF, RICHARD E | | | $500.00 | 61250 | 96006396 |
| 6 | 11/01/1971 | CD | DNU - Correction Deed | GOFF, DON E | GOFF, RICHARD E | | | $9,000.00 | 42928 | 0 |
| 7 | 01/01/1900 | OTHER | Other - Misc. Documents | Unknown | GOFF, DON E | | | $0.00 | 0 | 0 |
Payout Agreement
| No payout information available.. |