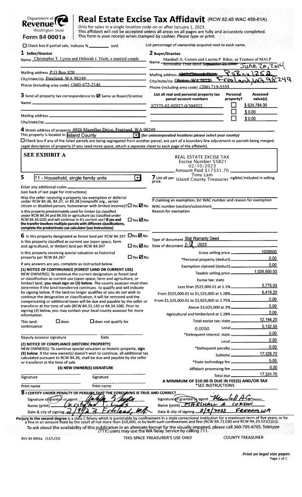
Property
Account |
| Property ID: | 422643 | Abbreviated Legal Description: | UTSALADY LOTS 34, 35 & W15' OF LOT 33 BLK 10 TGW PT ADJ VAC ALLEY TGW PT ADJ VAC STILLAGUAMISH AVE TGW INT TR B, C & D |
| Geographic ID: | S8345-00-10034-0 | Agent Code: | |
| Type: | Real | | |
| Tax Area: | 590 - APPRAISER-Stan/Cam Schl Dist, Special Dist, improved & less than 1 acre | Land Use Code | 99 |
| Open Space: | N | DFL | N |
| Historic Property: | N | Remodel Property: | N |
| Multi-Family Redevelopment: | N | | |
| Township: | | Section: | |
| Range: | |
Location |
| Address: | STILLAGUAMISH AVE CAMANO ISLAND, WA 98282 | Mapsco: | |
| Neighborhood: | North Camano | Map ID: | 962 |
| Neighborhood CD: | 06-C |
Owner |
| Name: | MELLUM, MICHAEL F | Owner ID: | 68358 |
| Mailing Address: | JENNIFER J MELLUM 73 STILLAGUAMISH AVE CAMANO ISLAND, WA 98282-8782 | % Ownership: | 100.0000000000% |
| | | Exemptions: | |
Taxes and Assessment Details
Values
| (+) Improvement Homesite Value: | + | $0 | |
| (+) Improvement Non-Homesite Value: | + | $0 | |
| (+) Land Homesite Value: | + | $0 | |
| (+) Land Non-Homesite Value: | + | $130,000 | |
| (+) Curr Use (HS): | + | $0 | $0 |
| (+) Curr Use (NHS): | + | $0 | $0 |
| | | -------------------------- | |
| (=) Market Value: | = | $130,000 | |
| (–) Productivity Loss: | – | $0 | |
| | | -------------------------- | |
| (=) Subtotal: | = | $130,000 | |
| (+) Senior Appraised Value: | + | $0 | |
| (+) Non-Senior Appraised Value: | + | $130,000 | |
| | | -------------------------- | |
| (=) Total Appraised Value: | = | $130,000 | |
| (–) Senior Exemption Loss: | – | $0 | |
| (–) Exemption Loss: | – | $0 | |
| | | -------------------------- | |
| (=) Taxable Value: | = | $130,000 | |
Taxing Jurisdiction
| Owner: | MELLUM, MICHAEL F | | |
| % Ownership: | 100.0000000000% | | |
| Total Value: | $130,000 | | |
| Tax Area: | 590 - APPRAISER-Stan/Cam Schl Dist, Special Dist, improved & less than 1 acre |
| CF | Conservation Futures | 0.0316035091 | $130,000 | $130,000 | $4.11 | | |
| EMS1 | Fire & Rescue Dist #1 Camano GEN (EMS) | 0.3677864386 | $130,000 | $130,000 | $47.81 | | |
| FIRE1 | Fire & Rescue Dist #1 Camano GEN | 1.2502910536 | $130,000 | $130,000 | $162.54 | | |
| FIRE1BOND | Fire & Rescue Dist #1 Camano BOND | 0.1570001679 | $130,000 | $130,000 | $20.41 | | |
| CE | County Current Expense | 0.3708482477 | $130,000 | $130,000 | $48.21 | | |
| CR | County Roads | 0.4584763726 | $130,000 | $130,000 | $59.60 | | |
| LCIB | Library Sno-Isle BOND (Camano Island) | 0.0396325772 | $130,000 | $130,000 | $5.15 | | |
| LIB | Library Sno-Isle GEN | 0.3153421757 | $130,000 | $130,000 | $40.99 | | |
| SCH205_401 | School 205-401 Enrichment | 1.2698420524 | $130,000 | $130,000 | $165.08 | | |
| SCH205BOND | School 205-401 BOND | 0.9396497583 | $130,000 | $130,000 | $122.15 | | |
| ST | State School | 1.3035497053 | $130,000 | $130,000 | $169.46 | | |
| ST2 | State School Part 2 | 0.8169543533 | $130,000 | $130,000 | $106.20 | | |
| | Total Tax Rate: | 7.3209764117 | | | | | |
| | | | | Taxes w/Current Exemptions: | $951.71 | | |
| | | | | Taxes w/o Exemptions: | $951.71 | | |
Improvement / Building
Sketch
| No sketches available for this property. |
Property Image
Land
| 1 | 13 | SQ (06001-08000) | 0.0000 | 0.00 | 0.00 | 0.00 | 1.00 | $130,000 | $0 |
Roll Value History
| 2026 | N/A | N/A | N/A | N/A | N/A |
| 2025 | $0 | $130,000 | $0 | $130,000 | $130,000 |
| 2024 | $0 | $120,000 | $0 | $120,000 | $120,000 |
| 2023 | $0 | $110,000 | $0 | $110,000 | $110,000 |
| 2022 | $0 | $100,000 | $0 | $100,000 | $100,000 |
| 2021 | $0 | $7,000 | $0 | $7,000 | $7,000 |
| 2020 | $0 | $7,000 | $0 | $7,000 | $7,000 |
| 2019 | $0 | $7,000 | $0 | $7,000 | $7,000 |
| 2018 | $0 | $7,000 | $0 | $7,000 | $7,000 |
| 2017 | $0 | $5,000 | $0 | $5,000 | $5,000 |
| 2016 | $0 | $25,000 | $0 | $25,000 | $25,000 |
| 2015 | $0 | $33,000 | $0 | $33,000 | $33,000 |
| 2014 | $0 | $33,000 | $0 | $33,000 | $33,000 |
| 2013 | $0 | $33,000 | $0 | $33,000 | $33,000 |
| 2012 | $0 | $33,000 | $0 | $33,000 | $33,000 |
| 2011 | $0 | $33,000 | $0 | $33,000 | $33,000 |
| 2010 | $0 | $33,000 | $0 | $33,000 | $33,000 |
| 2009 | $0 | $37,950 | $0 | $37,950 | $37,950 |
| 2008 | $0 | $37,950 | $0 | $37,950 | $37,950 |
| 2007 | $0 | $37,950 | $0 | $37,950 | $37,950 |
Deed and Sales History
| 1 | 06/04/2024 | EZ | Easement | MELLUM, MICHAEL F | 58 W NORTH CAMANO, LLC | | | $80,000.00 | 61592 | 4578325 |
| 2 | 08/01/1989 | WD | Warranty Deed | VALDE, VERNON R | MELLUM, MICHAEL F | | | $4,100.00 | 93960 | 89013159 |
| 3 | 04/01/1985 | OTHER | Other - Misc. Documents | VALDE, HELEN A | VALDE, VERNON R | | | $0.00 | 61136 | 0 |
| 4 | 01/01/1900 | OTHER | Other - Misc. Documents | Unknown | VALDE, HELEN A | | | $0.00 | 0 | 0 |
Payout Agreement
| No payout information available.. |