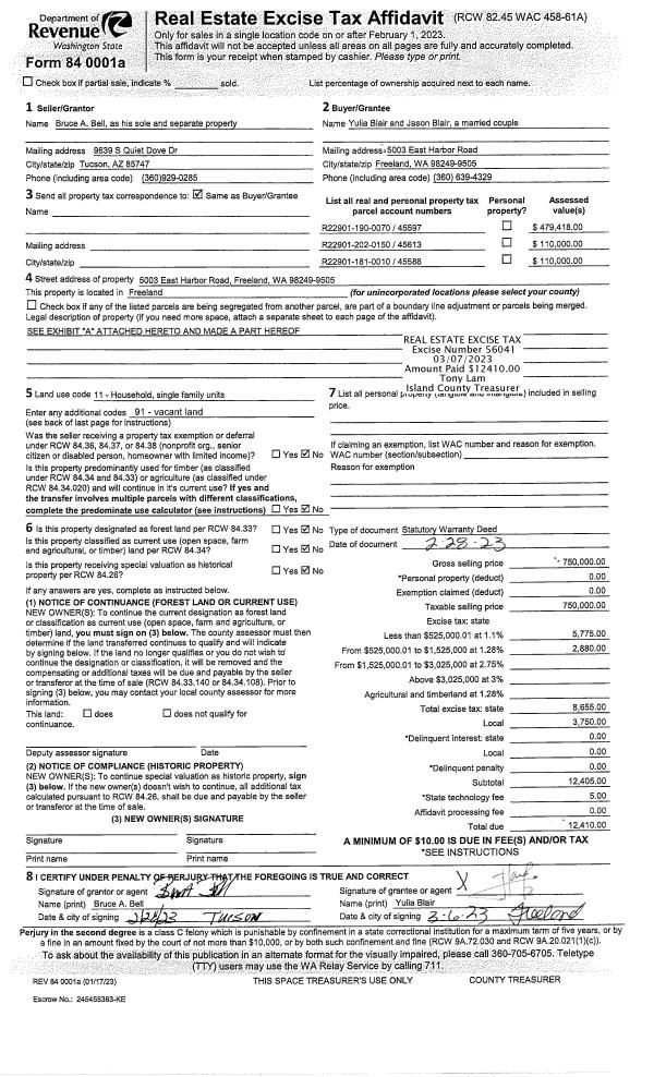
Property
Account |
| Property ID: | 423429 | Abbreviated Legal Description: | UTSALADY BCH LOTS 9 & 10 INCL ADJ TIDES COMBD TAX PURPOSES ONLY 7/9/82 |
| Geographic ID: | S8350-00-00009-0 | Agent Code: | |
| Type: | Real | | |
| Tax Area: | 510 - APPRAISER-Stan/Cam Schl Dist, improved & 1 acre or less | Land Use Code | 11 |
| Open Space: | N | DFL | N |
| Historic Property: | N | Remodel Property: | N |
| Multi-Family Redevelopment: | N | | |
| Township: | | Section: | |
| Range: | |
Location |
| Address: | 172 LOON ASEA LN CAMANO ISLAND, WA 98282 | Mapsco: | |
| Neighborhood: | North Camano | Map ID: | 561 |
| Neighborhood CD: | 06-C |
Owner |
| Name: | NILES, DENISE A | Owner ID: | 291511 |
| Mailing Address: | DANIEL M NILES, JR 3033 FAIRWEATHER PL HUNTS POINT, WA 98004 | % Ownership: | 100.0000000000% |
| | | Exemptions: | |
Taxes and Assessment Details
Values
| (+) Improvement Homesite Value: | + | $0 | |
| (+) Improvement Non-Homesite Value: | + | $468,235 | |
| (+) Land Homesite Value: | + | $0 | |
| (+) Land Non-Homesite Value: | + | $1,076,200 | |
| (+) Curr Use (HS): | + | $0 | $0 |
| (+) Curr Use (NHS): | + | $0 | $0 |
| | | -------------------------- | |
| (=) Market Value: | = | $1,544,435 | |
| (–) Productivity Loss: | – | $0 | |
| | | -------------------------- | |
| (=) Subtotal: | = | $1,544,435 | |
| (+) Senior Appraised Value: | + | $0 | |
| (+) Non-Senior Appraised Value: | + | $1,544,435 | |
| | | -------------------------- | |
| (=) Total Appraised Value: | = | $1,544,435 | |
| (–) Senior Exemption Loss: | – | $0 | |
| (–) Exemption Loss: | – | $0 | |
| | | -------------------------- | |
| (=) Taxable Value: | = | $1,544,435 | |
Taxing Jurisdiction
| Owner: | NILES, DENISE A | | |
| % Ownership: | 100.0000000000% | | |
| Total Value: | $1,544,435 | | |
| Tax Area: | 510 - APPRAISER-Stan/Cam Schl Dist, improved & 1 acre or less |
| CF | Conservation Futures | 0.0316035091 | $1,544,435 | $1,544,435 | $48.81 | | |
| EMS1 | Fire & Rescue Dist #1 Camano GEN (EMS) | 0.3677864386 | $1,544,435 | $1,544,435 | $568.02 | | |
| FIRE1 | Fire & Rescue Dist #1 Camano GEN | 1.2502910536 | $1,544,435 | $1,544,435 | $1,930.99 | | |
| FIRE1BOND | Fire & Rescue Dist #1 Camano BOND | 0.1570001679 | $1,544,435 | $1,544,435 | $242.48 | | |
| CE | County Current Expense | 0.3708482477 | $1,544,435 | $1,544,435 | $572.75 | | |
| CR | County Roads | 0.4584763726 | $1,544,435 | $1,544,435 | $708.09 | | |
| LCIB | Library Sno-Isle BOND (Camano Island) | 0.0396325772 | $1,544,435 | $1,544,435 | $61.21 | | |
| LIB | Library Sno-Isle GEN | 0.3153421757 | $1,544,435 | $1,544,435 | $487.03 | | |
| SCH205_401 | School 205-401 Enrichment | 1.2698420524 | $1,544,435 | $1,544,435 | $1,961.19 | | |
| SCH205BOND | School 205-401 BOND | 0.9396497583 | $1,544,435 | $1,544,435 | $1,451.23 | | |
| ST | State School | 1.3035497053 | $1,544,435 | $1,544,435 | $2,013.25 | | |
| ST2 | State School Part 2 | 0.8169543533 | $1,544,435 | $1,544,435 | $1,261.73 | | |
| | Total Tax Rate: | 7.3209764117 | | | | | |
| | | | | Taxes w/Current Exemptions: | $11,306.78 | | |
| | | | | Taxes w/o Exemptions: | $11,306.78 | | |
Improvement / Building
| Improvement #1: | RESIDENTIAL | State Code: | Y | 2156.0 sqft | Value: | $281,512 |
| Bathrooms: | 3 | Bedrooms: | 2 | | Ceiling: | BEAM PAINTED | Exterior Wall/Cover: | WOOD SIDING | | Floor Covering: | VINYL/HARDWOOD 20-80 | Floor Structure: | WOOD W/SUBFLOOR | | Foundation: | CONCRETE | Heating: | BASEBOARD ELECTRIC | | Interior Finish: | DRYWALL PAINT | Plumbing Fixture Cnt: | 9 | | Roof Slope: | 4" IN 12" | Roof Structure/Cover: | CJ ASPHALT |
|
| | Type | Description | Class CD | Sub Class CD | Year Built | Area |
| | BAS | BASE/MAIN FLOOR | 3 | 0 | 1955 | 1358.0 |
| | BIG | BUILT IN GARAGE | 3 | 0 | 1955 | 240.0 |
| | OWP | OPEN WOOD PORCH W/STEPS | 3 | 0 | 1955 | 988.0 |
| | UPH | HALF STORY | 3 | 0 | 1955 | 798.0 |
| | UTY | STORAGE/UTILITY | 3 | 0 | 1955 | 384.0 |
| Improvement #2: | RESIDENTIAL | State Code: | Y | 720.0 sqft | Value: | $186,723 |
| Bathrooms: | 2 | Bedrooms: | 2 | | Ceiling: | DRYWALL PAINTED | Exterior Wall/Cover: | WOOD SIDING | | Floor Covering: | VINYL 100% | Floor Structure: | WOOD W/SUBFLOOR | | Foundation: | CONCRETE | Heating: | RADIANT FLOOR | | Interior Finish: | DRYWALL PAINT | Plumbing Fixture Cnt: | 7 | | Roof Slope: | 3" IN 12" | Roof Structure/Cover: | CJ ALUMINIUM HEAVY |
|
| | Type | Description | Class CD | Sub Class CD | Year Built | Area |
| | BAS | BASE/MAIN FLOOR | 3 | 0 | 2023 | 720.0 |
| | OWR | OPEN WOOD PORCH W/STEPS/ROOF | 3 | 0 | 2023 | 224.0 |
Sketch
Property Image
Land
| 1 | MB | MEDIUM BANK | 0.0000 | 0.00 | 60.00 | 0.00 | 1.00 | $1,075,000 | $0 |
| 2 | 55 | TIDES | 0.0000 | 0.00 | 120.00 | 0.00 | 1.00 | $1,200 | $0 |
Roll Value History
| 2026 | N/A | N/A | N/A | N/A | N/A |
| 2025 | $468,235 | $1,076,200 | $0 | $1,544,435 | $1,544,435 |
| 2024 | $475,429 | $1,001,200 | $0 | $1,476,629 | $1,476,629 |
| 2023 | $473,440 | $921,200 | $0 | $1,394,640 | $1,394,640 |
| 2022 | $254,918 | $841,200 | $0 | $1,096,118 | $1,096,118 |
| 2021 | $223,968 | $676,200 | $0 | $900,168 | $900,168 |
| 2020 | $218,388 | $601,200 | $0 | $819,588 | $819,588 |
| 2019 | $112,644 | $601,200 | $0 | $713,844 | $713,844 |
| 2018 | $113,023 | $501,200 | $0 | $614,223 | $614,223 |
| 2017 | $113,780 | $451,200 | $0 | $564,980 | $468,169 |
| 2016 | $90,397 | $451,200 | $0 | $541,597 | $468,169 |
| 2015 | $90,397 | $451,200 | $0 | $541,597 | $187,268 |
| 2014 | $90,397 | $451,200 | $0 | $541,597 | $398,169 |
| 2013 | $90,397 | $451,200 | $0 | $541,597 | $398,169 |
| 2012 | $90,397 | $377,772 | $0 | $468,169 | $398,169 |
| 2011 | $90,397 | $397,592 | $0 | $487,989 | $487,989 |
| 2010 | $86,787 | $397,592 | $0 | $484,379 | $484,379 |
| 2009 | $91,437 | $428,760 | $0 | $520,197 | $520,197 |
| 2008 | $93,583 | $428,760 | $0 | $522,343 | $522,343 |
| 2007 | $95,994 | $428,792 | $0 | $524,786 | $524,786 |
Deed and Sales History
| 1 | 08/15/2019 | WD | Warranty Deed | HARE, JOHN H | NILES, DENISE A | | | $935,000.00 | 39990 | 4470081 |
| 2 | 03/21/2004 | 5 | DNU - Marriage License/Name Change | HARE, JACK H | HARE, JOHN H | | | $0.00 | 41107 | 4094923 |
| 3 | 09/01/1985 | WD | Warranty Deed | WILLIAMSON, G F | HARE, JACK H | | | $110,000.00 | 52469 | 85009752 |
| 4 | 11/01/1984 | QCD | Quit Claim Deed | WILLIAMSON, G F | WILLIAMSON, G F | | | $0.00 | 43649 | 84006922 |
| 5 | 07/01/1982 | OTHER | Other - Misc. Documents | Unknown | WILLIAMSON, G F | | | $0.00 | 59556 | 0 |
Payout Agreement
| No payout information available.. |