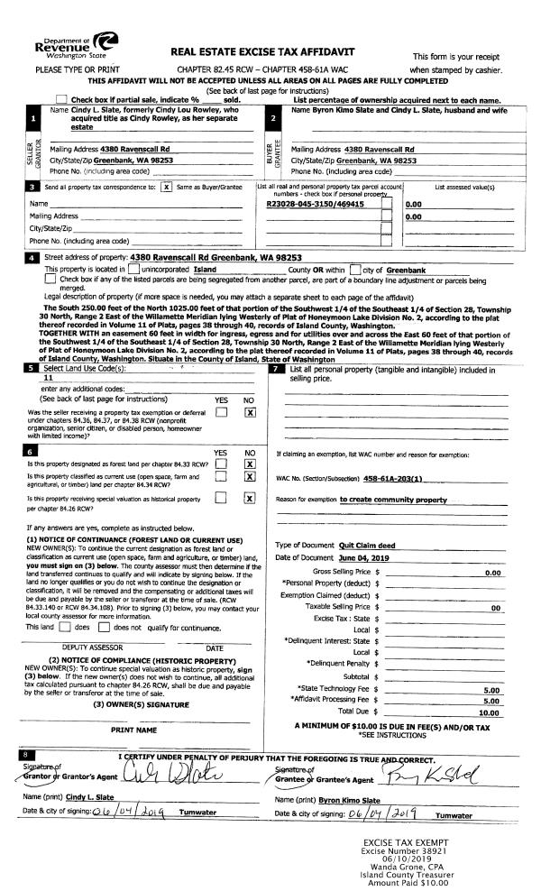
Property
Account |
| Property ID: | 423535 | Abbreviated Legal Description: | UTSALADY BCH LOT 21 INCL ADJ TIDES |
| Geographic ID: | S8350-00-00021-0 | Agent Code: | |
| Type: | Real | | |
| Tax Area: | 510 - APPRAISER-Stan/Cam Schl Dist, improved & 1 acre or less | Land Use Code | 11 |
| Open Space: | N | DFL | N |
| Historic Property: | N | Remodel Property: | N |
| Multi-Family Redevelopment: | N | | |
| Township: | | Section: | |
| Range: | |
Location |
| Address: | 236 W NORTH CAMANO DR CAMANO ISLAND, WA 98282 | Mapsco: | |
| Neighborhood: | North Camano | Map ID: | 560 |
| Neighborhood CD: | 06-C |
Owner |
| Name: | POTTER TTEE, CYNTHIA L | Owner ID: | 316540 |
| Mailing Address: | 926 N 81ST ST SEATTLE, WA 98103 | % Ownership: | 100.0000000000% |
| | | Exemptions: | |
Taxes and Assessment Details
Values
| (+) Improvement Homesite Value: | + | $0 | |
| (+) Improvement Non-Homesite Value: | + | $155,005 | |
| (+) Land Homesite Value: | + | $0 | |
| (+) Land Non-Homesite Value: | + | $900,600 | |
| (+) Curr Use (HS): | + | $0 | $0 |
| (+) Curr Use (NHS): | + | $0 | $0 |
| | | -------------------------- | |
| (=) Market Value: | = | $1,055,605 | |
| (–) Productivity Loss: | – | $0 | |
| | | -------------------------- | |
| (=) Subtotal: | = | $1,055,605 | |
| (+) Senior Appraised Value: | + | $0 | |
| (+) Non-Senior Appraised Value: | + | $1,055,605 | |
| | | -------------------------- | |
| (=) Total Appraised Value: | = | $1,055,605 | |
| (–) Senior Exemption Loss: | – | $0 | |
| (–) Exemption Loss: | – | $0 | |
| | | -------------------------- | |
| (=) Taxable Value: | = | $1,055,605 | |
Taxing Jurisdiction
| Owner: | POTTER TTEE, CYNTHIA L | | |
| % Ownership: | 100.0000000000% | | |
| Total Value: | $1,055,605 | | |
| Tax Area: | 510 - APPRAISER-Stan/Cam Schl Dist, improved & 1 acre or less |
| CF | Conservation Futures | 0.0316035091 | $1,055,605 | $1,055,605 | $33.36 | | |
| EMS1 | Fire & Rescue Dist #1 Camano GEN (EMS) | 0.3677864386 | $1,055,605 | $1,055,605 | $388.24 | | |
| FIRE1 | Fire & Rescue Dist #1 Camano GEN | 1.2502910536 | $1,055,605 | $1,055,605 | $1,319.81 | | |
| FIRE1BOND | Fire & Rescue Dist #1 Camano BOND | 0.1570001679 | $1,055,605 | $1,055,605 | $165.73 | | |
| CE | County Current Expense | 0.3708482477 | $1,055,605 | $1,055,605 | $391.47 | | |
| CR | County Roads | 0.4584763726 | $1,055,605 | $1,055,605 | $483.97 | | |
| LCIB | Library Sno-Isle BOND (Camano Island) | 0.0396325772 | $1,055,605 | $1,055,605 | $41.84 | | |
| LIB | Library Sno-Isle GEN | 0.3153421757 | $1,055,605 | $1,055,605 | $332.88 | | |
| SCH205_401 | School 205-401 Enrichment | 1.2698420524 | $1,055,605 | $1,055,605 | $1,340.45 | | |
| SCH205BOND | School 205-401 BOND | 0.9396497583 | $1,055,605 | $1,055,605 | $991.90 | | |
| ST | State School | 1.3035497053 | $1,055,605 | $1,055,605 | $1,376.03 | | |
| ST2 | State School Part 2 | 0.8169543533 | $1,055,605 | $1,055,605 | $862.38 | | |
| | Total Tax Rate: | 7.3209764117 | | | | | |
| | | | | Taxes w/Current Exemptions: | $7,728.06 | | |
| | | | | Taxes w/o Exemptions: | $7,728.06 | | |
Improvement / Building
| Improvement #1: | RESIDENTIAL | State Code: | Y | 1450.0 sqft | Value: | $155,005 |
| Bathrooms: | 2 | Bedrooms: | 2 | | Ceiling: | BEAM PAINTED | Exterior Wall/Cover: | WOOD SIDING | | Floor Covering: | CARPET/VINYL 80-20 | Floor Structure: | WOOD W/SUBFLOOR | | Foundation: | CONCRETE | Heating: | FHA ELECTRIC | | Interior Finish: | DRYWALL PAINT | Plumbing Fixture Cnt: | 10 | | Roof Slope: | 4" IN 12" | Roof Structure/Cover: | CJ ASPHALT |
|
| | Type | Description | Class CD | Sub Class CD | Year Built | Area |
| | BAS | BASE/MAIN FLOOR | 3 | 0 | 1953 | 725.0 |
| | DWN | DOWNSTAIRS LIVING AREA | 3 | 0 | 1953 | 725.0 |
| | OP1 | OPEN PORCH SLAB | 3 | 0 | 1953 | 232.0 |
| | UTY | STORAGE/UTILITY | 3 | 0 | 1953 | 60.0 |
| | OWP | OPEN WOOD PORCH W/STEPS | 3 | 0 | 1953 | 232.0 |
Sketch
Property Image
Land
| 1 | MB | MEDIUM BANK | 0.0000 | 0.00 | 60.00 | 0.00 | 1.00 | $900,000 | $0 |
| 2 | 55 | TIDES | 0.0000 | 0.00 | 60.00 | 0.00 | 1.00 | $600 | $0 |
Roll Value History
| 2026 | N/A | N/A | N/A | N/A | N/A |
| 2025 | $155,005 | $900,600 | $0 | $1,055,605 | $1,055,605 |
| 2024 | $154,848 | $825,600 | $0 | $980,448 | $980,448 |
| 2023 | $157,419 | $750,600 | $0 | $908,019 | $908,019 |
| 2022 | $135,562 | $680,600 | $0 | $816,162 | $816,162 |
| 2021 | $131,156 | $550,600 | $0 | $681,756 | $681,756 |
| 2020 | $127,377 | $500,600 | $0 | $627,977 | $627,977 |
| 2019 | $85,858 | $500,600 | $0 | $586,458 | $586,458 |
| 2018 | $86,208 | $475,600 | $0 | $561,808 | $561,808 |
| 2017 | $86,909 | $450,600 | $0 | $537,509 | $537,509 |
| 2016 | $83,843 | $450,600 | $0 | $534,443 | $534,443 |
| 2015 | $85,314 | $450,600 | $0 | $535,914 | $535,914 |
| 2014 | $86,786 | $450,600 | $0 | $537,386 | $537,386 |
| 2013 | $88,256 | $450,600 | $0 | $538,856 | $538,856 |
| 2012 | $89,728 | $279,360 | $0 | $369,088 | $369,088 |
| 2011 | $91,199 | $294,032 | $0 | $385,231 | $385,231 |
| 2010 | $104,001 | $294,032 | $0 | $398,033 | $398,033 |
| 2009 | $108,492 | $294,032 | $0 | $402,524 | $402,524 |
| 2008 | $108,684 | $294,032 | $0 | $402,716 | $402,716 |
| 2007 | $110,301 | $293,612 | $0 | $403,913 | $403,913 |
Deed and Sales History
| 1 | 05/21/2025 | TRUSTEED | Trustee's Deed | SANFORD TTEE, MARILYN J | POTTER TTEE, CYNTHIA L | | | $0.00 | 63508 | 4586051 |
| 2 | 03/17/2022 | TRUSTEED | Trustee's Deed | SANFORD TTEE, THOMAS B | SANFORD TTEE, MARILYN J | | | $0.00 | 52344 | 4541718 |
| 3 | 04/25/2019 | SPLTDWARDE | Special Limited Warranty Deed | SANFORD, THOMAS B | SANFORD TTEE, THOMAS B | | | $0.00 | 38209 | 4462017 |
| 4 | 06/10/2004 | WD | Warranty Deed | SANFORD, THOMAS B | SANFORD, THOMAS B | | | $216,834.00 | 42513 | 4103298 |
| 5 | 06/01/1992 | WD | Warranty Deed | RUGGLES, FLORA J | SANFORD, THOMAS B | | | $245,000.00 | 22306 | 92011159 |
| 6 | 04/01/1986 | WD | Warranty Deed | RUGGLES, FLORA J | RUGGLES, FLORA J | | | $0.00 | 60938 | 86007179 |
| 7 | 04/01/1986 | WD | Warranty Deed | RUGGLES, FLORA J | RUGGLES, FLORA J | | | $0.00 | 60939 | 86007180 |
| 8 | 04/01/1984 | 2 | DNU - Superior Court Case | RUGGLES, GEORGE L | RUGGLES, FLORA J | | | $0.00 | 60586 | 423858 |
| 9 | 01/01/1900 | OTHER | Other - Misc. Documents | Unknown | RUGGLES, GEORGE L | | | $0.00 | 0 | 0 |
Payout Agreement
| No payout information available.. |