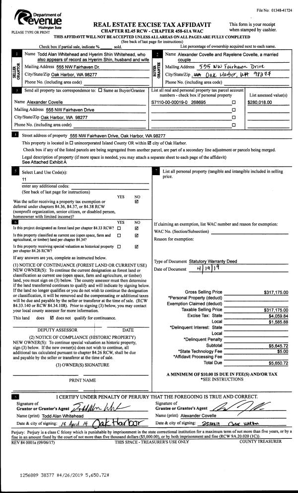
Property
Account |
| Property ID: | 423571 | Abbreviated Legal Description: | UTSALADY BCH LOT 25 INCL ADJ TIDES SEGD LOT 26 TO LOT 27 5/84 |
| Geographic ID: | S8350-00-00025-0 | Agent Code: | |
| Type: | Real | | |
| Tax Area: | 510 - APPRAISER-Stan/Cam Schl Dist, improved & 1 acre or less | Land Use Code | 11 |
| Open Space: | N | DFL | N |
| Historic Property: | N | Remodel Property: | N |
| Multi-Family Redevelopment: | N | | |
| Township: | | Section: | |
| Range: | |
Location |
| Address: | 250 FAY LN CAMANO ISLAND, WA 98282 | Mapsco: | |
| Neighborhood: | North Camano | Map ID: | 560 |
| Neighborhood CD: | 06-C |
Owner |
| Name: | THOMPSON TTEE, LAWRENCE C | Owner ID: | 289942 |
| Mailing Address: | JANE C THOMPSON, TTEE 101 101ST AVE SE APT 202A BELLEVUE, WA 98004 | % Ownership: | 100.0000000000% |
| | | Exemptions: | |
Taxes and Assessment Details
Values
| (+) Improvement Homesite Value: | + | $0 | |
| (+) Improvement Non-Homesite Value: | + | $413,970 | |
| (+) Land Homesite Value: | + | $0 | |
| (+) Land Non-Homesite Value: | + | $900,600 | |
| (+) Curr Use (HS): | + | $0 | $0 |
| (+) Curr Use (NHS): | + | $0 | $0 |
| | | -------------------------- | |
| (=) Market Value: | = | $1,314,570 | |
| (–) Productivity Loss: | – | $0 | |
| | | -------------------------- | |
| (=) Subtotal: | = | $1,314,570 | |
| (+) Senior Appraised Value: | + | $0 | |
| (+) Non-Senior Appraised Value: | + | $1,314,570 | |
| | | -------------------------- | |
| (=) Total Appraised Value: | = | $1,314,570 | |
| (–) Senior Exemption Loss: | – | $0 | |
| (–) Exemption Loss: | – | $0 | |
| | | -------------------------- | |
| (=) Taxable Value: | = | $1,314,570 | |
Taxing Jurisdiction
| Owner: | THOMPSON TTEE, LAWRENCE C | | |
| % Ownership: | 100.0000000000% | | |
| Total Value: | $1,314,570 | | |
| Tax Area: | 510 - APPRAISER-Stan/Cam Schl Dist, improved & 1 acre or less |
| CF | Conservation Futures | 0.0316035091 | $1,314,570 | $1,314,570 | $41.55 | | |
| EMS1 | Fire & Rescue Dist #1 Camano GEN (EMS) | 0.3677864386 | $1,314,570 | $1,314,570 | $483.48 | | |
| FIRE1 | Fire & Rescue Dist #1 Camano GEN | 1.2502910536 | $1,314,570 | $1,314,570 | $1,643.60 | | |
| FIRE1BOND | Fire & Rescue Dist #1 Camano BOND | 0.1570001679 | $1,314,570 | $1,314,570 | $206.39 | | |
| CE | County Current Expense | 0.3708482477 | $1,314,570 | $1,314,570 | $487.51 | | |
| CR | County Roads | 0.4584763726 | $1,314,570 | $1,314,570 | $602.70 | | |
| LCIB | Library Sno-Isle BOND (Camano Island) | 0.0396325772 | $1,314,570 | $1,314,570 | $52.10 | | |
| LIB | Library Sno-Isle GEN | 0.3153421757 | $1,314,570 | $1,314,570 | $414.54 | | |
| SCH205_401 | School 205-401 Enrichment | 1.2698420524 | $1,314,570 | $1,314,570 | $1,669.30 | | |
| SCH205BOND | School 205-401 BOND | 0.9396497583 | $1,314,570 | $1,314,570 | $1,235.24 | | |
| ST | State School | 1.3035497053 | $1,314,570 | $1,314,570 | $1,713.61 | | |
| ST2 | State School Part 2 | 0.8169543533 | $1,314,570 | $1,314,570 | $1,073.94 | | |
| | Total Tax Rate: | 7.3209764117 | | | | | |
| | | | | Taxes w/Current Exemptions: | $9,623.96 | | |
| | | | | Taxes w/o Exemptions: | $9,623.96 | | |
Improvement / Building
| Improvement #1: | RESIDENTIAL | State Code: | Y | 2120.0 sqft | Value: | $413,970 |
| Bathrooms: | 2.5 | Bedrooms: | 2 | | Ceiling: | TONGUE & GROOVE | Exterior Wall/Cover: | SHINGLE | | Floor Covering: | CERAMIC TILE/CPT 40-60 | Floor Structure: | WOOD W/SUBFLOOR | | Foundation: | CONCRETE | Heating: | WALL HEAT ELECTRIC | | Interior Finish: | DRYWALL PAINT | Plumbing Fixture Cnt: | 12 | | Roof Slope: | 12" IN 12" | Roof Structure/Cover: | CJ ASPHALT |
|
| | Type | Description | Class CD | Sub Class CD | Year Built | Area |
| | BAS | BASE/MAIN FLOOR | 4 | 0 | 1958 | 928.0 |
| | UPH | HALF STORY | 4 | 0 | 1958 | 336.0 |
| | DWN | DOWNSTAIRS LIVING AREA | 4 | 0 | 1958 | 856.0 |
| | OP1 | OPEN PORCH SLAB | 4 | 0 | 1958 | 570.0 |
| | DGR | DETACHED GARAGE | 4 | 0 | 1958 | 480.0 |
| | OWP | OPEN WOOD PORCH W/STEPS | 4 | 0 | 1958 | 210.0 |
| | OWP | OPEN WOOD PORCH W/STEPS | 4 | 0 | 1958 | 475.4 |
| | OWC | OPEN WOOD PORCH W/STEPS/ROOF/C | 4 | 0 | 1958 | 64.0 |
Sketch
Property Image
Land
| 1 | MB | MEDIUM BANK | 0.0000 | 0.00 | 60.00 | 0.00 | 1.00 | $900,000 | $0 |
| 2 | 55 | TIDES | 0.0000 | 0.00 | 60.00 | 0.00 | 1.00 | $600 | $0 |
Roll Value History
| 2026 | N/A | N/A | N/A | N/A | N/A |
| 2025 | $413,970 | $900,600 | $0 | $1,314,570 | $1,314,570 |
| 2024 | $419,471 | $825,600 | $0 | $1,245,071 | $1,245,071 |
| 2023 | $424,971 | $750,600 | $0 | $1,175,571 | $1,175,571 |
| 2022 | $389,793 | $680,600 | $0 | $1,070,393 | $1,070,393 |
| 2021 | $343,290 | $550,600 | $0 | $893,890 | $893,890 |
| 2020 | $334,836 | $500,600 | $0 | $835,436 | $835,436 |
| 2019 | $251,678 | $500,600 | $0 | $752,278 | $752,278 |
| 2018 | $252,452 | $475,600 | $0 | $728,052 | $728,052 |
| 2017 | $250,518 | $450,600 | $0 | $701,118 | $701,118 |
| 2016 | $253,573 | $450,600 | $0 | $704,173 | $704,173 |
| 2015 | $170,032 | $450,600 | $0 | $620,632 | $620,632 |
| 2014 | $172,363 | $450,600 | $0 | $622,963 | $622,963 |
| 2013 | $174,692 | $450,600 | $0 | $625,292 | $625,292 |
| 2012 | $177,021 | $452,487 | $0 | $629,508 | $629,508 |
| 2011 | $179,349 | $476,270 | $0 | $655,619 | $655,619 |
| 2010 | $184,894 | $476,270 | $0 | $661,164 | $661,164 |
| 2009 | $190,484 | $511,018 | $0 | $701,502 | $701,502 |
| 2008 | $192,906 | $511,018 | $0 | $703,924 | $703,924 |
| 2007 | $195,331 | $293,612 | $0 | $488,943 | $488,943 |
Deed and Sales History
| 1 | 05/21/2019 | QCD | Quit Claim Deed | THOMPSON, LAWRENCE C | THOMPSON TTEE, LAWRENCE C | | | $0.00 | 38685 | 4464093 |
| 2 | 05/21/2019 | QCD | Quit Claim Deed | THOMPSON, JANE C | THOMPSON, LAWRENCE C | | | $0.00 | 38684 | 4464088 |
| 3 | 09/13/2012 | PRD | Personal Representatives Deed | MAVOR, JANE K | THOMPSON, JANE C | | | | 8215 | 4319236 |
| 4 | 12/31/2001 | PRD | Personal Representatives Deed | MAVOR, F D | MAVOR, JANE K | | | $0.00 | 20431 | 4010348 |
| 5 | 05/01/1984 | OTHER | Other - Misc. Documents | Unknown | MAVOR, F D | | | $0.00 | 60628 | 0 |
Payout Agreement
| No payout information available.. |