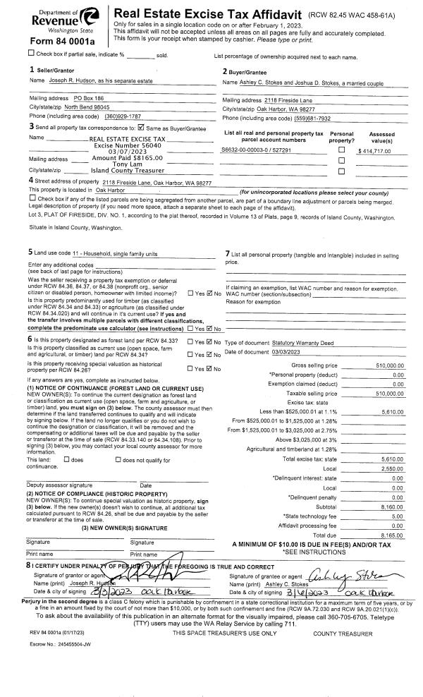
Property
Account |
| Property ID: | 423599 | Abbreviated Legal Description: | UTSALADY BCH LOT 28 INCL ADJ TIDES |
| Geographic ID: | S8350-00-00028-0 | Agent Code: | |
| Type: | Real | | |
| Tax Area: | 510 - APPRAISER-Stan/Cam Schl Dist, improved & 1 acre or less | Land Use Code | 11 |
| Open Space: | N | DFL | N |
| Historic Property: | N | Remodel Property: | N |
| Multi-Family Redevelopment: | N | | |
| Township: | | Section: | |
| Range: | |
Location |
| Address: | 260 FAY LN CAMANO ISLAND, WA 98282 | Mapsco: | |
| Neighborhood: | North Camano | Map ID: | 560 |
| Neighborhood CD: | 06-C |
Owner |
| Name: | MASTERS, JERRY D | Owner ID: | 273001 |
| Mailing Address: | 206 SUNSET AVE N EDMONDS, WA 98020 | % Ownership: | 100.0000000000% |
| | | Exemptions: | |
Taxes and Assessment Details
Values
| (+) Improvement Homesite Value: | + | $0 | |
| (+) Improvement Non-Homesite Value: | + | $1,078,084 | |
| (+) Land Homesite Value: | + | $0 | |
| (+) Land Non-Homesite Value: | + | $900,600 | |
| (+) Curr Use (HS): | + | $0 | $0 |
| (+) Curr Use (NHS): | + | $0 | $0 |
| | | -------------------------- | |
| (=) Market Value: | = | $1,978,684 | |
| (–) Productivity Loss: | – | $0 | |
| | | -------------------------- | |
| (=) Subtotal: | = | $1,978,684 | |
| (+) Senior Appraised Value: | + | $0 | |
| (+) Non-Senior Appraised Value: | + | $1,978,684 | |
| | | -------------------------- | |
| (=) Total Appraised Value: | = | $1,978,684 | |
| (–) Senior Exemption Loss: | – | $0 | |
| (–) Exemption Loss: | – | $0 | |
| | | -------------------------- | |
| (=) Taxable Value: | = | $1,978,684 | |
Taxing Jurisdiction
| Owner: | MASTERS, JERRY D | | |
| % Ownership: | 100.0000000000% | | |
| Total Value: | $1,978,684 | | |
| Tax Area: | 510 - APPRAISER-Stan/Cam Schl Dist, improved & 1 acre or less |
| CF | Conservation Futures | 0.0316035091 | $1,978,684 | $1,978,684 | $62.53 | | |
| EMS1 | Fire & Rescue Dist #1 Camano GEN (EMS) | 0.3677864386 | $1,978,684 | $1,978,684 | $727.73 | | |
| FIRE1 | Fire & Rescue Dist #1 Camano GEN | 1.2502910536 | $1,978,684 | $1,978,684 | $2,473.93 | | |
| FIRE1BOND | Fire & Rescue Dist #1 Camano BOND | 0.1570001679 | $1,978,684 | $1,978,684 | $310.65 | | |
| CE | County Current Expense | 0.3708482477 | $1,978,684 | $1,978,684 | $733.79 | | |
| CR | County Roads | 0.4584763726 | $1,978,684 | $1,978,684 | $907.18 | | |
| LCIB | Library Sno-Isle BOND (Camano Island) | 0.0396325772 | $1,978,684 | $1,978,684 | $78.42 | | |
| LIB | Library Sno-Isle GEN | 0.3153421757 | $1,978,684 | $1,978,684 | $623.96 | | |
| SCH205_401 | School 205-401 Enrichment | 1.2698420524 | $1,978,684 | $1,978,684 | $2,512.62 | | |
| SCH205BOND | School 205-401 BOND | 0.9396497583 | $1,978,684 | $1,978,684 | $1,859.27 | | |
| ST | State School | 1.3035497053 | $1,978,684 | $1,978,684 | $2,579.31 | | |
| ST2 | State School Part 2 | 0.8169543533 | $1,978,684 | $1,978,684 | $1,616.49 | | |
| | Total Tax Rate: | 7.3209764117 | | | | | |
| | | | | Taxes w/Current Exemptions: | $14,485.88 | | |
| | | | | Taxes w/o Exemptions: | $14,485.88 | | |
Improvement / Building
| Improvement #1: | RESIDENTIAL | State Code: | Y | 3348.0 sqft | Value: | $1,078,084 |
| Bathrooms: | 3.5 | Bedrooms: | 2 | | Ceiling: | TONGUE & GROOVE | Exterior Wall/Cover: | SHINGLE | | Floor Covering: | SLATE | Floor Structure: | WOOD W/SUBFLOOR | | Foundation: | CONCRETE BLOCKS | Heating: | RADIANT FLOOR | | Interior Finish: | DRYWALL PAINT | Plumbing Fixture Cnt: | 20 | | Roof Slope: | 12" IN 12" | Roof Structure/Cover: | STEEL TERNE |
|
| | Type | Description | Class CD | Sub Class CD | Year Built | Area |
| | BAS | BASE/MAIN FLOOR | 6 | 0 | 1952 | 1076.0 |
| | OP2 | OPEN PORCH W/STEPS | 6 | 0 | 1952 | 108.0 |
| | BIG | BUILT IN GARAGE | 6 | 0 | 1952 | 500.0 |
| | UPS | UPPER STORY | 6 | 0 | 1952 | 400.0 |
| | UPS | UPPER STORY | 6 | 0 | 1952 | 720.0 |
| | BAI | BALCONY IRON RAIL | 6 | 0 | 1952 | 80.7 |
| | OWP | OPEN WOOD PORCH W/STEPS | 6 | 0 | 1952 | 1056.0 |
| | DWN | DOWNSTAIRS LIVING AREA | 6 | 0 | 1952 | 1152.0 |
| | OWP | OPEN WOOD PORCH W/STEPS | 6 | 0 | 1952 | 918.4 |
Sketch
Property Image
Land
| 1 | MB | MEDIUM BANK | 0.4085 | 17794.26 | 60.00 | 0.00 | 1.00 | $900,000 | $0 |
| 2 | 55 | TIDES | 0.0000 | 0.00 | 60.00 | 0.00 | 1.00 | $600 | $0 |
Roll Value History
| 2026 | N/A | N/A | N/A | N/A | N/A |
| 2025 | $1,078,084 | $900,600 | $0 | $1,978,684 | $1,978,684 |
| 2024 | $1,069,143 | $825,600 | $0 | $1,894,743 | $1,894,743 |
| 2023 | $1,081,539 | $750,600 | $0 | $1,832,139 | $1,832,139 |
| 2022 | $990,601 | $680,600 | $0 | $1,671,201 | $1,671,201 |
| 2021 | $871,145 | $550,600 | $0 | $1,421,745 | $1,421,745 |
| 2020 | $845,623 | $500,600 | $0 | $1,346,223 | $1,346,223 |
| 2019 | $774,788 | $500,600 | $0 | $1,275,388 | $1,275,388 |
| 2018 | $776,912 | $475,600 | $0 | $1,252,512 | $1,252,512 |
| 2017 | $760,374 | $450,600 | $0 | $1,210,974 | $1,210,974 |
| 2016 | $768,639 | $450,600 | $0 | $1,219,239 | $1,219,239 |
| 2015 | $355,590 | $450,600 | $0 | $806,190 | $806,190 |
| 2014 | $359,926 | $450,600 | $0 | $810,526 | $810,526 |
| 2013 | $364,262 | $450,600 | $0 | $814,862 | $814,862 |
| 2012 | $368,600 | $452,487 | $0 | $821,087 | $821,087 |
| 2011 | $372,936 | $476,270 | $0 | $849,206 | $849,206 |
| 2010 | $353,772 | $476,270 | $0 | $830,042 | $830,042 |
| 2009 | $237,393 | $511,018 | $0 | $748,411 | $748,411 |
| 2008 | $240,425 | $511,018 | $0 | $751,443 | $751,443 |
| 2007 | $243,460 | $510,598 | $0 | $754,058 | $754,058 |
Deed and Sales History
| 1 | 12/07/2015 | WD | Warranty Deed | MITCHELL, WILLIAM / KATHRYN | MASTERS, JERRY D | | | $1,299,500.00 | 22409 | 4390725 |
| 2 | 03/01/1997 | WD | Warranty Deed | MILLER, FRED J | MITCHELL, WILLIAM/KATHRYN | | | $215,000.00 | 70901 | 97004143 |
| 3 | 02/01/1982 | TRUSTEED | Trustee's Deed | VEENHUIZEN, BEN E | MILLER, FRED J | | | $70,000.00 | 20523 | 393765 |
| 4 | 01/01/1900 | OTHER | Other - Misc. Documents | Unknown | VEENHUIZEN, BEN E | | | $0.00 | 0 | 0 |
Payout Agreement
| No payout information available.. |