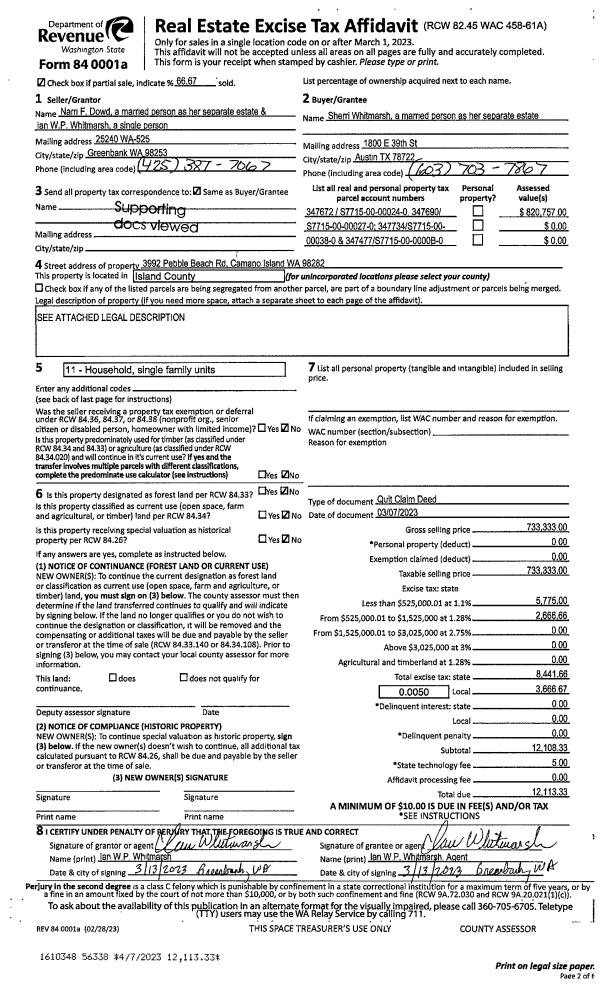
Property
Account |
| Property ID: | 423688 | Abbreviated Legal Description: | UTSA PT TR LOT 9 TGW & SUB EZ AF#96007941 |
| Geographic ID: | S8355-00-00009-0 | Agent Code: | |
| Type: | Real | | |
| Tax Area: | 510 - APPRAISER-Stan/Cam Schl Dist, improved & 1 acre or less | Land Use Code | 11 |
| Open Space: | N | DFL | N |
| Historic Property: | N | Remodel Property: | N |
| Multi-Family Redevelopment: | N | | |
| Township: | | Section: | |
| Range: | |
Location |
| Address: | 358 SHORE DR CAMANO ISLAND, WA 98282 | Mapsco: | |
| Neighborhood: | North Camano | Map ID: | 550 |
| Neighborhood CD: | 06-C |
Owner |
| Name: | BULGER, JOSEPH | Owner ID: | 277856 |
| Mailing Address: | CONNIE BULGER 358 WEST SHORE DR CAMANO ISLAND, WA 98282 | % Ownership: | 100.0000000000% |
| | | Exemptions: | |
Taxes and Assessment Details
Values
| (+) Improvement Homesite Value: | + | $0 | |
| (+) Improvement Non-Homesite Value: | + | $287,485 | |
| (+) Land Homesite Value: | + | $0 | |
| (+) Land Non-Homesite Value: | + | $1,425,600 | |
| (+) Curr Use (HS): | + | $0 | $0 |
| (+) Curr Use (NHS): | + | $0 | $0 |
| | | -------------------------- | |
| (=) Market Value: | = | $1,713,085 | |
| (–) Productivity Loss: | – | $0 | |
| | | -------------------------- | |
| (=) Subtotal: | = | $1,713,085 | |
| (+) Senior Appraised Value: | + | $0 | |
| (+) Non-Senior Appraised Value: | + | $1,713,085 | |
| | | -------------------------- | |
| (=) Total Appraised Value: | = | $1,713,085 | |
| (–) Senior Exemption Loss: | – | $0 | |
| (–) Exemption Loss: | – | $0 | |
| | | -------------------------- | |
| (=) Taxable Value: | = | $1,713,085 | |
Taxing Jurisdiction
| Owner: | BULGER, JOSEPH | | |
| % Ownership: | 100.0000000000% | | |
| Total Value: | $1,713,085 | | |
| Tax Area: | 510 - APPRAISER-Stan/Cam Schl Dist, improved & 1 acre or less |
| CF | Conservation Futures | 0.0316035091 | $1,713,085 | $1,713,085 | $54.14 | | |
| EMS1 | Fire & Rescue Dist #1 Camano GEN (EMS) | 0.3677864386 | $1,713,085 | $1,713,085 | $630.05 | | |
| FIRE1 | Fire & Rescue Dist #1 Camano GEN | 1.2502910536 | $1,713,085 | $1,713,085 | $2,141.85 | | |
| FIRE1BOND | Fire & Rescue Dist #1 Camano BOND | 0.1570001679 | $1,713,085 | $1,713,085 | $268.95 | | |
| CE | County Current Expense | 0.3708482477 | $1,713,085 | $1,713,085 | $635.29 | | |
| CR | County Roads | 0.4584763726 | $1,713,085 | $1,713,085 | $785.41 | | |
| LCIB | Library Sno-Isle BOND (Camano Island) | 0.0396325772 | $1,713,085 | $1,713,085 | $67.89 | | |
| LIB | Library Sno-Isle GEN | 0.3153421757 | $1,713,085 | $1,713,085 | $540.21 | | |
| SCH205_401 | School 205-401 Enrichment | 1.2698420524 | $1,713,085 | $1,713,085 | $2,175.35 | | |
| SCH205BOND | School 205-401 BOND | 0.9396497583 | $1,713,085 | $1,713,085 | $1,609.70 | | |
| ST | State School | 1.3035497053 | $1,713,085 | $1,713,085 | $2,233.09 | | |
| ST2 | State School Part 2 | 0.8169543533 | $1,713,085 | $1,713,085 | $1,399.51 | | |
| | Total Tax Rate: | 7.3209764117 | | | | | |
| | | | | Taxes w/Current Exemptions: | $12,541.44 | | |
| | | | | Taxes w/o Exemptions: | $12,541.44 | | |
Improvement / Building
| Improvement #1: | RESIDENTIAL | State Code: | Y | 2126.0 sqft | Value: | $287,485 |
| Bathrooms: | 2 | Bedrooms: | 2 | | Ceiling: | DRYWALL PAINTED | Cooling: | HEAT PUMP/CONV/V | | Exterior Wall/Cover: | VINYL | Floor Covering: | CARPET/VINYL 80-20 | | Floor Structure: | WOOD W/SUBFLOOR | Foundation: | CONCRETE | | Interior Finish: | DRYWALL PAINT | Plumbing Fixture Cnt: | 9 | | Roof Slope: | 6" IN 12" | Roof Structure/Cover: | CJ ASPHALT |
|
| | Type | Description | Class CD | Sub Class CD | Year Built | Area |
| | BAS | BASE/MAIN FLOOR | 3 | 0 | 1930 | 1292.0 |
| | OP2 | OPEN PORCH W/STEPS | 3 | 0 | 1930 | 72.0 |
| | UPS | UPPER STORY | 3 | 0 | 1930 | 450.0 |
| | UPS | UPPER STORY | 3 | 0 | 1930 | 384.0 |
| | OWP | OPEN WOOD PORCH W/STEPS | 3 | 0 | 1930 | 72.0 |
| | OWP | OPEN WOOD PORCH W/STEPS | 3 | 0 | 1930 | 460.0 |
| | DGR | DETACHED GARAGE | 3 | 0 | 1930 | 1048.0 |
Sketch
Property Image
Land
| 1 | LB | LOW BANK | 0.0000 | 0.00 | 60.00 | 0.00 | 1.00 | $1,425,000 | $0 |
| 2 | 55 | TIDES | 0.0000 | 0.00 | 60.00 | 0.00 | 1.00 | $600 | $0 |
Roll Value History
| 2026 | N/A | N/A | N/A | N/A | N/A |
| 2025 | $287,485 | $1,425,600 | $0 | $1,713,085 | $1,713,085 |
| 2024 | $291,760 | $1,350,600 | $0 | $1,642,360 | $1,642,360 |
| 2023 | $296,035 | $1,275,600 | $0 | $1,571,635 | $1,571,635 |
| 2022 | $260,326 | $1,160,600 | $0 | $1,420,926 | $1,420,926 |
| 2021 | $229,720 | $775,600 | $0 | $1,005,320 | $1,005,320 |
| 2020 | $224,955 | $700,600 | $0 | $925,555 | $925,555 |
| 2019 | $174,101 | $700,600 | $0 | $874,701 | $874,701 |
| 2018 | $174,722 | $685,600 | $0 | $860,322 | $860,322 |
| 2017 | $175,961 | $685,600 | $0 | $861,561 | $861,561 |
| 2016 | $178,819 | $685,600 | $0 | $864,419 | $864,419 |
| 2015 | $181,302 | $600,600 | $0 | $781,902 | $781,902 |
| 2014 | $183,786 | $600,600 | $0 | $784,386 | $784,386 |
| 2013 | $186,271 | $600,600 | $0 | $786,871 | $786,871 |
| 2012 | $188,753 | $528,990 | $0 | $717,743 | $717,743 |
| 2011 | $191,237 | $556,800 | $0 | $748,037 | $748,037 |
| 2010 | $179,723 | $556,800 | $0 | $736,523 | $736,523 |
| 2009 | $187,468 | $627,252 | $0 | $814,720 | $814,720 |
| 2008 | $189,786 | $757,959 | $0 | $947,745 | $947,745 |
| 2007 | $192,106 | $630,540 | $0 | $822,646 | $822,646 |
Deed and Sales History
| 1 | 12/02/2016 | WD | Warranty Deed | LYNN, EVELYN L | BULGER, JOSEPH | | | $800,000.00 | 27299 | 4413262 |
| 2 | 11/17/2010 | QCD | Quit Claim Deed | LYNN, JOHN P | LYNN, EVELYN L | | | $0.00 | 2989 | 4285946 |
| 3 | 10/01/1987 | WD | Warranty Deed | HADLEY, SAMUEL N | LYNN, JOHN P | | | $142,500.00 | 73215 | 87014130 |
| 4 | 02/01/1981 | REC | Real Estate Contract | BARTLETT, W H | HADLEY, SAMUEL N | | | $0.00 | 59058 | 0 |
| 5 | 01/01/1900 | OTHER | Other - Misc. Documents | Unknown | BARTLETT, W H | | | $0.00 | 0 | 0 |
Payout Agreement
| No payout information available.. |