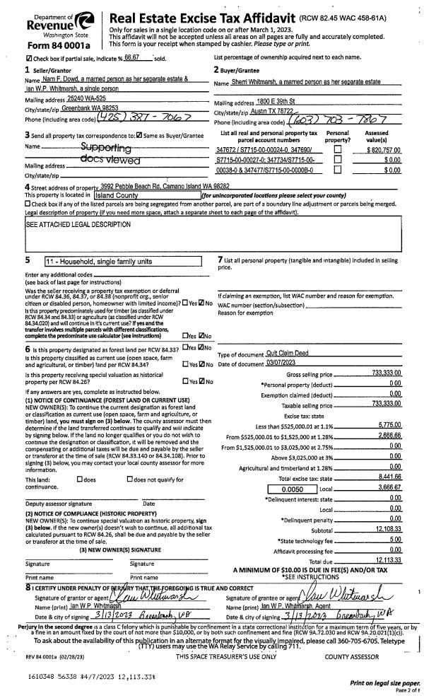
Property
Account |
| Property ID: | 423697 | Abbreviated Legal Description: | UTSA PT TR LOT 10 TGW & SUB EZ AF#96007941 |
| Geographic ID: | S8355-00-00010-0 | Agent Code: | |
| Type: | Real | | |
| Tax Area: | 510 - APPRAISER-Stan/Cam Schl Dist, improved & 1 acre or less | Land Use Code | 11 |
| Open Space: | N | DFL | N |
| Historic Property: | N | Remodel Property: | N |
| Multi-Family Redevelopment: | N | | |
| Township: | | Section: | |
| Range: | |
Location |
| Address: | 354 SHORE DR CAMANO ISLAND, WA 98282 | Mapsco: | |
| Neighborhood: | North Camano | Map ID: | 550 |
| Neighborhood CD: | 06-C |
Owner |
| Name: | NESS, CURTIS | Owner ID: | 286338 |
| Mailing Address: | TAMMY NESS 354 SHORE DR CAMANO ISLAND, WA 98282 | % Ownership: | 100.0000000000% |
| | | Exemptions: | |
Taxes and Assessment Details
Values
| (+) Improvement Homesite Value: | + | $0 | |
| (+) Improvement Non-Homesite Value: | + | $356,326 | |
| (+) Land Homesite Value: | + | $0 | |
| (+) Land Non-Homesite Value: | + | $1,425,600 | |
| (+) Curr Use (HS): | + | $0 | $0 |
| (+) Curr Use (NHS): | + | $0 | $0 |
| | | -------------------------- | |
| (=) Market Value: | = | $1,781,926 | |
| (–) Productivity Loss: | – | $0 | |
| | | -------------------------- | |
| (=) Subtotal: | = | $1,781,926 | |
| (+) Senior Appraised Value: | + | $0 | |
| (+) Non-Senior Appraised Value: | + | $1,781,926 | |
| | | -------------------------- | |
| (=) Total Appraised Value: | = | $1,781,926 | |
| (–) Senior Exemption Loss: | – | $0 | |
| (–) Exemption Loss: | – | $0 | |
| | | -------------------------- | |
| (=) Taxable Value: | = | $1,781,926 | |
Taxing Jurisdiction
| Owner: | NESS, CURTIS | | |
| % Ownership: | 100.0000000000% | | |
| Total Value: | $1,781,926 | | |
| Tax Area: | 510 - APPRAISER-Stan/Cam Schl Dist, improved & 1 acre or less |
| CF | Conservation Futures | 0.0316035091 | $1,781,926 | $1,781,926 | $56.32 | | |
| EMS1 | Fire & Rescue Dist #1 Camano GEN (EMS) | 0.3677864386 | $1,781,926 | $1,781,926 | $655.37 | | |
| FIRE1 | Fire & Rescue Dist #1 Camano GEN | 1.2502910536 | $1,781,926 | $1,781,926 | $2,227.93 | | |
| FIRE1BOND | Fire & Rescue Dist #1 Camano BOND | 0.1570001679 | $1,781,926 | $1,781,926 | $279.76 | | |
| CE | County Current Expense | 0.3708482477 | $1,781,926 | $1,781,926 | $660.82 | | |
| CR | County Roads | 0.4584763726 | $1,781,926 | $1,781,926 | $816.97 | | |
| LCIB | Library Sno-Isle BOND (Camano Island) | 0.0396325772 | $1,781,926 | $1,781,926 | $70.62 | | |
| LIB | Library Sno-Isle GEN | 0.3153421757 | $1,781,926 | $1,781,926 | $561.92 | | |
| SCH205_401 | School 205-401 Enrichment | 1.2698420524 | $1,781,926 | $1,781,926 | $2,262.76 | | |
| SCH205BOND | School 205-401 BOND | 0.9396497583 | $1,781,926 | $1,781,926 | $1,674.39 | | |
| ST | State School | 1.3035497053 | $1,781,926 | $1,781,926 | $2,322.83 | | |
| ST2 | State School Part 2 | 0.8169543533 | $1,781,926 | $1,781,926 | $1,455.75 | | |
| | Total Tax Rate: | 7.3209764117 | | | | | |
| | | | | Taxes w/Current Exemptions: | $13,045.44 | | |
| | | | | Taxes w/o Exemptions: | $13,045.44 | | |
Improvement / Building
| Improvement #1: | RESIDENTIAL | State Code: | Y | 1872.0 sqft | Value: | $356,326 |
| Bathrooms: | 2 | Bedrooms: | 3 | | Ceiling: | DRYWALL PAINTED | Exterior Wall/Cover: | WOOD SIDING | | Floor Covering: | HARDWOOD/CARP 60-40 | Floor Structure: | WOOD W/SUBFLOOR | | Foundation: | SLAB | Heating: | BASEBOARD ELECTRIC | | Interior Finish: | DRYWALL PAINT | Plumbing Fixture Cnt: | 10 | | Roof Slope: | 4" IN 12" | Roof Structure/Cover: | CJ WOOD SHAKES |
|
| | Type | Description | Class CD | Sub Class CD | Year Built | Area |
| | BAS | BASE/MAIN FLOOR | 4 | 0 | 1967 | 1152.0 |
| | BGR | BASEMENT GARAGE | 4 | 0 | 1967 | 286.0 |
| | OCP | OPEN CARPORT | 4 | 0 | 1967 | 220.0 |
| | OWP | OPEN WOOD PORCH W/STEPS | 4 | 0 | 1967 | 288.0 |
| | OWP | OPEN WOOD PORCH W/STEPS | 4 | 0 | 1967 | 392.0 |
| | OWC | OPEN WOOD PORCH W/STEPS/ROOF/C | 4 | 0 | 1967 | 84.0 |
| | DWN | DOWNSTAIRS LIVING AREA | 4 | 0 | 1967 | 720.0 |
| | DGR | DETACHED GARAGE | 4 | 0 | 1967 | 1024.0 |
| | OP3 | OPEN PORCH W/ROOF | 4 | 0 | 1967 | 420.0 |
Sketch
Property Image
Land
| 1 | LB | LOW BANK | 0.0000 | 0.00 | 60.00 | 0.00 | 1.00 | $1,425,000 | $0 |
| 2 | 55 | TIDES | 0.0000 | 0.00 | 60.00 | 0.00 | 1.00 | $600 | $0 |
Roll Value History
| 2026 | N/A | N/A | N/A | N/A | N/A |
| 2025 | $356,326 | $1,425,600 | $0 | $1,781,926 | $1,781,926 |
| 2024 | $368,369 | $1,350,600 | $0 | $1,718,969 | $1,718,969 |
| 2023 | $373,331 | $1,275,600 | $0 | $1,648,931 | $1,648,931 |
| 2022 | $304,547 | $1,160,600 | $0 | $1,465,147 | $1,465,147 |
| 2021 | $268,594 | $775,600 | $0 | $1,044,194 | $1,044,194 |
| 2020 | $262,350 | $700,600 | $0 | $962,950 | $962,950 |
| 2019 | $194,308 | $700,600 | $0 | $894,908 | $894,908 |
| 2018 | $194,973 | $685,600 | $0 | $880,573 | $880,573 |
| 2017 | $196,298 | $685,600 | $0 | $881,898 | $881,898 |
| 2016 | $186,592 | $685,600 | $0 | $872,192 | $872,192 |
| 2015 | $189,100 | $600,600 | $0 | $789,700 | $789,700 |
| 2014 | $191,607 | $600,600 | $0 | $792,207 | $792,207 |
| 2013 | $194,117 | $600,600 | $0 | $794,717 | $794,717 |
| 2012 | $196,623 | $528,990 | $0 | $725,613 | $725,613 |
| 2011 | $199,133 | $556,800 | $0 | $755,933 | $755,933 |
| 2010 | $215,255 | $556,800 | $0 | $772,055 | $772,055 |
| 2009 | $224,628 | $627,252 | $0 | $851,880 | $851,880 |
| 2008 | $227,829 | $757,959 | $0 | $985,788 | $985,788 |
| 2007 | $231,264 | $630,540 | $0 | $861,804 | $861,804 |
Deed and Sales History
| 1 | 08/03/2018 | WD | Warranty Deed | COLE, DAVID W | NESS, CURTIS | | | $880,000.00 | 35363 | 4449524 |
| 2 | 05/08/1998 | WD | Warranty Deed | WEBER, GARY R | COLE, DAVID W | | | $490,000.00 | 81730 | 98009278 |
| 3 | 03/01/1990 | QCD | Quit Claim Deed | WEBER, ROBERT B | WEBER, GARY R | | | $0.00 | 6538 | 90022732 |
| 4 | 03/01/1990 | WD | Warranty Deed | WEBER, GARY R | WEBER, ROBERT B | | | $0.00 | 6539 | 90022731 |
| 5 | 04/01/1989 | WD | Warranty Deed | ZAHNOW, GARY R | WEBER, GARY R | | | $215,000.00 | 91354 | 89004777 |
| 6 | 01/01/1900 | OTHER | Other - Misc. Documents | Unknown | COLE, DAVID W | | | $0.00 | 81730 | 98009278 |
| 7 | 01/01/1900 | OTHER | Other - Misc. Documents | COLE, DAVID W | ZAHNOW, GARY R | | | $0.00 | 0 | 0 |
Payout Agreement
| No payout information available.. |