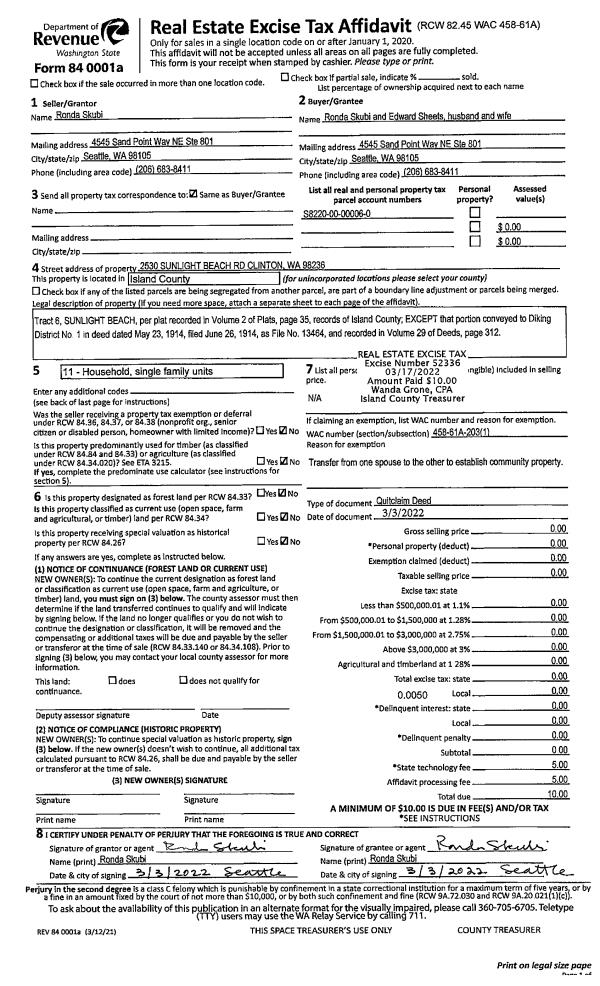
Property
Account |
| Property ID: | 423713 | Abbreviated Legal Description: | UTSA PT TR LOT 12 |
| Geographic ID: | S8355-00-00012-0 | Agent Code: | |
| Type: | Real | | |
| Tax Area: | 510 - APPRAISER-Stan/Cam Schl Dist, improved & 1 acre or less | Land Use Code | 11 |
| Open Space: | N | DFL | N |
| Historic Property: | N | Remodel Property: | N |
| Multi-Family Redevelopment: | N | | |
| Township: | | Section: | |
| Range: | |
Location |
| Address: | 346 SHORE DR CAMANO ISLAND, WA 98282 | Mapsco: | |
| Neighborhood: | North Camano | Map ID: | 550 |
| Neighborhood CD: | 06-C |
Owner |
| Name: | 346 SHORE DRIVE LLC | Owner ID: | 282597 |
| Mailing Address: | 346 SHORE DR CAMANO ISLAND, WA 98282 | % Ownership: | 100.0000000000% |
| | | Exemptions: | |
Taxes and Assessment Details
Values
| (+) Improvement Homesite Value: | + | $0 | |
| (+) Improvement Non-Homesite Value: | + | $318,396 | |
| (+) Land Homesite Value: | + | $0 | |
| (+) Land Non-Homesite Value: | + | $1,425,600 | |
| (+) Curr Use (HS): | + | $0 | $0 |
| (+) Curr Use (NHS): | + | $0 | $0 |
| | | -------------------------- | |
| (=) Market Value: | = | $1,743,996 | |
| (–) Productivity Loss: | – | $0 | |
| | | -------------------------- | |
| (=) Subtotal: | = | $1,743,996 | |
| (+) Senior Appraised Value: | + | $0 | |
| (+) Non-Senior Appraised Value: | + | $1,743,996 | |
| | | -------------------------- | |
| (=) Total Appraised Value: | = | $1,743,996 | |
| (–) Senior Exemption Loss: | – | $0 | |
| (–) Exemption Loss: | – | $0 | |
| | | -------------------------- | |
| (=) Taxable Value: | = | $1,743,996 | |
Taxing Jurisdiction
| Owner: | 346 SHORE DRIVE LLC | | |
| % Ownership: | 100.0000000000% | | |
| Total Value: | $1,743,996 | | |
| Tax Area: | 510 - APPRAISER-Stan/Cam Schl Dist, improved & 1 acre or less |
| CF | Conservation Futures | 0.0316035091 | $1,743,996 | $1,743,996 | $55.12 | | |
| EMS1 | Fire & Rescue Dist #1 Camano GEN (EMS) | 0.3677864386 | $1,743,996 | $1,743,996 | $641.42 | | |
| FIRE1 | Fire & Rescue Dist #1 Camano GEN | 1.2502910536 | $1,743,996 | $1,743,996 | $2,180.50 | | |
| FIRE1BOND | Fire & Rescue Dist #1 Camano BOND | 0.1570001679 | $1,743,996 | $1,743,996 | $273.81 | | |
| CE | County Current Expense | 0.3708482477 | $1,743,996 | $1,743,996 | $646.76 | | |
| CR | County Roads | 0.4584763726 | $1,743,996 | $1,743,996 | $799.58 | | |
| LCIB | Library Sno-Isle BOND (Camano Island) | 0.0396325772 | $1,743,996 | $1,743,996 | $69.12 | | |
| LIB | Library Sno-Isle GEN | 0.3153421757 | $1,743,996 | $1,743,996 | $549.96 | | |
| SCH205_401 | School 205-401 Enrichment | 1.2698420524 | $1,743,996 | $1,743,996 | $2,214.60 | | |
| SCH205BOND | School 205-401 BOND | 0.9396497583 | $1,743,996 | $1,743,996 | $1,638.75 | | |
| ST | State School | 1.3035497053 | $1,743,996 | $1,743,996 | $2,273.39 | | |
| ST2 | State School Part 2 | 0.8169543533 | $1,743,996 | $1,743,996 | $1,424.77 | | |
| | Total Tax Rate: | 7.3209764117 | | | | | |
| | | | | Taxes w/Current Exemptions: | $12,767.78 | | |
| | | | | Taxes w/o Exemptions: | $12,767.78 | | |
Improvement / Building
| Improvement #1: | RESIDENTIAL | State Code: | Y | 2536.0 sqft | Value: | $318,396 |
| Bathrooms: | 2 | Bedrooms: | 2 | | Ceiling: | DRYWALL PAINTED | Cooling: | HEAT PUMP/CONV/V | | Exterior Wall/Cover: | VINYL | Floor Covering: | HARDWOOD/CARP 60-40 | | Floor Structure: | WOOD W/SUBFLOOR | Foundation: | CONCRETE | | Interior Finish: | DRYWALL PAINT | Plumbing Fixture Cnt: | 9 | | Roof Slope: | 4" IN 12" | Roof Structure/Cover: | CJ ASPHALT |
|
| | Type | Description | Class CD | Sub Class CD | Year Built | Area |
| | BAS | BASE/MAIN FLOOR | 3 | 0 | 1956 | 1617.0 |
| | OP1 | OPEN PORCH SLAB | 3 | 0 | 1956 | 228.0 |
| | AGR | ATTACHED GARAGE | 3 | 0 | 1956 | 834.0 |
| | OCP | OPEN CARPORT | 3 | 0 | 1956 | 649.0 |
| | UPS | UPPER STORY | 3 | 0 | 1956 | 919.0 |
| | BAW | BALCONY WOOD RAIL | 3 | 0 | 1956 | 80.0 |
| | BAW | BALCONY WOOD RAIL | 3 | 0 | 1956 | 40.0 |
| | CPD | OPEN CARPORT DIRT FLOOR | 3 | 0 | 1956 | 260.0 |
Sketch
Property Image
Land
| 1 | LB | LOW BANK | 0.0000 | 0.00 | 60.00 | 0.00 | 1.00 | $1,425,000 | $0 |
| 2 | 55 | TIDES | 0.0000 | 0.00 | 60.00 | 0.00 | 1.00 | $600 | $0 |
Roll Value History
| 2026 | N/A | N/A | N/A | N/A | N/A |
| 2025 | $318,396 | $1,425,600 | $0 | $1,743,996 | $1,743,996 |
| 2024 | $323,276 | $1,350,600 | $0 | $1,673,876 | $1,673,876 |
| 2023 | $328,156 | $1,275,600 | $0 | $1,603,756 | $1,603,756 |
| 2022 | $268,848 | $1,160,600 | $0 | $1,429,448 | $1,429,448 |
| 2021 | $237,478 | $775,600 | $0 | $1,013,078 | $1,013,078 |
| 2020 | $232,953 | $700,600 | $0 | $933,553 | $933,553 |
| 2019 | $183,684 | $700,600 | $0 | $884,284 | $884,284 |
| 2018 | $184,378 | $685,600 | $0 | $869,978 | $869,978 |
| 2017 | $185,764 | $685,600 | $0 | $871,364 | $871,364 |
| 2016 | $173,488 | $685,600 | $0 | $859,088 | $281,141 |
| 2015 | $176,241 | $600,600 | $0 | $776,841 | $281,141 |
| 2014 | $178,997 | $600,600 | $0 | $779,597 | $281,141 |
| 2013 | $181,748 | $600,600 | $0 | $782,348 | $281,141 |
| 2012 | $184,502 | $528,990 | $0 | $713,492 | $281,141 |
| 2011 | $187,257 | $556,800 | $0 | $744,057 | $281,141 |
| 2010 | $175,764 | $556,800 | $0 | $732,564 | $281,141 |
| 2009 | $183,990 | $627,252 | $0 | $811,242 | $281,141 |
| 2008 | $188,979 | $755,914 | $0 | $944,893 | $281,141 |
| 2007 | $188,696 | $631,722 | $0 | $820,418 | $702,852 |
Deed and Sales History
| 1 | 10/26/2017 | WD | Warranty Deed | KALANQUIN, SHIRLEY | 346 SHORE DRIVE LLC | | | $837,500.00 | 31727 | 4433178 |
| 2 | 08/29/2000 | OTHER | Other - Misc. Documents | KALANQUIN, FRED D | KALANQUIN, SHIRLEY | | | $0.00 | 68761 | 0 |
| 3 | 02/01/1991 | QCD | Quit Claim Deed | KALANQUIN, FRED D | KALANQUIN, FRED D | | | $0.00 | 10817 | 91003585 |
| 4 | 10/01/1987 | WD | Warranty Deed | PETTERSSON, RAGNAR | KALANQUIN, FRED D | | | $175,000.00 | 73311 | 87014490 |
| 5 | 12/01/1985 | WD | Warranty Deed | PETTERSSON, RAGNAR | PETTERSSON, RAGNAR | | | $140,000.00 | 53354 | 85013236 |
| 6 | 12/01/1985 | QCD | Quit Claim Deed | DUNHAM, F M | PETTERSSON, RAGNAR | | | $0.00 | 53436 | 85013604 |
| 7 | 01/01/1900 | OTHER | Other - Misc. Documents | Unknown | DUNHAM, F M | | | $0.00 | 0 | 0 |
Payout Agreement
| No payout information available.. |